Панели бетонные стеновые: виды, производство
Изделия из бетона и железобетона являются обязательными элементами процесса строительства. На рынке они появились около 50 лет назад и быстро приобрели популярность. Однако стеновые панели из бетона обладают большим количеством особенностей, с которыми следует ознакомиться перед их применением.

Назначение
Панели бетонные стеновые отличаются удобством применения. Это свойство позволяет существенно увеличить скорость сооружения объекта. В большинстве случаев бетонные и ЖБ панели применяются для возведения многоэтажных зданий, госучреждений, загородных коттеджей и построек промышленного назначения.
Виды
Существует несколько разновидностей панелей под бетон, однако все их классификации считаются условными и зависят от специфики использования.
По назначению железобетонные панели используются для сооружения:- построек жилого типа;
- объектов промышленного назначения;
- технических сооружений;
- чердаков и подвалов;
- для установки по периметру и внутри объекта (внутренние стеновые плиты).
По виду конструкции панели стеновые могут быть пустотелыми, монолитными, комбинированными или изготовленными из одной марки бетона. По количеству слоев панель ЖБИ может быть монолитной и сборной.

Последний тип имеет свою классификацию:
- Однослойные ЖБ панели. Эти изделия выполнены из одной марки бетона и обладают небольшой массой. Их особенностью является то, что внутренняя прослойка обмазана особой цементной смесью. Этот цемент ускоряет формирование изделия и упрощает внутреннюю отделку.
- Двухслойные конструкции состоят из теплоизоляционного слоя и армированной плитки. В большинстве случае в качестве теплоизолятора применяется пенобетон, пеностекло или минеральная вата. Поверхность с теплоизоляционным покрытием для стен располагают внутри постройки.
- Трехслойные изделия выполнены в виде ребристых железобетонных панелей, которые соединены друг с другом. Между ними устанавливаются уплотнители. Этот материал имеет большие габариты и массу, но вместе с тем является самым функциональным вариантом для возведения высоток.
Панели классифицируются и по степени устойчивости к механическим нагрузкам. По этому признаку они бывают:
- ненесущими;
- несущими;
- самонесущими;
- несущими поэтажно.
Кроме того, ЖБ изделия отличаются связующими ингредиентами, маркой, разновидностью армирования, назначением и т. д.

Плюсы и минусы
Стеновые панели из железобетона обладают большим количеством преимуществ. Среди них:
- Быстрое возведение. При наличии готового строительного проекта, специалисты выполняют сборку здания из ЖБИ быстро и без каких-либо задержек.
- Строительство с помощью ЖБИ может производиться в любой сезон. Даже зимой нет необходимости в приостановке сооружения постройки из железобетонных изделий.
- Отсутствие усадки. Панели из железобетона не имеют склонности к усаживанию, т.е. после сборки основной коробки можно сразу переходить к последующим стадиям — внутренней отделке, устройству теплоизоляции и т.д.
- Отличная шумоизоляция. Наибольших показателей защищенности от шума можно добиться, если выбрать специальные панели со встроенным утеплителем.
- Возможность соорудить теплое здание. Качественные ЖБ изделия обладают высокой сопротивляемостью теплоотдачи.
- Отсутствие ограничений в плане фасадной отделки. Для этой цели можно применять любые решения, включая облицовку декоративной штукатуркой и сайдингом.
- Высокий уровень пожарной безопасности. Изделия из железобетона, которые соответствуют ГОСТу, не подвержены горению.
- Доступная цена. Эксперты отмечают, что стоимость железобетонного здания получается на 1/3 меньше, чем постройки, сооруженной из кирпича.

Кроме того, внутренние поверхности ЖБ панелей не нуждаются в предварительной обработке, т.к. они изначально являются ровными. Их следует отделывать уже после возведения здания, во время внутренней отделки жилища.
Однако у этого материала есть и недостатки. Основные из них:
- для монтажа требуется применение спецтехники;
- большая масса;
- ровные формы стеновых блоков могут создавать проблемы с воплощением сложных архитектурных композиций;
- повышенные требования к основанию фундамента;
- возможные проблемы с заменой поврежденных фрагментов;
- шумо- и теплоизоляция хуже, чем в зданиях, построенных из классического кирпича.
Типовые размеры
Панели из железобетона могут обладать различной конфигурацией и габаритами. Подбирать характеристики материала нужно еще на этапе проектирования постройки. На данной стадии необходимо рассчитать размеры всех имеющихся элементов, а также число и размер проемов. Типовые размеры подобных конструкций установлены ГОСТом. Согласно ему, толщина панелей должна лежать в диапазоне от 20 до 50 см. Стандартные размеры ЖБ плит — 12×1,8 м и 6×1,2 м.
Для объектов производственного назначения берутся панели длиной 12 и 6,9 м. Для стенок с проемами применяются изделия, длина которых варьируется в пределах 1,5-3 м, а для дверных проемов подходят панели длиной от 1,48 до 2,98 м.
Маркировка
Согласно ГОСТу, производители на ребра фрагмента ЖБ плиты должны наносить сведения об основных характеристиках своей продукции. При этом все надписи наносятся специальным несмываемым красителем. Так, сведения на ЖБ плитах представлены в форме специальной маркировки из 3 цифр и букв, которые отделены дефисом.
Первый символ обозначения указывает на методику изготовления (4-6 — составная, 1-3 — монолитная). Следующий символ указывает на разновидность плиты (Н — наружная, В — внутренняя). После этого следует обозначение места использования (Ч — чердаки, Ц — цоколь, С — стены). Кроме того, маркировка содержит в себе сведения о размерах. Ширина панели выражается в сантиметрах, а длина изделия — в дециметрах.
Методы производства
ЖБ изделия производятся на предприятиях строительной отрасли. При этом применяются различные типы бетона и разные технологии армирования. Бетон бывает особо легким, легким, тяжелым и особо тяжелым. Армирование бывает стандартным и изначально напряженным.

Для производства стеновых ЖБ панелей используются такие методики:
- стендовая — крупные элементы помещаются в неподвижные формы, после чего происходит формирование с использованием агрегатов;
- поточно-агрегатная — в ходе непрерывной влаго- и теплообработки элементы переносятся по цехам с учетом технологии изготовления;
- кассетная — используются неподвижные формы, но после обработки конструкции извлекаются с использованием спецподъемников;
- вибропрокатная — весь производственный процесс протекает на специальном вибропрокатном конвейере.
Правила транспортирования
Панели из железобетона обладают большими габаритами, поэтому для их перевозки в Москве и других городах применяется специальный транспорт — панелевозы.
Разгрузка железобетонных конструкций осуществляется с помощью строительного подъемного крана. В ходе транспортировки есть риск несущественных повреждений изделий.

Чтобы избежать проблем, необходимо придерживаться следующих правил:
- Железобетонные изделия укладываются в автомобильный кузов штабелями. При этом воспрещается штабелировать более 4 конструктивных элементов вместе.
- Установочные гайки находятся в верхней части. Это нужно для того, чтобы подъемный кран смог зацепить железобетонные плиты, не влияя на их положение.
- Между отдельными плитами помещают брусья из древесины.
- Чтобы предотвратить перемещение железобетонных изделий во время транспортировки, сверху на них укладывают массивные блоки из бетона.
Если соблюдать эти правила, то можно быстро перевезти ЖБ конструкции на место строительных работ с минимальным количеством брака.
Складирование и хранение
При длительном хранении изделий из железобетона необходимо уделить особое внимание помещению. В частности, поверхность, на которой будут лежать плиты, обязательно должна быть ровной. Сверху и снизу стройматериалов нужно уложить укрывное полотно. Воспрещается хранить железобетонные конструкции на земле и без подходящего навеса.

Между уложенными панелями нужно расположить дощечки из дерева. При отсутствии возможности поместить бетонные стеновые плиты в помещение, их нужно постараться изолировать от агрессивных внешних воздействий и влаги. Вода оказывает отрицательное влияние на несущие свойства бетона. Кроме того, она ухудшает его прочность.
Чтобы избежать проблем, бетонные плиты нужно укрыть стальными листами, полотнами шифера, полиэтиленовой пленкой или рубероидом.
Кроме того, если ЖБИ будут храниться на открытой местности, перед их складированием необходимо принять такие подготовительные меры:
- Для начала нужно осмотреть зону складирования. Лучше отдавать предпочтение ровному месту с несущественным уклоном. Изделия штабелируют. При этом нужно учитывать возможность проезда спецтехники и транспорта. Укладывать железобетонные плиты лучше так, чтобы можно было без труда рассмотреть их маркировку.
- Площадку для складирования нужно тщательно подготовить. Для этого ее поверхность следует выровнять с помощью подручных инструментов или бульдозера.
- Чтобы строительный материал не имел контакта с грунтом, его нужно помещать на заготовленные бруски.
Панели из железобетона пользуются большой популярностью, т.к. они долговечны и прочны. Применение таких изделий обеспечивает надежное и оперативное массовое строительство, которое не зависит от времени года. Но основная часть указанных характеристик зависит от качества компонентов состава и соблюдения технологии на каждой стадии производства.
1beton.info
Бетонные панели
Какие характеристики имеют стеновые бетонные панели
Комментариев:
Рейтинг: 46
Оглавление: [скрыть]
- Параметры бетонных панелей
- Типоразмер
- Основные разновидности
- Структура изделий с несколькими слоями
- Маркировка стеновых изделий
Стеновые бетонные панели наравне с другими конструкциями из бетона считаются составляющим звеном индустрии строительства. Из них строят частные дома, их применяют и в промышленных целях строительства. Выпускают огромное разнообразие типов и марок бетонных панелей. О них и их характеристиках и будет рассказано далее.

Стеновые панели выпускаются одно-, двух- и трехслойными.
Параметры бетонных панелей
Панели из бетона являются составляющими стен. Производят их в условиях завода из бетона, армированного специальными сетками либо же каркасами из арматуры. При этом марочность бетона бывает различной. Они обладают повышенными прочностными характеристиками и огнеустойчивостью. Они бывают для внутренней и наружной установки. Панели стеновые для дома нередко выпускают с добавлением теплоизоляционных материалов. Сегменты стеновых конструкций для внутренней установки утепления обычно не предполагают.
Вернуться к оглавлению
Схема узла крепления верха стеновых панелей.
Плиты из бетона для возведения стен домов имеют самые разные габариты. ГОСТ 11024-84 определяет размеры для внутренних изделий и технические требования к ним, типоразмеры, а 12504-80 — относится к плитам фасадным. Типоразмеры отражены в СНиПах, местных и отраслевых стандартах и технических условиях.
Каркас блоков бывает из стали и железобетона. Для жилищного строительства их размеры обычно составляют 6 на 1,2 и 12 на 1,8 м. Для промышленных целей производят панели, имеющие длину 6,9 либо 12 м.
Для стен домов, где имеются оконные проемы, выпускают особые простеночные плиты 3 и 1,5 м длиной. Для стен с проемами под двери плиты производят размером 2,98 и 1,48 м.
Теплотехнические свойства используемых материалов и особенности климата региона оказывают влияние на толщину панелей, которая обычно варьируется от 20 до 50 см.
Вернуться к оглавлению
Все изделия для стенового назначения имеют условную классификацию по характеризующим их типы критериям:
Назначение к использованию:
Чертежи стеновых панелей.
- многоэтажное сооружение жилых домов;
- строительство технического подвала и цокольного этажа;
- возведение чердачных частей зданий.
Конструктивное решение:
- цельное устройство;
- составные.
Количество основных слоев:
- из одного слоя;
- с двумя слоями;
- 3-слойные.
Панели для сборки стен домов обладают различной структурой, отчего восприятие и передача ими нагрузки происходит не одинаково. Это является основанием для их разделения на:
- навесные;
- несущие;
- самонесущие.
Вернуться к оглавлению
Классификация ячеистого бетона.
Однослойные панели производят из легких видов ячеистого бетона (например, из пено- и газобетона). Бывают панели и с наполнителем, таким как перлит, аглопорит, керамзит, шлак. Толщина слоя снаружи составляет 2-4 см, а слой изнутри бывает покрыт декоративным цементом для отделки. По нему в последующем выполняют финишную облицовку.
Изделия с двумя слоями состоят из 2-ребристых плит из керамзитобетона крупнопористого. Изнутри закрепляют утеплитель. Это может быть пеностекло, минераловатные плиты, пенобетон, пенокералит. Слой теплоизоляции помещают обычно внутри стр
vest-beton.ru
Бетонные стеновые панели для строительства дома
Стеновые бетонные панели наравне с другими конструкциями из бетона считаются составляющим звеном индустрии строительства. Из них строят частные дома, их применяют и в промышленных целях строительства. Выпускают огромное разнообразие типов и марок бетонных панелей. О них и их характеристиках и будет рассказано далее.

Стеновые панели выпускаются одно-, двух- и трехслойными.
Параметры бетонных панелей
Панели из бетона являются составляющими стен. Производят их в условиях завода из бетона, армированного специальными сетками либо же каркасами из арматуры. При этом марочность бетона бывает различной. Они обладают повышенными прочностными характеристиками и огнеустойчивостью. Они бывают для внутренней и наружной установки. Панели стеновые для дома нередко выпускают с добавлением теплоизоляционных материалов. Сегменты стеновых конструкций для внутренней установки утепления обычно не предполагают.
Вернуться к оглавлению
Типоразмер
Схема узла крепления верха стеновых панелей.
Плиты из бетона для возведения стен домов имеют самые разные габариты. ГОСТ 11024-84 определяет размеры для внутренних изделий и технические требования к ним, типоразмеры, а 12504-80 — относится к плитам фасадным. Типоразмеры отражены в СНиПах, местных и отраслевых стандартах и технических условиях.
Каркас блоков бывает из стали и железобетона. Для жилищного строительства их размеры обычно составляют 6 на 1,2 и 12 на 1,8 м. Для промышленных целей производят панели, имеющие длину 6,9 либо 12 м.
Для стен домов, где имеются оконные проемы, выпускают особые простеночные плиты 3 и 1,5 м длиной. Для стен с проемами под двери плиты производят размером 2,98 и 1,48 м.
Теплотехнические свойства используемых материалов и особенности климата региона оказывают влияние на толщину панелей, которая обычно варьируется от 20 до 50 см.
Вернуться к оглавлению
Основные разновидности
Все изделия для стенового назначения имеют условную классификацию по характеризующим их типы критериям:
Назначение к использованию:
Чертежи стеновых панелей.
- многоэтажное сооружение жилых домов;
- строительство технического подвала и цокольного этажа;
- возведение чердачных частей зданий.
Конструктивное решение:
- цельное устройство;
- составные.
Количество основных слоев:
- из одного слоя;
- с двумя слоями;
- 3-слойные.
Панели для сборки стен домов обладают различной структурой, отчего восприятие и передача ими нагрузки происходит не одинаково. Это является основанием для их разделения на:
- навесные;
- несущие;
- самонесущие.
Вернуться к оглавлению
Структура изделий с несколькими слоями
Классификация ячеистого бетона.
Однослойные панели производят из легких видов ячеистого бетона (например, из пено- и газобетона). Бывают панели и с наполнителем, таким как перлит, аглопорит, керамзит, шлак. Толщина слоя снаружи составляет 2-4 см, а слой изнутри бывает покрыт декоративным цементом для отделки. По нему в последующем выполняют финишную облицовку.
Изделия с двумя слоями состоят из 2-ребристых плит из керамзитобетона крупнопористого. Изнутри закрепляют утеплитель. Это может быть пеностекло, минераловатные плиты, пенобетон, пенокералит. Слой теплоизоляции помещают обычно внутри строения и наносят на него защитное покрытие из цемента.
С тремя слоями изделия — ребристые панели для стен, с прослойкой утеплителя. Между собой слои соединены арматурными каркасами. Внутренний теплоизоляционный слой (его толщина) закладывается в соответствии с теплотехническим расчетом.
Вернуться к оглавлению
Маркировка стеновых изделий
Любое бетонное изделие, в том числе и панели, произведенное заводом-изготовителем по определенным требованиям ГОСТа, имеет маркировку в виде 3-группового буквенно-цифрового обозначения с дефисом-разделителем, проставленным несмываемой краской. Маркировка несет в себе сведения о главных характеристиках продукции.
Первая группа обозначений указывает тип сегмента. Для нашей ситуации ПС — панель стеновая. Другая группа содержит сведения о разновидности бетона, классе арматуры, несущей нагрузке. Например, буква «Л» означает легкий бетон. В третьей группе содержатся знаки, раскрывающие особые качества бетонной продукции. Последние указывают на специальные условия использования панелей. К примеру, индекс «В» — изделия для верха, а «Н» обозначает низ.
Правильное чтение маркировки позволит получить всю информацию об изделии.
tolkobeton.ru
Отделка декоративными бетонными панелями для стен
Содержание статьи
Существуют определенные ограничения использования данных декоративных элементов. Но в большинстве случаев бетонные панели для стен смотрятся очень эффектно. Мы предлагаем большой выбор готовых вариантов. Кроме того, вы можете заказать индивидуальное исполнение отделочных материалов.

Бетонные панели для стен из фиброцемента «ЭКВИТОН», материал для дизайна и творчества
Принципы использования декоративного бетона
Часто бетонные панели вызывают много сомнений, поскольку создают слишком грубый интерьер. Наша компания готова разубедить скептиков. Мы предлагаем ознакомиться с декоративными отделочными материалами данного типа. Бетонные панели условно можно разделить на три большие категории:

Использование декоративных бетонных панелей для стен — Архитектор: Delugan Meissl Associated Architects Vienna
Местоположение: Mühlgraben 56a, Erl, Austria (1h south of Munich)
Материал: EQUITONE [natura]
- Отделочный материал с 3D-эффектом. Они представляют собой панели под бетон с выпуклым рельефом неправильной формы, что позволяет создавать разнообразные рисунки.
- Бетонные панели для стены, имитирующие натуральные оттенки материала.
- Панели с внешним декоративным рисунком. Данный декоративный материал своей красотой не уступает дорогому кафелю.
Частный дом, вилла с бетонными панелями для стен из фиброцемента
При украшении интерьера важно соблюдать несколько принципов. Прежде всего, нельзя использовать бетонные панели для оформления стен в небольших помещениях. Это самое главное и обязательное условие, поскольку данный отделочный материал может «украсть» пространство помещения. Кроме того, не стоит использовать панели под бетон в спальных комнатах. В остальном применение данного материала не имеет ограничений.
Где использовать декоративный бетон
В настоящий момент декоративные панели из бетона используются для оформления стен снаружи или внутри помещений. Вы сможете по достоинству оценить широкое разнообразие возможных интерьерных решений. Не стоит также забывать и о том, что множество производителей предлагает своим клиентам выполнить авторские работы. Современные бетонные панели могут выпускаться в виде жидких и сухих смесей. Такое решение позволяет каждому желающему самостоятельно определиться с внешним видом и формой декоративных элементов.

Бетонные панели для стен «ЭКВИТОН», Реставрация здания с исторической ценностью
Применять бетонные плиты для оформления наружных или внутренних стен нужно достаточно осторожно. Прежде всего, вы должны учитывать тот факт, что такой интерьер или экстерьер может не сочетаться с остальным оформлением. Именно поэтому использовать панели с внешним видом под бетон стоит с большой осторожностью. Лучше всего доверить вопрос профессионалам своего дела.
Технические характеристики материала

Запатентованное производство EQUITONE [linea] – широкоформатная 3D бетонная панель, меняющая тон цвета в зависимости от времени суток и угла света
Выбирая бетонные панели для оформления наружных или внутренних стен, необходимо учитывать достаточно большое количество показателей. Прежде всего, для оформления внешних поверхностей стоит использовать более прочные и материалы большей толщины.
Перед тем как использовать бетонные панели, вам стоит определиться с:
- плотностью отделочного материала. Чем выше данный показатель, тем лучше для наружной отделки. К примеру, бетонная фасадная панель должна легко выдерживать действие всех осадков и перепад температур;
- глянец поверхности. Очень часто наши клиенты считают, что чем ровнее бетонные панели, тем лучше они подходят для внутреннего оформления. На самом деле, чем ровнее поверхность, тем меньше вероятность того, что за нее смогут «уцепиться» грибки и плесень. Поэтому для особо влажной среды лучше всего использовать ровные бетонные панели.
| Предельные отклонения размеров, по: | ||
|---|---|---|
| — длине, мм | ± 3 | |
| — ширине, мм | ± 3 | |
| — толщине,% | ± 10 | |
| Отклонение от плоскостности и кромок от прямолинейности, мм, не более | 1 | |
| Отклонение от прямоугольности (отклонение формы листа от прямоугольной), мм, не более | 1 | |
| Плотность, кг/м3, не менее | ГОСТ 8747-88 | 1550 |
| Модуль упругости при изгибе бетонных панелей, МПа (справочно): | ГОСТ 8747-88 | |
| — вдоль волокон | 13000 | |
| — поперек волокон | 15000 | |
| Предел прочности при изгибе, МПа, не менее | ГОСТ 8747-88 | 24 |
| Морозостойкость: | ГОСТ 8747-88 | |
| — число циклов | 150 | |
| — остаточная прочность,%, не менее | 90 | |
| Водопоглощение материалов, %, не более | ГОСТ 8747-88 | 20 |
Немаловажным показателем также можно считать стойкость к низким температурам. Для внутренней отделки этим показателем можно пренебречь в пользу более красивого внешнего вида.

Бетонные панели для фасада «ЭКВИТОН», Жилой многоквартирный дом
Цветовое исполнение и текстуры поверхностей
Несмотря на распространенное мнение, бетонные панели для декоративной отделки стен могут иметь достаточно разнообразный внешний вид. Отличаться они могут как цветовыми решениями, так и шероховатостью поверхности. Перед применением того или иного варианта стоит учитывать условия эксплуатации.
Пористые поверхности смотрятся очень красиво, но дают возможность грибкам проникать внутрь материала. Использовать такой материал в качестве бетонной фасадной отделки стоит только после пропитки панели специальными защитными веществами.
Гладкие материалы станут хорошим выбором для получения однородной поверхности и чаще всего применяются в рабочих помещениях. Они могут похвастаться более широким набором рисунков и цветов, но имеют более официальный внешний вид.
Объемные варианты декоративной отделки
В последнее время стали популярными 3D бетонные панели. Они отличаются наличием выпуклого орнамента с продуманной формой или неровной формой самого элемента. Такой вариант оформления очень универсальный и подходит для создания декоративных элементов или облицовки больших площадей. К достоинствам таких бетонных 3D панелей можно отнести:
- красивый и оригинальный внешний вид;
- высокая прочность материала;
- возможность комбинирования с другими видами декоративной отделки.
При этом бетонные 3D панели лишены большинства недостатков других декоративных материалов. Они легко моются, выдерживают достаточно серьезные механические нагрузки и устойчивы к бытовой химии.
Ставни выполнены из бетонных декоративных панелей из фиброцемента Эквитон. Перфорация создала удивительный декоративный эффект
Размеры бетонных декоративных панелей для отделки стен могут быть очень разными. Выбирая такие элементы, не стоит забывать про его достаточно большой вес. Возможно выполнение бетонных простых и 3D панелей под заказ, но их максимальная длина и ширина не могут превышать трех метров. Толщина изделий колеблется в пределах от пятнадцати до двадцати миллиметров.
Примеры оформления интерьеров
Еще несколько лет назад достаточно грубые бетонные панели для декоративного оформления стен применялись крайне редко. Чаще всего их использовали для отделки государственных учреждений, фасадов зданий или складов. С приходом популярности стилей лофт, индустриал и хай-тек материал стал применяться и в жилых помещениях. Это обусловлено тем, что современные технологии позволили разнообразить внешний вид бетонных декоративных панелей для оформления стен.

Стеновые фасадные панели из фиброцемента «ЭКВИТОН», Образовательное учреждение

Бетонные панели для стен из фиброцемента «ЭКВИТОН», Административное здание

Пример реконструкции зданий бетонными панелями из фиброцемента ЭКВИТОН / EQUITONE
В настоящий момент материал стало модно использовать для отделки ванных комнат в сочетании с белой сантехникой и натуральными украшениями в виде живых цветов и т.д. Традиционно самым распространенным вариантом использования бетонных декоративных панелей является украшение холлов и гостиных. Актуальным трендом в этом сезоне являются спальни в стиле лофт с применением бетонных декоративных панелей для оформления стен. В таком случае стоит выбирать пористые варианты изделий со скошенными углами. Они создают более уютную атмосферу.
Крепление на стены
Существует несколько способов закрепить бетонные декоративные панели. Выбор конкретного варианта зависит от интерьера, который вы хотите получить, и типа материала. Самым популярным считается крепление при помощи специального клея. Но в таком случае бетонные декоративные панели не должны быть слишком тяжелыми.
Для больших по площади элементов используются анкера или болты. В первом случае бетонные декоративные панели крепятся «невидимым» способом. Во втором варианте вы сможете подчеркнуть строгий характер бетона и украсить интерьер хромированными элементами.
Видео инструкция по монтажу фиброцементной фасадной панели EQUITONE
Задать вопрос
Оставьте свой вопрос и мы свяжемся с вами
Читайте также про отделку панелями для стен
eternit.ru
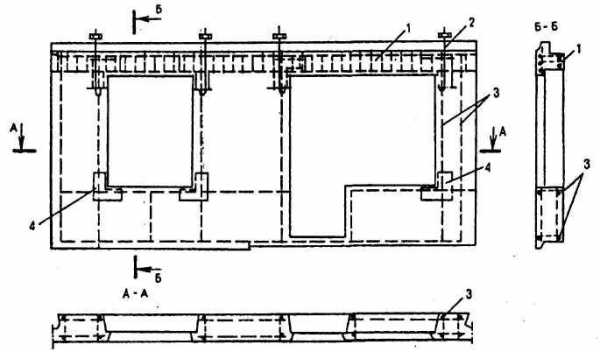
1.1. Бетоные панели наружных стен
Панельные конструкции жилых зданий
Панельное домостроение, несмотря на сложные производственные и экономические преобразования последнего десятилетия, удерживает лидирующее положение в массовом городском жилищном строительстве. Перестройка методики проектирования таких зданий на основе открытой системы в силу обстоятельств коренной экономической реорганизации всей системы хозяйства в стране не реализована. Современное проектирование панельных зданий продолжает осуществляться на базе блок-секционного метода типизации.
Несмотря на то, что в начальный период становления домостроительной промышленности прошли апробацию и доказали свою экономическую равноценность несколько вариантов конструктивных систем (см.рис.7), в массовое строительство внедрены только две: перекрестно-стеновая с малым шагом и поперечно-стеновая со смешанным шагом внутренних стен (рис. 1.1).

Рис.1.1. Бескаркасные конструктивные системы панельных зданий массового применения: а -перекрестно — стеновая с малым шагом поперечных стен; б — поперечно — стеновая со смешанным шагом
Продольно-стеновая система (вариант IV на рис.7) после успешного старта в массовом строительстве 5-этажных домов в 50-60-х годах практически перестала применяться после перехода массового строительства на возведение домов повышенной этажности — 9, 12 этажей. Причиной этого послужила ограниченная несущая способность однослойных легкобетонных наружных стен, на применение которых (как и почти вся домостроительная промышленность) система была ориентирована. Современная домостроительная промышленность в целях экономии энергоресурсов осуществляет массовый перевод производства на изготовление трехслойных железобетонных панелей наружных стен с эффективными утеплителями. Такие панели обладают не только существенно большим сопротивлением теплопередаче, но и большей несущей способностью. Это создает новые перспективы для применения продольно-стеновой системы в домах разной этажности (4-5, 9, 12 этажей). При этом можно будет широко использовать представляемую продольно-стеновой системой возможность свободной планировки, предотвратив преждевременный «моральный износ» здания.
Наружные стены проектируют несущими, самонесущими или ненесущими. Применение самонесущих стен преимущественно ограничено зданиями средней этажности. Несмотря на исключительное разнообразие опробованных во всех странах систем разрезок наружных стен на сборные элементы, массовое применение получила только однорядная разрезка (панели высотой в этаж, протяженностью на одну-две комнаты). В ограниченном объеме для несущих наружных стен домов средней этажности применяют двухрядную или вертикальную разрезку, а для ненесущих стен домов различной этажности — горизонтальную.
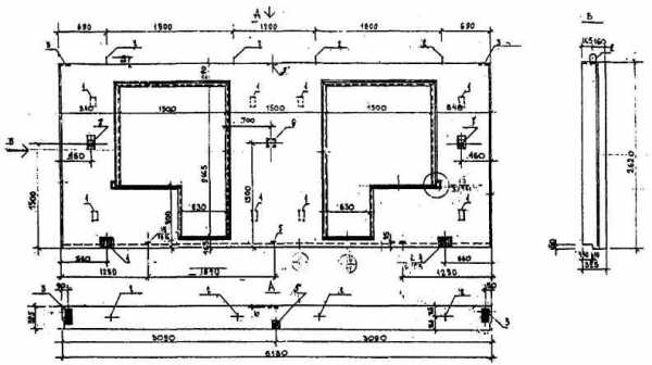
Панели наружных стен проектируют преимущественно бетонными одно-, двух- и трехслойной конструкции (рис. 1.2). Панели несущих стен формуют однослойными из конструктивно-теплоизоляционных бетонов на пористых заполнителях, для слоистых стен применяют тяжелый или конструктивный легкий бетон. Однослойные панели из ячеистого бетона автоклавного твердения применяют в несущих стенах домов средней этажности и в ненесущих стенах — без ограничений. Имеют место только технологические ограничения. Панели однорядной разрезки нуждаются в большегабаритных автоклавах, которыми оборудованы не все предприятия. В остальных случаях применяют двухрядную (на простеночные и перемычечные элементы) или горизонтальную разрезку.

Рис. 1.2. Бетонные панели наружных стен: а — однослойная; б — двухслойная; в — трехслойная; 1 -конструктивно • теплоизоляционный бетон; 2 — защитно-отделочный слой; 3 — конструктивный бетон; 4 — эффективный утеплитель
Панели несущих и самонесущих стен проектируют как внецентренно сжатые бетонные конструкции. Железобетонными являются лишь отдельные элементы: надоконные перемычки и узкие простенки. Однако, однослойные панели даже ненесущих стен содержат конструктивное армирование, необходимое для анкеровки стальных связевых элементов и для предохранения панелей от околов и трещин при транспортировании и монтаже. Блок для панели с проемом состоит из каркаса перемычки, вертикальных и горизонтальных каркасов по граням панели и проемов, подъемных петель и связевых элементов.

Рис.1.3. Схема армирования однослойной легкобетонной панели: 1 — арматурный каркас перемычки; 2 — подъемный элемент; 3 — контурный арматурный каркас; 4 — Г-образная арматурная сетка в фасадном слое
В панелях из ячеистого бетона арматуру защищают от коррозии путем предварительного гальванического оцинкования, либо применяя антикоррозийные пасты. В панелях из бетонов на пористых заполнителях (керамзита, перлита и др.) при межзерновой пористости до 3% антикоррозионные мероприятия не предусматривают.
Требования к бетонам однослойных панелей приведены в табл. 1.1.
Таблица 1.1. Нормативные ограничения величин физико-технических параметров бетонов однослойных панелей наружных стен
Тип бетона | Величины | ||
Класс бетона по прочности на сжатие, min | Марка по средней плотности, max | Марка по морозостойкости, min | |
Легкий бетон на пористых заполнителях | В2,5 | 1400 | 35 |
Автоклавный ячеистый | В2 | 800 | 25 |
Понятие «однослойная панель» условно, так как помимо основного бетонного слоя панель содержит наружный защитно-отделочный и внутренний отделочный слои. Фасадный защитно-отделочный слой легкобетонных панелей выполняют из паропроница-емых декоративных бетонов и растворов, либо из обычных растворов (с последующей заводской окраской), керамических и стеклянных плиток, тонких плит естественного камня, дробленых каменных материалов. С внутренней стороны на панель наносят отделочный слой раствора плотностью 1800 кг/м3 толщиной до 15 мм.
Наибольшая плотность и водонепроницаемость защитно-отделочного слоя достигаются при формировании панелей фасадной поверхностью «лицом» вниз, что гарантирует наибольшую прочность сцепления бетона панели с облицовкой.
В панелях, изготавливаемых из ячеистых бетонов, для фасадно-отделочного слоя применяют поризованные растворы плотностью 1300-1400 кг/м3, каменные дробленые материалы, мелкие керамические или стеклянные плитки, либо стойкие синтетические краски на основе ПВХ или ПВА.
Бетонные панели двухслойной конструкции имеют несущий и утепляющий слои: несущий — из тяжелого или конструктивного бетона, утепляющий — из конструктивно-теплоизоляционного легкого бетона плотной или пористой структуры. Несущий слой толщиной не менее 100 мм располагают с внутренней стороны. Для фасадно-отделочного слоя применяют те же материалы, что и в однослойных. При их изготовлении также наиболее целесообразно формирование «лицом» вниз.
Конструктивное армирование двухслойных панелей в целом аналогично применяемому для однослойных, но имеет следующие отличия: рабочая арматура перемычек и связевые элементы располагаются в несущем внутреннем слое, а фасадно-отделочный слой дополнительно армируют сеткой. При применении утепляющего слоя крупнопористой структуры расположенные в нем арматурные элементы защищают от коррозии.
Бетонные панели трехслойной конструкции имеют наружный и внутренний слои из тяжелого или конструктивного легкого бетона и заключенный между ними утепляющий слой. Минимальный класс по прочности на сжатие тяжелого бетона В15, легкого -В10. Для утепляющего слоя применяют материалы с коэффициентом теплопроводности в пределах 0,04-0,10 Вт/м°С — в виде блоков, плит или матов — стекло и минераловатные плиты, плиты пенополистирола, пеностекла, фибролита. В экспериментальном строительстве для утепления панелей используют заливочные пенопласты, полимеризующиеся в полости панели.

Рис.1.4. Схема армирования трехслойной панели с гибкими связями из отдельных стержней: 1 — каркас перемычки; 2 — подвеска; 3 — распорка; 4 -арматурная сетка наружного слоя; 5 -подкос
Бетонные слои панелей объединяют жесткими или гибкими связями (рис. 1.4).Конструкции гибких связей состоят из отдельных металлических стержней, которые обес печивают монтажное единство панели при независимости статической работы ее бетонных слоев. Гибкие связи не препятствуют температурным деформациям наружного бетонного слоя, исключая возникновение температурных усилий в несущем слоев. Гибкие связи не препятствуют температурным деформациям наружного бетонного слоя, исключая возникновение температурных усилий в несущем слое. Элементы гибких связей выполняют из стойких к атмосферной коррозии низколегированных сортов сталей или из обычной строительной стали с долговечным антикоррозионным покрытием. В трехслойных панелях нагрузка от массы наружного бетонного слоя и утеплителя передается через гибкие связи на внутренний бетонный слой. Наружный слой по требованиям долговечности проектируют толщиной не менее 65 мм и армируют стальной сеткой. Вдоль стыковых граней панели и проемов в ней наружный бетонный слой утолщают для устройства профилировки стыков и граней проемов. Толщину внутреннего слоя принимают по расчету, но не менее 100 мм по условиям анкеровки в нем стальных связевых элементов (закладных деталей, арматурных выпусков и пр.).
Наряду с гибкими в трехслойных панелях применяют и жесткие связи между бетонными слоями в виде армированных ребер из тяжелого или конструктивного легкого бетона. Жесткие связи обеспечивают совместную статическую работу бетонных слоев, защиту соединительной арматуры от коррозии и простоту изготовления. Но их применение сопровождается появлением теплотехнических недостатков: опасностью выпадения конденсата на внутренней поверхности стен в местах теплопроводных включений (соединительных ребер) при резком похолодании и дополнительными теплопотерями.
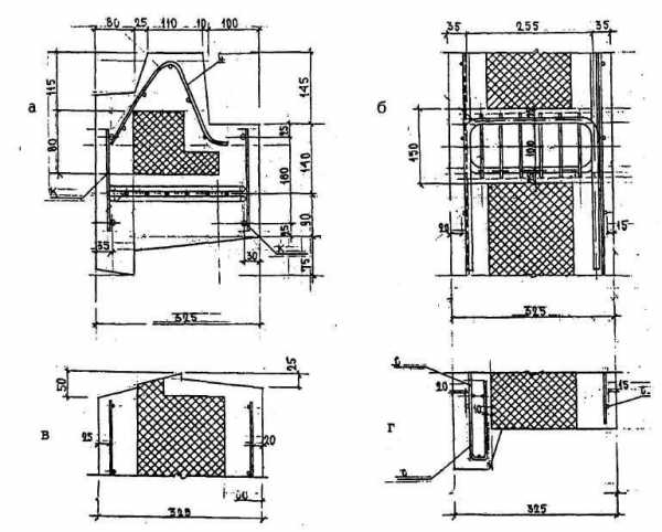
В Москве внедрен компромиссный вариант конструкции трехслойных панелей с отдельными жесткими железобетонными шпонками между бетонными слоями (рис. 1.5), (1.6).

Рис. 1.5. Трехслойная бетонная панель с бетонными шпоночными связями между слоями: 1 — бетонная шпонка; 2 — подъемная петля; 3 и 4 — закладные детали; 5 и 6 — связевые элементы; 7 — петлевой выпуск
Для фасадной отделки трехслойных панелей применимы все материалы, используемые при изготовлении однослойных.
Трехслойные панели имеют существенные преимущества перед одно- и двухслойными.Они заключаются в повышенной водонепроницаемости фасадного слоя, возможности в широком диапазоне менять несущую способность стены (за счет увеличения класса бетона, толщины несущего слоя, или его армирования) и ее теплозащитные качества (за счет применения утеплителей различной эффективности и сечения). Это делает конструкцию трехслойной стены универсальной — пригодной к применению в разных климатических условиях и с различными статическимифункциями.

Рис.1.6. Детали сечений трехслойной панели со шпоночными связями: а — армирование стыкового гребня; б — то же, соединительной шпонки; в — подоконных зон; г — надоконных зон
Однако до середины 1990-х годов в отечественной домостроительной промышленности преобладало производство однослойных панелей. В связи с резким возрастанием нормативных требований к энергосбережению и соответственно к сопротивлению теплопередаче наружных ограждающих конструкций однослойные конструкции для большинства климатических районов страны оказались неприемлемыми. Промышленность перестраивается на производство трехслойных панелей. Но и они в большинстве случаев оказываются пригодными лишь с самыми эффективными утеплителями (с коэффициентом теплопроводности в пределах 0,04…0,06 Вт/м °С). В этом случае из-за увеличения толщины утеплителя толщина стен может возрасти до 350-400 мм (раньше трехслойные панели имели унифицированную толщину 300 мм для всех районов с расчетной зимней температурой до -35°С), что влечет за собой реконструкцию бортовой оснастки форм на домостроительных заводах.
studfiles.net