виды модульных конструкций на второй этаж для дома и дачи (фото и видео)
Итак, если вы еще не знаете, что из себя представляют сборные лестницы на второй этаж – мы вам сейчас расскажем. Среди главных достоинств данных конструкций, в первую очередь, хотелось бы отметить легкость конфигурации и простоту сборки, в сочетании с высоким качеством изделий.
Элегантная конструкция, призванная преобразить ваш домВнимание!
При комбинации планировки данного типа лестниц вы можете получить любую необходимую геометрию и высоту, отталкиваясь исключительно на особенности планировки вашего дома.
Целый ряд особенностей и преимуществ
Монтаж производится практически без шума и без лишней пылиСовременные сборные модульные лестницы для квартир и частных домов отличает много различных положительных качеств:
- Универсальность – данные фактор позволяет своими руками изменять подъем ступени, проступь, сами габариты лестницы;
- Компактные размеры позволяют легко интегрировать изделие в любое интерьерное пространство;
- Богатый ассортимент комплектующих;
- Доступная цена;
- Сочетание дерева и металла делает модульные лестницы привлекательными, стильными, современными, а также открывает перед вами широкие возможности для недорогого декорирования.
Удобство и простота в использовании
В том случае, если в вашем доме два этажа, то вам попросту не обойтись без лестницы. Ни для кого не секрет, что по своей конструкции лестницы достаточно массивны и занимают слишком много места –чтобы не загромождать жизненно необходимое пространство, люди придумали сборные металлические лестницы, которые занимают гораздо меньшую площадь.
Более того, данный тип лестниц станет отличным дополнением к вашему дизайну. Чтобы приобрести данную конструкцию, вам требуется знать параметры вашего дома. В связи с тем, что данный тип изделий для дома легко устанавливается, вы самостоятельно можете определить необходимое количество модулей, для того чтобы лестница органично вписалась в помещение.
Модульные лестницы на больцах – эстетично, надежно и качественно
Что представляет собой сборная металлическая лестница на больцах? Вообще, изделия на больцах являются более современным вариантом модульных конструкций. Bolz (Больц) – стальной крепежный элемент, который соединяет ступени друг с другом.
Сами больцы(см. фото) предназначены для увеличения уровня прочности конструкции (их устанавливают по краям ступеней и притягивают болтами М8×50).
Виды различных больцов, которые предназначены для возведения бескаркасных лестницОсобенно востребованы больцы в случаях, когда ваша лестница располагается отдельно от стены и не имеет дополнительных точек опоры (на тех же стенах монтируются специальные крепления). Получается, что больцы просто не заменимы при установке независимых модульных конструкций.
Уже смонтированные больцы (стеновой и опорный)Что касается материала, из которого изготовлены данные устройства, то он представляет собой высокопрочный металл, отлитый в виде металлических трубок, которые нередко используются в качестве стоек для перил. Цвет больцов – черный или серебристый (напыляется порошковая краска).
Если говорить про ступени для лестниц на больцах, то они изготавливаются из хвойных пород древесины.
Элегантная металлическая конструкция, выполненная из металла и дереваВыгодное приобретение
Если говорить про сборные винтовые лестницы на больцах в целом, то их можно смело назвать доступным высококачественным изделием, которое широко востребовано населением. Об этом свидетельствуют такие эксплуатационные характеристики как устойчивость, долговечность и безопасность.
В случае покупки такого изделия, вы на долгие годы принесете в свой дом комфорт и удобство. Вас приятно удивит соотношение цены и качества.
Особенности
При покупке модульной лестницы также рекомендуется обратить свое внимание на ширину и высоту ступеней лестницы. Как и говорилось ранее – в сборных конструкциях вы можете самостоятельно отрегулировать высоту ступеней по собственному предпочтению.
Важно!
Помните, что не стоит делать лестницу слишком крутой – таким образом вы повышаете уровень риска получения травмы или падения при спуске/подъеме.
Оптимальными параметрами для средне ростового человека является высота ступени в 20 см, а ширина в 80 см. По такой лестнице очень легко подниматься и спускаться.
Деревянные модули
Сборные деревянные лестницы изготавливаются из прочных пород древесины, что позволяет эксплуатировать изделие на протяжении долгих лет. Помимо всего прочего, данная конструкция способна выдержать достаточно серьезные нагрузки, не превышающие 200 кг.
Самая главная особенность такого типа лестниц, является простота сборки. Такую конструкцию вы без проблем сможете собрать самостоятельно, опираясь на приложенную к лестнице инструкцию.
Больцы, отделанные деревом (для деревянных лестниц)- Помните, что нижний и верхний модули отличаются друг от друга –если в середину неважно какие модули вы поставите, то верхний и нижний модуль должны быть строго определены;
- Чтобы приобрести необходимое количество модулей, вам потребуется измерить высоту всего подъема, а затем самостоятельно разделить полученную величину на шаги. Средний шаг – 225 мм. Из полученного вами количества следует вычесть 2. Все требования для правильной установки изделия вы сможете найти в техническом паспорте, который прилагается к купленному товару.
В целом, получается, что сборная деревянная лестница для дачи не будет занимать много места и при этом принесет в ваш дом природную свежесть и элегантность. Такие изделия идеально подходят к стилю кантри, а также способны дополнить целый ряд современных дизайнерских решений.
Модульные конструкции 4-х видов
Вообще, принцип модульного построения лестниц позволяет возводить конструкции высотой от 0,5 м до 4,5 м высотой с выбранной вами геометрией спуска.
Несмотря на то, что ступени таких конструкций выполнены из дерева, каркас большей части изделий выполнен из металла. Собирать такие лестницы достаточно просто – модули попросту вставляются друг в друга (как обычный конструктор), поворачиваются под необходимым углом и затем фиксируются болтами.
С помощью такого «конструктора» вы без проблем сможете возвести симпатичную и прочную лесенку у себя дома, в коттедже или на даче.
Виды деревянных ступенейПо исследованию, проведенному независимыми экспертами различных компаний-производителей, деревянные ступени признаны самыми надежными и долговечными.
В целом, все евроступени, которыми оборудованы модульные лестницы, изготавливаются из букового или соснового мебельного щита. Покупать ступени следует только у проверенного производителя, который дает гарантию на свою продукцию. Опасайтесь некачественных подделок!
Помните!
Все производимые модульные лестницы, продаются и поставляются исключительно в разобранном виде, каждый элемент по отдельности.
Если вы покупаете сборную лестницу без перил и балясин, то такая конструкция будет стоит значительно дешевле.
Прямая лестница без перилТакже, межэтажные лестницы могут продаваться в различных комплектациях, которые без проблем поместятся даже в обычный легковой автомобиль. Данное обстоятельство очень удобно – транспортировать свою покупку вы можете самостоятельно, не прибегая к услугам грузоперевозчиков.
Устройство
Если в качестве примера рассмотреть деревянные модульные лестницы, то они состоят из металлокаркасов, а также закрепленных на них опор и перил. Каким же образом собирается данный тип лестниц?
Изначально устанавливается металлокаркас, на который потом последовательно крепятся ступени. На самих ступенях следует закреплять специальные опоры под поручни, а на них соответственно сами поручни и перила.
Каждый модуль конструкции способен выдержать до 250 кг. Для того чтобы возвести данное изделие вам не потребуется вызывать квалифицированных специалистов – все работы могут производится даже одним человеком, имеющим начальные навыки монтажника.
Среди богатого ассортимента деревянных конструкций, наиболее востребованными являются:
- Прямые конструкции из дерева;
- Дугообразные лестницы для дачи;
- Г-образные изделия;
- П-образные изделия, предназначенные для коттеджей.
Вывод
Элегантная модульная конструкция может быть, как внутренней, так и внешнейВот в принципе и все что вам необходимо знать. Данная инструкция предназначена для тех, кто еще только занимается ремонтом в своем доме, или стремится сделать его гораздо привлекательнее.
Если вам больше подходит винтовая сборная лестница, то ее вы также сможете приобрести в любом специализированном магазине, где вам помогут подобрать именно то изделие, которое вам действительно нужно.
В представленном видео в этой статье вы найдете дополнительную информацию по данной теме.
sdelai-lestnicu.ru
Сборные лестницы по стальным балкам
Конструкции лестниц из мелкоштучных элементов — отдельных железобетонных ступеней, площадок, балок и косоуров применяют для тех зданий, где не проходят по габаритам крупноразмерные сборные изделия (для наружных входов, для цокольных маршей, внутри вестибюлей и др.), а также в зданиях, возводимых по индивидуальным проектам с нетиповыми габаритами.
рис. 24. Лестницы из сборных железобетонных ступеней по стальным косоурам

Возможны два варианта устройства лестницы из сборных железобетонных ступеней: с фризовыми ступенями и без них (рис. 24). Применение фризовых ступеней делает лестничные площадки прямоугольными. Сами фризовые ступени (верхняя и нижняя) становятся частью площадки, то есть ширина лестничной площадки должна рассчитываться вместе с шириной проступи фризовых ступеней. В лестницах без фризовых ступеней верхняя ступень тоже становится элементом площадки, что придает ей Г-образную форму. Кроме того, сама лестница становится длиннее, чем лестница с фризовыми ступенями. Это получается за счет того, что в лестницу той же высоты и уклона приходится добавлять ступеньку. Площадки в конструкциях лестниц, как правило, изготавливаются из монолитного бетона и заливать их столь толстыми, не всегда оправдано — большой объем бетона утяжеляет площадку, требует усиленного армирования и мощных подплощадочных балок. Легче добавить в лестничные марши по ступеньке, а площадку сделать толщиной 80–100 мм.
Косоуры лестниц изготавливаются из двутавровых или швеллерных балок (рис. 25). При использовании косоуров с двумя перегибами на балках предварительно вырезаются клинья либо изготавливаются короткие заготовки. Балки нагреваются, загибаются и свариваются. На место стыкования дополнительно приваривается пластина из стального листа. Она увеличивает длину сварного шва и делает узел крепче.

рис. 25. Последовательность изготовления лестницы из сборных железобетонных ступеней по стальным косоурам
Подплощадочные балки также изготавливаются из швеллера или двутавра.
Монтаж косоуров производится подъемным краном или вручную, если есть достаточное количество рабочих. Сначала устанавливается нижняя часть косоура и прикрепляется к площадочной балке болтом, затем заводится верхняя часть и тоже прикрепляется болтом. При необходимости подплощадочные балки могут быть подвинуты по горизонтали и вертикали. После того как будут выверены все размеры (ширина площадок, высотные отметки и уклоны маршей), подплощадочные балки закрепляются в нишах окончательно и замоноличиваются. Окончательное закрепление косоура к подплощадочной балке производится электросваркой.
Марши лестниц делают из сборных железобетонных ступеней (массивных сплошных или облегчённых пустотелых), реже из естественных камней твёрдых пород. Чаще всего применяются стандартные железобетонные наборные ступени 310×140, 300×150, 290×160, 280×170 мм, длиной 1100, 1200, 1400 мм. Такие ступени весят порядка 60–80 кг, так что с их укладкой могут справиться два человека. Ступени укладываются снизу вверх, одна к другой, и удерживаются за счет специальных пазов в нижней части ступени и собственного веса. На край ступени кельмой набрасывается цементно-песчаный раствор и укладывается следующая ступень. В нижней части ступени имеется закладная деталь, которой они привариваются к косоурам. Впоследствии ступени могут быть облицованы мраморными или гранитными проступями. В этом случае толщина проступей должна быть учтена при выборе высоты заливки лестничных площадок.
Лестничные площадки выполняются на месте строительства из монолитного железобетона либо их собирают из готовых железобетонных плит, укладываемых на подплощадочные балки. Площадки из монолитного бетона обычно армируются арматурной сеткой, связанной из рифленых стержней диаметром не менее 10 мм и шагом стержней в обоих направлениях не более 200 мм. Нижний слой бетона (20 мм), который необходим для защиты арматуры от коррозии, формируется установкой вертикальных хомутов.
Дата добавления: 2017-11-30; просмотров: 510;
znatock.org
Винтовая сборная лестница – экономия пространства и оригинальность
Благодаря своей компактности, винтовая сборная лестница считается очень популярной среди владельцев загородных домиков и дач, имеющих небольшие размеры. Но довольно часто ее можно встретить в просторных холлах и даже офисах. Подобные конструкции значительно экономят полезную площадь помещений. Они просты и экономичны, хотя не всегда удобны. К примеру, занести мебель на второй этаж по винтовым лестницам будет проблематично.
Производители выпускают готовые конструкции лестниц, созданные по типовым проектам, которые не отличаются высокой стоимостью. Но владелец может заказать индивидуальную схему, размеры, расчет, дизайн и подбор материалов, в соответствии с собственными вкусами и спецификой жилища.
Особенности конструкции
Исключительность винтовых лестниц заключается в том, что устанавливаться они могут в помещении в любом доступном месте. Многие из моделей нет необходимости крепить к стенам или косоурам. Посередине конструкции располагается несущая опора, на которой фиксируются ступени. По наружному радиусу они могут иметь различные варианты крепления и ограждения, в зависимости от месторасположения лестницы и ее внешнего вида.
Винтовая сборная лестница имеет характерную форму в виде закрученной спирали и состоит из расположенных веером забежных ступеней, имеющих в плане трапециевидную форму. Некоторые модели комплектуются проступями оригинальной конфигурации, называемыми «утиный шаг». Они позволяют устранить основной недостаток винтовых лестниц – недостаточную ширину ступени. Называют такие конструкции – «самба» за схожесть с движениями в танце. Ступать на проступи следует с «правильной» ноги, иначе можно сбиться. Используют такие лестницы крайне редко, так как они не отличаются особым комфортом.
Винтовая лестница может заканчиваться выходом на следующий этаж или на обзорную площадку, которая поставляется вместе с конструкцией или приобретается отдельно. Как правило, данные лестницы имеют отдельные модули, разработанные таким способом, чтобы их можно было самостоятельно собрать. Изготовители сопровождают свою продукцию пошаговыми инструкциями по монтажу каждой отдельно взятой модели.
Центральная опора представляет собой толстостенную стальную трубу, диметр которой составляет не менее50 мм. Она может быть цельносварной или состоять из сборных элементов. Стойка должна быть расположена строго вертикально и забетонирована, либо закреплена при помощи анкерных болтов. Из нержавеющей, или имеющей гальваническое покрытие, стали изготавливают несущие конструктивные элементы. Подступенки в винтовых лестницах, как правило, отсутствуют. Это позволяет становиться на проступь всей ступней, что безопасно и достаточно удобно.
Для ступеней используют различные материалы:
- дерево;
- искусственный или натуральный камень;
- пластик;
- триплекс;
- акрил.
Толщина ступеней напрямую зависит от материала изготовления и составляет от 30 до 60 мм. Их длина определяется функциональностью винтовой лестницы. Если она будет использоваться в качестве основной, то размер ступеней должен быть не менее 900 мм, если дополнительной (например, для подъема на чердак или мансарду) – 550-600 мм. Проем в перекрытии делается более 2000 мм в первом случае и 1400 мм– во втором.
Ограждение лестницы служит ее украшением. От него во многом зависит внешний вид всей конструкции, ее массивность или невесомость.
Основная классификация
Винтовые лестницы имеют четыре разновидности конструкций, отличающихся схемой крепления ступеней.
- С двойной опорой: на столб — с внутренней стороны и на стены – с наружной. Клинообразные ступени узким утолщенным концом подсоединяют к находящейся посередине опоре в виде металлического или каменного столба. С широкого конца в качестве опорной конструкции используются окружающие лестницу стены;
- С консольным защемлением на внутреннем монолитном столбе. Крепление к периметральной стене здесь не требуется. Опорой служат отдельные, жестко закрепленные с внутренней стороны лестницы, ступени;
- С опорой на специальные гнутые тетивы. Особенностью данного типа является отсутствие средней опорной трубы. Конструкция предусматривает крепление ступеней к тетивам, переходящим в несущие перила. Подобные винтовые лестницы достаточно необычны и очень красивы, но их недостаток заключается в сложности изготовления, монтажа и, как следствие, в высокой стоимости;
- С консольным креплением к несущему центральному стержню. Данный вид наиболее распространен. Основой винтовой лестницы данного типа является металлическая толстостенная труба, исполняющая роль несущей конструкции.
Любая из разновидностей конструкций винтовых лестниц должна отвечать требованиям безопасности, выдерживать предусмотренные нагрузки, иметь дополнительный запас прочности и выполнять функциональное предназначение.
semidelov.ru
варианты и особенности лестничной конструкции на одном или нескольких косоурах, фото и видео монтажа
Популярность изготавливаемых из металла сборных лестничных конструкций обусловлена простотой их монтажа и многообразием модельного ряда. Они не затеняют и не загромождают комнату. Межэтажная лестница на металлическом косоуре выглядит элегантно в любом интерьере. А в случае сооружения ее на улице отличается несомненной надежностью.
Современные лестницы на косоуре из стали прочны, радуют взор, экономят пространство в комнате и служат долгие годыОднако при выборе и сборке таких конструкций необходимо учитывать ряд их особенностей, иначе использоваться по прямому назначению они будут недолго. Представленные ниже видео и фото обязательно помогут вам грамотно выбрать лестницу на косоурной опоре для своего дома.
Варианты лестниц на несущих балках из металла
Косоур является несущим элементом лестничной конструкции, наклонной балкой под ступенями. Он может быть выполнен из дерева либо металла. Первый вариант красив, но второй предполагает заведомо большую прочность и надежность. В сравнении с деревянной металлическая балка выглядит менее громоздко, а нагрузки способна вынести более высокие.
В отличие от варианта конструкции на тетиве, торцы ступеней на косоуре остаются открытымиСборные лестницы обустраиваются на одном металлическом косоуре либо нескольких. Здесь все зависит от размеров лестничного марша и общего дизайна интерьера. Балка может быть ломаной или прямой. Во втором случае на нее для ступенек приходится монтировать специальные подставки.
Ступени на ломаном косоуре крепятся непосредственно в уступыЕсли ширина лестничного марша превышает полтора метра, то для него придется ставить два или несколько косоуров. Монобалка в этом случае вряд ли выдержит общий вес сооружения. Да и надежность крепления широкой ступени в одной точке получится низкой.
На косоуре изготавливаются все существующие типы лестниц (прямые, угловые, винтовые, закругленные, поворотные и т.д.), конструктивных ограничений здесь нетСуществует два способа изготовления для лестницы косоура из металла:
- Сваркой стальной рамы из швеллера, труб, уголков и профилей.
- Сборкой готового изделия заводского исполнения.
Без навыков работы со сварочным аппаратом браться за изготовление несущей балки первым способом не рекомендуетсяКак минимум, итоговый результат будет в плане красоты далек от идеала с фото дизайнерских интерьеров. А если нужна не только эстетичная, но и надежная лестница, то лучше сразу остановить свой выбор на одной из сборных моделей в нашем магазине либо заказать проект под индивидуальные размеры.
Готовые сборные лестницы на косоуре – это возможность экономии на установке за счет монтажа своими рукамиВариантов готовых «конструкторов» для самостоятельной сборки у нас много. Вы быстро найдете наиболее подходящую под ваш дизайн конструкцию. А дальше остается только просмотреть фото и видео с инструкциями по сборке и взяться за инструмент.
Для монтажа сборной лестницы на одном или нескольких стальных косоурах потребуются лишь базовые навыки обращения с гаечным ключомВыбор материала для ступеней и ограждения
Основа рассматриваемой косоурной лестницы выполняется из металла. Но надо еще выбрать материал для изготовления иных элементов этой лестничной конструкции.
Ступени на косоуре могут быть сделаны из:
Использование прочного стекла в сочетании с нержавейкой перил и балок привносит в интерьер атмосферу невесомости
Стальные ступеньки делаются из листового материала с перфорацией либо в виде решетки
Монолитный бетон под ногами – это массивность и незыблемость, но только при профессиональном расчете нагрузок на основу- массива дерева;
Цельная древесина – самый популярный и эстетичный материал для ступеней
МДФ является бюджетным заменителем дерева с хорошей долговечностью при условии наличия слоя ламинацииДля формирования ограждения лестницы на косоуре можно использовать те же материалы, что и для ступеней. Лишь бетон здесь будет неуместен и слишком тяжел. Нередко дизайнеры рекомендуют использовать не один материал, а комбинировать несколько. Но многое в этом вопросе зависит от общего стиля помещения с лестницей. Главное, чтоб создаваемая конструкция получилась безопасной.
Плюсы использования косоурных опор
Сборные лестницы на косоурах отличаются надежностью получаемой конструкции и ее долговечностью. Металл после должной обработки на вид получается вполне эстетичным и аккуратным. Стальные косоуры вписать можно в любой дизайн. Это видно и на фото завершенных интерьеров, и на видео с уже готовыми лестницами.
Опорная стальная балка лестницы выглядит опрятно и элегантно, никакой громоздкости от наличия в комнате металла нетМеталлические косоуры имеют высокую:
- Огнестойкость.
- Несущую способность.
В отличие от деревянного косоура, опорная балка из металла по определению не сгорит и не загниет- Прочностные характеристики.
По конструктивной прочности косоурные конструкции дадут фору многим иным разновидностям лестниц- Износостойкость.
- Сопротивляемость гниению и различным внешним воздействиям.
Лестница на металлическом косоуре может выглядеть эфемерной и ненадежной, однако она отличается повышенной долговечностью и прочностьюОсобенности сборных конструкций на косоурах
Несущие косоуры лестниц устанавливаются с опорой прямо на стену либо на специально уложенные для них вертикальные лобовые балки. В первом случае на конце швеллера должна иметься пластина, выполняющая роль распределительной подушки.
Если опорной накладки нет, то лестничная балка попросту продавит стеновую поверхность весом лестничной конструкцииЭту особенность лестниц на косоурах обязательно надо учесть при разработке проекта. Иначе надежность сооружения окажется под большим вопросом. Вся нагрузка от конструкции и перемещающихся по ней людей в данном случае воздействует на точку соединения опорной балки и стены.
Наклон для лестничного марша на косоурах подбирается по обычной схемеКобылка (подставка) под ступени на косоуре крепится с помощью болтов либо сваркой. Болтовое соединение со временем неизбежно ослабнет. Собирать подобную конструкцию проще, нежели сваривать для нее металл. Однако потом в процессе эксплуатации крепежи лестницы придется регулярно проверять и подкручивать.
Ступени к косоурам крепятся с помощью дополнительных наборных элементовМеталлическая основа позволяет сделать лестницу любой формы. Даже готовые сборные конструкции отличаются разнообразием модельного ряда. А по проекту на заказ можно вообще реализовать самую экзотическую задумку, металл способен выдержать многое.
Если под деревянную ступень на косоуре закрепляется металлическая пластина, то последняя не должна выглядывать из-под пиломатериалаПравильно собранный металлический косоур – это главная гарантия прочности и долговечности лестницы на нем.
Главной особенностью таких конструкций является необходимость выбора надежной опорной точки на стене под балку, куда будет давить все сооружение. Выбирайте в нашем интернет-магазине модель сборной лестницы с самой выгодной ценой в Москве. Собрать ее сможет даже начинающий мастер, сложного в ее монтаже нет ничего.
lestnicymaster.ru
Сборные лестницы — Как сделать ремонт квартиры самостоятельно?
Несмотря на то, что любые лестницы можно собирать из готовых элементов, до последнего времени такие детали выпускались лишь для немногих типов лестниц (рис. 1). В число этих лестниц входили уже известные нам цепные, а также прямые одномаршевые и сборные винтовые лестницы.

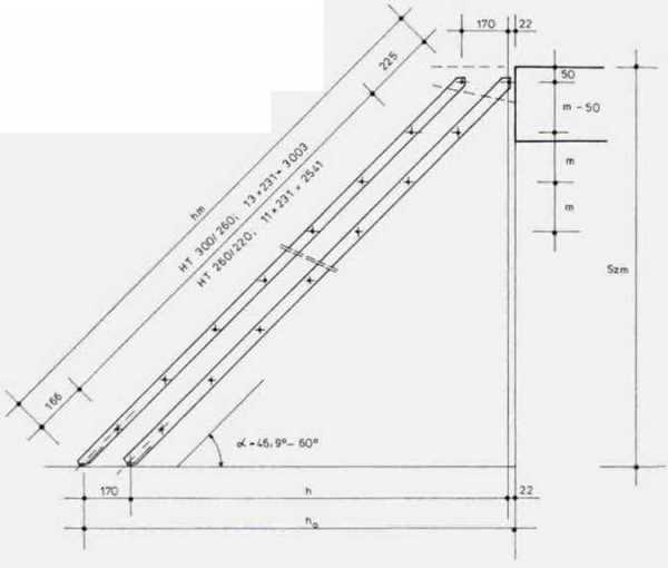
Рис. 1. Узловая зарисовка сборной деревянной лестницы с оригинальной металлической несущей конструкцией (схема ее сборки):
Прямая одномаршевая лестница может оснащаться как с обычными ступенями, так и со ступенями, предназначенными для компактных лестниц при разнице высот между уровнями в пределах 2,20-2,60 и 2,60-3,00 м, и с шарнирными хребтовыми несущими конструкциями двух размеров (рис. 2 и 3). Угол подъема/спуска таких лестниц равен 46,9-60, что зависит от хребтовой опорной конструкции, габаритов лестницы и разницы высот между уровнями.

Рис. 2. Хребтовая опорная конструкция компактной шарнирной лестницы и параметры ее расчетов.


Рис. 3. Устройство компактной лестницы: а) горизонтальная проекция; b) горизонтальная проекция несущей конструкции; с) вид спереди; d) вид сбоку; е)…g) фрагменты;
А промежуточная консоль; В скрепляющий верхний элемент ступени; С несущая конструкция; D основные ступени; Е верхняя фризовая ступень.
Таблица 1. Параметры прямой компактной лестницы.
| Тип | Szm, mm | а, o | Размеры, mm | |||
| hm | h | h0 | m | |||
| HТ-300/260 | 3,00 | 60,4 | 3394 | 1676 | 1868 | 200 |
| 2,95 | 58,7 | 1763 | 1955 | 196 | ||
| 2,90 | 57,1 | 1843 | 2035 | 193 | ||
| 2,85 | 55,6 | 1917 | 2109 | 190 | ||
| 2,80 | 54,1 | 1991 | 2183 | 187 | ||
| 2,75 | 52,7 | 2056 | 2248 | 183 | ||
| 2,70 | 51,3 | 2123 | 2315 | 180 | ||
| 2,65 | 49,1 | 2253 | 2445 | 177 | ||
| 2,60 | 48,7 | 2240 | 2432 | 173 | ||
| НТ-260-220 | 2,60 | 60,4 | 2932 | 1448 | 1640 | 200 |
| 2,55 | 58,5 | 1531 | 1723 | 196 | ||
| 2,50 | 56,7 | 1609 | 1801 | 192 | ||
| 2,45 | 54,9 | 1686 | 1878 | 188 | ||
| 2,40 | 53,3 | 1751 | 1943 | 185 | ||
| 2,35 | 51,7 | 1816 | 2008 | 181 | ||
| 2,30 | 50,1 | 1881 | 2037 | 177 | ||
| 2,25 | 48,6 | 1940 | 2132 | 173 | ||
| 2,20 | 47,2 | 1991 | 2183 | 169 | ||

Рис. 4. Сборная винтовая лестница с трубчатой центральной стойкой:

Рис. 5. Сборная винтовая лестница с трубчатой центральной стойкой и возможностью изменять высоту подступенка:


Рис. 6. Винтовая лестница с центральной опорной стойкой, полностью собранная из готовых деталей: а) вид сбоку и вертикальный разрез; b) фрагмент; с) схема скрепления элементов;

Рис. 7. Винтовая лестница с центральной опорной стойкой, собранная из малых готовых элементов: а) вид сбоку и вертикальный разрез; b) фрагмент; с) схема скрепления элементов;

Винтовая лестница со ступенями, крепящимися винтами к опорной стойке из экструдированной профилированной алюминиевой трубы. Монтаж готовых элементов производится на месте

Рис. 8. Готовые элементы телескопической винтовой лестницы:

Рис. 9. Телескопическая винтовая лестница с нижней втулкой:

Рис. 10. Телескопическая винтовая лестница с верхней втулкой:
spravochnik-stroitelya.ru
Сборная лестница из сосны: секреты монтажа
Содержание:
1. Начнём с преимуществ
2. Основные составляющие элементы лестницы
Начнём с преимуществ
Любая конструкция будет отличаться прочностью, надежностью и долговечностью лишь в том случае, когда все ее составные элементы отличаются своим отменным качеством.
Если говорить о деревянных лестницах, то с ними ситуация точно такая же, но особое внимание следует уделить также вопросу подбора конкретного сорта древесины.
Большинство мастеров отдают предпочтение сосне, которая отличается многочисленными преимуществами:
- достаточный уровень упругости древесины;
- устойчивость к воздействию влаги и сырости;
- прочность и долговечность;
- общедоступность материала;
- незначительный удельный вес;
- адекватная цена.
Варианты из других типов древесины в любом случае будут более массивными и громоздкими, да и стоимость самих конструктивных элементов окажется гораздо выше.

Что касается чисто технической стороны процесса сборки лестницы, то он требует придерживаться очевидного правила «семь раз отмерь — один раз отрежь». Лишь в таком случае не возникнет проблем в процессе сборки, а подгонка всех комплектующих элементов будет идеальной.
Для обеспечения подобного результата следует сделать предварительную разметку будущей лестницы с учетом всех ее конструктивных особенностей и требований к элементарной безопасности эксплуатации.
Основные составляющие элементы лестницы
Поскольку конструкция лестницы состоит из большого количества различных элементов, подбирать их необходимо в соответствии с конкретными техническими требованиями.
Примечательно, что далеко не все из них могут понадобиться ввиду особенностей размера, конструкции и прочих дополнительных параметров проектируемой конструкции.
Колонна. Этот элемент будет актуален в лестницах винтового типа или же в качестве несущей конструкции для лестниц с большой длиной пролета.
Ступени. В большинстве случаев их размер и форма соответствуют определенным типоразмерам, но для некоторых ситуаций необходимо подбирать нестандартные размеры, причем не только по ширине или глубине, но и толщине самой ступени.
Разворотная площадка. Применима только в тех случаях, когда лестница состоит из двух и более пролетов. Размеры ее могут быть самые разные, как и конструкция крепления к опорным частям.
Поручень. Относится к ограждающим конструкциям лестницы, поэтому к нему должны выдвигаться повышенные требования в плане надежности, прочности и устойчивости к механическим воздействиям.
Все прочие конструктивные элементы несут более декоративный характер, поэтому требования к их прочности не так велики. Чтобы ознакомиться с полным перечнем необходимых материалов, основными типоразмерами и примерной стоимостью, всю необходимую информацию моно получить на сайте http://mir-derevo.ru/catalog/lestnitsy-i-komplektuyuschie. Там собраны самые разные варианты составных элементов лестниц различного типа из самых популярных сортов древесины.
otopleniedomov.com
модульные, стеклянные, сборные на мансарду и комплектующие к ним
Небольшие размеры стандартной квартиры требуют оригинальных композиционных решений. Готовые винтовые лестницы выделяются эргономичностью и помогают организовать функциональное рабочее пространство.

Основательная лестница с широкими ступенями
Достоинства готовых винтовых лестниц
Неоспоримое преимущество – эффектный внешний вид – не единственный плюс конструкций.

Наружная спираль — металлические соты
В число прочих можно отнести эргономичность, поскольку основной объем элементов полотна приходится не на пол, а на область вокруг центрального столба.

Литые ступеньки — назад к истокам!
Сравнительно небольшое количество материалов для самостоятельной сборки и крепежа по сравнению со стандартными лестницами также позволяет сократить расходы. Простота монтажа и замены элементов делает установку и ремонт быстрыми и недорогими. Дополнительные комплектующие для лестниц – резиновые накладки на ступени, рифленые насадки и уголки помогут сделать подъем удобным и безопасным.
Компактные и яркие винтовые лестницы – оптимальное решение для небольшой квартиры или загородного дома, помогающее зонировать и организовывать площадь.
Виды и дизайн винтовых конструкций
Важно: среди основных преимуществ готовых и сборных лестниц выделяются эргономичность и оригинальный внешний вид. Изящные «змейки» не перегружают пространство и не загромождают помещение.
Материалом для модульных и прочих типов конструкций может выступать камень, металл, дерево, стекло и пластик. При выборе и проектировании полотна не стоит забывать про особенности ухода – натуральное дерево нуждается в защите, а кованные и пластиковые детали требуют специальных чистящих средств.
Декоративные элементы винтовой лестницы должны совпадать с оформлением помещений; нейтральные модели полотен без стилистической нагрузки подойдут для любого интерьера.
Всевозможные комбинации вышеперечисленных компонентов дают простор для фантазии, а количество готовых моделей позволяет выбрать лестницу на любой вкус и кошелек.
Отличия между всеми четырьмя типами винтовых полотен состоят в особенности крепления центрального столба и ступеней, но они не влияют на зрительное восприятие лестницы.

Роскошь литья в дизайне лестницы
Материалы для винтовых полотен
Металлические конструкции с коваными элементами – один из трендов последнего десятилетия. Модели этой категории отличаются простотой линий и форм, монохромной гаммой и выраженной аскетичностью оформления.
Лестницы из различных сплавов оживляют помещение и вносят динамику в минималистичные, строгие интерьеры.
Комбинированные варианты (каркас из металла и ступеньки из пластика) делают помещение ярким и праздничным, поскольку поверхность ступеней может иметь не только оригинальную текстуру, но и любой оттенок.
Каменные лестницы – добротные и монументальные, но подобные модели имеет смысл устанавливать в просторных залах, чтобы придать интерьерам классический вид и создать атмосферу старинного поместья.
Легчайшие конструкции из триплекса будут смотреться органично в хай-теке; в офисных помещениях они особенно удобны.
Совет: в городской квартире стеклянные винтовые лестницы нуждаются в защитном покрытии, если в доме есть маленькие дети или питомцы.

Калейдоскоп винтовых стеклянных лестниц
Основные параметры конструкций
Главное преимущество винтовых конструкций заключается в возможности адаптировать их под условия конкретного помещения. Поэтому важно определить смысл той или иной характеристики:
- Высота. Готовые модели могут обеспечивать доступ ко второму этажу, поэтому при их монтаже следует учитывать расстояние от пола до потолка. Типовые значения варьируются в диапазоне от 2,5 м до 3,5 м.
- Количество ступеней. Напрямую зависит от общей высоты конструкции, но чаще всего составляет 10-15.
- Шаг и высота подъема. Характеристики определяют расстояние между соседними рабочими поверхностями.
- Ширина ступеней. В среднем насчитывает от 0,5 м до 1,2 м, от чего зависят общие габариты модульного полотна.
- Угол поворота ступеней. Одна из важнейших величин при проектировании винтовых вариантов. От нее зависит крутизна подъема и комфорт при перемещении.
- Несущая нагрузка. Рассчитывается как предельное количество кг на 1 м² ступени. Определяется не только материалом полотен, но и особенностями конструкции в целом.
Сделать так, чтобы винтовая лестница, ведущая на мансарду или чердак, была одновременно компактной, прочной и изысканной – довольно сложная задача. Объединить отменные рабочие характеристики и нестандартные дизайнерские решения можно с помощью приобретения дополнительных комплектующих.

Ступени и ограждение из закаленного стекла
Основные и вспомогательные элементы винтовых лестниц
При изготовлении типовых моделей производители, как правило, учитывают лишь наиболее распространенные условия эксплуатации, а в оформлении упор ставится скорее на универсальность конструкции. Для желающих получить действительно уникальную лестницу существует возможность дополнить массив самостоятельно.
Круглые и квадратные винтовые лестницы включают в себя:
Грамотная компоновка вспомогательных элементов помогает сделать сборные и модульные винтовые конструкции более функциональными, эргономичными и надежными.
Монтаж винтовых полотен
Самостоятельная сборка винтовых лестниц или конструкций произвольной формы может доставить немало неудобств, если предварительные расчеты были сделаны с погрешностью или при неточном исполнении основных элементов.

Изящество винтовой лестницы на мансарду
Обращать внимание следуют на такие нюансы:
- Тип крепления верхней части столба (центральный или боковой).
- Угол поворота каждой ступени.
- Регулировка шаговой высоты.
- Определение точного места стыковки верхней и нижней частей столба.
- Точность крепления каждого винтового модуля.
Балясины и прочие декоративные элементы монтируются в последнюю очередь; установку следует начинать с нижней части конструкции.
Важную роль играют инструменты: уровень для проверки точности установки, промышленный фен для изгибания и прогрева поручней ПВХ или других деталей, дрель, набор линеек, сверла и болты.
Необычный внешний вид винтовых лестниц делает интерьер воздушным и помогает «оптимизировать» полезное пространство. Разнообразие материалов, моделей и конструкций вызывает трудности при оформлении интерьера квартиры, а ваши советы обязательно помогут всем желающим обзавестись оригинальной и удобной винтовой лестницей.
Загрузка…makeladder.com