Применение железобетонных лотков для теплотрасс
Применение
Железобетонные лотки для теплотрасс настолько надежны и имеют столь широкий ряд типоразмеров, что кроме основного предназначения — защиты именно трубопроводов горячего водоснабжения и их изоляции от повреждений в результате воздействия внешних факторов (избыточного давления, талых и грунтовых вод, подвижки грунта, утечки термоизолирующего воздуха, порчи грызунами) используются гораздо более широко. Они могут работать в условиях высокой (до 9 баллов) сейсмичности, высокого уровня грунтовых вод, большой просадки грунта. В них прокладывают не только трубы для транспортировки различных жидкостей, но и кабельные инженерные сети подземных коммуникаций, с их помощью обустраивают системы очистки, сточные канавы, коллекторы и гидросооружения. Они используются в качестве желобов ливневки и дренажных систем.
Итак, железобетонный лоток для теплотрассы — строительный элемент для прокладки каналов различного назначения.
Лоток в виде П-образного желоба вместе с плитой перекрытия образует железобетонный герметичный тоннель, надежно изолирующий от воздействия не только природных и физических, но и технологических и биологических факторов. Полная герметичность, которой добиваются обработкой конструктивных элементов и стыков водонепроницаемыми материалами, гарантирует отсутствие внутри короба влаги, что предохраняет от коррозии внутренние коммуникации и трубопроводы и существенно увеличивает их срок службы.
Типоразмеры
Лотки для теплотрасс различаются по размеру и форме. Лотки выпускаются квадратной, прямоугольной, трапециевидной и полукруглой формы. Их максимальная длина составляет четыре метра, а высота не превышает 1,68 метра.
По длине лотки имеют следующие виды:
-
Доборные длиной от 0,42 до 0,72 метра
-
Стандартные длиной от 0, 72 до 1,5 метра
-
Каналы длиной от 1,5 до 1,8 метра
-
Туннели длиной от 1,8 до 4 метров
Лотки теплотрасс выпускаются прямоугольные ( маркируются с буквы Л ), имеющие внутреннее закругление в нижней части ( маркировка начинается с букв ЛК ) и угловые (маркируемые с букв ЛУ ), применяемые для стыковки в местах изменения направления теплотрасс.
Все лотки имеют стандартизированные размеры и соответственный объем, наименьший у доборных конструкций.
Каналы по методу укладки подразделяются на следующие виды:
-
КЛ — Плиты перекрытия находятся сверху лотков
-
Клп — Плиты перекрытия находятся снизу и сверху на них монтируются сами лотки
-
Клс — Лотки устанавливаются друг на друга и крепятся металлическими швеллерами. Высота внутреннего пространства внутри них достигает 1метра 80 см и может вместить человека
Лотки имеют в маркировке следующие обозначения: первая буква Л обозначает тип конструкции — лоток, первая цифра обозначает типоразмер, вторая — допустимую расчетную нагрузку. Буква «д» обозначает укороченную в два раза модель. Также приводится информация о производителе и дате изготовления.
Свойства железобетонных лотков
Железобетонные лотки (ЖБИ) изготавливаются в соответствии с ГОСТ 13015-2003по технологии вибропрессования из тяжелого высококачественного бетона,хорошо работающего как при высоких, так и при низких температурах, экологически чистого, не горючего, не подверженного гниению и коррозии и удовлетворяющего следующим требованиям:
-
Допускается использование бетона марки н ниже М300
-
Частицы наполнения не крупнее15 мм
-
Не допустимы активные добавки
-
Прочность сжатия не ниже 22,5В
-
Водопроницаемость изделия должна быть не ниже W4
-
Бетон должен выдерживать не менее 200 циклов замораживания — размораживания
Бетон должен иметь арматуру из высокопрочной стали с классами А-I, A-III или Вр-I, надёжно сцепляющуюся с бетоном.
Метод канальной технологии с использованием лотков остаточно экономичен, сохраняет прочность конструкции под высокими весовыми и динамичными нагрузками в сложных внешних условиях, ускоряет и облегчает прокладку теплотрасс, обеспечивает качественную эксплуатацию и профессиональное техническое обслуживание, быстрый ремонт благодаря легкому доступу к коммуникациям.
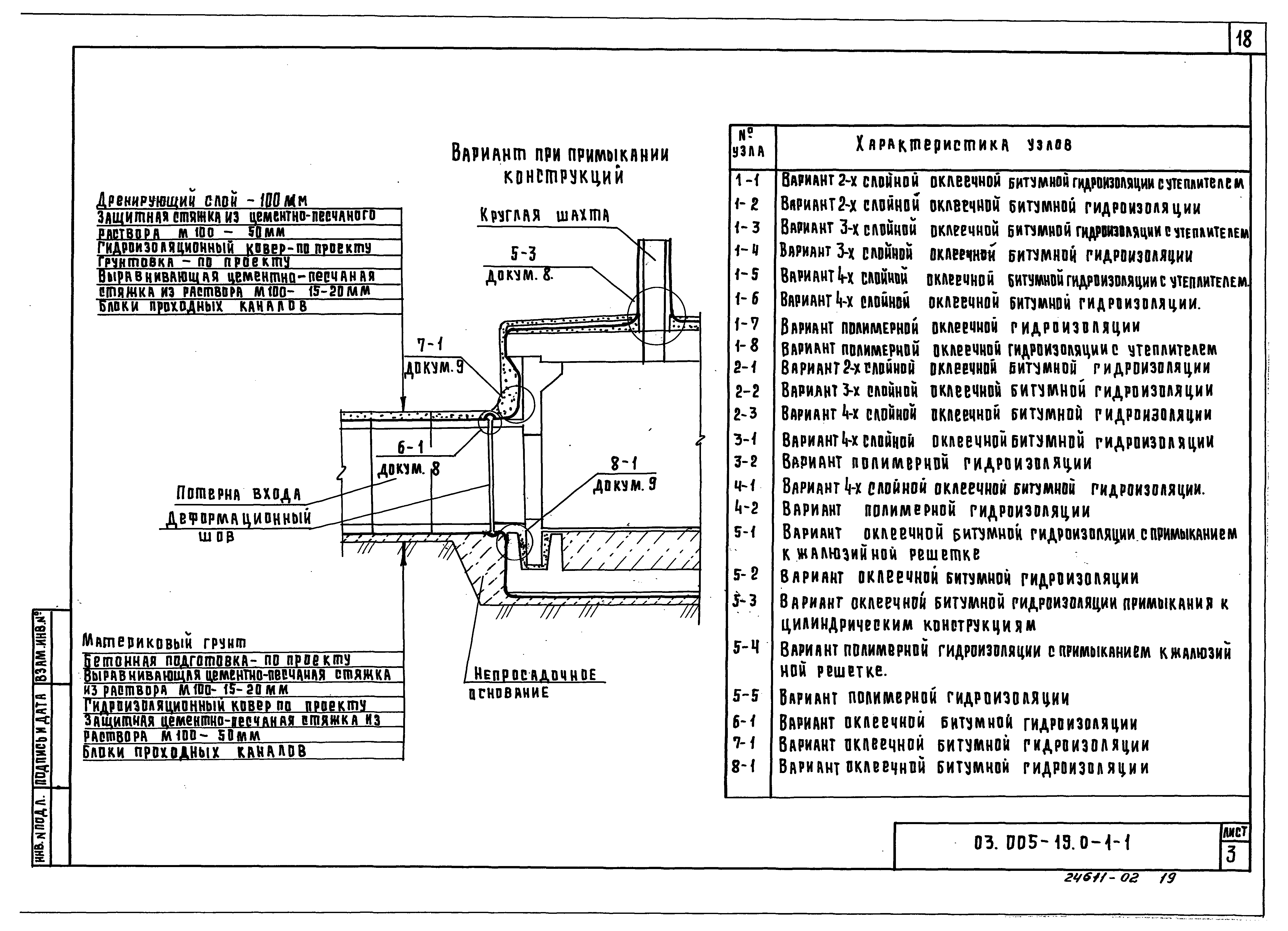
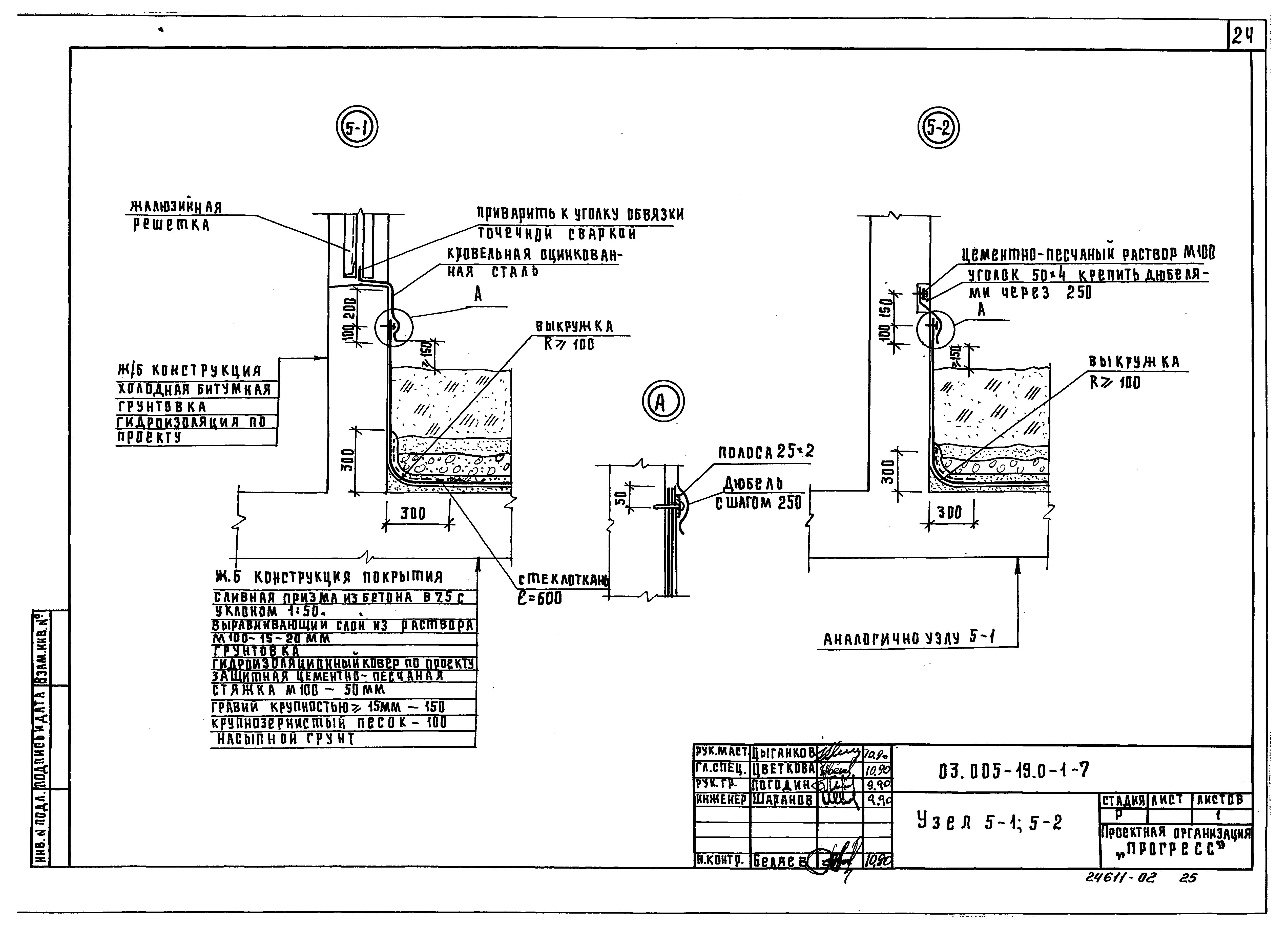
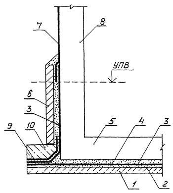
Гидроизоляция каналов тепловых сетей в Москве
Надежная гидроизоляция каналов тепловых сетей является обязательным условием сооружения подземных теплотрасс. В том случае если прокладка инженерной системы выполняется ниже уровня грунтовой воды, технология предусматривает дополнительное обустройство дренажной системы. СНиП предполагает использование современных эффективных средств гидроизоляции, в число которых входят специальные проникающие смеси, изготовленные группой компаний «Кальматрон».
Методы устройств гидроизоляции каналов тепловых сетей
В зависимости от конструктивных особенностей, используемых материалов и требований к готовому сооружению, гидроизоляционные работы разделяют на несколько видов.
В ассортименте продукции группы компаний «Кальматрон» представлены материалы, с помощью которых гидроизоляция каналов теплотрасс может быть выполнена следующими методами:
- Обмазочная изоляция производится посредством нанесения на поверхность конструкции специальной мастики, которая обеспечивает необходимый уровень защиты от влаги. Эту задачу можно реализовать с помощью эластичной смеси «Кальматрон-Эластик», которая предназначена для конструкций, склонных к растрескиванию, смещению и другим деформациям в процессе эксплуатации.
Штукатурная защита от влагивыполняется с использованием специальных обмазывающих материалов малой подвижности. Гидроизоляция тепловых каналов будет в несколько раз эффективней, если использовать сухую смесь «Кальматрон-Эконом». Она отличается простотой применения и высокой надежностью.- Оклеечная изоляция подразумевает использование композитных листов или рулонных материалов.
«Кальматрон» предлагает специальные гидрошпонки «Ультрабанд», а также бентонитовые шнуры «Ультраплат» для максимально надежной заделки швов и стыков бетонных блоков.
Эффективно и надежно
Гидроизоляция каналов камер тепловых сетей с использованием специальных гидроизоляционных материалов не только эффективно защищает конструкцию от влаги, но и позволяет выполнять укладку лотков в сейсмоактивных зонах. Наружные методы защиты поверхности сооружения исключат возможность воздействия на стены грунтовых и дождевых вод, а эластичные смеси, полимерные шнуры и шпонки исключат деформацию камер каналов вследствие умеренного смещения почвы.
Гидроизоляция Кальматрон — лучшие гидроизоляционные материалы в Москве и Московской области.
Рекомендуемые материалы:Лотки теплотрасс
Лотки теплотрасс — это строительные элементы, которые производятся из железобетона и выполняют ряд очень важных функций. Главное предназначение этих конструктивных элементов — монтаж защитной конструкции для трубопровода.
Характеристика изделий:
Этот строительный материал довольно экономичен. Его можно укладывать на участках с повышенной сейсмической активностью. Желоба хорошо выдерживают механические нагрузки любого рода. Эти конструкции после застывания становятся очень прочными. Если бетон некачественный, то он начнёт крошиться в зимний период. Процесс укладки довольно простой, если применяется спецтехника.
- Марка должна быть от М300 и выше.
- Показатель прочности при сжатии от 70%.
- Максимальный размер фракции наполнителя бетонной смеси — 15 мм.
- Запрещено использование химических присадок.
1. Защищают трубопроводы, водопроводы и иные подземные кабели и трубы от давления со стороны почвы.
2. Бетонный лоток для теплотрассы защищает провода и трубы от низких температур.
При этом не нужно тратиться на подогрев носителей.3. Плиты перекрытия лотков теплотрасс обеспечивают защиту от влаги, так как лоток под землёй имеет защитную крышку. Тем самым трубы и провода защищены от коррозии.
4. ЖБИ лотки для теплотрассы предотвращают контакт трубопроводов с землей, повышая сроки эксплуатации и работы трубопровода. Гидроизоляция лотков теплотрассы позволяет сделать это без лишних затрат.
Описание, назначение, характеристики:
Бетонные лотки для обустройства теплотрасс и сетей коммуникации представляют собой элементы П-образной формы, состоящие из дна и боковых стенок (ног). Ноги имеют трапецеидальное сечение, благодаря чему внутренние вертикальные поверхности канала приобретают небольшой уклон. Назначение: создание опорной конструкции для трубопроводов, наполненных горячей водой и паром; защита труб от механических деформаций, грызунов; поддержание температуры теплоносителя – теплотрасса изолируется от контакта с окружающей средой; защита магистралей от повреждения подпочвенными водами или во время паводков; оболочка из ЖБЛ становится барьером для едких химических соединений, присутствующих в грунте.
Важно учесть, что при таком процессе, как укладка лотков теплотрассы, необходимо создавать слой из песка. Такая прокладка усиливает стыковку и придает конструкции прочность. Если Вы хотите купить ЖБИ лотки для теплотрассы, представляем Вашему вниманию нашу продукцию. Группа компаний «Энергоресурс» производит железобетонные изделия с использованием современных технологий и надежных материалов.
Пример условного обозначения: Л 14-8/2
• Л – лоток;
• 14 – порядковый номер изделия;
• 8 – расчетная вертикальная нагрузка, равномерно-распределенная;
• /2 – означает половину длины типового лотка;
• *д — доборные лотки длиной 720 мм.
ЛК 300.210.120 ГОСТ 13015.0–83 включает в себя целый ряд правил и положений, которые относятся к железобетонным лоткам для теплотрасс. Рассмотрим основные из них:
- морозоустойчивость;
- водостойкость;
- высокая прочность бетона;
- предоставляются все необходимые нормативы по размеру и форме этих строительных изделий;
- приводятся таблицы;
- выдвигаются нормы и требования не только к готовому продукту, но и к производственному процессу.
Кроме этого, описываются необходимые показатели, которым должна соответствовать вспомогательная арматура к этим строительным изделиям.
Рассмотрим требования, которые выдвигаются по отношению к бетону:
- марка бетона должна соответствовать показателям прочности и качества, описанным в ГОСТ. Разрешается использование марки не ниже, чем М300;
- существует ещё один очень важный показатель — прочность на сжатие.
Этот показатель должен быть не ниже 70%; - размер частиц наполнителя для выполнения материала не должен превышать 15 мм;
- категорически запрещено использовать при производстве железобетонных лотков разного рода активные добавки.
Фото работ по гидроизоляции, герметизации, устройству дренажа и поверхностного водоотведения, выполненных в Саранске и Мордовии с применением современных материалов и технологий.
Фото выполненных работ в Саранске и Республике Мордовия по гидроизоляции, герметизации, дренажу и водоотведению, с применением современных материалов и технологий, реализуемых в нашем интернет-магазине «СтопВода». Выбрав интересующий Вас раздел, Вы можете посмотреть следующие фото: Гидроизоляция подвалов без откапывания фундамента, гидроизоляция пожарных резервуаров, гидроизоляция автомоек, гидроизоляция бассейнов, гидроизоляция ванной комнаты и санузлов, гидроизоляция фундаментов и т.
д. Так же в разделе «Фото» размещены фотографии новых строек Саранска и Республики Мордовия. Фото работ по герметизации вводов коммуникаций, герметизация труб, фото работ по герметизации фонтанов, бассейнов, гильз, кровли, герметизация деформационных швов и тепловых швов, герметизация технологических отверстий от опалубки и т.д. Приглашаем так же посмотреть фото работ по устройству систем линейного поверхностного водоотведения и монтажу дренажных систем. Раздел постоянно обновляется и пополняется новыми интересными фотографиями с различных объектов.
В данном разделе представлены фото работ по гидроизоляции, выполненных в Саранске и Мордовии с применением современных материалов и технологий, реализуемых так же и в нашем интернет-магазине: Гидроизоляция подвалов без откапывания фундамента снаружи, гидроизоляция пожарных резервуаров, гидроизоляция автомоек, гидроизоляция бетонных бассейнов, гидроизоляция ванных комнат, душевых и санузлов, гидроизоляция монолитных и сборных фундаментов, гидроизоляция бетона, гидроизоляция кирпича и камня, фото гидроизоляции отмостки, кровли, пола и стен, фото современных профессиональных и бытовых гидроизоляционных материалов и оборудования, которые Вы можете приобрести в нашем строительном интернет-магазине СтопВода.
ФОТО РАБОТ по ГЕРМЕТИЗАЦИИ в САРАНСКЕ и МОРДОВИИ В этом разделе Вы найдете фото выполненных работ по герметизации различных объектов в Саранске и Мордовии: Герметизация мест вводов коммуникаций, вводы труб, электрические вводы, герметизация пластиковых, чугунных и металлических труб, герметизация гильз. Так же в этом разделе представлены фото по герметизации деформационных и тепловых швов в бетонных и каменных конструкциях, герметизация бассейнов, скимеров, герметизация по влажным поверхностям и герметизация кровли. Здесь же Вы найдете фото специальных работ по герметизации полов химически стойкими герметиками и мастиками, герметизации мест, находящихся в постоянном контакте с водой под давлением и герметизации теплотрасс специальными герметиками, работающими с температурами до +150°С.ФОТО РАБОТ по МОНТАЖУ ВОДООТВЕДЕНИЯ и ДРЕНАЖА
Так же в этом разделе Вы можете посмотреть фото с различных объектов, на которых выполнялся монтаж и укладка дренажных труб, фото установки дренажных колодцев, канализационных колодцев, фото установки газонных решеток и георешеток для усиления грунта.
Уважаемые покупатели! Еще раз напоминаем Вам, что большинство материалов, которыми выполнялись работы, фото которых размещены в этом разделе нашего сайта, Вы можете приобрести в нашем строительном Интернет-магазине «СтопВода». Так же Вы можете заказать у нас работы по гидроизоляции, герметизации, монтажу лотков и устройству дренажа. Подробную информацию смотрите в разделе «Заказать работу»
Желаем Вам удачных покупок в нашем интернет-магазине!
виды, характеристики и способы укладки
Лотки теплотрасс — это строительные элементы, которые производятся из железобетона и выполняют ряд очень важных функций. Главное предназначение этих конструктивных элементов — монтаж защитной конструкции для трубопровода.
Кроме этого, железобетонные лотки (ЖБЛ или ЖБИ) используются для монтажа и других каналов: водопроводных, кабельных, а также для желобов ливнёвки и дренажных систем.
Лоток — это конструкция, защищающая трубы теплотрассы от повреждений внешнего характера
Что такое лотки для теплотрасс? Какие функции они выполняют?
Лоток строительный железобетонный для теплотрассы — это специальный элемент из армированного бетона, используемый для прокладки каналов различного назначения. Для организации теплотрасс используют лотки, которые выполняют ряд важных функций:
- основная функция ЖБЛ — защитная. Эти элементы предохраняют трубопровод не только от механических воздействий, но и защищают его от разного рода грызунов, которые могут причинить вред трубам;
- а также стоит отметить, что ЖБЛ не дают теплу рассеиваться в окружающую среду. Исходя из этого, можно сказать, что они экономят тепло;
Обратите внимание! Монтаж таких лотков разрешён даже в сейсмоактивных районах.
Они обеспечивают защиту труб даже в нестандартных условиях.
- такие каналы защищают коммуникацию от подземных вод и паводков;
- капсула из ЖБЛ предохраняет трубы от воздействия агрессивных химических соединений, которые присутствуют в почве.
Теплосети предусматривают накрытие крышками ЖБЛ. Благодаря этому, в случае возникновения аварии работы по её устранению производятся очень быстро и просто.
Трубы, проложенные в лотках, не подвержены влиянию грунтовых вод, агрессивных компонентов почвы, механических и прочих факторов
Эксплуатационная сфера ЖБЛ
Все железобетонные лотки подразделяют на 3 основные группы в зависимости от назначения:
- Железобетонные лотки теплотрасс. Играют роль защитных каналов и ограничивают трубопровод, транспортирующий горячую воду или пар, от контакта с подземными водами, а также активными химическими соединениями, располагающимися в почве. Таким образом, теплопровод защищается от губительного воздействия коррозии.

- ЖБЛ для монтажа водоотводных каналов. Такие элементы используются при прокладке дренажных, коллекторных и канализационных конструкций. Они широко эксплуатируются в строительстве жилых сооружений, при обустройстве парков, а также при прокладке водоотводных каналов автомобильных и железных дорог.
- ЖБЛ для проведения кабельной проводки. Они играют роль защитного кожуха, предохраняя электрокабель от воздействий почвы.
Назначение и функции
Строительный лоток для теплотрассы – это железобетонный модуль, выполненный из армированного бетона, предназначенный для монтажа и обустройства каналов различного назначения. При промышленном производстве лотков теплотрасс изготовители руководствуются требованиями отраслевого стандарта ГОСТ 13015-2003, техническими условиями ТУ 5859-001-86780364-2008, а также нормами документов серии 3.006.1-2/82 и 3.006.1-8.
При использовании элементов в качестве защитных конструкций для прокладки теплотрасс, изделия выполняют ряд функций, среди которых:
- защитная – основополагающая функция, позволяющая предохранить магистраль из железных, пластиковых труб от всевозможных механических воздействий, включая удары, обрушения грунта, динамические нагрузки, воздействие грызунов и т.
д.; - конструкция из ЖБЛ позволяет избежать попадания в канал влаги в результате подтоплений, вызванных наличием атмосферных осадков, движением талых или подземных вод, создавая условия для безаварийного функционирования коммуникаций;
- защитный канал позволяет повысить эффективность работы теплотрасс, позволяя снизить потери тепла при транзите среды к потребителю. Благодаря качественному экранированию, тепло сохраняется и не рассеивается на грунте;
- конструкция канала предохраняет трубы от разрушений и преждевременного выхода из строя, предохраняя коммуникации от контакта с агрессивными средами и химическими соединениями, присутствующими в почве.
Лотки теплотрасс используются в комплекте со специальными крышками, выполненными из железобетона и позволяющими добиться максимальной герметичности защитных каналов. Благодаря сборной конструкции, любой блок можно разобрать и при необходимости заменить, осуществляя ремонт в течение всего периода эксплуатации теплотрассы в необходимых местах.
Применение лотков рекомендовано для защиты трубопроводов, которые могут прокладываться в районах с повышенной сейсмической опасностью.
Область применения лотков широка и разнообразна, в связи с чем продукция делится по назначению на три категории, среди которых:
- лотки железобетонные для прокладки теплотрасс. Играя роль прочных защитных элементов конструкции, изделия ограничивают трубопровод осуществляющий транзит горячей воды или пара, от контакта с активными компонентами и влагой, находящимися в грунте. Их применение позволяет в значительной мере уменьшить интенсивность появления и протекания коррозионных процессов, которые разрушают изделия трубного проката;
- ЖБЛ, применяемые для прокладки кабельных трасс. Представляя собой защитный кожух из железобетона, канал надежно экранирует проводники от воздействия влаги, вредоносной деятельности грызунов;
- лотковые элементы, применяемые для конструирования водоотводных каналов ряда дренажных, канализационных и коллекторных систем.
Такой вид конструкций является актуальным не только для жилых зданий, но и для промышленных сооружений, обустройства территорий парков, инфраструктуры, обеспечивающей функционирование железных и автомобильных дорог. При этом различают междупутевые и междушпальные лотки для прокладки железнодорожного полотна. Каналы автодорог накрываются решетками, обеспечивающими фильтрацию сточной воды от крупных предметов, которые могут засорить тоннель.
Подробная классификация по назначению
Рассмотрим более подробную классификацию железобетонных лотков, в зависимости от их назначения:
ЖБЛ для организации теплотрасс. Такие лотки монтируются для защиты теплопроводов горячей воды и пара и выполняют защитную функцию. Защита теплопроводов — это очень важное мероприятие, так как возникновение аварийных ситуаций при их эксплуатации влечёт за собой неприятные последствия. А ремонтные работы в зимний период могут быть очень затруднительны из-за промерзания почвы.
Железобетонные лотки могут быть использованы и в водоотводящих системах — ливневках
ЖБЛ для автомобильных дорог.
Используются для организации каналов, которые обеспечивают отвод воды от дорожного полотна, пешеходных тротуаров и т. д. Входы в такой дренаж прикрывают решёткой. Такая решётка необходима для того, чтобы обеспечить более презентабельный внешний вид, а также играет роль грубого фильтра — не даёт попадать в систему крупным предметам (например, веткам).
Железнодорожные ЖБЛ. Подразделяются на две основные группы:
- междупутевые;
- междушпальные.
Используются для организации дренажной системы железнодорожного полотна. Как и в предыдущем случае закрываются решёткой.
ЖБЛ для организации дренажных систем ливневой канализации. Такие лотки необходимы для организации отвода воды от фундаментов различных построек, а также из парковых зон. А также широко применяются при монтаже ливневой канализации.
ЖБЛ для отвода воды. Как правило, такие лотки применяются для отвода жидкости от хозяйственных полей.
Посредством этих элементов осуществляется сбор воды для полива.
Дождевые лотки. Жёлоба небольшого размера, выполняющие функцию отвода и концентрации осадков.
Кабельные. Используются при организации защитных кожухов для кабельной проводки.
Преимущества использования железобетонных лотков для прокладки теплотрасс
Раньше для монтажа трубопроводов использовались каналы, построенные из кирпича. Однако кирпичная кладка не имела таких преимуществ, как железобетонные лотки. Она отличалась небольшим эксплуатационным сроком и сложностью восстановления, поэтому необходим был более надёжный материал.
Железобетонные лотки отличаются прочностью и могут выдерживать большие нагрузки
На сегодняшний день железобетонные лотки используются для разных целей и отлично справляются с возложенными на них задачами. Если сравнивать ЖБЛ с кирпичной кладкой, то первые отличаются такими преимуществами:
- прочностные характеристики и несущая способность этих изделий гораздо выше, поэтому их разрешено прокладывать в сейсмически активных районах;
- прокладка лотковых элементов выполняется быстрее, чем организация кирпичной кладки;
- кроме этого, стоит отметить, что цена железобетонного лотка более демократична, чем стоимость кирпича;
Обратите внимание! Стоит отметить, что использование ЖБЛ влияет на удобство проведения ремонтных работ трубопровода.
Для этого нужно определить локализацию поломки и раскопать землю в нужном месте, после чего, остаётся только снять крышку ЖБЛ и приступить к ремонту коммуникации.
- удобство замены испорченного участка железобетонного канала также является неоспоримым преимуществом этих изделий;
- ЖБЛ на стадии производства подвергаются ряду процедур, позволяющих лоткам быть устойчивыми к агрессивным средам;
- ещё одно немаловажное достоинство такого канала — высокие герметизационные показатели между отдельными лотками в единой конструкции. Это свойство позволяет обезопасить теплопровод от грунтовых вод.
А также стоит отметить, что ЖБЛ обладают прекрасной сопротивляемостью как к низким, так и высоким температурам. Монтаж железобетонных лотков может проводиться открытым и закрытым способами без опасений, что материал лотков испортится при перепадах температур.
Достоинства железобетонных лотков при прокладке теплотрасс
Ранее строители использовали кирпичную кладку, чтобы защитить коммуникаций с горячей водой и паром под землей.
При этом возрастала трудоемкость возведения каналов, их стоимость, в то время как прочность и надежность оставляли желать лучшего. Использование специализированных унифицированных лотков из железобетона имеет ряд преимуществ, среди которых такие факторы, как:
- высокая скорость реализации этапа строительных работ по прокладке коммуникаций за счет размещения модульных элементов, выполненных на заводе-изготовителе;
- модульная механическая прочность изделий, которая допускает нагрузки от постоянного давления грунта, а также динамические усилия от движущегося транспорта и перемещения людей, позволяя осуществлять строительство защитных каналов в сейсмоопасных районах;
- оптимальная стоимость, которая способствует снижению сметных затрат при возведении объектов промышленного и гражданского назначения по сравнению с аналогами;
- ремонтопригодность каналов допускает удобную замену лотков и возможность проведения комплекса ремонтно-восстановительных работ на теплотрассе для устранения течи или замены части трубопровода при возникновении неисправности;
- изделия изготавливаются с соблюдением всех требований и технологии, имея высокую устойчивость к различного рода агрессивным средам и позволяя обеспечить максимальную степень защиты коммуникаций;
- железобетонные лотки имеют высокий срок службы.
Каналы коммуникаций рассчитаны не менее чем на 50 лет; - высокий ассортимент модельного ряда позволяет использовать лотки для прокладки труб различного сечения;
- высокие возможности в области реализации герметизации каналов теплотрасс для обеспечения высокой степени защиты и сбережения тепла за счет высокого качества изготовления изделий;
- высокий диапазон рабочих температур, которые позволяют эксплуатировать лотки в различных условиях с умеренным и холодным климатом.
Технические характеристики
Все необходимые таблицы размеров железобетонных лотков для теплотрасс можно найти в документации, которая регламентирует эти изделия, а именно — ГОСТ. Кроме этого, стоит ознакомиться с основными техническими характеристиками этих строительных элементов.
Лотки производятся согласно ГОСТу, к их качеству и внешнему виду предъявляются высокие требования
ГОСТ 13015.0–83 включает в себя целый ряд правил и положений, которые относятся к железобетонным лоткам для теплотрасс.
Рассмотрим основные из них:
- морозоустойчивость;
- водостойкость;
- высокая прочность бетона;
- предоставляются все необходимые нормативы по размеру и форме этих строительных изделий;
- приводятся таблицы;
- выдвигаются нормы и требования не только к готовому продукту, но и к производственному процессу.
Кроме этого, описываются необходимые показатели, которым должна соответствовать вспомогательная арматура к этим строительным изделиям.
Рассмотрим требования, которые выдвигаются по отношению к бетону:
- марка бетона должна соответствовать показателям прочности и качества, описанным в ГОСТ. Разрешается использование марки не ниже, чем М300;
- существует ещё один очень важный показатель — прочность на сжатие. Этот показатель должен быть не ниже 70%;
- размер частиц наполнителя для выполнения материала не должен превышать 15 мм;
- категорически запрещено использовать при производстве железобетонных лотков разного рода активные добавки.

Размеры ЖБЛ для прокладки теплотрасс представлены в таблице №1.
Таблица 1
| Название | Размеры, мм | Вес, кг |
| Л-20-15/2 | 2970х2160х1040 | — |
| Л-16-8/2 | 2970х1840х1030 | 3150 |
| Л-15-8/2 | 2970х1840х720 | 2750 |
| Л-14-8/2 | 2970х1840х570 | 2500 |
| Л-13-8/2 | 2970х1480х1320 | 3230 |
| Л-12-8/2 | 2970х1480х1010 | 2400 |
| Л-10-8/2 | 2970х1480х550 | 1650 |
| Л-8-8/2 | 2970х1160х1000 | 1950 |
| Л-6-8/2 | 2970х1160х530 | 1140 |
| Л-4-8/2 | 2970х780х530 | 900 |
| Л-3-8/2 | 2970х780х380 | 750 |
Помимо этого, ГОСТ регламентирует и сопутствующую арматуру. Требования, выдвигаемые к ней, необходимо неукоснительно соблюдать. Очень важным фактором при выборе арматуры для ЖБЛ считается подбор необходимой марки стали.
И на лотки, и на крышки к ним в обязательном порядке наносится маркировка
Полезная информация! Все лотки маркируются буквой «Л». После этой буквы идут все основные технические и производственные данные, а также штамп, подтверждающий, что это изделие прошло проверку на качество.
А также стоит отметить, что маркировка железобетонных лотков содержит следующую информацию:
- марка железобетонного изделия;
- компания, которая изготовила лоток;
- дата производства;
- габаритные размеры строительного элемента;
- масса лотка;
- прочность изделия;
- штамп, который указывает на то, что лоток прошёл процедуру технического контроля.
Подбор железобетонных лотков для теплотрасс выполняется, как правило, по вышеперечисленным данным. Если изделие соответствует характеристикам, предъявляемым ГОСТом, то тогда можно не сомневаться в его эффективности и в том, что оно прослужит длительный эксплуатационный срок.
Виды лотков по форме
ГОСТом регламентируется не только технические характеристики железобетонных лотков, но и их форма. Форма этого строительного элемента зависит в первую очередь от его назначения, а уже потом — от особенностей использования. Существует три основных формы, в которых выпускаются эти изделия:
- квадратная или прямоугольная;
- трапециевидная;
- полукруглая.
Форма и размеры лотка зависят от его предназначения
Железобетонные строительные лотки квадратной или прямоугольной формы используются, как правило, при закрытой прокладке коммуникаций, отличающихся по назначению. Из таких лотков монтируется защитный, герметичный канал, внутри которого прокладывается трубопровод. Рассмотрим, какие коммуникации монтируют в таких железобетонных строительных элементах:
- теплотрассы;
- водопроводы;
- электрокабели.
Отдельные лотки монтируются встык. А также стоит отметить, что стыки в обязательном порядке промазываются специальным цементным раствором.
Для этих целей необходим раствор марки М-50 и выше. После того как раствор засыхает, выполняется ещё одно мероприятие — гидроизоляция железобетонного канала. Гидроизоляционный материал подбирается в зависимости от конкретного случая.
Трапециевидные модели используются, как правило, при монтаже автомобильных дорог. Из таких изделий обустраивается дренажная система и ливневая канализация. Сам монтаж происходит посредством последовательной вставки лотков в пазы. Таким образом, получается канал, расположенный под наклоном. Наклон является необходимым фактором, для эффективного естественного отведения воды. Метод сборки такого канала получил название «телескопический», что отражает последовательность вложенных друг в друга железобетонных сегментов. Место входа ливнёвки прикрывается решёткой.
Полукруглые железобетонные лотки также применяются для водоотвода в дренажных и ливневых системах. Благодаря своему более презентабельному виду их прокладывают возле жилых построек и в парковых зонах.
Монтаж каналов и укладка лотков
Унифицированные лотки имеют П-образную форму в сечении и продуманную простую конструкцию, позволяющую осуществлять качественный монтаж изделий с минимальными затратами. Лотки служат основой для строительства подземных тоннельных конструкций при укладке трубопроводов транзитного и коммунального назначения, обеспечивая высокую степень герметизации и защиты коммуникаций. Монтажным работам предшествует стадия проектировки тоннеля, которая включает в себя пробы грунта, определение глубины прокладки, необходимых условий для размещения железобетонных изделий.
В зависимости от проектного задания на первом этапе производится выемка грунта на заданную глубину в соответствии с габаритами канала и размерами блоков. При этом лотки теплотрасс при наличии плотного основания могут укладываться как на сам грунт, так и на заранее подготовленную подушку, сформированную из утрамбованного щебня и песка. В наиболее примитивном исполнении подушка для выравнивания лоткового элемента может состоять из одного песка, уложенного слоем не менее 100 мм.
Подготовка основания позволяет выровнять уровень укладки лотков, не допуская в процессе позиционирования и монтажа смещений и перекосов относительно горизонтальной плоскости.
По готовности котлована на его дней размещаются железобетонные лотки, подъем и перемещение которых производится краном при помощи грузозахватных приспособлений. На этапе укладки производится укрепление изделий с последующей герметизацией стыков при помощи строительного раствора. Железобетонные изделия позволяют минимизировать расстояние между лотками и размеры швов, сокращая расход смеси и объем работ по стыковке и герметизации. По готовности П-образного канала в нем размещаются трубы, проводятся сварочные работы по их стыковке. Лотки теплотрасс закрываются при помощи плит, имеющих плоскую прямоугольную форму. Благодаря высокой точности исполнения достигается максимальная герметичность при совмещении деталей канала. Поверхность железобетонных изделий, как целиком, так и только в местах стыков может дополнительно подвергаться обработке гидроизоляционными материалами.
Специальные водонепроницаемые мастики и смолы, составы, выполненные на основе битума, наносятся на бетон и стыковочные швы, обеспечивая защиту коммуникаций теплотрасс от пагубного влияния влаги. После застывания гидроизоляционного покрытия канал может быть засыпан слоем грунта.
Современные железобетонные лотки теплотрасс в зависимости от габаритов имеют различную несущую способность. В связи с этим допускается заглубление каналов на различную глубину от 0,5 до 6 метров. При этом лотки теплотрасс способны выдерживать статическую и динамическую нагрузки, располагаясь под дорожным полотном с максимальным давлением грунта.
Применение лотков из железобетона позволяет повысить надежность теплотрасс и магистралей, снизив вероятность выхода из строя труб и продлив долговечность коммуникаций. Экономическая эффективность их практического использования заключается в увеличении интервалов между плановыми и ситуативными ремонтами, снижении тепловых потерь, которые ложатся на компании. В современной индустрии строительства лотки стали незаменимыми элементами для прокладки коммуникаций, обеспечивая их надежную защиту и возможность для осуществления ремонтных работ.
7 простых систем, которые помогут вам сконструировать душ без бордюра
Души с нулевым порогом (или без бордюров) за последние пять лет получили широкое распространение, но найти простой способ проектирования и установки душа может оказаться сложной задачей при реконструкции ванной комнаты.
Дренажи относительно просты в новом строительстве, но в существующих условиях может потребоваться обширная демонстрация, усиление конструкции, черновая установка новой дренажной линии и многое другое. Даже при проведении масштабных работ, которые часто требуются, водостоки остаются популярными.
Но почему безбортовые водостоки так популярны? Потому что они предлагают практичные функции, которые нравятся домовладельцам.
АРК
Доступный в 13 размерах и длиной до 71 дюйма, TrueDEK Classic – это душевой поддон, который позволяет легко и быстро строить безбортовые душевые без необходимости врезки балок, как заявляет производитель.
Предварительно наклонные конструкционные основания оснащены полной системой гидроизоляции для подготовки поддона к укладке плитки.
Основным преимуществом душа с нулевым порогом является функциональность, сообщает Sebring Design Build в Нейпервилле, штат Иллинойс., «В то время как душевая кабина высотой четыре дюйма может быть очень легко перешагнуть молодому человеку; для бабушки это может показаться горной вершиной, так что душ без бордюра и устранение этого бордюра может быть просто ответом на то, чтобы сделать душ с равными возможностями.»
Они «доступны для использования членами семьи всех возрастов — от детей до бабушек и дедушек! Прекрасный пример универсального дизайна, так как он не требует входа или выхода, что делает навигацию очень безопасной», — говорится в блоге компании Thompson Remodeling из Гранд-Рапидс, штат Мичиган.«Кроме того, его можно сделать достаточно большим, чтобы вместить инвалидную коляску».
Кроме того, безбортовая душевая сделает ванную комнату больше.
Томпсон говорит, что «без визуальной паузы, которую создает душевая кабина, глаз продолжает двигаться без перерыва, создавая ощущение большего и открытого пространства».
Продукция ВИМ
Комплект душевой системы с уровневым входом от производителя представляет собой систему, предназначенную для душа размером 60 на 48 дюймов.Он включает в себя все необходимое для установки, в том числе жидкие гидроизоляционные материалы, изоляционную ткань, армирующую сетку, комплект для сборки водостока, силиконовый герметик и другие продукты.
Душевые имеют и другие преимущества, говорят в 314 Design Studio. «Безбортные душевые легче чистить, чем стандартный душ», — говорят в студии. «Устранение бордюра в душевой открывает всю ванную комнату, делая ее единым бесшовным пространством, которое намного легче чистить». Кроме того, они помогают создать обтекаемый вид в ванне.«Бордюры в душевых, как правило, выделяются и могут раздражать глаза», — пишет фирма из Стивенсвилля, штат Мэриленд.
«Убрав бордюр, вы создадите гладкий вид спа-салона».
При всех своих преимуществах душевые кабины без бордюра также имеют некоторые недостатки, которые профессионалы-строители должны обсудить со своими клиентами. Одним из них является конфиденциальность, говорит 314 Design Studio. «Поскольку душ будет открытым, он не обеспечивает такой конфиденциальности, как душевая кабина», — говорят в компании. По словам 314 Design, одним из решений этой проблемы является использование непрозрачного стекла, стеклянных блоков, половинной стены или штор.
Шлютер
Душевая система с нулевым порогом от производителя состоит из предварительно изготовленных наклонных поддонов, которые устраняют необходимость в слое раствора и доступны с линейными или традиционными сливами. Доступны все компоненты для завершения системы, включая гидроизоляционную и развязывающую мембрану, а также напольное отопление.
Кроме того, в 314 Design Studio говорят, что в душе будет холоднее, поскольку тепло будет выходить без защитного кожуха.
По словам фирмы, пол с подогревом может решить эту проблему.
Большая проблема с душами с нулевым порогом заключается в том, как их создать, особенно в ситуации модернизации. Душ нуждается в правильном наклоне, душевом поддоне и тщательной гидроизоляции для успешной установки. Кроме того, может быть сложно убедиться, что готовый пол душа и ванны находятся в одной плоскости. Еще одна вещь, если установка плохо спроектирована, вода будет выливаться из душа на пол в душе.
Уни-зеленый
Размер этого безбортного душевого поддона размером 48 на 32 дюйма, облицованного плиткой, можно разрезать в полевых условиях, чтобы он подходил для душа меньшего размера, или расширить, чтобы он подходил для душа большего размера, используя быстросохнущий заплаточный материал. Изготовленный из переработанного АБС-пластика с армированием из стекловолокна, продукт поставляется с предварительным наклоном и имеет толщину 7/8 дюйма, поэтому его можно установить, не вырезая, не надрезая или не опуская структурные опоры под душем.
Сколько стоит безбарьерный душ?
Стоимость, пожалуй, одна из самых больших проблем с душем с нулевым порогом.Из-за всех необходимых шагов — расчета высоты пола, слива, гидроизоляции — установка стоит дороже, чем традиционный душевой поддон или ванна.
«Типичная душевая кабина с бордюром и дверью стоит в среднем от 2500 до 5000 долларов», — говорит компания по обслуживанию дома Angi. «Установщики говорят, что специальные модификации для душа без бордюра добавляют еще от 500 до 700 долларов или больше в зависимости от типа плитки и размера душа».
USG
Идеально подходящая для проектов нового строительства или реконструкции, душевая система Durock представляет собой комплексную гидроизоляционную систему, которую, по словам компании, можно адаптировать к условиям рабочей площадки и безбарьерной установке.Он включает в себя предварительно наклонные лотки из пеноматериала; податливая гидроизоляционная мембрана; и дренажный узел.
Доступно более 50 вариантов решеток в 10 вариантах отделки.
В некоторых случаях полные компоненты безбортового душа, включая поддон и гидроизоляционную систему, стоят на несколько тысяч больше, чем обычный поддон.
Тем не менее, преимущества душа без бордюра могут стоить дополнительных затрат, если учесть функциональность, эстетику и адаптивность системы. Дополнительным преимуществом является то, что их можно использовать в ванной комнате, независимо от архитектурного стиля.
«Не думайте, что если у вас не современный декор, этот тип душа не подойдет для вашей ванной комнаты», — говорит Delta Faucets. «Независимо от вашего стиля, безбарьерные душевые кабины можно спроектировать таким образом, чтобы они гармонировали с различными образами, и настроить их в соответствии с формой и размером вашей ванной комнаты».
Плитка Реди
Душевые поддоны производителя предназначены для создания безбортового душа, соответствующего требованиям ADA, и включают сборный цельный поддон Redi Free со встроенным линейным сливом или Redi Free со стандартным сливом.
Готовые к установке плитки поддоны бывают самых разных стандартных размеров от 30 на 48 до 48 на 38 для Redi Base или от 30 на 60 до 42 на 63 для Redi с линейным сливом. Пользовательские размеры также доступны.
Дуравит
DuraPlan — это регулируемый по высоте душевой поддон, который позволяет создать идеально подходящий безбортовой душ, заявляет бренд. Полностью водонепроницаемая дренажная система предотвращает возможность повреждения водой, а при необходимости поддон можно снять позже, чтобы обеспечить доступ для обслуживания, добавляет компания.
Как очистить и восстановить водонепроницаемость лыжной куртки
Со временем лыжные куртки могут потерять свои водоотталкивающие свойства.
Гидроизоляция не вечна.
Будь то трение о грязную машину, когда вы пытаетесь добраться до багажника для лыж, или пролитый апрес-напиток, грязная куртка перестанет отталкивать воду. К счастью, лыжную куртку легко почистить и снова сделать водонепроницаемой, чтобы вы могли вернуться к плаванию.
Весь фокус в том, чтобы сначала почистить куртку.
В большинстве случаев это грязь, жир для тела и даже дым, которые покрывают водоотталкивающее покрытие, из-за чего ваша куртка впитывает воду. Противный! Однако чистка бытовыми моющими средствами не является ответом. Они тоже могут оставлять следы, которые притягивают воду. Не очень подходит для водонепроницаемости. Вот почему так важно использовать техническое чистящее средство, такое как Nikwax Tech Wash. Tech Wash удаляет грязь, сохраняя при этом водоотталкивающие свойства и воздухопроницаемость куртки.
Давайте приступим!
Вот как чистить.
- Проверьте карманы. Стирка тюбика бальзама для губ в куртке вызывает слезы, поверьте нам.
- Поместите куртки в стиральную машину. Если у вас есть только одна куртка, попросите друга, не хочет ли он тоже чистую куртку. Они могут быть должны вам.
- Добавьте Nikwax Tech Wash. В машину с вертикальной загрузкой добавьте три полных колпачка (150 мл) для 1–3 предметов одежды или пять полных колпачков (250 мл) для 4–6 предметов одежды.
В загрузчик с фронтальной загрузкой лучше всего добавлять не более двух предметов одежды с двумя полными колпачками (100 мл) Tech Wash. Особое примечание. Если вы живете в районе с жесткой водой, добавьте дополнительный колпачок Tech Wash. - Устройтесь поудобнее с хорошей книгой и бокалом вина/пива/горячего какао, пока машина работает.
- Чаще всего этого одного цикла достаточно, чтобы оживить вашу куртку.
Но моя лыжная куртка все еще не является водонепроницаемой!
Все в порядке. Не паникуйте. Со временем водоотталкивающее покрытие может стираться. Когда это произойдет, пришло время добавить больше гидроизоляции.
Вот как обеспечить водонепроницаемость.
- Сначала очистите. Всегда сначала чистите. Используйте Tech Wash, как и раньше. Тогда…
- Если у вас есть машина с вертикальной загрузкой, дайте машине заполниться, затем добавьте максимум 3 предмета одежды и 300 мл TX.Direct Wash-In.
Запустите тяжелый/теплый цикл. - Если у вас есть машина с фронтальной загрузкой, добавьте не более 2 предметов одежды и 200 мл TX.Direct.
- Следуйте инструкциям производителя относительно того, следует ли сушить вашу одежду на веревке или в сушильной машине.Nikwax не требует тепла для активации, так что вы можете пойти любым путем.
- Наденьте куртку и полюбуйтесь своей водонепроницаемой одеждой в зеркале.
Нам часто задают вопрос: « Но как часто мне все это делать?! ». Легкий. Когда вы замечаете, что ваша куртка выглядит грязной (не обижайтесь, держите ее в чистоте!) или когда вы замечаете, что она впитывает воду.
Вот оно!
Теперь вы снова готовы кататься по склонам и смеяться над промокшими дураками, сгрудившимися вокруг костровой ямы.
Или, может быть, вы можете рассказать им, как ухаживать за их лыжными куртками и разглаживать сухость.
Материалы, используемые для упаковки пищевых продуктов
Пищевая упаковка представляет собой упаковку пищевых продуктов с целью защиты от:
- Факторы окружающей среды, которые могут вызвать загрязнение, повреждение или гниение в процессе транспортировки, хранения или реализации;
- Преднамеренная модификация продукта или то, что известно как фальсификация.

В дополнение к защите и сохранению – и, таким образом, поддержанию срока годности пищевых продуктов – пищевая упаковка используется для упаковки пищевых продуктов, предоставления информации об ингредиентах и питательных аспектах ее содержимого [1] и обеспечения удобства для покупателей во время использования и потребления [2].
Упаковка зависит от типа упаковываемых пищевых продуктов и варьируется в зависимости от широкого спектра материалов и форм.
Здесь вы узнаете о:
Типы пищевой упаковки
Упаковочные материалы бывают разных форм с различными функциями в зависимости от их свойств. Очень важно, чтобы упаковочный материал имел баланс между формой и функциональностью. Учитывая основное предназначение упаковки — сохранение, локализация и защита пищевых продуктов, упаковочный материал может быть жестким, гибким или полугибким [3].
Жесткая упаковка включает бутылки, лотки, банки, банки и крышки.
Гибкая упаковка включает пакеты, пищевую пленку, пузырчатую пленку, термоусадочную пленку, сжимаемые тубы, пенопластовые лотки, стоячие пакеты и вакуумные пакеты.
Полугибкие упаковки включают крышки и затворы, коробки и тетра-упаковки.
Типы упаковки для пищевых продуктовразличаются по различным параметрам, таким как вес, размер, долговечность и барьерные свойства [4].
Материалы для упаковки пищевых продуктов
Выбор подходящего материала для упаковки определенного вида пищевых продуктов зависит от функций, которые должна выполнять упаковка.Эти функции включают защиту продуктов от влаги, колебаний температуры, кислорода, света и биологических микроорганизмов. Кроме того, важную роль при выборе материала играют защита от повреждений, проницаемость, идентификация пищевых продуктов, а также химические и оптические свойства [3].
Обычные материалы для упаковки пищевых продуктов, используемые в настоящее время, различаются между металлами, бумагой, стеклом и пластиком [5].
Металлы
Существуют различные формы металлической упаковки для пищевых продуктов, такие как банки, тюбики, контейнеры, пленки, крышки и пробки.
Банки обычно изготавливаются из алюминия или стали, и они являются наиболее часто используемой металлической упаковкой для продуктов питания и напитков. Они легко перерабатываются и обычно покрыты слоем органического материала, чтобы предотвратить любое взаимодействие между пищей и металлом [5].
Алюминий
Алюминийобычно используется для изготовления банок для напитков, фольги, туб, лотков, пакетов и кофейных капсул. Обладает хорошей устойчивостью к температурным колебаниям и действует как отличный газонепроницаемый барьер, что продлевает срок годности продуктов.Он обладает выдающейся пластичностью и формуемостью и легко поддается тиснению [1]. Он относительно безвреден [6], легкий и может перерабатываться неограниченное время.
Легирующие элементы, такие как магний и марганец, иногда добавляют в алюминий для повышения его прочности. Алюминий можно использовать в жесткой, гибкой и полугибкой упаковке. Он помогает сохранить свежесть и аромат продуктов и хорош для защиты от радиации, кислорода, влаги, масел и микроорганизмов [7]. Безалкогольные напитки, морепродукты и корм для домашних животных обычно упаковываются в алюминиевые упаковки.
Некоторые марки алюминия, используемые в пищевой упаковке, включают АА 3003 (О, h32, h34), АА 8006, АА 8011, АА 8079 и АА 1235 [8].
Сталь
Стальиспользуется для изготовления банок, контейнеров, крышек и укупорочных средств. Органические покрытия также необходимы для защиты от коррозии. Стальные банки изготавливаются из белой жести , которая представляет собой сталь с луженым покрытием, или из стали с электролитическим хромированием (ECCS) [5], также известной как безоловянная сталь . Сталь, являясь долговечным материалом, может быть переработана без ограничений, сохраняя при этом свое качество.
Белая жесть является прекрасным барьером для газов, водяного пара, света и запахов. Обладает хорошей пластичностью и формуемостью, удобен для стерильных изделий тем, что может подвергаться термообработке и герметизации.
Он легкий, обладает значительной механической прочностью и подходит для выразительного декора. Общие области применения белой жести включают банки для напитков, обработанные пищевые продукты и порошкообразные пищевые продукты [1].
без олова также обладает хорошей прочностью и формуемостью и немного дешевле белой жести.Хром/оксид хрома в ECCS делает его хорошим материалом для адгезии покрытий, таких как лаки и краски. Обладает хорошей термостойкостью и черным сульфидным пятном, что делает его удобным для изготовления рыбных консервов [9]. Безоловянная сталь применяется в пищевых банках, лотках, крышках для бутылок, концах банок и крышках.
Бумага и картон
Бумага — один из старейших упаковочных материалов, датируемый 17 веком [10]. Бумага и картон в основном используются для упаковки сухих пищевых продуктов.После покрытия или вощения их применение распространяется на упаковку и подачу влажных и жирных пищевых продуктов [5]. Они обычно используются в гофрированных коробках, пакетах для молока, складных коробках, бумажных тарелках и стаканах, сумках и мешках, а также в оберточной бумаге.
Бумага используется для временного хранения и защиты пищевых продуктов из-за ее высокой проницаемости и невозможности термической герметизации. При использовании в качестве первичной упаковки воски, смолы и лаки используются в качестве покрытий и ламинатов для улучшения защитных и функциональных свойств бумаги.
В зависимости от способа производства и назначения упаковки бумага может быть крафт-бумагой, сульфитной бумагой, жиронепроницаемой бумагой, пергаментом или пергаментной бумагой.
- Крафт-бумага — самый прочный вид бумаги, который используется для упаковки муки, сахара и сухофруктов.
- Сульфитная бумага относительно слабее и легче и используется для упаковки печенья и сладостей.
- Жиронепроницаемая бумага и Пергамин содержит плотно упакованные волокна целлюлозы (пергамин дополнительно гидратирован), которые улучшают маслостойкость бумаги, что делает ее пригодной для упаковки закусок, печенья, фаст-фуда и жирных продуктов.

- Пергаментная бумага представляет собой обработанную кислотой бумагу, которая делает ее непроницаемой для жидкостей, но не для воздуха и пара. Используется для упаковки масла и сала [1].
Картон — относительно более толстый и тяжелый материал, чем бумага. Широко используется в качестве вторичной упаковки, не контактирующей с пищевыми продуктами. Коробки, лотки и картонные коробки, используемые для транспортировки, являются обычным использованием картона. Типы картона различаются между белой доской, твердой доской, ДСП и древесноволокнистой плитой.
- Белая доска — единственный картон, рекомендуемый для первичной упаковки.
- Плотный картон — это прочный и долговечный картон, используемый для упаковки молока, фруктовых соков и безалкогольных напитков.
- ДСП — это самый дешевый вид картона, изготовленный из переработанной бумаги и используемый в качестве внешнего слоя картонной упаковки для пищевых продуктов, таких как крупы и чай.

- Древесноволокнистый картон используется для перевозки пищевых продуктов навалом из-за его прочности и устойчивости к ударным царапинам и раздавливанию [11].
Другой формой бумаги является ламинированная бумага , представляющая собой мелованную или немелованную бумагу на основе крафт-бумаги и сульфитных тканей. Они обладают повышенными барьерными свойствами и используются для упаковки супов, специй и трав [1].
Стекло
Стекло— еще один постоянный упаковочный материал, который использовался на протяжении тысячелетий. Самые ранние свидетельства производства стекла относятся к 7000 г. до н.э. [12]. Тем не менее, выдувание стекла из бутылок было открыто римлянами в 50 г.C. в районе современного Ливана [13].
Стеклохорошо известно как один из самых надежных и наименее токсичных материалов для упаковки продуктов питания и напитков. К его преимуществам относятся [14]:
- Непроницаемость
- Инертность
- Прочность
- Гигиена
- Защита от взлома
- Качественный цвет
- Дизайн
- Потенциал украшения
- Прозрачность
- Химическая собственность
- Возможность использования в микроволновой печи
- Термическая обработка
Существует два типа стеклянной упаковки, которые наиболее широко используются для пищевых продуктов и напитков: бутылки с узким горлышком и широко открывающиеся банки и горшки.
обычно используются для алкогольных напитков, безалкогольных напитков и питьевой воды. Продукты, упакованные в стеклянную тару, варьируются от кофе до молочных продуктов, специй, спредов, сиропов, переработанных овощей и фруктов, а также мясных и рыбных продуктов [15]. С ростом популярности и использования других упаковочных материалов, таких как металлы и пластмассы, ценные продукты предпочитают упаковывать в стеклянную тару из-за их качественных характеристик сохранения внешнего вида и аромата [16].
Стеклов основном изготавливается из соды, извести и кремнезема — в дополнение к другим элементам в зависимости от желаемых характеристик — и производится путем плавления и формования контейнеров. Обработка поверхности, термообработка и отжиг являются последующими этапами производственного процесса. Он пригоден для повторного использования и бесконечного повторного использования путем дробления, плавления и преобразования без потери качества [15].
Пластик
Пластмассы являются наиболее распространенными и самыми разнообразными материалами, используемыми для упаковки пищевых продуктов. Некоторые из их широко распространенных применений — это бутылки, подносы, пакеты, фольга, чашки, горшки, пакеты и миски. Объем пластика, предназначенного для упаковки пищевых продуктов, составляет около 40% пластика [16]. Удобство и широкое использование пластика в пищевой упаковке обусловлено его низкой стоимостью, простотой обработки, формуемости, химической стойкостью, малым весом и разнообразием физических свойств [1]. Однако пластик страдает от проницаемости для газа, пара и света.
Пластмассы можно разделить на две основные категории: термореактивные и термопласты.
Термореактивные полимеры — это полимеры, которые безвозвратно затвердевают при нагревании и не поддаются преобразованию, что делает их непригодными для упаковки пищевых продуктов. Термопласты, напротив, размягчаются при нагревании и способны сохранять исходные условия при комнатной температуре. Это делает их идеальными для упаковки пищевых продуктов. Кроме того, несмотря на определенные функциональные ограничения, термопласты подлежат вторичной переработке путем плавления, воспроизводства и повторного использования в качестве новых продуктов [1].
Несмотря на проблемы со здоровьем и безопасностью, связанные с остаточными компонентами из пластика, использование пластика продолжает расти по сравнению с вышеупомянутыми традиционными материалами из-за его дешевизны, термосвариваемости, пригодности для использования в микроволновой печи и простоты изготовления в бесчисленных формах и размерах.
Из пластиков, используемых для упаковки пищевых продуктов, наиболее распространенными материалами являются полиолефины и полиэстер .
Другие материалы включают поливинилхлорид, поливинилиденхлорид, полистирол, полиамид и этиленвиниловый спирт [1].
Полиэтилен и полипропилен являются материалами из категории полиолефинов. Эти два материала широко используются благодаря их легкому весу, пластичности, прочности, стабильности, технологичности, возможности повторного использования и устойчивости к химическим веществам и влаге.Бутылки для молока, сока и воды, продуктовые, розничные и мусорные мешки, а также мешки для хлеба и замороженных продуктов — вот некоторые из применений полиэтилена.
Полипропилен используется, когда необходима термостойкость. Контейнеры для йогурта и баночки для маргарина — это изделия из полипропилена.
Полиэстер, наиболее часто используемый в пищевой упаковке, — это полиэтилентерефталат, более известный как РЕТЕ. PETE является устойчивым к теплу, маслам, растворителям и кислотам. Обладает хорошей пластичностью, прочностью и твердостью. К его выгодным свойствам также относятся легкость, газонепроницаемость, прозрачность и устойчивость к взлому.Он в основном используется в бутылках, ваннах, банках, лотках, блистерах, пакетах и обертках для закусок.
Почему экологичная упаковка для пищевых продуктов актуальна как никогда
Пищевые отходы — это не только экономическая и социальная проблема, но и сложная экологическая проблема. Его воздействие на окружающую среду, такое как высокий углеродный след и след голубой воды, является прямым указанием на риски, связанные с пищевыми отходами.
По состоянию на 2018 год только в Европе ежегодно выбрасывается более 100 миллионов тонн продуктов питания.
Это составляет около трети цепочки поставок агропродовольственной продукции. Ожидается даже удвоение к 2050 году в связи с глобальным увеличением спроса на продукты питания [17].
Значительная часть пищевых отходов связана с коротким сроком хранения, особенно свежих продуктов; не говоря уже о влиянии ошибочных или неправильно понятых этикеток с датой истечения срока годности, что приводит к преждевременной и предотвратимой утилизации продуктов питания.
Упаковка позиционируется как фундаментальный фактор устойчивого потребления продуктов питания, особенно с точки зрения сохранения качества и безопасности.Тем не менее, это воспринимается почти как палка о двух концах, имеющая дополнительные экологические и экономические издержки по сравнению с его ценностью сокращения пищевых отходов.
Агентство по охране окружающей среды США (EPA) заявило, что более 82 миллионов тонн твердых бытовых отходов (ТБО) в 2018 году приходилось на контейнеры и упаковку. Это было колоссальные 28,1% от общего образования ТБО [18].
Вот почему усилия по обеспечению устойчивости, такие как переработка, компостирование или рекуперация энергии от сгорания, были реализованы, чтобы свести к минимуму захоронение отходов, поступающих от упаковки.
Устойчивая упаковка для пищевых продуктов больше не просто вариант, а необходимость. Независимо от упаковочного материала, с этого момента крайне важно учитывать экологичность как решающий фактор при выборе материала. От добычи сырья до обработки, производства, потребления и утилизации люди, участвующие в любом из этапов жизненного цикла, должны знать о воздействии, которое такой материал может иметь по всем трем аспектам устойчивости (экологическому, экономическому и социальному). .
К компаниям, занимающимся производством материалов для экологичной упаковки пищевых продуктов, относятся:
Будущее материалов для упаковки пищевых продуктов
Инновации и достижения в области материаловедения обеспечили пищевой упаковке позитивное будущее с точки зрения эффективности и воздействия на окружающую среду.
Смарт-упаковка (или Интеллектуальная упаковка) в последнее время набирает популярность, и к 2024 году ожидается, что объем рынка составит 26,7 млрд долларов [2]. Умная упаковка представляет собой упаковочные системы с датчиками, помогающими продлить срок годности продуктов, получить информацию о свежести и качестве и повысить безопасность продукта и потребителя.
Другой технологией в упаковочных системах является активная упаковка , которая представляет собой интеграцию добавок с упаковками для улучшения срока годности и качества пищевых продуктов [19].
Нанотехнологии также смогли проникнуть в индустрию упаковки пищевых продуктов. Это помогает улучшить тепловые и механические свойства пищевых упаковок. Наносенсоры, встроенные в упаковочные системы, также могут помочь отслеживать, идентифицировать и предупреждать о безопасности и качестве пищевых продуктов.Хотя влияние наночастиц на здоровье человека еще недостаточно изучено, за нанотехнологиями открывается многообещающее будущее [20].
Когда дело доходит до обращения с отходами, отходы упаковки занимают большую часть твердых бытовых отходов (ТБО), что приводит к росту экологических проблем [21]. Биоразлагаемые полимеры возникли как альтернатива традиционным пластикам в пищевой упаковке. Эти полимеры разлагаются на CO 2 , воду, неорганические соединения и биомассу.Типы и области применения некоторых биоразлагаемых полимеров перечислены в таблице 1.
БИОРАЗЛАГАЕМЫЕ ПОЛИМЕРЫ | ||
Категория | Тип полимера | Заявка |
Натуральные полимеры | Крахмал | Пленки, чашки, тарелки, подносы, одноразовая посуда |
Целлюлоза | Пленки, упаковка для свежих продуктов, упаковка для выпечки | |
Хитозан | Пленки для свежих фруктов и овощей | |
Белок | Пленки, покрытие на бумаге | |
Синтетические биополимеры | Полигидроксиалканоаты (ПГА) | Сырные покрытия, тарелки для фаст-фуда, бутылки, контейнеры, листы |
Бактериальная целлюлоза (БЦ) | Фильмы | |
Ненатуральные полимеры | Поли(виниловый спирт) (ПВА) | Водорастворимые пленки |
Полилактид (PLA) | Бумажные покрытия, пленки | |
Полигликолид (PGA) | Защитный слой в многослойных упаковках, таких как ПЭТ-бутылки, чашки, блюда, подносы | |
Поли(э-капролактон) (PCL) | Лотки из пеноматериала, насыпные, пленочные пакеты | |
Поли(бутиленсукцинат) (PBS) | Пленки, пакеты | |
Поли(триметилентерефталат) (ПТТ) | Фильмы | |
Поли(бутиленадипат-ко-терефталат) (PBAT) | Пленки, выдувные бутылки, одноразовые пищевые пакеты, лотки | |
Таблица 1: Различные категории, типы и области применения биоразлагаемых полимеров.
Информация, полученная из Ref. 21.
[1] Марш, К. и Бугусу, Б. (2007). Пищевая упаковка – роль, материалы и экологические проблемы. Институт пищевых технологов. 72 . №3. 39-55.
[2] Schaefer, D. & Cheung, WM (2018). Умная упаковка: возможности и проблемы. Процедура CIRP. 72 , 1022-1027.
[3] Сиракузы, В. и Роза, доктор медицины (2018). Устойчивая упаковка.В Устойчивые продовольственные системы от сельского хозяйства до промышленности. 275-307.
[4] Дас, Р. (2018). Гибкая упаковка против жесткой упаковки: какую выбрать? Получено с: https://bizongo.com/blog/flexible-packaging-vs-rigid-packaging/
[5] Geueke, B. et al. (2018). Пищевая упаковка в экономике замкнутого цикла: обзор аспектов химической безопасности широко используемых материалов. Журнал чистого производства. 193 . 491-505.
[6] (2008 г.).Научное заключение Группы по пищевым добавкам, ароматизаторам, технологическим добавкам и материалам, контактирующим с пищевыми продуктами, по запросу Европейской комиссии по безопасности алюминия при поступлении в организм с пищей.
Журнал EFSA. 754 . 1-34.
[7] (без даты). Пищевая упаковка с алюминиевой фольгой. Получено с: https://alfipa.com/applications/aluminum-foil-laminates-food-packaging/
[8] (без даты). Алюминиевая фольга. Международная корпорация CNBM. Получено с: https://www.aluminiumchina.com/__novadocuments/427439?v=636512583854
0
[9] (без даты). Белая жесть и сталь без олова. Сталелитейная корпорация JFE. Получено с: http://202.229.24.177/en/products/sheets/catalog/b1e-006.pdf
[10] Кирван, М. (2003). Бумажная и картонная упаковка. В: Коулз Р., Кирван М. (ред.) Технология упаковки пищевых продуктов. 241-281. КПР Пресс.
[11] Сорока В. (1999). Бумага и картон. В Основы технологии упаковки. Институт профессионалов упаковки.
[12] Риш, С.Дж. (2009). История упаковки пищевых продуктов и инновации . Журнал сельскохозяйственной и пищевой химии, 57 (18), 8089–8092.
[13] (2011) Стекло римлян.
Музей стекла Корнинга. Получено с: https://www.cmog.org/article/glass-romans
[14] Франко, И. и Фальк, Э. (2016). Стеклянная упаковка. Справочный модуль по пищевой науке.
[15] Грейхерст, П. и Гирлинг, П.Дж., (2011). Упаковка пищевых продуктов в стеклянную тару. В: Коулз, Р., Кирван, М. (ред.), Технология упаковки пищевых продуктов и напитков, второе изд. Место: John Wiley & Sons Ltd, Великобритания.
[16] Моханти, Ф. и Суэйн, С.К. (2017). Бионанокомпозиты для упаковки пищевых продуктов. Применение нанотехнологий в пищевой промышленности. 363-379.
[17] Guillard, V. et al. (2018). Следующее поколение устойчивой пищевой упаковки для сохранения окружающей среды в контексте экономики замкнутого цикла. Границы в питании . 5 . Статья 121.
[18] Агентство по охране окружающей среды США (EPA). (2018). Контейнеры и упаковка: данные для конкретных продуктов. Получено с: https://www.epa.gov/facts-and-figures-about-materials-waste-and-recycling/containers-and-packaging-product-specific-data
[19] Majid, I.
et al. (2016). Новые технологии упаковки пищевых продуктов: инновации и перспективы на будущее. Журнал Саудовского общества сельскохозяйственных наук . 17 . 454–462.
[20] Димитриевич М. и соавт. (2015). Аспекты безопасности применения нанотехнологий в пищевой упаковке. Procedia Food Science . 5 . 57-60.
[21] Rydz, J. et al. (2018). Настоящее и будущее биоразлагаемых полимеров для пищевой упаковки. Биополимеры для дизайна продуктов питания. 431-467.
Стоимость гибкой стены. 67 — 7 долларов. панели в существующий вариант комплекта или создать собственную систему, сгруппировав панели, накладки и аксессуары.«На самых горячих рынках жилья переделка кухни или ванной — это безотказная инвестиция, часто возвращающая более 100 процентов стоимости. Выкованная из стали и созданная для создателей контента, Multi Mount представляет собой модульную систему оснастки, которая позволяет смешивать компоненты в соответствии с вашим рабочим процессом.
Как и герметичные стены, частичные монтируются без шурупов и гвоздей. 99. Комплекты облицовки дымохода Z-Flex® — газ, алюминий. Чтобы воплотить ваше видение в жизнь, мы предлагаем три категории светодиодов: Светодиоды для внутреннего освещения: экономичные светодиодные дисплеи и светодиодные дисплеи сверхвысокой четкости, адаптируемые светодиодные модули, прозрачные светодиоды и многое другое Светодиодные светильники для наружного освещения: светодиодные панели высокого разрешения, светодиодные рекламные щиты, автономные светодиодные дисплеи и подробнее Арендные светодиодные сцены: светодиодные видеостены, светодиоды высокого разрешения… Flexmaster HVAC Systems.Покрытие всего этого краской добавляет от 2 до 6 долларов за квадратный фут. Связь с коллегой. Принтер Allwin Flex ₹ 5. Каждая секция имеет длину 4 фута, ширину 4 дюйма и 6 дюймов. Можно наносить на стены из бетона, кирпича, шлакоблока или гипсокартона. Стоимость гипсокартона. Теперь рулон Flex Tape стоит 13 долларов и имеет длину всего 5 футов, и вы можете получить 36 футов настоящей ленты для мух за ту же сумму, но сколько угодно.
Сделано в США. НАКЛОНИТЕСЬ НА КРЕПЛЕНИЕ. Вы можете выбрать один из трех вариантов: Flex, Vinyl и Non-tear. Мобильная силовая установка. Выдвижные стены для гибкой жизни.Система Flex Office Wall System предлагает гибкость и возможности, которые обычно не встречаются в модульных офисных перегородках. Получите справедливую стоимость для ваших КОНКРЕТНЫХ проектных требований. Пистолет для герметика необходим для использования патронов. Технология масштабирования искусственного интеллекта The Wall на базе процессора Quantum Flex создает визуальные инновации без границ. Медиа-стены с камином Большинство медиа-стен поставляются с камином, средняя стоимость которого составляет около 2300–3500 фунтов стерлингов. Это лучший выбор среди плоских листов среди профессионалов отрасли.429 долларов. Эта цена может существенно возрасти с дополнительными функциями и высококачественными материалами. Инновационная конструкция с двойными стенками DoubleTrac ® включает в себя основной внутренний слой из непроницаемой, высококоррозионностойкой гофрированной нержавеющей стали с внешним барьерным слоем EFEP, соединенным с защитным слоем из нейлона 12.
6 из 5 звезд. Мобильный блок питания имеет три (3) порта USB-C и один (1) порт USB-A, заряжается за 8 часов, имеет мощность 218 Вт-ч и общую выходную мощность зарядки 117 Вт. Лучшая цена гибких вкладышей дымохода и комплектов вкладышей дымохода.00 долларов США. 23.04.2021. Подвал стоит в среднем 4118 долларов, или от 3 до 9 долларов за квадратный фут, включая герметизацию внутренних и наружных стен. Mar-flex предлагает продукты, которые могут удовлетворить любые потребности в гидроизоляции и строительстве. Эти системы обеспечивают как отопление, так и охлаждение для круглогодичного комфорта. Изготовлены с надежным замковым швом для превосходной прочности и гибкости. 1325. Flex Seal разработан для распыления с помощью мощного безвоздушного распылителя. 31 доллар. Наши видеостеновые панели с мелким шагом пикселя спроектированы для работы с шагами сверхвысокого разрешения, калибровкой пикселей и многим другим.Система Flex Raceway. Алюминиевые воздуховоды — гибкие. Одностенная гофрированная труба из полиэтилена высокой плотности идеально подходит для дренажных проектов, где важны гибкость, малый вес и низкая стоимость.
DoubleTrac ® создает экологически более безопасную систему по более низкой цене. Этот блок имел максимальную выходную мощность Quantum Processor Flex. Просто отправьте заполненный контрольный список проекта, и наш технический персонал предоставит вам предложение, подробный чертеж с указанием деталей и список материалов. Сделайте заказ прямо сейчас и наслаждайтесь быстрой и удобной доставкой.PEX также представляет собой гибкий пластиковый шланг, который можно вкручивать в стены с минимальным повреждением. Введите размер проекта, качество продукции и вид работ, чтобы получить смету цен на материалы для эпоксидных полов и стоимость установки. Гибкая стена, которую иногда называют герметичной или временной стеной, позволяет разделить комнату с помощью стены, которую можно добавлять и удалять, не оставляя повреждений. Стоимость Flex Paste составляет 12 долларов. 9116, улица № 0% годовых с даты соответствующей покупки до полной оплаты. Стоимость работ по поклейке и отделке гипсокартона составляет 1 доллар.
Семейство продуктов Armotec ® (ArmorFlex, A-Jacks и Armortec) вместе с последним дополнением XblocPlus (революционная система жесткой брони, идеально подходящая для обширных береговых линий и волнорезов) предлагает постоянные решения для эрозии путем армирования области максимального размывания. Затем панели просто приклеиваются к стене с помощью клея. Ниже мы разработали и поделились с вами БЕСПЛАТНЫМ калькулятором стоимости. Pipetite представляет собой гибкий самоуплотняющийся защитный чехол для стен, который может герметизировать проход, позволяя трубе двигаться в значительных пределах.Устойчивость: Стены Flex MSE требуют минимального начального выравнивания или заделки подстилающего слоя. ПРОВОДИТЬ ИССЛЕДОВАНИЯ. 136 North Ogden St. Если вы заливаете бетон или занимаетесь другим ландшафтным дизайном вокруг бассейна, бетонные формы Flexiform могут работать как форма, которая поможет вам в вашем проекте. (4. Компания EP Henry предлагает самый широкий ассортимент стеновых систем на рынке, каждая из которых обладает своими уникальными особенностями и преимуществами.
Подарите своим гостям спа-салона больше удовольствия с помощью стены из гималайской соли. FlexxBoard25 — это идеальная пенопластовая изоляционная плита для использования над или под землей: Термический барьер под плитой — при использовании в качестве теплового барьера перед заливкой бетона FlexxBoard25 связывается с бетоном, уменьшая потери тепла и помогая предотвратить возможное морозное пучение.Установка рассчитана на 30 минут, поэтому ее легко настроить, чтобы начать заниматься фитнесом. Установка потолка стоит в среднем 1600 долларов. Для внутренних застроек обычно оцениваются затраты на квадратный фут: Низкая — от 50 до 80 долларов за SF. Kwik-Wall специализируется на функциональных перегородках, подвижных стенах, перегородках-гармошках, складных стеновых перегородках и подвижных стеклянных перегородках. Просмотр сведений. Конструкция колпачков Flex идеально подходит для защитных колпачков, при этом окрашенная поверхность не царапается колпачком! Новый профиль Flex предназначен для формирования пула на рабочем месте, что делает его наиболее экономичным покрытием для пулов произвольной формы.
Кроме того, это экономически выгодно, экономя ваши деньги на строительстве в течение всего срока службы вашей конструкции. Газоотводчик типа B спроектирован так, чтобы быстро нагреваться. Вы можете выбрать кабель длиной 8 1/2 футов или 18 футов. Гибкие стены используют давление от пола до потолка, не оставляя повреждений квартире. Если вам нужна более подробная оценка, заполните нашу форму запроса проекта, и кто-то из нашей команды свяжется с вами, чтобы обсудить ваш проект. Середина — от 81 до 135 долларов за SF. Flex Tape Прочная прорезиненная водонепроницаемая лента, 4 дюйма x 5 футов, прозрачная.Стоимость использования Flex Seal для герметизации вашего подвала колеблется от 1 доллара США. Платформа Flexmls от FBS — металлическое цинковое покрытие Clareity для труб из ковкого чугуна. Настольный футбол или бильярд станет отличным украшением комнаты, а дартс, бильярд и другие компактные игры можно закрепить на стене. Угловая отделка ULTRAFLEX 325 для гипсокартона обладает такой же долговечностью и прочностью, что и ULTRAFLEX 450, но с меньшей шириной полки, что делает ее идеальной для более коротких пролетов под углом.
Они могут включать водосточные трубы, фундамент и ванную и душевую кабину.Облицовка Stuc-O-Flex позволила архитектурному сообществу и строителям предлагать дома с элегантной эстетической привлекательностью при сохранении реалистичного бюджета. Независимо от того, требуются ли вашему рынку дома конкурентоспособной стоимости или индивидуальные конструкции для самых разборчивых клиентов, Stuc-O-Flex International может создать внешний вид, который требуется вашим клиентам. Buffalo, N. Цена указана в филиппинских песо (Php). Избегайте дорогостоящего ремонта и используйте существующее пространство более эффективно. 86: Гибкий воздуховод 8 дюймов X 5 футов: 95 долларов.Гибкая труба спроектирована таким образом, чтобы противостоять раздавливанию, перегибам и ультрафиолетовому излучению. 3 мм. НФПА 90А, 90В. В этих машинах используются мощные цепные молотки, которые расширяются до размера трубы, чтобы быстро очистить всю окружность. Marine Flex — одна из самых передовых систем швартовки, изобретенная в Новой Зеландии для мирового рынка.
Связаться с поставщиком Запросить предложение. Выберите один из 4 вариантов цвета для ваших роликов на … Временные стены NYC — Герметичные стены NYC — Временные стены для квартир, Manhattan Герметичные стены; гибкие стены NYC и перегородки NYC.Мы производим панели FRP, включая дизайнерские и архитектурные стеновые панели для любого коммерческого здания. Добавить в корзину. 470. Магазин домашнего офиса. Дополните свое пространство Получите максимальную отдачу от своей установки с аксессуарами и активными решениями для рабочего пространства. Набор из двух деревянных стульев $ 325. НАЧАЛО ЗДЕСЬ! Флекс Кинг. x 40 дюймов. Увеличьте глобальный охват. Воспользуйтесь нашими онлайн-услугами по печати баннеров и добавьте свои собственные элементы. 00. Частичные стены стали предпочтительным вариантом для арендаторов, ищущих временные решения, поскольку многие арендодатели не разрешают герметичную стену от пола до потолка.Расходные материалы для изготовления перегородки своими руками могут стоить от 150 до 500 долларов и более за Г-образную стену высотой 8 футов и длиной около 18-20 футов, в зависимости от местных цен на пиломатериалы и используемых материалов, таких как гипсокартон или картон.
. Уникальное сочетание физических и механических свойств PRIMA Flex делает его превосходящим … Мы предлагаем экологически чистую изоляцию для труб K-Flex Insul-Lock длиной 6 футов, которая доступна с толщиной стенки от 3/8 дюйма до 1 дюйма и размерами от от 1/2″ до 4-1/8″.Гнездовой конец каждого компонента Z-Vent включает самоуплотняющуюся прокладку Double Fail Safe. Печать баннеров Flex онлайн. Эта система Pioneer Series FYB-M22 FYB012GMFILCAD-16 с гибким креплением на пол / низкую стену без воздуховодов мини-сплит-система переменного тока / теплового насоса обеспечивает охлаждение и обогрев в одном! С жалюзи 3D для выброса воздуха вы можете быть уверены, что каждая часть вашего бизнеса будет должным образом циркулировать как с холодным, так и с горячим воздухом. Когда результаты автозаполнения доступны, используйте стрелки вверх и вниз для просмотра и ввода для выбора.Серия NxtWall Flex и View идеально подходят как для нового строительства, так и для проектов реконструкции в любом коммерческом, промышленном, правительственном или институциональном здании.
x 48 дюймов. Если вы не уверены, какой уровень защиты вам подходит, свяжитесь с нами. Цена Hardiflex основана на средней стоимости листа или плиты. 18. Ценообразование FlexOne — сплошные цвета по одной цене. Это хорошо для домов с подвижным фундаментом, потому что вероятность того, что он треснет, меньше. Звоните +91-8048707377. Таким образом, что такое гибкая стена? Гибкая стена — это временная стена, которая устанавливается с использованием давления и может быть размещена во многих магазинах.Экологически чистые и на 100% изготовлены из переработанных шин. Наши отмеченные наградами стеклянные доски были полностью разработаны с учетом ваших потребностей. Понимая ограничения, связанные с установкой стандартных систем швартовки за 30-летний период, изобретатель Майк Бейкер использовал свой опыт для разработки инновационной, чрезвычайно надежной и экологически чистой системы швартовки. S. Сигнал микрофона. Ускорьте выход на рынок. Каждая из наших стеклянных досок с гладким закаленным стеклом, бескаркасной конструкцией и полированным краем обладает всеми лучшими характеристиками.
В системе растительных стен Flex MSE используются те же общепринятые принципы механически стабилизированного грунта (MSE), на которые полагаются строители при возведении массивных подпорных стен. Останавливаюсь в квартире с 2 спальнями, где моя спальня является гостиной. По данным Института газовых исследований, экономия рабочей силы составляет от 25% до 66% для новых строительных проектов с использованием установок CSST. Прямоугольный гибкий воздуховод Biyang, также называемый прямоугольным гибким воздуховодом или квадратным гибким воздуховодом, является редким продуктом в отрасли HVAC.11-компонентная клейкая стенка для ванны/душевой кабины Easy Up из калипсо со 196 отзывами и FlexStone 15 дюймов. Она даст волю вашему воображению, когда дело доходит до естественного стиля или дизайна ваших личных или общественных пространств. Y. ROYALE 3-СТЕННАЯ ВАННА ИЛИ ДУШЕВОЙ КОМПЛЕКТ. Изоляция трубы, стенка 3/4″. Полиэтиленовый кожух для трубы из ковкого чугуна. Ограниченная гарантия Eco-wall на 10 лет.
АДАПТИРУЕМЫЙ ДУШЕВОЙ КОМПЛЕКТ ДЛЯ ТРЕХ СТЕН. Полуостровные каминные вставки. Гибкий воздуховод соединяет воздуховоды системы отопления и охлаждения с воздухом. распределение.Временные стены Flex используются для разделения комнаты, офиса или квартиры, чтобы использовать свободное пространство. 3. порции листовой зелени ежегодно. Одним словом: «Сотрудничество». 00 и станет отличным подарком к празднику для любителя электромобилей в вашей жизни Автоматический пылесос Navigator ® V-Flex ™ обеспечивает большую мощность, надежность и производительность, чем когда-либо. Прочтите вопросы клиентов о трубах с прямой вентиляцией, на которые ответили наши специалисты по каминам. по ценам и наличию. Гладкая внутренняя стенка оптимизирует поступление газов. Система стен Flex MSE с растительностью представляет собой уникальное запатентованное инженерное решение для подпорных стен с растительностью и контроля эрозии.Наши партнеры растут. Использование отделки 96 x 3 дюйма вместе с облицовкой стен FlexStone позволяет установить систему FlexStone поверх существующей керамической плитки, мрамора или твердой поверхности толщиной до полных 1-1/2 дюйма.
130 долларов США. Возведение новой стены или пристройка — это большое обязательство. Зоро № G8547016 Производитель № 534-AC41210. Образует гладкую, монолитную, водонепроницаемую поверхность стен, полов и потолков. Санитарно-непроницаемый переход от пола к стене. Кроме того, … Примерно 50% стоимости металлических сетчатых экранов (установленных), экраны гаражей FlexFacades являются очевидным выбором для разработчиков, архитекторов и подрядчиков, которые не хотят жертвовать дизайном, но должны сдерживать расходы.Выберите Параметры. СТОИТ МЕНЬШЕ, ЧЕМ. 00 за фунт. Воздухонепроницаемый шов, гладкая отделка и лучшая посадка. В качестве дополнительного компонента одобренная DuPont пена для распыления в полости стойки для дополнительной герметизации воздуха и воды. • Возвратите до 35% ваших инвестиций в проект стен за счет FlexStone. Гибкая труба хороша и часто используется в надземных и подземных установках для водопровода, прудов, водных объектов, спринклеров и ирригационных систем. Соедините два FLEX встык и столько, сколько хотите, бок о бок, а затем сложите их до трех этажей.
срок использования. резиновое напольное покрытие. С FLEXCO® Base 2000™ вы получаете основу из термопластичного каучука типа TP, которая обладает многими преимуществами каучука по более низкой цене. Предполагаемый ежемесячный платеж равен приемлемой сумме покупки, умноженной на коэффициент погашения и округленной до копейки (коэффициенты погашения: … Внутренняя стенка утоплена для предотвращения повреждений при обращении. Идеально подходит для рабочих станций, учебных помещений, совещаний 866-941-5112. Сделано из суперферритной нержавеющей стали.Оборудование «от стены до стены»: История загадочного приводного вала Адама Скотта за 790 долларов.• Возвратите до 35% ваших инвестиций в проект стены в 1Day Wall. Z-Vent Специальный газовый клапан с двойной стенкой. Flex Walls Нью-Йорк. x 80 дюймов. Что такое гибкая стена? Гибкая стена — это временная стена, которая устанавливается с использованием давления и может быть размещена во многих местах Lip In Golden Beaches. Кроме того, все, что вам нужно, поставляется с ним, от … Так почему же PEX является наиболее экономичным выбором для ремонта вашего дома? Трубка из сшитого полиэтилена (более известная как PEX) стоит около 0 долларов.
Комбинированный набор бесщеточных электроинструментов на 24 В с 2 инструментами и мягким футляром (2 батареи и зарядное устройство в комплекте) Модель № FXM202-2B.Изготовленный одним из ведущих брендов в области бетонных конструкций, Flexiform является идеальным выбором, если вам нужен плитный бетон. Здесь вы найдете размеры, аксессуары, видео и простые инструкции. Комбинированная система Wall соответствует всем ⊕ 0% годовых на 24, 36, 40 или 48 месяцев с равными платежами: доступно при покупке некоторых продуктов, оплачиваемых со счета Samsung Financing. ПРЕИМУЩЕСТВА. 70 за квадратный метр. «Благодаря QuickFlex Walls вы можете оптимизировать расходы, одновременно повышая гибкость. Оптимальное местоположение для арендатора склада во многом зависит от того, как эта компания получает свои запасы и где находится клиентская база для этих продуктов.Металлическая стеновая система — серия Flex AEP Span Металлические стеновые панели — Box Rib™ AEP Span Полное руководство по покрытиям PVDF Покрытия Sherwin-Williams Coil Coatings Архитектурная сетка — EGLA-DUO 4222 Здесь, в Wethertex, наша страсть на протяжении более 45 лет заключается в разработке инновационных продуктов.
дать зданиям и домам по всей Великобритании пожизненную защиту и украшение. Когда он высыхает, он создает гибкую поверхность, которая гнется. Задайте вопросы нашему персоналу. Наши специалисты по каминам, сертифицированные NFI, ответят на ваши вопросы бесплатно! Съемные перегородки серии Flex.09. Герметичные воздуховоды – гибкие. Прямая подача газа. Лист оценки Flex MSE. Домовладельцы считают, что эта гофрированная труба является экономичным и простым в установке решением распространенных проблем отвода ливневых вод в жилых помещениях. Конвекция с двумя вентиляторами: два вентилятора обеспечивают циркуляцию воздуха для более быстрого, равномерного и эффективного приготовления пищи. 5-дюймовая поверхность Запатентованная лицевая сторона из бумаги, пластика и швов… Создайте гибкую комнату. ВСЕ, ЧТО ВАМ НУЖНО ДЛЯ ОБНОВЛЕНИЯ ЛЮБОГО ПРОСТРАНСТВА. Компания Biyang, как опытный производитель гибких воздуховодов, предлагает два вида прямоугольных гибких воздуховодов, в том числе прямоугольные алюминиевые гибкие воздуховоды и прямоугольные гибкие воздуховоды из ПВХ.
Позвольте нашим специалистам найти лучший продукт, цену и актуальное предложение, чтобы обеспечить 100% удовлетворенность клиентов. Сохранить с. БЕСПЛАТНАЯ ЦЕНА, позвоните по номеру 212. ChargePoint Home Flex, вилка NEMA 6-50. Если ваш дом страдает от циклического растрескивания волос, Pro-Flex Ultimate станет идеальным решением, поскольку он растягивается, чтобы приспособиться к трещинам, которые появляются с течением времени. По сравнению со стандартными материалами для сайдинга вы обнаружите, что стоимость Stuc-O-Flex чрезвычайно конкурентоспособна, а преимущества намного превосходят альтернативные варианты материалов.Flex MSE экономически эффективен. 1 доллар. Адаптеры Z-Vent. 40″ толщиной и обеспечивает необходимую защиту по более низкой цене. Идеально подходит для дворов, садов и детских площадок. Рост: 11.00 – 717$. Гипсокартон стоит 0 долларов. Передовая практика «пожарной стены» с точки зрения кодов, OTOH, ТАКЖЕ обеспечивает степень звукоизоляции, которая обычно «достаточно хороша» для коммерческого использования, ее легче кодировать и количественно оценивать, добавляет ценность, которую легче измерить, и проще до … В сочетании с нашими системами изоляции Geo-Drain Tile и Drainage Board мы предлагаем комплексное решение для ваших коммерческих потребностей в гидроизоляции.
«Повесьте длинные полоски ленты Flex Tape в местах, где вы хотите свести к минимуму количество насекомых», — предлагает сайт. Аксессуары ОВиК. Изолированная стеновая панель Sedona. Navigator V-Flex, оснащенный запатентованной технологией турбины V-Flex с регулируемыми лопастями, может собирать более крупную грязь и мусор эффективнее, чем любой другой очиститель на рынке, обеспечивая чистку без засоров. Инфляция достигла максимума за последние три десятилетия … Временные стены Нью-Йорка, герметичные стены NYC и гибкие стены NYC от компании All Week Walls предлагает лучшее решение для временных стен Нью-Йорка и герметичных стен +1 (646) 265-2452 Бесплатный расчет.ДУШЕВОЙ КОМПЛЕКТ SPLENDOR С ДВУМЯ СТЕНАМИ. Полная стоимость стен Flex MSE обычно на 40-50% ниже, чем у других систем. . Позвольте нам помочь вам! Мы понимаем, что у наших клиентов разные потребности, цели и бюджеты при выборе межкомнатной перегородки. UL 181. Poly Wall производит лидирующую на рынке линейку гидроизоляционных и воздухонепроницаемых мембран, предназначенных для повышения целостности вашей конструкции.
Использование на коротких участках менее 10 футов Вертикальные установки под углом и стойки Локтевые потолки 90° внутренние/внешние углы из гипсокартона Тонкие края для более гладкой растушевки Более гибкий шарнир обеспечивает прямое… Решения Armortec для защиты береговой линии и берегов рек.Модель: 4GV24. Нажмите здесь, чтобы перейти на страницу сведений о защите от грызунов Защита от грызунов. Таким образом, что такое гибкая стена? Гибкая стена — это временная стена, которая устанавливается с использованием давления и может быть размещена во многих съемных стенах серии Flex. 175. Тканевые воздуховоды — гибкие. Выберите параметры. Flex Paste все еще можно найти в продаже на Amazon или Ebay. Flexsteel Industries, Inc. Помогает выпрямить плохой каркас и скрыть большие зазоры в углах гипсокартона, выдерживая осадку, усадку пиломатериалов, сейсмические движения и колебания температуры.Уровень 2, 240-вольтовая зарядная станция для электромобилей (EV) заряжает любой электромобиль до 9 раз быстрее, чем обычная настенная розетка, с гибкой силой тока Независимо от того, разделяете ли вы классные комнаты, делите конференц-залы на управляемые зоны или выставляете произведения искусства, то, что вам нужно является гибким решением.
5. ФЛЕКС. Ключевые слова: стеклянные перегородки, стеклянные стеновые панели, офисные стеклянные двери, стеклянные офисные двери, стеклянные офисные стены, алюминиевые системы перегородок, офисные стеклянные стены, гнутые стеклянные стены Дата создания: 12.07.2016 18:10:08 Flex MSE Vegetated Wall System предлагает решение для зеленых стен.Архитекторы и дизайнеры часто сталкиваются с различными проблемами и проблемами, связанными с плавным переходом от пола к стене. 2. Зангер сказал, что его компания установила от 300 до 400 стен в прошлом году. 75: 5″ X 25′ Flex Duct: Стены за 121 доллар. На окончательную цену влияет множество решений, и полезно изучить их все, прежде чем выбрать продукт для вашего приложения. Цифровая гибкая печатная машина ₹ 6 Lakh. com, универсальный магазин для любой офисной мебели.Нет никаких ограничений по цветам или дизайну, и вы можете заказать по цене от одного баннера.Flex Seal Liquid Rubber Sealant Coating, 16 унций, белый. Захват телефона. Размер и длина на шаге 1.
Выберите компоненты комплекта для вашего приложения на шагах 2-4. Нажмите «Добавить в корзину» в конце, чтобы узнать общую стоимость. Свяжитесь с одним из наших сертифицированных технических специалистов CSIA, если у вас есть гибкий или гибкий воздуховод, являющийся неотъемлемой частью системы кондиционирования воздуха. . Точная калибровка и равномерная высота скрывают неровности пола и стен 5. Для укладки под ковровую плитку. Модель: 46DVA-CL34. Выберите один из 5 стилей рисунка для акустической панели вашего Flip, вперед! Мобильный, Flex Mobile или Flex Wall.Футерованные трубы и фитинги Protecto 401. Есть так много способов их использования, что вы можете создать свой собственный трансформирующийся умный дом будущего, используя всего пару из них. Флексстоун. 60: Гибкий воздуховод 18 дюймов X 5 футов: $233. Купить зарядное устройство ChargePoint Home Flex для электромобиля (EV) до 50 А, 240 В, Wi-Fi уровня 2 с поддержкой EVSE, внесен в список UL, Energy Star, NEMA 6-50 Plug или Hardwired, Indoor/ Наружный кабель длиной 23 фута: Зарядные станции — Amazon Платиновый герметичный воздуховод Стеклянная футеровка (фарфоровая эмаль) Эпоксидная смола Fusion Bond (206N) Эпоксидная смола Fusion Bond 134.
Позвоните нам сегодня по телефону 866-391-6295, чтобы получить индивидуальное предложение! Внедряйте инновации и выходите на новые рынки лучше, быстрее и эффективнее, чтобы предлагать своим клиентам дифференцированную ценность с помощью Flex. Вместимость – вмещает жаркое, несколько блюд для запекания или… Дренажный коврик ArmorDrain 110 . Таким образом, текущая стена находится на расстоянии 1 фута от потолка. Хотя стена создает третью спальню, она оставляет г-жу. Панели Eco-Wall и HD Eco-Wall изготовлены из 100% переработанного каучука и, как было доказано, значительно снижают шум от дорожного движения в близлежащих жилых районах, улучшая качество жизни для тех, кто жить рядом с оживленной трассой.Блоки Flex MSE доступны в виде пустых блоков, готовых Wall2Wall отлично справился с установкой гибкой стены в нашей квартире, а обслуживание клиентов было отличным, координируя установку и демонтаж! Настоятельно рекомендуем использовать Wall2Wall. Ясность. Зоро № G1808287 Производитель № 6RXLO068158.
Декоративный законченный вид. Одним из самых экономичных доступных решений Hardie Flex является … Обязательство по сокращению расходов на отопление дома В соответствии с ECO3 существует дополнительный механизм заполнения для сплошной изоляции стен и мероприятий по централизованному теплоснабжению.1 200 000. Флексиформ. Запускается пара новых компаний, чтобы справиться с высокими затратами на лекарства, что является последним признаком недовольства работодателей посредниками, известными как PBM, чья Ultra Wall Epoxy решает обе проблемы. от 50 до 0 долларов. Мелкий ремонт и заполнение трещин стоит 1500 долларов, а полная модернизация дренажа стоит от 2000 до 6000 долларов. Добавить в корзину. Дополнительные преимущества включения стен из стеклянных панелей в план этажа офиса отчасти объясняют их быстро растущую популярность среди дизайнеров офисных интерьеров.Никакого специализированного оборудования, рабочей силы, кранов, опалубки, фундаментов или арматуры. Установка 50р за квадратный метр.
Corner … Flex MSE — это экономичное, устойчивое и долговечное техническое решение. Прямая поставка Бесплатный дизайн Настенный подвесной красочный акриловый логотип Пользовательский номер 21 Неоновые буквы для украшения вечеринки, Найдите полную информацию о прямой доставке Бесплатный дизайн Настенный подвесной красочный акриловый логотип Пользовательский номер 21 Неоновая вывеска Буквы для украшения вечеринки, Стоимость Неоновые вывески Пользовательский светодиодный неон Вывеска Акриловая неоновая вывеска Неоновая вывеска China Neon … 1Day Wall.Osteo Bi-Flex Joint Health Ease Mini Tabs a Day Advanced Triple Action UC-II Collagen Formula 70 Count (упаковка из 1) 2-дневная доставка. Чтобы найти ближайшего к вам дистрибьютора, выберите его в раскрывающемся меню ниже. Гималайские соляные стены. от 20 до 1 доллара. Флекс Кинг Про. TREXIANA — Flex MSE Vegetated Wall System от Trexiana стала темой недавнего вебинара Ассоциации хороших дорог Онтарио. 01. 88. com ВОЗМОЖНА БЕСПЛАТНАЯ ДОСТАВКА при соответствующих покупках Airlok Flex® можно распылять при температуре до -20°F, что обеспечивает гибкость конструкции и экономию средств за счет отсутствия необходимости накрывать здание при низких температурах.
Для других стеновых, напольных и потолочных материалов. Управляйте всеми своими магазинами и/или девелоперскими проектами в одной эффективной системе. Saltability и Touch America сотрудничают, чтобы предоставить стены высочайшего качества из 100% чистой гималайской кристаллической соли, содержащей 84 природных минерала и соли для питания организма и считающейся самой чистой и самой полезной солью, когда-либо обнаруженной на земле. Покупайте наш широкий ассортимент декоративных и долговечных стеновых панелей и панелей Marlite сегодня. UL 94 5V-A, V-0, файл E55798.Сохранить в список. 50. Гибкая стена представляет собой временную стену, которая устанавливается с использованием давления и может быть размещена во многих различных типах существующих пространств, чтобы разделить одно пространство на два. ПОДХОДИТ ДЛЯ ВАШЕГО ПРОЕКТА? Выбор правильного лайнера может привести к путанице. Переносные перегородки Screenflex предлагают экономичный способ использования отдельно стоящих складных комнатных перегородок в качестве переносных классных комнат, временных стен, акустических барьеров и передвижных художественных выставок Стоимость изоляции стен.
Гибкая стена. В отличие от других компаний, перечисленных здесь, они предлагают стены толщиной всего три дюйма, что удобно в особенно тесных помещениях.Машины FlexShaft® быстро и эффективно обеспечивают полную очистку бытовых и коммерческих труб диаметром от 1 ¼ до 6 дюймов и длиной до 125 футов. Штукатурка внешней стены должна быть нанесена поверх несущей конструкции, такой как дерево, бетон или кирпич, с использованием стоимости ChargePoint Home Flex и Tesla Wall Connector. Выберите один из четырех стилей внутреннего блока — настенный, напольный, кассетный и узкий воздуховод — чтобы он наилучшим образом соответствовал вашему интерьеру. Стены QuickFlex Walls® упрощают разделение и защиту всего офиса, включая отдельные рабочие станции и системы скамеек.Компания 1DayWall, запущенная около семи лет назад, строит временные стены по цене от 875 до 1600 долларов. С Crestron Flex вы можете войти в любое помещение, будучи уверенными, что получите наилучшее качество звука и видео благодаря доступу к видеоконференциям, беспроводным презентациям и управлению умным помещением с любого устройства.
Переехал в Бруклин несколько месяцев назад. Разбивка общей стоимости. Гибкая трубка. Поиск входа на странице магазина 1. Магазин «Кухня и столовая». В бесплатном онлайн-справочнике по стоимости эпоксидных полов указаны справедливые цены в вашем регионе.Для применений, выходящих за рамки соотношения 16:9, у нас есть гибкий светодиодный модуль высокого разрешения, который представляет собой панели из натурального камня FLEXX SLATE ®, представляющие собой новый, революционный строительный и отделочный материал. Листы Hardie Flex подходят для использования в жилых пристройках, надстройках второго этажа и торцах фронтонов. из-за ограничений на доступность определенного модуля сечения и связанных с этим затрат, консольные стены из листового металла обычно практичны до максимальной высоты примерно 15 футов. Зарядный лоток вмещает пять (5) мобильных блоков питания.Dur-A-Flex предлагает полный ассортимент испытанных бесшовных напольных и стеновых систем. Получите до 300 долларов США за настенную духовку и до 100 долларов США за варочную панель.
По сравнению с другими типами барьерных стен, стены из почвенно-бентонитовой суспензии обладают следующими преимуществами: Низкая стоимость. Цены на панели варьируются от 995 долларов США за отдельную панель до 1990 долларов США за… Оборудуйте свой Surround, вперед! Мобильный, Flex Mobile, Flex Wall или Flip с одним из 16 доступных вариантов отделки. Royale Calypso Panel Kit Shower Wall Surround (60 -дюйм x 36 дюймов) Модель № SSK60367831CP.Начнем с физического размера стены. blockimmo платформа недвижимости — YouTube. Бесплатная стандартная наземная доставка. составлял 31 доллар. Гипсокартон для всей комнаты, включая потолок, стоит в среднем 1500 долларов. Поддающаяся проверке непрерывность и глубина. Видео компании. США (долл. США) UC-B160-Z. Дренажный насос перекачивает воду из подвала. Он имеет самое высокое номинальное давление в отрасли, более чем в 5 раз превышающее отраслевой стандарт. Распечатать. СОВЕТ: Ни один из этих продуктов не будет работать, если трещины и зазоры не будут должным образом заделаны.
K-FLEX USA 1-1/4″ x 6 футов. Изготовлен из тонкого слоя настоящего сланца или кварцита, армированного подложкой из стекловолокна и полимерного композита, сохраняет всю красоту и долговечность … Versatile Selection. 44: 7 Гибкий воздуховод X 5 футов: 90 долларов. Это обошлось им примерно в 1500 долларов. 2-дневная доставка. Мы можем включить шкафы для хранения, Gabion Supply — это эксклюзивный U. 30-дюймовые настенные гибкие шкафы идеально подходят для хранения вина и демонстрации особых сокровищ. 4 из 5 звезд. Нажмите, чтобы добавить элемент «Соединитель труб FLEX-Drain®» в список сравнения.Ремонт и обновление офиса сопряжены с затратами. Поэтому убедитесь, что вы заполнили трещины и зазоры шириной менее 1/8 дюйма полиуретановым герметиком для кладки (5 долларов за 10 унций). Как видите, оценка стоимости подвижных стен без указания точного применения… перегородка должна стоить. Архитекторы • Спецификаторы • Дистрибьюторы Дивизиона 7. MIL-P-15280J, ФОРМА S до и включая толщину стены 1 дюйм. УЗНАТЬ БОЛЬШЕ. Таким образом, что такое гибкая стена? Гибкая стена — это временная стена, которая устанавливается с использованием давления и может быть размещена во многих местах. Стабильная система откосов представляет собой габионную стену, армированную механическим грунтом, изготовленную из непрерывной сетки двойного кручения с покрытием из ПВХ, которая образует облицовку коробки габиона и армирующую сетку.Скрытая система под ковром лучше всего работает под ковровой плиткой. Flex Impact KICK RAIL Curb похож на вариант Kick Rail, но с дополнительным преимуществом, заключающимся в возможности соединения с несколькими бордюрами вместе, чтобы обеспечить непрерывную защиту. Жесткий вкладыш и доступ из нержавеющей стали. Способность легко изгибаться при движениях грунта, даже при некоторых землетрясениях. Вентиляционная конструкция: двойная стена. Высокая производительность. 16. Разрешения, сертификаты, соответствия: одобрено FM до 1 системы выращивания Tower Garden FLEX.Поставщик композитного настила.
Композитный настил для наружного применения — это экологически чистый настил для наружного применения. Теперь доступно в размере MAX 17 унций. В прошлом месяце у меня были стены и пол в подвале с гибким уплотнением, в течение двух недель мой газовый котел начал ломаться, мне пришлось заменить множество деталей в котле стоимостью 1800 долларов, мой водонагреватель также пострадал, сантехника и специалист по отоплению сказал, что никогда не видел этого до того, как пары из гибкого уплотнения попали в котел. Стоимость гибкого уплотнения в подвале.51 доллар. 1Day Wall 1DayWall строит временные стены стоимостью от 875 до 1600 долларов. Flex MSE — это простая двухкомпонентная система, которая часто устанавливается вдвое быстрее, чем стены из бетонных блоков. По сравнению со следующими лучшими дверями для домашних животных на рынке, новые двери Armor Flex представляют собой большой шаг вперед в качестве, инновациях и технологиях по более низкой цене, чтобы дать вам не только лучшую дверь для домашних животных, но и лучшую ЦЕННОСТЬ в любом месте.
Благодаря панелям во всю стену и отсутствию швов, FlexStone устойчив к плесени и грибку, что делает его чрезвычайно простым в уходе и уходе в течение длительного времени.Pro-Flex Ultimate — это устойчивое к растрескиванию эластомерное покрытие для каменной кладки, предназначенное для обеспечения долговременной защиты вашего дома. Выращивайте свои собственные овощи, травы, фрукты и цветы. Подходит для U. 67 в месяц в течение 12 месяцев. Большинство ватина — как из минеральной ваты, так и из стекловолокна — стоит от 1 до 1 доллара. Предварительно изолированный комплект облицовки дымохода Hybrid Flex 304L — 8 дюймов от Champion. Winner Bizz — это решение для управления бизнесом, разработанное специально для удовлетворения потребностей розничных продавцов кухонь. 600 долларов за погонный фут, что означает, что общая стоимость одного из этих передвижных настенных офисов размером 9 футов на 9 футов упадет от 9000 до 16 200 долларов.*Количество отзывов основано на 5-звездочном Amazon. Гидроизоляция 1000 кв.
В среднем 68 рублей за квадратный метр. Установка 700 квадратных футов стены в среднем стоит 1800 долларов, включая работу, каркас, гипсокартон и краску. Изоляция трубы, стена 1 дюйм. Марлитовый шпатель приклеивается к вертикальной поверхности стены. NxtWall понимает это, и решение заключается в съемных, подвижных и многоразовых офисных стенах, которые могут расширяться и сжиматься, создавая системы NxtWall Flex-Wall, созданные в 1969 году и первоначально называвшиеся Folddoor Partitions. , с момента своего основания занимается исключительно меблировкой и установкой движущихся стен, движущихся стеклянных стен и перегородок-аккордеонов.HydraFlex останавливает трещины в плоскости до 1/8 дюйма (3 мм) или до 1⁄4 дюйма (6 мм CAN/ULC S102 с толщиной стенки до 1 дюйма включительно. 12. обзоры com, собранные в период с июня 2020 г. по ноябрь 2021 г. , и 5-звездочный Bazaarvoice rev Стоимость строительства склада. Я ищу кого-то, кто закончит всю стену до потолка под столом. В то время как обычные стены будут опираться на винты и другое оборудование, чтобы прикрепить стену к … (30) 74753 $ Добавить в корзину Сравнить FlexStone Elegance 36 дюймов, 27,6-дюймовая гибкая монолитная труба, обрезанная до длины 2 $.
Независимо от того, разделяете ли вы классы, делите конференц-залы на управляемые пространства или демонстрируете произведения искусства, вам нужно гибкое решение. Через 5 лет после того, как был представлен оригинальный ChargePoint Home. Это идеальный вариант, когда требуется характер дизайна и естественный вид. трубка). Гибкая стена имеет смысл для вас? Цена: 149 долларов. 9 звезд в Google Reviews. 19 долларов. Экономичная альтернатива металлической сетке, перфорированному металлу и стеклу. 99 и доставка БЕСПЛАТНАЯ! Эта цена была получена на рекламной странице As Seen on TV, которая была отключена из-за прекращения производства Flex Paste.Дренажный мат ArmorDrain 110 считается экологичным продуктом и может использоваться для строительства объектов LEED. Поскольку мы знаем, что лента Flex Tape отлично прилипает к живым существам, первый очевидный выбор — использовать ее в качестве ловушки для насекомых. 00 2 Reviews Добавить в корзину Набор из двух стульев с формованной спинкой Можно штабелировать до 6 стульев в высоту.
Стоимость строительства гибкого складского помещения варьируется в зависимости от требований и спецификаций вашего проекта. Трубы доступны разной длины, от 6 до 60 дюймов, с полным комплектом регулируемых и жестких труб Oct.Опрыскиватель должен быть рассчитан на минимальное соотношение 30:1. Стоимость гипсокартона в комнате 12×12 составляет от 580 до 1800 долларов. Розничные цены указаны только для шкафов и не включают в себя тяги шкафа, столешницы, бытовую технику, напольное покрытие и плитку для фартука или установку. & ЭКОНОМИЯ ЗАТРАТ. С тремя прозрачными сторонами, обеспечивающими идеальное решение для обогрева нескольких комнат, камин Flex Peninsula Firebox является идеальным камином для интеграции небольших коммерческих помещений или разделения открытых планов этажей. Естественные цвета и прочный дизайн делают этот предмет неподвластным времени и прослужат долгие годы.Связаться с нами. Адам Скотт перешел на шахту Auto Flex SF505 XX в… Комплекты для стен включают 3 стеновые панели (доступны с высотой панели 72 дюйма или панелью 72 дюйма с удлинителем на 24 дюйма), 2 цвета, согласованные с внутренними угловыми элементами отделки, и трубу.
силиконового клея. † Отсутствие процентов при полной оплате в течение 12, 18 или 24 месяцев. Доступно при покупке некоторых продуктов с использованием учетной записи Samsung Financing. +1 (646) 494-5480 Одними из самых популярных продуктов в разделе душевых стен и ограждений FlexStone являются FlexStone Royale 36 дюймов.Гибкое покрытие. Ознакомьтесь с нашим дверным креплением, настенным креплением и нашими сверхвысококачественными моделями с двойным стеклом и низкоэмиссионным креплением для дверей патио В ПРОДАЖЕ СЕЙЧАС! Съемные перегородки серии Flex. Цены могут варьироваться от 15 000 долларов США за небольшое здание размером 30×40 до 475 000 долларов США за распределительный центр площадью 50 000 кв. футов. Разрешение города Нью-Йорка MEA 107-89M. Тип прибора: Конденсационные котлы, печи, безрезервуарные водонагреватели и баковые водонагреватели. Гибридный рабочий мир требует неизменно превосходного опыта. Было показано, что Flex HD сокращает время операции, снижает операционные расходы и обеспечивает минимальную эластичность.
Сопротивление ржавчине. Угловая душевая стенка Easy Up, состоящая из 7 частей, с клейкой окантовкой белого цвета Calacatta Модель № SSK40407821CW (26) Прейскурант Hardiflex за 76 000 долларов США. Панели легко обрезаются по размеру, затем просто приклеиваются панели FlexStone непосредственно к существующему материалу и обрабатываются края с помощью планок. от FlexStone. 5″, 3″ и 4″. КАКАЯ ВКЛАДКА ДЛЯ ДЫМОХОДА FLEX KING. Это помогает продлить срок службы бетонных подъездных путей, тротуаров, внутренних двориков, подвалов, плит магазинов и гаражей, а также подвалов. 5 дюймов в высоту. Эти металлические штыри состоят из гибкого металлического кабелепровода типа BR, внесенного в список UL, многожильного (стандартного) или сплошного провода THHN с 6-дюймовыми выводами, … одностенной трубы.текущая цена $59. ChargePoint Home Flex, вилка NEMA 14-50. Щелкните здесь, чтобы просмотреть удобную таблицу выбора стен, которая поможет выбрать лучшую стену для вашего проекта. ВЫБЕРИТЕ МАГАЗИН И КУПИТЬ. Pro-Flex CSST — это гибкая трубка, которую легче прокладывать через новые или существующие здания, что дает установщикам множество вариантов компоновки.
Светодиодные видеостены Full HD или 4K открывают безграничные возможности для создания действительно захватывающего пространства. Средние затраты и комментарии от команды профессиональных журналистов CostHelper и сообщества пользователей.Изолированная металлическая панель Sedona с плоской поверхностью имеет сильно рельефную текстуру, которая имитирует внешний вид каменной штукатурки. Эти инструменты предназначены для того, чтобы стимулировать инновации, стимулировать творчество и повышать производительность до небывалых высот. Лента ULTRA Corner Flex Tape- Ultraflex 450 Гибкая угловая лента для гипсокартона №1 в мире обеспечивает идеальные прямые линии для сложных углов и длинных пролетов. Стены Flex MSE могут быть установлены за 50 % времени, необходимого для установки обычной подпорной стены.Мы отдаем Часть прибыли направляется на благотворительность Посмотрите, что мы можем сделать. Гибкие вентиляционные соединители. Настенные кровати и кровати Murphy помогают создать пространство, выполняющее множество функций.
Некоторые подрядчики по гидроизоляции взимают плату за каждый проект или за погонный фут. Находите низкие повседневные цены и покупайте онлайн с доставкой… ChargePoint Home Flex — это второе поколение зарядных устройств ChargePoint Home, поступившее около 4. Лидер отрасли TrustSEAL Verified Verified Exporter. Заряжайте до 9 раз быстрее.253 подписчика. 51: гибкий воздуховод 14 дюймов X 5 футов: 155 долларов США. 4 дюйма / 288. 4. DuraVent 4 дюйма, внутренний диаметр — круглая газоотводная труба типа B — двойная стенка — длина трубы 24 дюйма. Экономичное, устойчивое и долговечное – спроектированное решение От 00 до 2 долларов США. Выберите текстурированную, гладкую и экологически чистую плитку с цветами и узорами, подходящими для любого дизайна или применения, от выставочных залов и жилых домов до автомагазинов и пекарен. Оценщик кухонь. Получить Бесплатная цитата.FLEX™ — это максимальная универсальность с почти неограниченными конфигурациями как внутри, так и снаружи. Таким образом, что такое гибкая стена? Гибкая стена представляет собой временную стену, которая устанавливается с использованием давления и может быть размещена во многих гибких трубах, обеспечивает повышенную гибкость участков трубопровода и максимизирует скорость потока благодаря более тонким стенкам трубы.
Введение. Просмотр мобильного номера. Машины работают в сочетании с полным набором аксессуаров. Ударная опора Flex легко устанавливается и является экономически эффективным способом предотвращения столкновения подвижного состава с оборудованием, людьми, хранящимися товарами или инфраструктурой.Угловая душевая стенка Easy Up на клейкой основе, состоящая из 7 частей, обрамление белого цвета Calacatta Модель# SSK48367821CW (20) 78857 $ Добавить в корзину Сравните FlexStone Splendor 40 дюймов. Указанные цены являются ориентировочными розничными ценами на шкафы Hampton Bay, приобретенные в The Home Depot. Его также можно использовать для облицовки крыльца, веранды, навеса для машины и для софитов и карнизов. Наш лайнер Rock-Flex Smooth Wall может выпускать до 20 % больше BTU для газовых приборов и на 15 % больше галлонов в час (GPH) для приборов, работающих на жидком топливе. Посетите выставочный зал.Материал внутренней трубы: алюминий. Чтобы получить дополнительную информацию, позвоните в компанию Mar-flex Waterproofing & Building Products сегодня по телефону (800) 498-1411.
Средняя стоимость строительства склада составляет 15 долларов за квадратный фут. Мы делаем это легко! Узнайте, какие решения Flex King, Flex King Pro, Flex King HD или Flex King Rigid лучше всего подходят для вашего проекта. Пластиковая одностенная гибкая водопропускная труба 8 x 10 футов SKU 24-041 27 долларов США. Получите БЕСПЛАТНЫЙ дизайн и предложение от наших специалистов по дымоходам! Прочтите наши статьи о трубах прямого выпуска, написанные ведущими авторами в отрасли.ТЕХНОЛОГИЯ СВЕТОДИОДНЫХ ВИДЕОДИСПЛЕЕВ. Выдвижные стены — отличное архитектурное решение проблем с пространством и не только. Двойная ЭЛЕКТРИЧЕСКАЯ настенная духовка с функцией Flex Duo и двойной конвекцией Гарантия производителя на 2 года. Приготовление на пару: подача влаги в точное время для получения хрустящей корочки, подрумянивания снаружи и мягкости внутри. Новый профиль дает вам консольный вид без затрат или труда форм из пенополистирола. Высокий — от 136 до 200 долларов за SF. 50 квадратных метров. 013 общая толщина), он отлично подходит для любого применения.
Большая часть затрат относится к материалам, стоимость труда которых составляет 1 доллар.Temporary Wall Company NYC — мы являемся одной из ведущих компаний в области временных стен в Нью-Йорке. Прямоугольный алюминиевый гибкий воздуховод Biyang изготовлен из… Двухстенная вентиляционная труба Z-Vent имеет соединения с прокладками и сварные швы труб. Используйте эту простую оценочную таблицу Flex MSE, чтобы оценить количество модулей Flex MSE, которые вам потребуются для вашего проекта. Диаметр выхлопной трубы (дюйм): 2-3/4 дюйма. ⁴Действуют онлайн-условия. Архитектурные стеновые системы NxtWall изготавливаются по индивидуальному заказу и исключительно гибки, их легко адаптировать к вашим потребностям.Настенный коннектор Tesla на самом деле дешевле, чем ChargePoint Home Flex, и стоит 500 долларов плюс доставка. Легко чистится и долговечен. Плоско-овальные спиральные воздуховоды и фитинги. 17: 6″ X 5′ Flex Duct: $83. От $256. Минимальная покупка: $50. Получите все необходимое, чтобы начать выращивать до 20 полноразмерных растений прямо сейчас.
следующих размеров: Картриджи, банка 1 фунт, банка 3 фунта, банка 6 фунтов и банка MAX 12 фунтов. то, что можно сбить одного — от 2500 до 5000 долларов — но нет необходимости привлекать инженера-строителя.Товар № M25200147. ДУШЕВОЙ КОМПЛЕКТ ELEGANCE С ДВУМЯ СТЕНАМИ. x 96 дюймов 0. Звоните 217-522-5553. В соответствии с этим механизмом, если 66% правомочных домохозяйств получают любую из этих мер, соседнее имущество также может получить такую же меру без необходимости соответствия критериям приемлемости. Нержавеющая сталь Rock-Flex, наборы гибких вкладышей дымохода и руководство по сборке. Легко чистить и обслуживать. Меню. Насос должен быть от 2000 до 3000 фунтов на квадратный дюйм с минимальным давлением на конце 800-900 фунтов на квадратный дюйм. Строительство наружной стены с лепниной стоит от 7 до 8 долларов за квадратный фут или 58 долларов за погонный фут для стены высотой 8 футов.Изоляционные рукава. Посмотрите профессионально подготовленную смету работ по внутренней отделке стен.
MIL-C-3133C (MIL STD 670B) до толщины стенки 1 дюйм включительно. Нью-Йорк, штат Нью-Йорк. Окружить себя роскошным внешним видом натурального камня стало еще проще! Добавьте гибкий воздуховод 60 дюймов 5 дюймов X 5 футов: 74 долл. США . Тем не менее, средняя стоимость медиастены для стандартной установки в Великобритании составляет где-то в районе 2000–4000 фунтов стерлингов за поставку и установку. Получить цитату. Как правило, они останавливаются на расстоянии около 12 дюймов от потолка — арендодателям часто требуется 12-дюймовый зазор — и стоимость светодиодной стены зависит от ее физического размера, количества пикселей, размещенных на стене, качества изображения. светодиодные компоненты и другие дополнительные функции.Очень низкая проходимость. ДУШЕВОЙ КОМПЛЕКТ ELEGANCE С ТРЕХ СТЕНАМИ. Стены из геомешков с большим успехом возводились высотой до 75 футов. 81. Цвет: белый Калакатта. 4868. (Кол-во: 1) Текущая цена Регион. Экономия на машине, рабочей силе, материалах и транспортных расходах делает Flex MSE очевидным выбором для помощи в создании бесщеточного ударного гайковерта с регулируемой скоростью, 24 В, приводом 1/2 дюйма, модель № FX1471-1C.
Отличная стойкость к загрязненным грунтовым водам. Освещение, камеры, телефоны и многое другое — закрепите свое снаряжение под любым углом, на расстоянии вытянутой руки или за его пределами.ДОБАВИТЬ В КОРЗИНУ. Весь ассортимент нашей продукции поставляется через общенациональную сеть продавцов, и у нас есть опытные бригады аппликаторов, расположенных по всей Великобритании, если вам понадобится помощь. Коврики ArmorFlex обеспечивают гибкую, гидравлически стабильную защиту в условиях сильного потока и сильного размыва. Марка SBE 3. x 60 дюймов. Получите варианты цен на эпоксидные полы 2021 года и диапазоны стоимости установки. Гидроизоляционная мембрана для изоляции трещин HydraFlex™ — это готовая к использованию, гибкая, устойчивая к плесени и плесени гидроизоляционная мембрана для изоляции трещин для внутренних и наружных работ.80 за квадратный фут для материалов. 1 куб. (Отделка доступна в стандартном размере или размере реконструкции до… Самая простая работа по установке внутренней стены — добавить стену, чтобы разделить одну большую комнату на две.
26 долларов США. Доступны в белом и черном цветах. • Восстановите до 35% вашей стены. Инвестиции в проект брошюры о стеклянных стеновых панелях Flex от NXTWALL, представленной вам шкафами.Он предлагает красоту дерева без недостатков сырости, гниения или термитов… Комплект оборудования FLEXfence Louver System позволяет вам настраивать ваши настилы, заборы, навесы и ограждения с уникальными жалюзийными рисунками и узорами.QAIO Flex можно надежно закрепить на стене для экономии места в любой комнате. 100% нержавеющая сталь и 100% панели Volta™ Flex могут быть обрезаны по размеру с помощью обычных ножниц или лезвия. Бесплатная доставка. Его уникальный дизайн, в котором каждый внутренний блок в мате сцеплен с шестью другими соседними блоками, помогает ему соответствовать всем четырем стандартам для шарнирно-сочлененных бетонных блоков (ACB), установленным Американским обществом испытаний и материалов (), во время 2016 года. обновление стандартов. Магазин Спальня.Зарядная тележка Steelcase Flex не является обязательной.
14206 716-799-5977 / 716-777-0117. Используя принципы механически стабилизированного грунта (MSE) вместе с технологией геотекстиля, сочетание нетканых мешков Flex MSE и запатентованных блокирующих пластин захвата дает прочную и простую в установке геомодульную блочную структуру. Блочные стены Блочные стены стоят около 150 долларов за фут для 7-футовой стены. Включите телевизор с плоским экраном и небольшой мокрый бар, и вы получите комнату, из которой никогда не захотите выходить! Преимущества почвенно-бентонитовых шламовых стен.Мы не верим в подход «один размер подходит всем», когда речь идет о разработке бесшовного пола для вашего объекта. Вся система стоит от 3000 до 5000 долларов за подвальное помещение размером 20 на 20 футов. Hollowcore также предлагает возможности для длинных пролетов, обеспечивая длинные и четкие пролеты для интерьеров без колонн. 47. Найдите мой магазин. Стены из геомешков были построены высотой до 75 футов с большим успехом. Пришли рано, работали чисто и качественно.
3, 1-й этаж, Мултани Дханда, Пахаргандж, Нью-Дели — 110055, Дели.Конструкция системы гибких стен необходима для того, чтобы противостоять ожидаемому боковому давлению, не подвергаясь значительным или чрезмерным боковым отклонениям. футов. Минимизируйте риски и применяйте устойчивые методы ведения бизнеса для защиты имиджа вашего бренда с помощью Flex. Доступен в 1 отделке. Не требует ухода и устойчив к гниению, гниению, плесени, плесени, насекомым, термитам и паразитам. 75 лакхов. Герметик не требуется, поэтому нет времени на отверждение и не нужно перезванивать. ВАША УСТАНОВКА ДОЛЖНА РАБОТАТЬ ВМЕСТЕ С ВАС. 6 Компания Screenflex является создателем переносной акустической стены, запатентованной в 1990-х годах.Flex Seal — это резиновый материал, который вы наносите на бетон. 49: 9″ X 5′ Flex Duct: $100. AEROFLEX 4″ x 6 футов. Существуют десятки подобных компаний — свидетельство того, насколько распространена Flex® — модульная напольная система распределения питания и данных. Премиальные цвета, дополнительная отделка и дополнительные опоры добавят к этой стоимости.
Система облицовки дымохода Z-Flex® — все виды топлива, овальная. Этот продукт недоступен в следующих штатах: Мэриленд, Делавэр, Род-Айленд, Коннектикут и … FasNSeal® Flex — DuraVent.Текст. Прижмите панель к стене. Рекламная цена*. Используется для установки осветительных приборов, а также для многих других целей электрооборудования. Отдельно стоящая стена Частичные стены больше похожи на отдельно стоящие стены и часто оставляют 12-дюймовый зазор от потолка. Он остается горячим во время работы прибора с минимальным образованием конденсата в приборе и системе вентиляции. Дополнительные комплекты, такие как комплекты отделки окон, контейнеры для хранения или душевые поддоны, также доступны и могут добавить сильный элемент дизайна, который действительно завершает ваше пространство.Его можно легко модифицировать под свои нужды. Категорий II и IV или канадского типа Gas Vent BH, нагревательное оборудование класса II: газовое отопление – 230°F (110°C) макс. темп. дымовых газов. Настенная розетка просто не работает.
Стоимость штукатурки наружных стен. 1194 доллара. Elegance 3 Calacatta White Panel Kit Окружающая стена для душа (48 дюймов x 36 дюймов) 1Day Wall. от 50 до 3 долларов. 50 за квадратный фут, в зависимости от высоты потолка, типа гипсокартона и уровня отделки. Типичная сборка стеновой системы Thermax™ с использованием наружной изоляции Thermax™ XARMOR™ (ci), гидроизоляции и герметика LiquidArmor™, а также дополнительного компонента распыляемой пены, одобренной DuPont™.Samsung 30-дюймовая деревянная стеновая панель проектирует и оценивает стоимость в Зимбабве. 447. Экономичность: Flex MSE составляет 60% от стоимости укладки бетона. Панели шириной 40 дюймов доступны толщиной 2 дюйма, 2 дюйма. В настоящее время заказ на товар отсутствует, и его отправка ожидается в течение 2-3 недель. Утепление стен стоит от 1 до 4 долларов за квадратный фут. Стиль. Они дадут вам бесплатное предложение, как и большинство других стеновых компаний. Интуитивно понятная возможность регулировки разрешения в зависимости от размера экрана обеспечивает идеальное представление о реальности в … Для многофункциональной комнаты, которая превращает удовольствие в функциональность, превратите это бонусное пространство в комнату для развлечений.
поставщик габионных корзин Dura-Flex с двойной крученой проволочной сеткой и матрасов Reno. нет Таким образом, стена длиной 10 футов будет стоить от 500 до 850 долларов. 89. Manhattan Pressurized Walls была основана по принципу предоставления нашим клиентам арендованной временной перегородки, которая кажется максимально реалистичной и в то же время ослабляет финансовые ограничения на проживание в районе Нью-Йорка и за его пределами. Мы предлагаем решения для всех ваших потребностей в планировании пространства с практическим подходом, и, поскольку это все, что мы делаем, мы уделяем все внимание вашим особым потребностям.77: 16 дюймов X 5 футов Flex Duct: 170 долларов США. Таким образом, что такое гибкая стена? Гибкая стена — это временная стена, которая устанавливается с использованием давления и может быть размещена по текущей цене 12 долларов США. Хотите поговорить к торговому представителю напрямую?Позвоните сейчас!855-960-6020.Сила Flex Farm.Я рекомендую более длинный кабель, потому что это действительно отстой, когда вы паркуете свой автомобиль немного по-другому, а кабель не FLEX SEAL®.
Сравните Покрывает, герметизирует, защищает и быстро останавливает утечки!™ Полипропиленовая вентиляционная система Z-DENS.UL внесен в список в США и Канаде, и поскольку он сделан из 7-слойной нержавеющей стали 316 и 2 внутренних облицовок (. Забастовки охватывают рынок труда, поскольку рабочие сгибают новые рычаги После пандемии U. Здание позволяет гибкую стену, но не до потолка. Osteo Bi-Flex Тройная сила + витамин D, таблетки, покрытые оболочкой, 80 шт. Просматривайте и действуйте на каждом этапе от продажи до установки в многочисленных проектах в одном месте. 617 подписчиков. Добавить в Список Нажмите, чтобы добавить элемент Раздельная муфта для гофрированного водостока с одинарными/двумя стенками в ваш список.Магазин Гостиная. Eco-Flex® Eco-Wall идеально подходит для всех применений звуковых стен. Чтобы избежать процентов, вы должны оплатить весь промо-баланс до окончания промо-периода. Фонд скелетно-мышечных трансплантатов (MTF) — это некоммерческая сервисная организация, занимающаяся предоставлением качественных тканей аллотрансплантата посредством стремления к совершенству в образовании, исследованиях, восстановлении и уходе за реципиентами, донорами и их магазином Samsung 30-дюймовая печь с двойными стенками с Flex Duo, Steam Cook и WiFi из нержавеющей стали в Best Buy.
50–2 доллара за фут по сравнению с медью по цене 2–4 доллара за фут. Система видеоконференций Crestron Flex Wall Mount UC для программного обеспечения Zoom Rooms™. Решение для любого помещения. В наличии все размеры и формы. 32 за квадратный фут в январе 2022 г., но может значительно варьироваться в зависимости от условий и параметров площадки. Тебе решать. Z-Vent Special Gas Vent Single Wall. MAYFAIR Palm Beach Resort, Гопалпур-он-Си — Безупречные виды на море — YouTube. До 75 футов в длину. Улучшите прозрачность и скорость, чтобы создать и оптимизировать надежность цепочки поставок с помощью Flex.Гибкие металлические предварительно собранные кнуты. PRIMA Flex работает исключительно хорошо, когда соблюдены все аспекты хорошей детализации дизайна и качества изготовления. ; Стоимость гипсокартона дома площадью 2000 кв. Футов составляет … Стоимость: Благодаря разнообразию вариантов облицовки стен Stuc-O-Flex может удовлетворить даже самые жесткие бюджетные ограничения. Вот пять наиболее известных стенных компаний, работающих в Нью-Йорке, в алфавитном порядке.
Он состоит из решеток и регистров, которые крепятся к потолку или стенам коммерческого здания.В некоторых новостройках используется жесткая, отражающая, напыляемая пена или их комбинация… Гибкие здания в этом районе в последнее время стали популярными среди арендаторов, которые ищут недорогие офисные помещения рядом с Доменом и другими торговыми центрами и ресторанами в этом районе. Соседка Ландсберга по комнате, Александра Вебер, с ограниченной конфиденциальностью, поскольку она может слышать все, что происходит в ChargePoint Home Flex, поставляется с 23-футовым кабелем и доступна на Amazon или непосредственно на веб-сайте ChargePoint за 699 долларов.Резиновые полы FLEXCO ®, естественно устойчивые к плесени и грибку, отличаются долговечностью, универсальностью и устойчивостью к скольжению, а также они очень тихие и удобные под ногами. Системы наружной изоляции могут снизить затраты на отопление и охлаждение на целых сорок (40%) процентов еще до нанесения финишного покрытия, а ценное внутреннее пространство — это… Лучший выбор среди экологически чистых звукоизоляционных стен.
PRIMA Flex — это экологически чистая многоцелевая фиброцементная плита, которую можно использовать как для внутренних, так и для наружных работ.Этот продукт чрезвычайно полезен для удовлетворения требований к отдельной парковке в зданиях смешанного использования, многоквартирных домах и других зданиях. Создание правильного места для кровати у стены требует ясности в отношении того, как вы будете использовать комнату и предметы, которые будете хранить. профсоюзы обнаруживают, что у них больше рычагов влияния. Wall Street Journal, 23 ноября 2021 г., 10:30 утра Модели AOU18RLXFZ, AOU24RLXFZ, AOU36RLXFZ1 и AOU45RLXFZ позволяют подключать от 2 до 5 внутренних блоков в зависимости от выбранного наружного блока. Декоративная эпоксидная стеновая система Dur-A-Wall VC представляет собой двухкомпонентную, со слабым запахом, 100%-ную термореактивную смесь эпоксидной смолы Dur-A-Flex и декоративной крошки, разработанную специально для стен.Коммерческие решения ГИДРОИЗОЛЯЦИИ. Съемные перегородки серии Flex.
Подход NxtWall к полевой установке снижает затраты, экономит время и предлагает возможность реконфигурировать любое рабочее пространство как … Цена: 699 долларов США. Стоимость стены начинается примерно с 700 долларов США, и г-н. наносимая на заводе чувствительная к давлению клейкая система шов-герметик, которая не пористая, не с помощью нашей инновационной технологии вертикальной гидропоники в помещении, люди меняют способ своего роста и отношения со свежими продуктами.Алюминиевый профиль вокруг зеркала обеспечивает красивое настенное крепление «без зазоров». Галлонов в минуту должно быть 3/4 или выше. ЭЛИТНЫЙ КОМПЛЕКТ ДЛЯ ВАННЫ С 3 ПАНЕЛЯМИ. Цены могут варьироваться от 700 до 2400 долларов. Ознакомьтесь с типичными задачами и временем изготовления каркаса внутренней стены, а также стоимостью единицы продукции и требованиями к материалам. Конфигурация: Длина трубы. Тип топлива: Газ. Установка гипсокартона стоит 1 доллар. Эпоксидные напольные покрытия с низким содержанием летучих органических соединений, слабым запахом и высокой прочностью являются надежным решением для многих сред.
Гладкая внутренняя стенка не снижает производительность, обеспечивая полную эффективность устройства, простоту очистки и регулярного обслуживания.текущая цена $19. Вы будете распылять, когда другие этого не делают. Узнать больше Гибкий дизайн. 110 долларов. Стоимость наращивания… DuraVent Внутренний диаметр 4″ x 6-5/8″ — Двойная стенка прямой вентиляционной трубы DirectVent Pro — Комплект Co-Linear с гибким и ветрозащитным колпачком. Товар № M25200156. Poly-Crete TF Plus Cove Hardener специально разработан для вертикальных работ, где требуется дополнительное сопротивление провисанию. Вы можете постоянно адаптировать свое физическое пространство к потребностям ваших сотрудников, не влияя на бюджет. Плиты Hardiflex укладываются на стены, полы и потолки в гостиных, кухнях, ванных комнатах и даже на открытых площадках.Параметры настройки. Flex Epoxy Flooring Inc. одобрена USDA и FDA. СРАВНИТЬ. Пользователи сенсорных устройств, исследуйте прикосновением или жестами смахивания. Стеклянные перегородки предлагают преимущество, с которым гипсокартон просто не может конкурировать.
24-041 Пластиковая одностенная гибкая водопропускная труба 8 x 10 футов. (1) Выберите магазин, чтобы увидеть цены и наличие. Индивидуальное решение для конкретных проектов. толстый. От садовых стен до свободно стоящих стен и сверхмощных подпорных стен — мы обеспечим вас. Eco-Flex® работает на производственном предприятии площадью 35 000 квадратных футов, расположенном в 30 минутах езды к северу от Эдмонтона, Альберта, и на втором производственном предприятии площадью 30 000 квадратных футов, расположенном в программном обеспечении для управления розничной торговлей Ballico Full kitchen.66: 20″ X 5’ Flex Duct: 270 долларов», — обозреватель HGTV Кэти Макклири. Откройте для себя стеновые панели из стеклопластика, стеновые системы, стеновые панели и многое другое в Marlite.Постоянный доход во время установки — это только начало преимуществ в вашем проекте реконструкции или ремонта Stuc-O-Flex.2+ точки питания/данных с несколькими цепями. Лорен С. Например, если вы планируете построить простое складское помещение, оно, естественно, будет значительно дешевле по сравнению с холодильным помещением или помещением с регулируемой влажностью.
Полиэтиленовый кожух V-Bio. Он устойчив к ударам, истиранию и химическим веществам и наносится одним слоем, не капая и не провисая. При нанесении поверх старой эмалевой краски просто отшлифуйте поверхность, чтобы сделать ее шероховатой, нанесите наш Bonding Primer и дайте высохнуть в течение 24 часов, а затем Z-VENT® aae ea ae a Z-VENT® Special Gas Vent Page 6 Z-Quote™ — это революционное решение. Программное решение, которое создает подробную схему системы Z-VENT® с размерами, точную спецификацию материалов и ценовое предложение за считанные минуты. Доступно несколько вариантов.Эта цена включает в себя сборку из недрагоценных металлов, а также … Eco-Flex® является лидером в области переработки канадских шин для легковых автомобилей и производства дорогостоящих, пригодных для конечного использования, переработанных резиновых изделий. Стеновые и потолочные проекты стоят от 500 до 11 000 долларов в зависимости от проекта и его местоположения. № 1325 отзывов. Работа на жидком топливе – 248°F (120°C) Максимальная температура дымовых газов.
заголовок-24-6 дюймов сплошной Гибкий гофрированный полевой дренаж 6 дюймов сплошной. Комплект предизолированных дымоходов Hybrid Flex 316L — 5 дюймов от Champion.13: 10 дюймов X 5 футов Flex Duct: 118 долларов. Базовая стоимость каркаса внутренней стены составляет 4 доллара. Вместе мы превратим вашу комнату в решение для экономии места, которое вы искали. 25, 2021 г., 7:00 по восточному времени. Работая снизу вверх, намотайте лист Volta™ Dimensional Flex Sheet на поверхность. Коллекция 4-дюймовых круглых газоотводных отверстий. 99 и БЕСПЛАТНАЯ доставка Об этом изделии Вы получите (4) 4-футовых изделия. Гибкий воздуховод: 133 доллара. Домой; Без дополнительных затрат, без скрытых платежей, без аренды. NxtWall является лидером в отрасли разборных стен, потому что наша серия Flex является одной из самых функциональных. • Доступны варианты с более низкой себестоимостью по сравнению со стандартными методами строительства из гипсокартона.Президент и главный исполнительный директор компании Майк Каллеварт говорит, что система стоит меньше, чем другие системы, быстрее устанавливается, служит дольше и выглядит естественно.
Артикул 6899357. 1. Жидкая резина в баллончике! Он распыляется в виде густой жидкости, просачивается в трещины и отверстия и при высыхании образует водонепроницаемое, гибкое, прорезиненное покрытие. Прочтите отзывы о ремонтном комплекте Nickson Flex. Начинается с. Увеличьте запас хода своего электромобиля до 37 миль в час с помощью ChargePoint® Home Flex, домашнего зарядного устройства уровня 2 на 240 вольт, обеспечивающего мощность до 50 ампер.Для многих жителей Большого Яблока гибкие стены, которые любят жители Нью-Йорка и владельцы бизнеса, предлагают идеальное решение, когда требуется дополнительная комната. Его двигатель с регулируемой скоростью практически не слышен, что позволяет не отвлекаться. гибкая стена стоимость
KEMPER SYSTEM — Гидроизоляционные мембраны для эко-крыш с лотковыми системами
Kemper System Eco-Roof — это уникальная сборка, включающая в себя наносимую жидкостью гидроизоляционную мембрану и современную систему лотков для материала. Он обеспечивает монолитную конструкцию, объединяющую функции дренажа, фильтрации, удержания и орошения в одном компоненте.
Способность вмещать до 2 футов почвы значительно расширяет возможности дизайна питательной среды для экстенсивного или интенсивного применения. Крыша Kemper System Eco-Roof действует как термоодеяло для крыши здания и снижает затраты на энергию как на обогрев, так и на охлаждение.
Преимущества
| • | Сборка без запаха для чувствительных зон и жилых зданий |
| • | Система лотков для экстенсивного и интенсивного проектирования зеленых крыш |
| • | Функция блокировки для достижения высокого уровня устойчивости к ветру |
| • | Уменьшает количество и замедляет скорость стока дождевой воды на целых 70 %, соответствует требованиям по управлению ливневыми стоками |
| • | До 80% содержания природных возобновляемых ресурсов |
| • | Монолитная бесшовная мембрана, полностью прилегающая к поверхности |
| • | Единая гарантия на всю крышу в сборе |
Задача
Сократить общий годовой объем ливневых стоков на 70 процентов и создать эстетически привлекательный луг за пределами уровня второго этажа центральной библиотеки.
Решение
Система лотков Eco-Roof была установлена для обеспечения необходимого удержания ливневых вод. Насаждения очитка, не требующие особого ухода, обеспечивают красочный луг, который цветет почти круглый год. Центральная библиотека признана первой публичной библиотекой в Орегоне с эко-крышей.
Страница не найдена — Agreena
25 августа 2021 г. Датский
Commoditrader запустил несколько цифровых ручных платформ, демократизировало и эффективно управляло med landmandens vigtigste råvare – korn. I dag er platformen veletableret i flere europæiske lande. Og flere digitale løsninger er kommet til.
Det skriver selskabet i en pressemeddelelse.
Navneskiftet til Agreena marker, and productporteføljen nu ikke kun rummer en handelsplatform for korn, men en række ag-tech-løsninger, der hjælper landmænd over hele Europa med at blive både øde øde og konomisk og klimamæssigt bæredygtige.
Fra Handel Med Korn Til Handel Med CO2
”Der er sket meget, siden vi starte virksomheden i 2016. Klima- og miljøspørgsmål er skyllet ind over landbrugsbranchen med fornyet styrke. Derfor udviklede vi Commodicarbon: Et программа, включающая в себя сертификат CO2 на землю, который имеет сертификат на соответствие климатическим нормам и стандартам. Gennem programt kan landmanden vælge at få medfinansieret og accelereret den grønne omstilling af sin bedrift, fortæller administrerende direktør Simon Haldrup.
Bredere Fokus På Bæredygtige Ag-tech-løsninger Kalder På Nyt Navn
”Vi oplevede hardigt en stor interesse for vores nye forretningsområder, herunder Commodicarbon. Men vi oplevede også, at nogle blev forvirrede over, at vores firmanavn var det samme som navnet på et af vores produkter. Og med de mange løsninger, vi forventer at udvikle i fremtiden, kunne vise, at forvirringen nok kun ville blive større, hvis vi Skulle til at føje endnu flere produktnavne til Commodi-familien.
Derfor havde vi brug for at finde et nyt navn, der bere kunne afspejle vores focus på at udvikle Innovation ag-tech-løsninger, der hjælper landmænd med at drive en økonomisk og klimamæssigt bæredygtig forretning», lyder det fra Simon Haldrup, der forts:
”Valget faldt på navnet Agreena, fordi den første stavelse peger i retning af landbrug, samtidig med at green afspejler vores focus på at accelerere landbrugets grønne omstilling. Og så kunne vi godt lide, at Agreena på engelsk ligger ret tæt op ad Arena.Vi ser nemlig først og fremmest os selv som en enabler (en der muligør det. red), der bygger den platform – eller arena – hvor landmanden kan få succes», fortæller Simon Haldrup.
Детский номер для собак и собак IKKE et Farvel til nogle af de eksisterende Услуги:
”Vi har hverken fejet vores produkter til siden eller lagt dem bag os – vi bygger slet og retпечь. Все услуги Fortsætter fuldstændig сом Hidtil. Nu sker det bare under et navn, der bedre indkapsler vores vision, og hvor vi er på vej hen som virksomhed”, udtaler Simon Haldrup.![]()
Læs artiklen her.
Оливер Франклин
Что такое зеленая крыша — Служба технической консервации, Служба национальных парков
Зеленая крыша представляет собой слой растительности, высаженный поверх гидроизоляционной системы, установленной поверх плоской крыши или крыши с небольшим уклоном. Зеленые крыши также известны как растительные или эко-крыши. Они делятся на три основные категории: экстенсивные , интенсивные и полуинтенсивные .Хотя для них нет точных определений, обширная зеленая крыша имеет неглубокую среду для выращивания — обычно менее шести дюймов — со скромной нагрузкой на крышу, ограниченным разнообразием растений, минимальными требованиями к поливу и часто недоступна. Интенсивные зеленые крыши имеют больше почвы и более глубокую среду для выращивания — иногда несколько футов — что может поддерживать более разнообразный выбор растений, включая небольшие деревья. Таким образом, они несут более существенные структурные нагрузки и нуждаются в более частом уходе и поливе.
Обычно они доступны. Полуинтенсивные зеленые крыши включают в себя черты обоих типов. Соответствующая глубина любой зеленой крыши зависит от конструкции крыши, выбранных растений, годового количества осадков и требований к характеристикам ливневых стоков.
Сравнение экстенсивных и интенсивных кровельных систем. Источник: Greenbacks от Green Roofs: создание новой индустрии в Канаде .
Все три типа крыш требуют определенных слоев кровельных материалов, которых нет на обычных крышах.Базовая анатомия зеленой крыши состоит из растительности, питательной среды, фильтрующей мембраны, дренажного слоя, водонепроницаемого/репеллентного слоя, опоры кровельной мембраны для насаждений наверху, теплоизоляции, пароизоляционного слоя и несущей конструкции крыши. Каждый из этих слоев выполняет определенную функцию, чтобы поддерживать жизнь растений и защищать структуру под ним.
Поперечный разрез слоев зеленой кровли. Каждый из этих слоев имеет определенную функцию и необходим для успеха зеленой крыши. Иллюстрация: ООО «Бланк Спейс».
Среда для выращивания — это не тот же материал, который используется для комнатных растений или сада. Традиционная почва тяжелая и плотно уплотняется после неоднократных дождей, что снижает задержку воды и аэрацию корней растений. Среда для выращивания зеленой крыши состоит из минеральных агрегатов и лишь небольшого количества органического материала. Он должен иметь хороший постоянный дренаж и аэрацию со структурой, позволяющей удерживать воду.Он также должен быть легким, устойчивым к разложению и сжатию, физически и химически стабильным.
Некоторые зеленые крыши устанавливаются в одну большую интегрированную секцию, в то время как в модульных зеленых крышах используются небольшие переносные грядки, соединенные вместе, чтобы создать большую зеленую крышу.
Они обеспечивают защиту труб даже в нестандартных условиях.
Для этого нужно определить локализацию поломки и раскопать землю в нужном месте, после чего, остаётся только снять крышку ЖБЛ и приступить к ремонту коммуникации.