Столешница из бетона своими руками: пошаговая инструкция
Во время обустройства кухни перед каждым встает вопрос выбора столешницы. Сделав столешницу своими руками, вы значительно сократите материальные затраты, будете уверены в качестве, причём внешний вид ничем не будет отличаться от покупного товара, который производят профессионалы со стажем. Мы рассмотрим вариант изготовления столешницы из бетона с дальнейшей ее обработкой под искусственный камень или облицовкой кафельной плиткой.

Столешница из бетона
Приготовьте необходимые для работы инструменты: емкость для замешивания раствора, строительный миксер, правило, мастерок, шуруповерт, рулетку.
Материалы для изготовления
Для изготовления опалубки подберите брус, доски, лист влагостойкой фанеры. Рекомендуется внимательно выбирать их качество, они должны быть целыми и ровными без дефектов. Подготовьте песок, цемент и щебень, пластификатор для бетона, арматуру.
Делаем опалубку

Перед началом работы учтите большой вес бетонной столешницы, поэтому очень важно сделать прочное и устойчивое основание.
Переходим к изготовлению опалубки для столешницы. Сооружаем опалубку с расчётом на то, чтобы она свободно снималась и при этом не смогла повредить изделие.
Арматурные прутья нужно связать между собой для прочности и уложить в опалубку. Стоит уделить особое внимание месту, где будет находиться мойка. Здесь необходимо сделать дополнительное кольцо из арматуры.
Замешивание раствора
При работе с жидким раствором может произойти загрязнение пола, во избежание этого застелите его строительной либо любой другой плёнкой.

Приготовить раствор не составит особого труда, берем одно ведро цемента, добавляем два ведра песка, перемешиваем и добавляем еще два ведра щебня. Для улучшения качества консистенции рекомендуется добавить пластификатор. Пластификатор – это добавка, которая позволяет повысить качество бетона, его гидроизоляционные качества, устойчивость к температурам. Постепенно добавляйте воду и с помощью строительного миксера все хорошо перемешайте. При добавлении воды внимательно следите за тем, чтобы раствор имел консистенцию крема и легко растекался по всему периметру нашей конструкции. Для получения эффекта мрамора добавьте в раствор специальный пигмент, цвет которого вы можете выбрать по своим предпочтениям.

Приготовленный раствор начинаем медленно, не спеша заливать в каркас до желаемой вами высоты. Сразу же нужно разгладить всю поверхность, чтобы не было неровностей и параллельно с помощью строительного уровня и кельмы распределить раствор по всему периметру. После выполнения этого этапа накройте поверхность и оставьте на 7 — 10 суток. Чтобы раствор не потрескался, столешницу необходимо подпитывать — смачивать небольшим количеством воды из пульверизатора, равномерно распределяя на все участки. По истечении вышеуказанных сроков опалубку аккуратно снимаем и приступаем к работам по отделке.


Обработка столешницы под искусственный камень
Перед началом работы приготовьте шлифовальную машинку с крупнозернистой и мелкозернистой насадками. Не нужно забывать про насадку из замши. На первом этапе берём крупнозернистую насадку и шлифуем поверхность до идеально ровной поверхности, далее берём другую насадку – мелкозернистую, и проделываем аналогичную процедуру.

Для бетонной поверхности существует специальная пропитка – силинг, заполнитель пор для изделий из бетона. Это специальная жидкость высшего класса, которая обеспечивает гидрацию бетона, одновременно упрочняя и удаляя частицы пыли с него. После полировки силингом тщательно обработайте всю поверхность.

После просыхания на шлифованную машинку надевается насадка из замши для полировки. Чтобы добиться зеркального отражения столешницы, включите машинку на минимальные обороты и тщательно полируйте.
В дальнейшем при износе столешницу достаточно отшлифовать и она снова будет радовать вас своим обновлённым видом.
Облицовка столешницы плиткой
Метод облицовки плиткой делится на три этапа.
- Первый этап. Начинаем работу с клеем. Равномерно нанесём и распределим клей по всей поверхности столешницы, для удобства можно прибегнуть к помощи строительной тёрки. Далее начинаем укладывать плитку, плотно прижимая её к столешнице, между швами вставляем пластмассовые крестики для выравнивания и совпадения швов. После того, как вся столешница покрыта, оставляем плитку на некоторое время для того, чтобы клей схватился.
- Второй этап. Затирание швов. Для этого этапа нужно подготовить затирку для швов. Рекомендуется брать затирку высшего сорта в связи с тем, что на столешницу будет идти огромная нагрузка, температура, влажность и некачественный материал приведёт к ее вымыванию из швов.
- Третий этап. С помощью жидких гвоздей или плиточного клея по бокам столешницы закрепляется профиль, для большей уверенности его нужно зафиксировать струбциной.

Как видите, покрыть столешницу плиткой достаточно просто. При возможном повреждении плитки у вас всегда будет возможность её заменить.
Заключение

Было рассмотрено две технологии изготовления и отделки столешниц. Огромный плюс самостоятельной работы – это изготовление поверхности по собственному дизайну, отвечающую всем вашим пожеланиям и требованиям.
Загрузка…www.vstroyke.com
Столешница из бетона своими руками
Проект Джейми Гаокаса начался с покупки книги о том, как изготавливается кухонная столешница из бетона своими руками. Первое время мастер изготавливал их для себя, потом для друзей, а затем начал свой бизнес. Мастер-класс проводит сам Джейми.
”Готовая
Прежде всего, мастер просит набраться терпения, так как от начала изготовления и до полной установки проходит приблизительно месяц. За это время можно сделать полный ремонт в кухне.

Создание шаблонов
После измерения рабочей поверхности делаются шаблоны. В подносы вливается бетон, который вскоре станет столешницей. Вырезанные инкрустации вставляются в выбранные места.

Создание формы для мойки
Для изготовления мойки используется фанера, из которой сбивается форма. Твёрдая изоляционная пена нужна для формирования углубления.

Готовое изделие
После отлива бетон остаётся в подносе две недели. Качественно изготовленная столешница с мойкой выглядит красиво, как на этом фото.

Застывший материал требует заключительной обработки
Полируют столешницу шлифовальным станком с алмазным кругом.

Водонепроницаемые рабочие поверхности
Последний этап изготовления – заливка силиконом соединений. Это делает их водонепроницаемыми. После поверхность полируется пастой из воска и минерального масла для создания дополнительного защитного слоя. Процедуру рекомендуется проводить один или два раза в год.

Выбор вставок
Куски стекла, фарфора, металла и всё то, что поддерживает оригинальный дизайн интерьера и будет производить впечатление, должно выбираться тщательно, так как останется там навсегда.
Личная инкрустация владельцаЭта подкова принадлежала лошади, которую клиент очень любил. Кусочки стекла и гравия вписываются в общую картину. Другие заказчики выбирают монетки или даже фрагменты механизмов.

Профиль со вставкой
Украшение можно внедрить в профиль столешницы.

Разделочная доска
Доска вынимается, чтобы выбросить шелуху от орехов и другой мусор, который не должен попасть в мойку. На профиле открываются приятные голубые вставки.

Бетон с цветными кусочками
Серый материал отлично гармонирует с коричневатыми кусками стекла.

Цветной бетон
Синевато-зелёные оттенки выглядят вдохновляюще. Пигментация материала – дело нелёгкое, но результат превосходен.

Вдохновляющее творческое пространство
Гаокас художник. Он имеет степени в области искусства и его истории. Это чувствуется в изделиях мастера, создающих особую атмосферу в пространстве дома.
kitchensinteriors.ru
Столешница для кухни своими руками — как сделать бетонную столешницу для кухни: фото, инструкции
Недорого обойдется и даст большие возможности для декора столешница из бетона. Бетонная поверхность столешницы может в этом случае выступить, как основа, которую можно облицевать плиткой, деревом, пластиком и т.д. Но можно, например, сделать бетонную столешницу «под мрамор».

Раствор для бетонной столешницы
Цемент высокой марки (М500), мелкий щебень, промытый речной песок (1:2:2) – главные составляющие раствора. При замесе в него нужно добавить пластификатор бетона (продается в строительных супермаркетах).
Если такая работа для вас в новинку, лучше потренироваться, сделав несколько минимальных замесов бетона (чтобы пробное изделие получилось размером с керамическую плитку). Подождите, пока бетонная плитка высохнет, отшлифуйте ее и, если результат устраивает, приступайте к «большой» работе.
Воды потребуется столько, чтобы раствор был похож на пасту или крем. Если воды в растворе слишком много, готовое изделие получится не слишком прочным, если мало – в его теле будет большое количество пустот, крупных пор.
Окрашивание раствора для бетонной столешницы

Цветной бетон для столешницы получится, если окрасить его в процессе приготовления специальными красящими пигментами – подобрать их вы сможете в строительном магазине. Чтобы бетонная масса окрасилась равномерно, пигмент нужно добавлять в сухой цемент, а чтобы получить «гранитные» разводы, краситель, разведенный в воде, вводят в готовый раствор. Конечно, придется поэкспериментировать.
Чтобы упрочить бетонную столешницу, при заполнении опалубки нужно проложить металлическую армирующую сетку.
Опалубка для бетонной столешницы

Опалубка, которую вы сделаете для бетонной столешницы, должна быть установлена идеально ровно – для этого нужен уровень. Ее основание можно соорудить из толстых листов фанеры, а бортики – из брусков (40х40 мм, 50х50 мм). Борта опалубки для столешницы проще всего прикрутить к основанию саморезами – с внешней части опалубки. По размеру основания саморезами же прикручивают лист пенополистирола (толщиной до 50 мм). Впоследствии, когда бетонный раствор застынет, пенополистирольный лист нужно будет вырезать.
Внутреннюю часть опалубки, в которую будет залита бетонная столешница своими руками, нужно смазать, чтобы избежать прилипания раствора. Для этого можно воспользоваться, например, отработанным машинным маслом, олифой. Можно обойтись и без смазывания опалубки, если выстлать внутренности опалубки плотной полиэтиленовой пленкой.
Когда опалубка залита раствором, сверху ее нужно накрыть пленкой и оставить на 10 дней. Через это время пленку снимают, опалубку и лист пенополистирола удаляют. До полного высыхания изделия нужно выждать еще 7-8 дней.
Бетонная столешница: обработка «под мрамор»
Обрабатывают бетонную столешницу с помощью шлифовальной машины (до 1000 ватт). Такое шлифование удалить верхний бетонный слой, все его неровности, а также проявит частички щебня. Сначала бетонную столешницу шлифуют диском с крупными зернами, потом – со средними.
Во время работы обычно образовывается много пыли – ее удобно удалять пылесосом.
Добросовестно отшлифованная бетонная столешница уже выглядит замечательно. Но ее еще нужно обработать водоотталкивающей пропиткой для бетона – это защитить ее не только от впитывания влаги, но от загрязнения жирами. Сегодня в строймаркетах можно приобрести специальное средство – порозаполнитель для бетонных столешниц. Если обработать бетонное изделие этим препаратом, по своим эксплуатационным характеристикам оно становится равным граниту.
Последний этап обработки бетонной столешницы – шлифование пастой. На диск нужно закрепить кусок тонкой замши, смазать ее шлифовальной пастой и обработать поверхность столешницы на медленных оборотах. Кусочки замши придется несколько раз заменить, так как они быстро загрязняются.
Ну, вот и все, перед вами – почти «мраморная» бетонная столешница – можно устанавливать.
ЕЩЕ СТОЛЕШНИЦЫ
Ламинированные столешницы для кухни: практично и дешево
Хочу больше статей:
Оставьте Ваш отзыв
Average rating: 0 reviewsTags:
плитка раковина столwww.domstoy.ru
Столешница из бетона. Как сделать столешницу из бетона? — Строим сами

Каждый хозяин знает, как важно оборудовать кухню правильно: удобно для приготовления пищи, кухонных работ и для ежедневных завтраков, обедов и ужинов. Один из важных этапов ремонта кухни – это выбор и установка столешницы.
Выбрать столешницу сегодня, казалось бы, не проблема. Однако не все так просто. Не смотря на богатый выбор мебели промышленного производства, чаще всего, она изготавливается стандартного размера, и, скажем, в дизайн маленькой кухни такие столешницы не вписываются.
Можно все-таки приобрести неудобный стол и терпеть его в кухне, а можно сделать все самому, тогда столешница своими руками будет удобной и функциональной. Если мы строим дом своими руками, с такой простой задачей, как изготовление столешницы самостоятельно, справиться будет легко.
Как уже было сказано, самое важное преимущество столешниц, сделанных своими руками, это возможность вписать ее в любой дизайн. Столешницы изготавливаются из различных материалов: бетона, камня, дерева, пластика.
Искусственная столешница своими руками прослужит вам долго. Кроме того, вы можете смонтировать ее с учетом пожеланий всех членов семьи, то есть на определенной высоте и определенной формы.
Чаще всего встречаются искусственные столешницы из бетона. Также распространены тяжелые столешницы из искусственного камня, который прекрасно смотрится на кухне. Итак, самое время узнать, как сделать столешницу своими руками для своей кухни.
Искусственная столешница из бетона своими руками

Рассмотрим процесс изготовления столешницы из бетона. Заметим, что такая столешница получится особенно прочной и долговечной, конечно, при условии, что вы соблюдали технологию изготовления.
Чтобы сделать бетонную столешницу, вам нужно приготовить доски для опалубки, краситель для бетона, полиэтилен для формирования стенок и дна, бетон, щебень, песок, арматуру для каркаса, пенополистерол. Весь процесс делится на несколько этапов.
1. Монтаж каркаса. На ровную гладкую доску прикрепите бортики – таким образом, вы получите форму для будущей столешницы. Бортики легко изготовить из деревянных брусьев небольшого диаметра.
Далее к каркасу прикрепляем лист пенополистерола. Именно этим материалом мы формируем размеры и форму столешницы. Расстояние между краями будет равняться ширине стола.
Внутри лист пенополистерола нужно закрыть полиэтиленом. Так бетон не прилипнет к материалу и застынет ровно. Некоторые мастера используют вместо полиэтилена смазку, например, олифу.
2. Подготовка материала для столешницы. Если мы строим сами дом, то наверняка, работа с бетоном будет не в новинку. Не секрет, что для получения стойкой и прочной конструкции нужно вставить в бетон арматуру.
Поэтому перед заливкой позаботьтесь о крепком каркасе: установите внутрь формы каркас из арматуры.
3. Замес раствора. Раствор цемента в результате должен получиться кремообразным. На одну часть бетона возьмите по две части щебня и бетона. Не забудьте добавить немного цементного пластификатора в состав.
Есть вариант покрыть в дальнейшем столешницу плиткой. Но мы не будем рассматривать этот вариант. Так как поверхность бетона будет открытой, ее нужно окрасить. Для этого используйте краситель для бетона.
4. Этап заливки бетона. Раствор заливается в форму для столешницы и разравнивается сверху шпателем. Сверху накройте будущую столешницу пленкой, чтобы в не застывший раствор не попал строительный мусор.
На то, чтобы раствор цемента полностью застыл, требуется обычно около недели.
Установка столешницы из бетона своими руками

Итак, наш раствор застыл. Теперь столешнице необходимо придать эстетически привлекательный вид. Для этого ее нужно хорошенько отполировать. Создавая дизайн частного дома или дачи, не забывайте о завершающем этапе строительства, всегда доводите внешний вид изделия до совершенства.
Отполировать столешницу можно с помощью шлифовальной машины. Сначала по поверхности будущего кухонного стола нужно пройтись диском с крупным зерном. Так вы удалите ненужные выступы, куски щебня.
Довести до абсолютной гладкости необходимо диском с мелким зерном. Когда поверхность станет достаточно гладкой и приятной на ощупь, удалите всю пыль.
В строительных магазинах продается специальный состав, с помощью которого вы сможете сделать поверхность столешницы близкой по свойствам к граниту. Нанесите жироотталкивающий состав на столешницу и отполируйте с помощью мягкой тряпки и шлифовальной пасты будущий стол.
Столешница готова. Учтите, что стол из бетона довольно тяжелый, его особенно важно надежно установить. Сделать это можно непосредственно закрепив столешницу на стене, или же используя для подставки крепкие металлические трубы или полосы.
Крепите столешницу с помощью металлической арматуры: скоб и шурупов.
Получившийся стол прослужит вам не один год. Гладкой бетонной поверхности не страшны сколы, царапины и другие повреждения.
Если у вас остались вопросы, обратитесь на наш строительный форум, и задайте их. Наши мастера постараются помочь вам и расскажут все секреты успешного строительства. Подписывайтесь на рассылку и расскажите друзьям о сайте!
dom-dacha-svoimi-rukami.ru
Столешница из бетона своими руками
В мебельных гарнитурах большое внимание уделяется столешнице, которая изначально являлась только верхней крышкой стола. Теперь же на такой рабочей поверхности готовят продукты к обработке, располагают мойки и плиты. Ее можно приобрести уже готовую, но лучше всего на вашей кухне будет смотреться столешница из бетона, выполненная своими руками.
Читайте также:Столешница из фанеры своими руками
Если вспоминать недавнюю историю, то такой вид сплошной поверхности появился из-за того, что, когда были отдельно варочные конфорки, отдельно раковины, отдельно рабочие столы для нарезания, то часто это не помещалось вдоль одной стены. Также в процессе приготовления пищи были некоторые неудобства в том, что кусочки еды падали между ними или загрязнялась боковая часть этих предметов. Теперь эти недостатки устранены, и в результате этого появилась еще и встроенная мебель. Это очень удобно, когда маленькая кухня, а хочется разместить как можно больше техники, которая сокращает время приготовления еды. Да и процесс уборки значительно рациональнее и комфортнее.
Читайте также:Как сделать столешницу из дерева своими руками
Виды такой поверхности на данный час довольно разнообразны. Столешницы могут быть только прямыми на одну стенку, а в случае необходимости или стесненного пространства ее делают углом на две стены. На них также размещают микроволновые печи, мультиварки и другую бытовую технику. Эта поверхность настолько
универсальна, что теперь ее применяют и для компьютерных столов, а также размещают в ванных комнатах.
Что только не служит материалом для столешницы. Это может быть гранит, мраморная крошка, стекло, различные деревянные основы. Для того чтобы ее облегчить, научились делать поверхность, имитирующую натуральный камень. Так как человек очень много времени уделяет приготовлению и приему пищи, то эта плоскость должна быть износостойкой, не пропускать влагу и желательно быть доступной по цене. Теперь все эти требования может в себе совместить новейшая технология изготовления ее из такого всем привычного, применяемого в строительстве, материала, как бетон. Ранее перечисленные основы по сравнению с ним довольно дороги, а цемент – более дешевый ингредиент и продается в любом строительном магазине.
Особенно хорошо такую поверхность изготовить на даче, где необходим стол на открытом пространстве. Такая поверхность прекрасно выдерживает влияние воды, холода, солнца. При правильной технологии изготовления это довольно крепкий материал. Он будет долго оставаться целым и без мелких повреждений, которые способны образовываться со временем на деревянных столешницах. Такая основа спокойно переносит перепады температур, и на нее можно ставить даже горячую посуду.
Теперь современные разработки новых марок цемента позволяют делать бетон разных цветов, а не только серым. В готовом виде такая основа очень похожа на мрамор. Добавляя специальный колер для бетона, он будет не только белым, а и ваших любимых цветов. Также поверхность столешницы можно разнообразить различными камешками, битым стеклом, монетами, привезенными с моря ракушками. Если хотите очень креативное решение, то можно даже расположить какую-нибудь картину на бумажной основе. Но ее нужно предварительно заламинировать, чтобы она не расплылась под воздействием воды. Так как поверхность покрывается специальным лаком, то защитная пленка пейзажа или натюрморта не видна. Если будете делать своими руками, то в случае необходимости
поверхность можно будет обновить самостоятельно, сняв только верхний слой.
В строительных магазинах для таких целей, и с такими возможностями в продаже сейчас есть белый цемент, который имеет следующие преимущества:
- скорость затвердения намного быстрее, чем у обычного;
- экологичен, так как состоит только из натуральных компонентов;
- универсален, сочетается с другими отделочными материалами;
- в него можно добавлять специальные красители.
При изготовлении такой основы на даче не нужно специального помещения. Достаточно организовать навес на случай дождя. У многих после стройки возможно остались рулетка, строительный уровень, миксер для замешивания, мастерок.
Как обычно, процесс изготовления начните с проекта и чертежа. Определитесь с размерами, формой. Толщина изделия – приблизительно до 5 сантиметров, чтобы была прочной и недорогой. Далее лучше всего изготовить макет из твердого картона. Для него подойдет упаковочная коробка из-под холодильника, чтобы не склеивать более мелкий. Возможно, вы захотите встроить в нее мойку. Ее нужно приобрести заранее, чтобы оставить под нее отверстие нужных размеров. Если у вас есть старый стол, то его низ будет основой для такой столешницы. Это удешевит в разы конечную стоимость такого предмета быта.
Приступая к изготовлению, нужно сделать опалубку, куда будет заливаться смесь. На место мойки положите таких же размеров копию из пенопласта. При замешивании раствора обязательно все ингредиенты нужно взвешивать, чтобы изделие получилось качественным и не крошилось после высыхания. Учтите, что лицо столешницы будет не сверху, а на дне опалубки. Поэтому все украшения укладываются сразу, а потом заливаются хорошо вымешанной смесью. Не забудьте, что поверхность необходимо еще шлифовать.
Если вы новичок и не знаете, как сделать, то посмотрите в Интернете видео, где даны точные, последовательные инструкции и схемы, а также, с чего начать и как делать либо посоветуйтесь со специалистами.
delajmebel.ru
Бетонные столешницы для кухни своими руками

Красивая, современная и комфортная кухня – мечта каждой хозяйки. Кто-то воплощает свои желания в жизнь с помощью профессиональных мастеров и дорогостоящих стройматериалов, а кто-то использует собственное воображение и мастерство. Ярким примером таких творений могут стать бетонные столешницы для кухни своими руками, которые практически не отличаются от столешниц из мрамора, но обходятся намного дешевле. Такое изготовленное собственноручно изделие станет истинной гордостью хозяев дома.
Достоинства бетона, как материала для столешниц
Бетон позволяет создавать эксклюзивные изделия, которые способны подчеркнуть любой стиль дизайна интерьера. Он является идеальным материалом для изготовления кухонных поверхностей благодаря своим преимущественным характеристикам:
- устойчивость к воздействиям высоких температур;
- малая вероятность образования царапин и сколов;
- богатый выбор искусственных камней, текстур и цветов;
- бетон теплее по сравнению с натуральным камнем;
- высокая функциональность – материал очень хорошо подходит для изготовления столешниц нестандартной формы и пр.
Такое «бетонное» решение для оформления кухонной мебели помогает закрыть сразу несколько вопросов, связанных с прочностью и долговечностью изделия, его стоимостью и неповторимостью – второй такой просто не будет.
Если Вы все-таки решили выполнить бетонную столешницу для кухни своими руками, то очень важно следовать технологии — тогда Ваше произведение получится крепким, надежным и стойким.
Проектирование
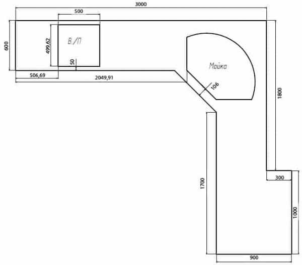
Процесс изготовления кухонной столешницы состоит из нескольких этапов, и самый первый – это конечно же создание проекта. Определитесь, какие размеры и формы должна иметь Ваша будущая бетонная столешница. Расчеты нужно производить с учетом предметов мебели, которые будут находиться рядом. Если столешница имеет угловое расположение, нужно четко вымерять радиус, так как углы не всегда бывают строго 90 градусов. При создании чертежа отразите точные размеры столешницы, не забыв про расположение мойки и крана, которые будут вмонтированы в бетонную поверхность. Выполненный чертеж реального размера кухонной столешницы значительно облегчит весь производственный процесс и поможет своевременно исключить возможные недочеты и ошибки.

Подготовка необходимых инструментов и материалов
Чтобы в процессе работы Вас ничего не отвлекало, а все необходимое было под рукой, следует заранее позаботиться о наличии всего, что понадобится для создания бетонной столешницы.
Поскольку основным материалом для будущей кухонной поверхности является бетон, нужно приготовить все компоненты, необходимые для его замешивания:
- вода;
- цемент марки 1500 и выше;
- очищенный речной песок мелкой фракции;
- пластификатор для бетона;
- щебень или мраморная крошка.
Также Вы можете использовать специальный пигмент (колер), который можно купить практически в каждом строительном магазине. Применение различных красителей позволяет изготовить столешницу любого равномерно окрашенного оттенка, а также с рисунком под мрамор или гранит.
Кроме составляющих компонентов бетонной смеси, Вам потребуются вспомогательные материалы:
- плита МДФ или листовой пластик;
- деревянные брусочки для создания опалубки;
- полиэтиленовая пленка средней плотности;
- стальная сетка с размером ячеек 25х25 мм;
- профили для кромочной поверхности;
- шурупы, саморезы и металлические уголки для изготовления опалубки;
- паста для шлифовки поверхности;
- материалы для декорации столешницы.
Инструменты, которые потребуются в ходе работы:
- рулетка;
- строительный уровень;
- шуруповерт;
- электрический лобзик:
- болгарка с насадками;
- емкость для замешивания;
- промышленный миксер для замешивания или дрель со специальными насадками;
- пластификатор для раствора;
- шпатель;
- мастерок;
- резиновый молоток;
- машинка для шлифовальных работ с полировальными насадками.
Подготовка опалубки
Это довольно ответственный этап работы, требующий предельной точности и аккуратности — от качества заготовки будет зависеть прочность изделия и его внешний вид.

Перенесите подготовленный чертеж будущей столешницы на лист ДСП. На каждую линию прикрепите деревянный брус, если столешница будет иметь округлые формы или для отверстия под мойку можно использовать гибкий профиль. Нужно также предусмотреть отверстие для смесителя. Для этой цели идеально подойдет пластиковая труба диаметром 3,5 см. Стыки стенок опалубки нужно соединить при помощи уголков или длинных шурупов. В этом случае их крепление будет надежным, способным выдержать создаваемую бетоном нагрузку.
Высота конструкции зависит от планируемой высоты столешницы. Идеальным параметром считается 50 мм – это оптимальная толщина поверхности для полноценного использования, без переживаний за прочность и надежность изделия. Делать столешницу слишком широкой по высоте тоже не стоит – значительное увеличение массы изделия затруднит его обработку и монтаж.
Укладка армирующего каркаса
В качестве армирующего каркаса лучше всего подойдет специальная стальная сетка с шириной ячеек 25х25 мм. Сетку укладывают таким образом, чтобы она отступала от листа ДСП на 2,5 см и ее края также не доходили до краев опалубки на 2,5 см.

Под металлическую сетку необходимо положить полиэтиленовую пленку, плотность которой позволяет осуществить укладку без складок и морщин. В противном случае столешница для кухни своими руками получится некачественной, с отпечатками всех имеющихся неровностей.
Готовим и заливаем бетон
Приготовьте раствор в соответствии с рецептурой и требуемыми дозировками. Классический рецепт приготовления бетона:
- 1 часть цемента;
- 2 части песка;
- 4 части заполнителя;
- 0,5 части воды.
Вначале смешивается вода с цементом до получения однородной массы с использованием дрели или промышленного миксера на малых оборотах, а затем в полученную смесь добавляются остальные компоненты.

Готовый раствор выливается в заранее подготовленный каркас, после чего тщательно и равномерно распределяется по всей поверхности опалубки. Далее смесь необходимо накрыть пленкой и оставить в теплой комнате на 24 часа. По истечению суток, пленку необходимо снять и вместо нее положить на бетон мокрую ткань – такой маневр предотвратит появление трещин.
Через 24 часа можно разбирать опалубку и извлекать столешницу. Для этого следует открутить и очень аккуратно снять бортики, а затем перевернуть опалубку вместе с плитой и, простукивая резиновым молоточком, отсоединить столешницу от фанерной основы.
Шлифовка и полировка бетонной столешницы

Существуют разные способы декорирования бетонной поверхности. Самым простым и быстрым из них является укладка керамической плитки. В этом случае Вам не придется шлифовать поверхность – укладывайте плитку, монтируйте торцы и уже через несколько дней можно монтировать ее в нужное место. Все остальные способы обработки и декорирования потребуют гораздо больше временных затрат и усилий.
Вначале с помощью крупнозернистой насадки необходимо обработать всю бетонную поверхность и ее торцы. Перед выполнением этой работы, рекомендуется надеть защитную маску и очки, чтобы не нанести вред своему здоровью. Желательно иметь под рукой пылесос, так как процесс первичной шлифовки сопровождается огромным количеством пыли.
Вторым этапом будет обработка поверхности мелким шлифовочным материалом. Для придания бетону водоотталкивающих и жироотталкивающих свойств, следует нанести на поверхность специальную пропитку, а затем продолжить шлифовать, используя самую минимальную фракцию дисков шлифовальной машинки. Заключительным этапом будет обработка поверхности с помощью замшевой накладки и пасты для шлифовки на самых малых оборотах.

Эта длительная и кропотливая работа будет увенчана отличным результатам – рабочая поверхность для кухни приобретет глянцевый блеск, идеальную гладкость и, несмотря на свою недороговизну, будет выглядеть не хуже столешницы из натурального камня и прослужит Вам долгие годы!
infomebli.ru
Столешница из бетона для кухни своими руками
Собрать кухонную столешницу самостоятельно — несложно. Главное, чтобы она соответствовала следующим требованиям:
- надёжность;
- функциональность;
- приемлемая стоимость.
К таким вариантам относится кухонная столешница, выполненная из бетона. Конструкция получится массивной, но прочной и ремонтопригодной. Даже глубокие царапины на бетонной столешнице удаляться, если отшлифовать поверхность.

Если творчески подойти к процессу изготовления столешницы, то можно разнообразить лицевую плоскость в плане отделки. Делают три разновидности кухонных столешниц:
- Столешница с бетонной поверхностью, которую способом шлифования доводят до определённой степени гладкости.
- Столешница с облицовкой в виде керамической плиткой.
- Столешница, декорированная аксессуарами.
Сначала изготавливается бетонную основу — это плита из бетонного раствора, в состав которого входят цемент марки М500, чистый мелкозернистый речной песок и щебень мелкой фракции. Существует несколько рецептур смешивание ингредиентов, но чаще используют такой: 1х2х3.
Этапы изготовления
Технологический процесс изготовления столешницы самостоятельно включает в себя два этапа:
- подготовительный;
- основной.
Подготовка
Сначала разрабатывается форма будущей столешницы. Для этого нужно снять размеры кухонного гарнитура и спроектировать рабочую плоскость. Если поверхность линейная её заливают как единое изделие. Если гарнитур угловой, то лучше столешницу разделить на участки и провести заливку каждого отдельно.

Когда форма и размеры кухонной столешницы определены, переходим к сборке опалубки. Бетонный раствор заливается в форму, где он должен просохнуть. Опалубку для столешницы изготавливают из листового прочного материала. В домашних условиях оптимально применить фанерный лист или плиту ОСП, которую подрезают под размеры и форму будущей столешницы. Если в изделии будет устанавливаться мойка, то под неё вырезается отверстие.
Далее ставятся деревянные бруски по всему периметру фанеры, чтобы создать пространство, определяющее толщину столешницы. Её минимальный показатель – 5 сантиметров. Для бортиков лучше использовать бруски размерами 50х70 миллиметров. Раствор заливается не на всю высоту бортов. Бруски устанавливаются на места и крепятся к фанерному листу саморезами.
Если нужна столешница со скругленными углами, поступают следующим образом:
- В угол опалубки устанавливают стакан или пластиковую трубу, размер которой определял бы скругление углов столешницы.
- В пространство между трубой (стаканом) и бортиками, формирующими угол, заливают силиконовый герметик. Как только он высохнет, трубу убирают. Остается, заполненный герметиком, скругленный угол.
Закругление углов опалубкиПроизводится монтаж бортиков по вырезанному из нижней части опалубки отверстию, которое определяет монтажное место под раковину. Теперь элементы формы обкладываются полиэтиленовой пленкой, чтобы создать герметичность стыков соединенных листов и брусков, а также, чтобы получилась гладкая поверхность заливаемого изделия. Опалубка готова, можно переходить к основному этапу изготовления кухни из бетона.
Лицевая часть столешницы из декоративного бетона должна быть как-то отделана. Для этого используются декоративные предметы: монеты, камешки, пластиковые кусочки разных размеров и форм. Вариаций на данную тему много.
В смесь бетона добавили деревоЭти элементы выкладываются на дно опалубки на полиэтиленовую пленку. Уложить их надо в любом порядке. Но учитывайте что, чем меньше расстояние между аксессуарами, тем лучше. К примеру, плоские камешки лучше сверху смазать клеем, чтобы они прочнее прикрепились к бетонному раствору. У них гладкая поверхность, поэтому остается вероятность, что в процессе эксплуатации камешки выскочат из столешницы.
Приготовление и заливка бетонного раствора
Сначала определитесь, сколько бетона потребуется для изготовления столешницы на кухню. Для этого рассчитайте площадь опалубки с вычетом площади отверстия под мойку, и умножьте полученный результат на высоту изделия. Получится объем необходимого раствора. Затем готовится сам раствор путем перемешивания ингредиентов с добавлением воды. Он не должен быть сильно жидким и очень густым. Выбирайте «золотую» середину. Будет неплохо, если в раствор добавить немного пластификатора, который сделает его пластичным, что важно в изготовлении изделий из бетона. Как пластификатор применяют обычный шампунь. Двух-трёх колпачков хватит для небольшой столешницы.

Можно сделать столешницу цветной, используя пигмент необходимой окраски, который добавляется в бетон. Если добавить пигмент в сухой раствор, то цвет будет одинаковым и равномерным по всему периметру изделия. Если добавить его в воду, то получится размытый цвет, похожий на расцветку гранита с прожилками.
Готовый раствор заливается в опалубку, где равномерно распределяется по всему объему формы. Составляющая, которая определяет дополнительную прочность столешницы — это армокаркас. В качестве него используют металлическую сетку с небольшими ячейками, которую укладывают в середину заливаемого бетонного раствора. Заливается один слой, выравнивается, укладывается армирующий каркас, затем заливается следующий слой до уровня толщины столешницы.
В таком состоянии изделие находится минимум неделю или 10 дней. После чего демонтируются бортики, плита приподнимается и устанавливается на опоры из тех же бортиков, укладываемых поперек столешницы. Это делается, чтобы нижняя сторона просохла. Через 10 дней переходят к финишной отделке.

Отделка
Бетонная столешница изготовлена, остается её отделать. Как уже было сказано выше, есть несколько вариантов, чтобы сделать из нее интересный элемент мебели для кухни. Самый простой – облицевать поверхность и торцы керамической плиткой. В принципе, это обычная технология облицовки, которую используют для отделки пола или стен, к примеру, кухонного фартука. Рекомендуем использовать плитку такую же, как и на фартуке. Такое сочетание является идеальным, столешница как бы продолжает отделку фартука, или наоборот.
Сложнее придать столешнице гладкость, используя технологию шлифовки бетона. Во-первых, она пыльная и грязная, а значит, внутри дома ее использовать нельзя. Во-вторых, шлифовка и полировка требует использования разного инструмента, что увеличивает время проведения процесса. Делается это так:
- Поверхность шлифуется крупнозернистым абразивным кругом или применяется наждачная бумага, удаляются крупные неровности.
- Затем применяется мелкозернистый инструмент, которым правятся мелкие дефекты.
- И третий этап – это полировка с применением замшевой насадки и специальной пасты. Этот процесс происходит на малых оборотах инструмента. Он долгий, поэтому понадобится терпение. Результат превзойдёт все ожидания, поверхность столешницы будет гладкой с глянцевым блеском. Она ничем не будет отличаться от каменной. А если в бетонный раствор добавить вместо щебня мраморную крошку, то получится столешница из искусственного камня.
Шлифовка бетонной столешницыК самостоятельному производству столешницы из бетона подходят с позиции правильного проведения всех этапов, с учетом технологических особенностей каждого процесса.
В заключение отметим, что бетонные столешницы, сделанные для кухни своими руками – это возможность прикоснуться к творчеству и, конечно, сэкономить. Для многих оптимальное решение – приобрести готовый вариант, а лучше, если бы кто-то всё сделал без вмешательства хозяина. Так что у каждого свои приоритеты.
Загрузка…interierkuhni.ru