Бетонная подготовка под фундамент
Бетонная подготовка под фундамент: строительные нормы и правила подбетонки.
Осуществляя строительство, важно правильно выполнить предварительные расчёты, а также технически грамотно, качественно подготовить основание, которое определяет устойчивость фундамента здания. Бетонная подготовка под фундамент представляет собой комплекс работ по возведению подушки под будущим объектом.
Выбор оптимального варианта выполнения подготовительных мероприятий влияет на надежность фундамента, срок эксплуатации объекта строительства. Правильно подготовленная основа, пропорционально площади, перераспределяет действующие на грунт нагрузки, предотвращает утечку цементной массы, которая возможна в процессе заливки раствора бетона.
Формирование подушки – ответственная операция. Именно поэтому технические требования, определяющие особенности выполнения подготовительных мероприятий, технологию, необходимый материал, толщину слоя, используемого для подушки, регламентируют СНиП и Свод Правил, рекомендации которых рассмотрим далее более детально.
Устройство бетонной подготовки под фундамент.
Существует ряд технических требований, регламентирующих технологию ведения подготовительных работ, выбор материала и толщину слоя, применяемого для подушки.
Нормативные документы.
Требованиям, каких нормативных документов и правил, должно соответствовать устройство бетонной подготовки под фундамент?
При осуществлении промышленного и гражданского строительства сооружение любых видов конструкций подчиняется специальным положениям, приведенным в отраслевых и государственных стандартах, строительных нормах и правилах, а также сводах правил. Главной документацией, регламентирующей специфику работ, являются:
- СНиП 52–01, выпущенные в 2003 году, посвящены конструкциям из бетона и железобетона;
- СП 50–101, утвержденные в 2004 году, содержащие требования к проектированию и устройству оснований фундаментов;
- СП 52–101 (2003), посвященные конструкциям без предварительно напряженной арматуры;
- СНиП 2.
02.01, разработанные в 1983 году, регламентирующие параметры оснований объектов строительства; - СП 63.13330.2012 – свод правил, объединяющий требования к строительным сооружениям.
Указанные стандарты четко определяют особенности мероприятий, связанных с устройством фундаментов, их проектированием. Они учитывают:
- Особенности почвы на участке строительства.
- Специфику объекта застройки.
- Требования экологичности.
- Действующие усилия.
- Степень сейсмической активности.
Требования нормативных документов подлежат неукоснительному выполнению строительными компаниями и организациями, осуществляющими проектные работы.
Бетонная подготовка под ленточный фундамент.
Устройство любых конструкций при возведении гражданских и промышленных объектов подчиняется определенным требованиям.
Разновидности подготовки.
Требования строительных норм и сводов правил предусматривают, что для формирования основания необходимо выполнять один из указанных видов подготовки.
Перечислим возможные варианты:
- основа из тощего бетона, характеризующегося невысокой маркой, малым процентным содержанием вяжущих ингредиентов;
- щебеночная подготовка под основу, толщиной 200 мм, обеспечивающая значительное снижение расхода цемента. Щебень уплотняют, заливают раствором битума;
- профильное мембранное основание, объединяющее особенности указанных выше видов работ.
Повышенную прочность обеспечивает первый вариант, после которого удобнее выполнять дальнейшие работы по обустройству фундамента. Остановимся на нем подробно.
Главные задачи подбетонки.
Устройство бетонной подготовки под фундамент обеспечивает требуемое состояние основания, обладающего необходимой несущей способностью, достаточной для восприятия прилагаемых усилий. Именно поэтому строительные нормы уделяют ей повышенное внимание. Каково основное назначение подбетонки, являющейся базой монолитных конструкций? Какие задачи она выполняет?
Бетонная подготовка под фундамент ГЭСН.
Бетонную подготовку под фундамент применяют, прежде всего, при возведении плитных и ленточных армированных конструкций.
- Обеспечение защиты залитого раствора от вытекания, что способствует быстрому затвердеванию основы в соответствии с требованиями технологии, улучшению ее качества. Недостаток влаги является причиной растрескивания массива, снижения прочности основания и последующего его разрушения с течением времени.
- Создание плоской поверхности, позволяющей геометрически правильно, устойчиво установить каркас основания и выполнить армирование в соответствии с требованиями СНиП.
- Выравнивание реакции грунта на основание подошвы, равномерное распределение усилия по всей площади.
- Предотвращение возможной усадки почвы под воздействием точечных усилий и значительных нагрузок.
Стадии подготовительных мероприятий.
Подготовительная стадия, согласно правилам, предусматривает выполнение следующих этапов:
- расчётной части, определяющей толщину и габариты основы фундамента, ее способность противостоять деформациям;
- обустройства зоны работ;
- формирование площадки.

СП бетонная подготовка под фундамент.
Согласно СНиП 52-01 для бетонной подготовки под фундамент в качестве основного материала используется щебень.
Требования к расчетной части.
Строительные правила требуют выполнять расчет усилий, которые способно воспринимать основание в следующих случаях:
- При наличии серьезных сжимающих усилий.
- При расположении объекта строительства вблизи насыпей, склонов или откосов.
- При обустройстве подошвы фундамента, расположенной на слабых почвах.
Стандарты разрешают не выполнять расчеты несущих нагрузок, если, согласно проекту, будут выполняться мероприятия, которые не допускают смещение почвы.
В качестве усилий, действующих на основу, свод правил учитывает все передаваемые нагрузки, действующие, как кратковременно, так и на протяжении всего периода эксплуатации. Учитывается также масса находящейся ниже нулевой отметки части объекта.
Готовим котлован.

Основные стадии работ по подготовке грунта для установки бетонной фундаментной основы включают:
- обустройство и разметку котлована, с учетом будущей толщины слоя песчано-гравийной смеси и бетона;
- планировку и подчистку дна выемки;
- уплотнение рыхлой почвы с использованием вибрационных плит;
Бетонная подготовка под фундамент СНиП.
Вне зависимости от типа грунта, на первом этапе работ по выполнению подготовки из тощего бетона под фундамент следует выровнять дно выемки.
- дополнительное увлажнение или осушение грунта в зависимости от результатов работ по уплотнению;
- подсыпку песочно-щебеночной фракции толщиной 10 см, необходимой для дренажа;
- трамбование массива;
- нанесение гидроизоляционного слоя из пленки или полотен рубероида;
- сборку опалубки высотой не более 30 см для бетонирования.
Только после этого приступают к выполнению работ по бетонированию. Таковы основные стадии, предусмотренные стандартами, из которых состоит бетонная подготовка под фундамент.
Выполнение армирования.
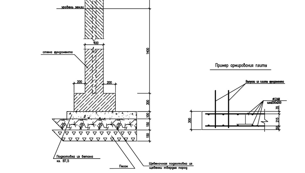
Согласно строительным нормам, бетонная подготовка под фундамент предусматривает необходимость усиления бетонного массива стальной арматурой. Это мероприятие улучшает надежность находящейся ниже нулевой отметки части постройки, усиливает подбетонку.
Усиление основы осуществляется стальными сетками, связанными специальной проволокой диаметром 8 миллиметров. Конструкция укладывается на основание до заполнения опалубки смесью. Стандарты предусматривают установку вертикально расположенных стальных прутьев, обеспечивающих прочную связь фундамента с основой. Стальные прутки должны возвышаться над поверхностью основания не менее чем на 20 сантиметров.
ЕНиР бетонная подготовка под фундамент.
Армирование значительно укрепляет подбетонку и повышает надежность подземной части строения.
Особенности бетонной подготовки.
Основные положения, содержащиеся в строительных нормах и своде правил, связанные с выполнением подушки на базе тощего бетона:
- Допускается применение раствора маркой М50 и выше.
Для выполнения работ используется тощий бетон, представляющий собой разновидность цементного раствора, в котором содержится не более 6% цемента класса В15. Роль наполнителя играют песок и гравий. - Залитый массив для плит фундамента или монолитной основы должен выходить за уровень подземной части конструкции и возвышаться над ней на 100-150 мм, что обеспечивается конструкцией заблаговременно подготовленной опалубки.
- Раствор заливается на предварительно выполненную щебеночно-песчаную основу.
- Удаление воздушных пузырьков производится путем трамбования смеси.
- Защита от обезвоживания поверхности обеспечивается полиэтиленовой пленкой, которой в первые дни накрывают залитую поверхность.
Можно ли выполнять подбетонку без армирования? Какая рекомендуемая строительными нормами толщина подбетонки, выполненной без усиления? Строительные правила допускают такой вариант, для которого толщина слоя бетонного массива составляет 150-200 мм.
При обустройстве армированной основы под фундамент свод правил разрешает уменьшенную высоту основы.
Толщина слоя в этом случае составляет 60-100 мм. На размер влияют масса строения, уровень залегания грунтовых вод, тип почвы.
ЕНиР устройство бетонной подготовки под фундаменты.
Строительные требования предусматривают минимальную высоту бетонного слоя, который должен возвышаться над поверхностью грунта не меньше, чем на 15 см.
Согласно СНиП, допуск плоскостности поверхности при формировании монолитной ленты не превышает 0,5 см на каждый метр длины и не более 5 сантиметров для цельных плит, имеющих ширину свыше 25 метров.
Бетонная подготовка под фундамент особенно актуальна, если строительные мероприятия осуществляются в зимнее время, поскольку ровная поверхность облегчает дальнейшее выполнение предусмотренных проектом фундаментных работ.
Выполнение щебеночной подготовки.
Использование подготовленных оснований на базе щебня позволяет уменьшить затраты на выполнение строительных мероприятий. Ведь экономится цемент, а объем расходов на приобретение щебня вполне приемлемый.
Щебеночная подготовка под основание допускается сводом правил и строительными нормами. При этом толщина слоя должна быть порядка 20 сантиметров. Слой щебня должен быть тщательно утрамбован, залит жидким битумом. Заливка битумного раствора выполняется, если необходимо максимально насытить почву или сформировать гидроизолирующую битумную пленку. Указанный метод не обеспечивает высокой жесткости подложки, затрудняет выполнение фундаментных мероприятий. Он широко распространен для малоответственных строительства объектов технического назначения, подсобных помещений и вспомогательных построек.
Применение профильных мембран.
Сборники строительных норм и правил при подготовке оснований предусматривают использование современных технологических решений, к которым принадлежат мембраны профильного типа. Их применение упрощает процесс формирования основы, так как исключаются виды работ, связанные с бетонированием. Отсутствие «мокрых» этапов работ обеспечивает экономию ресурсов, упрощает процесс монтажа основы.
Результат – сокращение времени подготовительных мероприятий.
Внимательно изучив сборники с действующими строительными нормами и сводом правил, строители и проектировщики получат полное представление о требованиях к мероприятиям по подготовке основания. После выполнения подготовительных работ с соблюдением рекомендаций нормативных документов, объект строительства будет отличаться прочностью, повышенной устойчивостью и сможет длительное время эксплуатироваться. Ведь бетонная подушка – оптимальное решение для обеспечения надежности строения!
Бетонная подготовка под фундамент: для чего нужна, виды и порядок выполнения.
Перед возведением фундамента, помимо предварительных расчетов, необходимо особым образом подготовить строительную площадку. В частности, важным моментом является укладка подушки. Так называемая бетонная подготовка под фундамент по СНИПу50-101-2004 выполняется с использованием щебня или тощего бетона.
Далее мы подробней рассмотрим устройство бетонной подготовки под фундамент.
Бетонная подготовка под фундамент СНиП.
Подготовка под основание.
Для чего нужна подготовка под фундамент.
В первую очередь надо разобраться, зачем вообще нужна подготовка?
Если речь идет о заливке бетона, а не возведении конструкции из готовых блоков, то она позволяет решить сразу несколько задач одновременно:
- Защищает бетонную массу от утечки жидкости, благодаря чему улучшаются показатели качества основания.
- Противодействует давлению грунта и ослабляет его негативное влияние на конструкцию.
- Обеспечивает удобство при установке арматурного каркаса своими руками, так как процедура выполняется на ровной поверхности.
Бетонная подготовка под монолитные фундаменты.
Подушка из гравия.
Виды подготовки.
Как уже было сказано выше, допускается несколько вариантов обустройства площадки под основание – с использованием:
Теперь подробней рассмотрим особенности каждого варианта.
Подушка из щебня.

Данный вид обустройства площадки используют для экономии средств, так как цена щебня низкая самого по себе, к тому же он уменьшает расход цемента. Толщина слоя подушки должен составлять не менее 20-ти см.
Толщина бетонной подготовки под фундамент.
Схема основания типа фундаментная плита.
Укладывается такая подушка в следующем порядке:
- В первую очередь на дно траншеи или котлована (если выполняется бетонная подготовка под фундаментную плиту) засыпается щебень или гравий.
- Затем слой тщательно утрамбовывается.
- После этого щебень заливается битумом.
К недостаткам такой технологии относится недостаточная жесткость подложки. К тому же строить фундамент на щебне не очень удобно. Поэтому такую подушку применяют, как правило, при строительстве технических и вспомогательных подсобных зданий.
ГЭСН устройство бетонной подготовки под фундаменты.
На фото — бетонная подушка.
Данный вариант обустройства подложки обеспечивает наиболее правильный процесс возведения фундамента.
Кроме того, она исключает возможность просадки грунта.
Следует отметить, что тощий бетон является далеко не самым дешевым вариантом, однако используется он довольно часто. Особенностью тощего раствора является то, что в нем содержится не более 6 процентов цемента, остальную же часть составляет песок, гравий и щебень.
Толщина подложки составляет 50-100 мм. Этот показатель зависит от веса будущего строения, вида грунта и уровня подземных вод.
Совет! При возведении подушки из щебня, лучше использовать материал мелких и средних фракций.
Чаще всего бетонную подушку используют при строительстве ленточных и плитных армированных конструкций. Это связано с особенностями технологического процесса, предусматривающего жесткий монтаж сеток и каркасов в тело будущего основания.
Кроме того, выполнять строительство на бетоне значительно проще, особенно в зимнее время года.
Профильные мембраны.
Данная технология является современным вариантом подготовки под фундамент, которая является альтернативой использованию щебня или бетона.
Ее особенностью является отсутствие мокрых работ. Кроме того, этот метод позволяет ускорить строительный процесс и сэкономить средства.
Зачем нужна бетонная подготовка под фундамент.
Траншеи под основание.
Порядок выполнения бетонной подготовки.
Теперь подробно рассмотрим, как выполняется бетонная подготовка с использованием тощего бетона.
Итак, инструкция выглядит следующим образом:
- В первую очередь нужно выполнить разметку строительной площадки в соответствии с проектными данными.
- После этого выкапываются траншеи на расчетную глубину. Если в качестве фундамента будет использоваться монолитная плита, следует выкопать котлован.
- Затем отведенный под фундамент участок надо выровнять и засыпать слоем щебня толщиной около 10 см.
- Слой щебня следует утрамбовать. Для этого можно использовать виброплиту.
- Следующим шагом является монтаж опалубки высотой. Ее высота зависит от толщины слоя бетона, но должна быть не менее 15 см, так как это позволит удачно разместить армировку,и не более 30 см.

- Далее подушку нужно усилить при помощи армирования, используя прутья сечением не менее 8 мм. Также можно применить для этих целей сетку.
- После этого нужно выполнить бетонный раствор. В качестве связующего используется цемент марки М50 и выше.
Для чего нужна бетонная подготовка под фундамент.
- Затем опалубку нужно залить бетоном под верхний край. Бетон при этом следует утрамбовать.
- Далее необходимо вставить в раствор прутки арматуры, которые смогут скрепить фундамент с подушкой. Они должны возвышаться над бетоном примерно на 20-30 сантиметров.
На этом процесс подготовки подушки завершен. Осталось дождаться, пока окончательно застынет бетон и затем можно приступать к возведению фундамента.
Совет! После того как основание будет построено, может понадобиться его механическая обработка – выравнивание, выполнение в нем отверстий и т.д.подобные операции осуществляют алмазным инструментом, к примеру, зачастую выполняется алмазное бурение отверстий в бетоне или резка железобетона алмазными кругами.
Бетонная подготовка под основание является важным этапом строительства фундамента. От него зависит качество последнего, а значит и долговечность всего строения. Поэтому выполнять подготовку необходимо ответственно, в соответствии с приведенной выше технологией.
Рекомендация: Хорошая обзорная статья, из нее узнаете, что такое подбетонка под фундамент. Подбетонка применяется для того, чтобы выровнять плоскость и снизить расход бетона выше классом. Потому что последующий бетон намного прочнее и стоимость его дороже, что сказывается на общей стоимости сметы. За перерасход нужно будет отчитываться. На ровной плоскости будет быстрее происходить монтаж конструкций и оборудования.
Толщина бетонной подготовки под фундамент
Бетонная подготовка под фундамент – требования СНиП и устройство подбетонки
Устойчивость фундаментов зависит от качества подготовки основания. Его выбор и устройство во многом определяется материалом подземных конструкций и грунтовыми условиями площадки застройки.
Бетонная подготовка под фундамент считается наиболее надежной и дорогостоящей по сравнению с песчаными и щебеночными подушками. Чаще всего она выполняется под монолитными лентами и плитами с учетом требований соответствующих СНиП и СП.
Для чего нужна подбетонка
Прежде всего, подготовка участка под фундамент преследует цель упрочнения и выравнивания основания. Но бетонный слой является еще и барьером, защищающим будущий подземный монолит от потери цементного молочка, которое при бетонировании конструкции может просто просачиваться в землю или подстилающие слои щебня и песка. Подбетонка способствует удержанию влаги в растворной массе, что требуется для корректного прохождения процесса отверждения бетона. Если воды будет недостаточно, цемент не сможет полностью раскрыть свои свойства, а это приведет:
- к появлению трещин в бетонируемой конструкции;
- к недобору проектной прочности;
- к дальнейшим разрушениям фундамента в период эксплуатации.
Устройство в основании подземной части дома бетонной площадки в соответствии со СНиП способствует максимально равномерному распределению нагрузок, действующих со стороны грунта и наземной части строения.
Еще одна причина, определяющая для чего нужна подбетонка, заключается в том, что по жесткому и ровному слою подготовки устройство фундамента в зимний период происходит проще.
Нормативные документы – СНиП и Свод Правил (СП)
Устройство любых конструкций при возведении гражданских и промышленных объектов подчиняется определенным требованиям, указанным в соответствующих СНиП и других стандартах государственного и отраслевого значения. Бетонная подготовка под фундамент выполняется, основываясь на:
- СНиП 2.02.01-83;
- СП 63.13330.2012;
- СП 50-101-2004.
В данных документах определяются мероприятия по проектированию и устройству оснований с учетом:
- типа грунта;
- окружающей застройки;
- действующих нагрузок;
- сейсмичности;
- экологических требований.

Толщина и ширина бетонной подготовки для фундамента рассчитывается, согласно СНиП, по несущей способности и возможным деформациям. В первом случае расчет требуется, если:
- предполагается наличие значительных сжимающих нагрузок;
- строение предполагается размещать вблизи откосов, на склоне или насыпи;
- под подошвой фундамента находятся слабые грунты.
Следует оговориться, что СНиП допускает не производить расчетов по несущей способности, если проектом будут предусмотрены мероприятия, исключающие смещение грунта по ранее названным причинам.
В качестве нагрузок на бетонную подготовку фундамента принимаются все передаваемые от сооружения длительные и кратковременные усилия, включая вес подземной части строения. Возможные сочетания указаны в СНиП.
Вне зависимости от типа грунта, на первом этапе работ по выполнению подготовки из тощего бетона под фундамент следует выровнять дно выемки. К сведению, для монолитной ленты достаточно будет выкопать траншею, а для плиты потребуется котлован.
При определении глубины выемки учитывается толщина подбетонки и толщина песчано-гравийного слоя, укладываемого непосредственно на грунт.
Рыхлую почву необходимо утрамбовать, а на дно выемки подсыпать песок и щебень. Слои также трамбуются. Щебень, в этом случае, будет выполнять дренажную функцию. Далее на поверхность в качестве гидроизоляции настилаются полотна рубероида или пленки.
Бетонная подготовка под монолитную ленту или фундаментную плиту должна выступать по периметру за пределы подземной конструкции на 10-15см. С таким учетом делается щебеночно-песчаная подоснова и выполняется устройство опалубки под заливку основания. Высоту короба принимают, исходя из толщины подготовки под фундамент.
На следующем этапе замешивается тощий бетонный раствор, в состав которого входит малый объем цемента. В качестве наполнителя используется гравий и песок. После того, как бетон будет залит в опалубку, его потребуется утрамбовать, чтобы избавиться от пузырьков воздуха, и выровнять.
В первые несколько дней поверхность бетонной подготовки накрывают полиэтиленовой пленкой, предотвращающей чрезмерное высыхание поверхности.
Важно знать, что основание под фундамент, не усиленное арматурой, имеет ограничения по размерам.
Армирование значительно укрепляет подбетонку и повышает надежность подземной части строения. Сетки вяжут посредством проволоки из стержней диаметром восемь миллиметров, а укладывают до заливки раствора. Для обеспечения надежного спряжения бетонной подготовки с фундаментом, в толщу основания вертикально устанавливают металлические прутья таким образом, чтобы они выступали над поверхностью бетона на 20-30см.
Оптимальной толщиной подбетонки без армирования считается 15-20см. При устройстве железобетонного основания под фундамент, размер подготовки может быть уменьшен до 6-10см. В СНиП указывается максимальное отклонение горизонтальной поверхности – не более 5мм на метр при устройстве монолитной ленты и не более 50мм для плиты шириной более 25 метров.
Бетонная подготовка под фундамент
Подготовка под фундамент
Фундамент является той частью, которая отвечает за прочность и долговечность строения. Поэтому к подготовке площадки основания нужно подойти очень ответственно. Существует такое понятие, как подготовка под фундамент, которая выполняется из тщательно утрамбованного щебня или тощего бетона. Чаще всего подготовка выполняется при создании монолитных конструкций. Главная цель выполняемых действий — подготовить основание для возведения фундамента.
Для строительства надежного и крепкого фундамента необходимо качественно обустроенное основание. Прямое назначение бетонной подготовки под фундамент заключается в следующем:
- Выравнивание дна котлована или траншеи после работы трактора или экскаватора.
- Распределение воздействий на фундамент со стороны грунта. В результате компенсируется нагрузка на подошву фундамента, что способствует сохранению его целостности.

- Создание более комфортных условий для монтажа армирующего каркаса. Сборка арматурной сетки на ровной и твердой поверхности позволяет более качественно выполнить работу. Кроме того подготовка не позволяет погружаться арматуре в грунт и изменять запланированное положение.
- Предотвращение утечки бетонного молочка из раствора. Сохранение влаги в бетоне позволяет избежать образования трещин и других дефектов, которые способствуют снижению прочности фундамента.
- Обеспечение гидроизоляции подошвы фундамента, защищая бетонный массив от увлажнения, в результате которого могут образоваться трещины на готовом фундаменте.
Подготовительные мероприятия
Согласно правилам предусмотрена подготовительная стадия, которая предполагает выполнение следующих действий:
- Расчет толщины и параметров основания под фундамент.
- Обустройство рабочей зоны.
- Формирование площадки.

Расчетные действия
Кроме высоты, длины и ширины подготовки необходимо рассчитать способность основания противостоять следующим факторам:
Характеристики бетонной подложки
- Сильное сжимание.
- Близкое расположение склонов и насыпей.
- Строительство на слабых грунтах.
Подготовка котлована или траншеи
Установить качественную подготовку для фундамента можно только на хорошем грунте. Для этого необходимо выполнить следующие действия:
- Очистить котлован или траншею и выполнить разметку, учитывая толщину будущей подготовки.
- Выполнить планировку и подчистить дно.
- Уплотнить участки с рыхлым грунтом, используя виброплиту.
- Определить степень увлажнения грунта после уплотнения и в зависимости от этого увлажнить или осушить почву.
- Сделать подсыпку из песка и щебня небольшим слоем и тщательно утрамбовать ее.
Подсыпка выступит в качестве дренажа. - Монтаж опалубки для подготовки под фундамент. Для этого используют доску толщиной около 2,5 см и шириной не меньше 15 см. Опалубку фиксируют колышками с внешней стороны, чтобы под действием бетонной массы конструкция не сместилась. На опалубке отмечают линию верха подготовки.
- Укладка гидроизоляции на дно с использованием полиэтилена или рубероида.
Такое основание будет идеальным вариантом для подготовки под фундамент любого вида.
к оглавлению ↑Создание подушки из песка или щебня
Песчаная или щебневая подушка под фундаментом не только усиливает грунт, но способствует равномерному распределению нагрузки по всей площади. Такое основание может использоваться под свайный ростверк или монолитную плиту. Создавать подушку можно из песка или щебня, выполняя несложный процесс:
Подушка для фундамента
- Доставленный на участок материал распределяют по всей площади и выравнивают поверхность, используя строительный уровень.
Толщина подушки зависит от влажности котлована или траншеи и может составлять 20 см и больше. - Далее выполняют увлажнение подушки, которое также зависит от влажности грунта. В сухом котловане увлажнять щебень нужно обильно, а вот песок — умеренно.
- Увлажненную подушку необходимо хорошо уплотнить с помощью поверхностного вибратора.
- Подушка должна состоять из нескольких слоев песка или щебня. Каждый слой увлажняют и трамбуют. Общая высота подготовки из песка или щебня должна соответствовать проектному параметру.
- Готовую подушку заливают цементным раствором. В результате этого действия образуется цементная стяжка на поверхности.
Бетонная подготовка под монолитный фундамент
Бетонная подготовка под фундамент может выполняться с армирование или без него.
Безарматурная подготовка
В первом случае результатом станет более дешевая конструкция, но и менее надежная.
Безарматурный способ подразумевает использование щебня или тощего бетона. Этот раствор содержит не более 5% цемента, остальная масса состоит из щебня или гравия. Сорт такого бетонного раствора отличается низкой стоимостью и невысокими качественными характеристиками. Устройство подготовки такого вида предполагает выполнение следующих действий:
- Укладка щебня или тощего бетона толщиной около 0,2 метра.
- Тщательное уплотнение слоя.
- Заливка битумной смолы по всей площади подготовки до образования пленки или полного насыщения.
Такая подготовка для фундамента может использоваться при строительстве подсобок и вспомогательных помещений, но совсем не подходит для серьезных зданий.
к оглавлению ↑Подготовка с армированием
Более надежной считается армированная подготовка под фундамент. Такое основание может обеспечить безопасность строению и повысить устойчивость фундамента к подмыванию грунтовыми водами при их близком расположении.
Процесс создания армированной подбетонки выглядит следующим образом:
Армирование подбетонки
- Выполнение армирования.Согласно строительным правилам и нормам усиление бетонной подготовки выполняется сеткой из арматурных прутьев сечением 8 мм, которые связываются мягкой вязальной проволокой. Конструкция укладывается до заливки бетона. Использование армирующей сетки позволяет уменьшить высоту подбетонки до 10-15 см. После заливки бетона рекомендуется установить вертикальные арматурные прутки, чтобы обеспечить прочное соединение основы с будущим фундаментом. Прутки должны возвышаться над поверхностью подбетонки на 0,2 метра и более.
- Подушка из тощего бетона.Бетон заливают в готовую конструкцию с дренажным слоем из песка и щебня, опалубкой, гидроизоляцией и армированием. Смесь должна заполнить конструкцию до отметок, сделанных на опалубке. Залитый бетон обязательно трамбуют, удаляя лишний воздух из раствора. Поверхность выравнивают и разглаживают. Чтобы подбетонка набрала необходимую прочность, а не высохла под воздействием солнечных лучей, нужно защитить ее полиэтиленовой пленкой.

Подготовка под фундамент сборного типа
Сборный ленточный фундамент делают из бетонных, газобетонных и пенобетонных блоков. В зависимости от используемого материала выбирают тип основания под фундамент.
Под тяжелые блоки обустраивают основание из щебня, пропитанного битумом или тощим бетоном. Толщина слоя в этом случае определяется характеристиками грунта. На плотных грунтах подготовка может иметь высоту до 10 см. На почвах, склонных к пучению, рекомендуется обустраивать подготовку высотой не меньше 15 см, при этом защитный цементный слой должен быть не менее 3 см.
Для фундамента из пенобетонных и газобетонных блоков можно сделать основание из песка. Для этого площадку засыпают песок на высоту до 10 см, обильно смачивают его водой и тщательно уплотняют. Собирают опалубочную конструкцию на высоту подготовки и заливают ее слоем тощего бетона толщиной около 5 см.
Следует заметить, что песчаная подготовка менее прочная, чем бетонная подготовка под фундамент.
Приготовление тощего бетона своими руками
Для заливки подготовки рекомендуется использовать готовый бетон марки В 7,5. Однако не всегда имеется возможность приобрести готовый состав. В этом случае можно приготовить тощий бетон самостоятельно:
Тощий бетон
- При расчете приготовления 1 м3 раствора необходимо взять компоненты в следующих пропорциях: цемент — 160 кг, песок — 2200 кг, воды — около 75 литров.
- Приготовление тощего бетона из расчета на один мешок цемента требует такого количества материалов: цемент — 1 мешок (25 кг), песок — 344 кг, вода 10 литров.
Использование одного из перечисленных вариантов подготовки под фундамент обеспечивает прочность и устойчивость строения, а также позволяет фундаменту долгое время поддерживать нормальную эксплуатацию всей конструкции.
Бетонная подготовка под фундамент: как правильно сделать
Качественное основание гарантирует долговечность и прочность жилого строения.
Правильная подготовка фундамента обеспечит длительную службу конструкции, исключит протекание цемента в ходе заливки. Работы проводятся в соответствии с нормативными документами, в строгой последовательности.
Необходимость выполнения подбетонки
Участок, подготовленный под заливку цементного раствора, предусматривает упрочненное и выровненное основание. Бетонному слою отводится роль барьера, который может защитить подземный монолит от усадки, просачивания материалов в грунт. Подбетонка, уложенная под любой фундамент, будет способствовать:
- устранению протеканий цементной смеси;
- быстрому набору фундаментальной конструкцией объема, улучшению ее эксплуатационных показателей;
- нивелированию воздействия подвижных грунтов путем равномерного рассредоточения массы по площади изделия;
- ослаблению влияния вспучивающихся грунтов;
- созданию условия для монтажа армирующего каркаса.
Благодаря бетонной подготовке достигается ровность поверхности грунта, создаются условия для комфортных и быстрых работ.
Нормативы для организации подбетонки
Устройство бетонной подготовки под фундамент регламентируется нормативными документами. Строители руководствуются СНиП 52-01-2003, где указывается тип основного материала – щебень, профильная мембрана или тощий бетон. В документе также содержаться инструкции по расчету, изготовлению и эксплуатации оснований из цементного теста. Содержание нормативных правил сводится к нескольким ключевым положениям:
- использование состава марки М50 для изготовления тощего бетона;
- сооружение песчано-щебневой подушки перед заливкой смеси;
- обустройство подбетонки слоем 10 см;
- выдержка залитой массы на протяжении 28 суток;
- проектирование и устройство основы с учетом разновидности грунта, ближайших архитектурных объектов, нагрузки, сейсмичности и экологичности материалов;
- применение арматуры для каркаса (горячекатаной диаметром 3-80 мм, упрочненной диаметром 6-40 мм, холоднодеформированной диаметром 3-12 мм).

Рассчитывать нагрузку сооружения необходимо, если почва дает сжатие в холодное время года, здание будет размещено на склоне или в холмистой местности, а подошва фундамента расположена на поверхности с неустойчивым составом. Помимо основного сборника нормативов используются СП 50-101-2004 и СП 52-101-2003.
Рытье котлована – подготовительные мероприятия
Главная цель работ заключается в подготовке строительной площадки под будущий фундамент. На этом этапе проводится обработка грунта, чтобы он смог выдержать постройку и плотно прилегал к подошве конструкции. Задачи осуществляются последовательно:
- Выкапывается котлован по ширине строение.
- Дно очищается от мусора, камней и корневой системы растений.
- Поверхность дна уплотняется путем трамбования.
- Проводится увлажнение или осушение грунтов согласно виду последующих мероприятий.
Котлован необходимо обустраивать перед началом строительства подбетонки. В частном домостроительстве рытье целесообразно выполнять вручную.
В зависимости от нагрузки здания, подвижности грунта существуют две традиционных методики – укладка щебня и заливка бетонной смеси. Современные производители предлагают специальные мембраны, которыми удобно проводить устройство бетонной подготовки.
Применение щебня
Щебеночная подготовка под фундамент позволит сократить себестоимость строительных мероприятий и уменьшить расход цемента. Гравий и щебень укладывают, когда предусмотрено сооружение основания из монолитной плиты или на свайных ростверках. При организации подушки стоит учитывать некоторые нюансы:
- Щебеночный слой укладывают на толщину 10-20 см.
- Сыпучий среднефракционный материал уплотняют, а затем заливают битумом.
- Щебеночный тип конструкций актуален с целью максимального насыщения и уплотнения земли.
Укладка щебня не предоставит требуемой жесткости для подложки частного дома. Подобным способом подготавливается подбетонка, предназначенная под фундамент подсобных строений, технических сооружений.
Выполнение подушки из тощего бетона
Бетонная подготовка под фундамент – эталонный тип работ, создающий максимально прочное изделие. При этом земля не будет проседать, а здание окажется надежно зафиксированным. Перед началом мероприятий изготавливают цементное тесто.
Что такое тощий бетон?
Раствор, в котором содержится 6 % цемента прочностью В15, гравийные или щебневые наполнители, называется тощим бетоном. Состав замешивают из цемента марки М100. За счет минимального количества компонентов смесь быстро гидратируется, изготавливается и застывает. Рецептура тощего бетона предусматривает:
- использование 275 кг цемента, 590 кг песка, 1377 кг гравия и 165 л воды на 1 м2 смеси;
- засыпку в бетономешалку объемом 200 л 44 кг цемента, 94 кг песка, 220 кг гравия и 26 л воды;
- расход на мешок цемента массой 25 кг 54 кг песка, 125 кг гравия и 15 л воды.
Все компоненты тщательно отмериваются. Если у застройщика имеется бетономешалка, в нее заливается вода и засыпается цемент.
Песок и гравий вводятся постепенно, к ним в небольшом количестве добавляется вода. Жидкие пластификаторы так же смешиваются с водой и добавляются в конце замешивания. Время перемешивания состава не должно превышать 5 минут.
Строительство подбетонки из тощего бетонного теста
Подготовка под основание с использованием тощего бетона выполняется по следующему алгоритму:
- Проводятся расчеты несущей способности постройки с учетом типа почвы, УГВ.
- Делается разметка территории и монтируется опалубка на 30 см.
- Приготавливается раствор. Ингредиенты подбираются из расчета высоты подушки – 4-10 см.
- Выкапывается котлован и на 10 см засыпается щебнем. Материал обязательно утрамбовывается.
- Под верхний край опалубки заливается бетонное тесто из тощего материала.
- Подбетонка усиливается арматурой с сечением не менее 8 мм, утрамбовывается виброплитой. Прутья должны выступать на 20-30 см.
При выполнении строительства учитывайте, что за пределы основания нужно выступить на 10-15 см – так увеличивается размер подготовки и укрепляется строение.
Толщина бетонной подготовки будет определяться характеристиками грунта, нагрузкой на основание и площади дома. Параметр, указанный в СНиПе – 4-10 см.
Сооружение из профильных мембран
Профильные мембраны представляют собой пластины из полиэтилена, усиленные ребрами жесткости. Помимо подготовки фундамента изделия способны гидроизолировать цокольные помещения, удерживая давление почвенных вод на стены. Устройство подбетонки проводится последовательно:
- Поверхность котлована очищают от мусора.
- Обустраивают подушку из щебня размером до 13 мм, возвышая ее на 10 см. Так нейтрализуют капиллярное воздействие воды.
- Проводят заливку подложки бетонным тестом, которую после высыхания обрабатывают праймером или грунтовкой.
- На поверхность плиты наносят битумную мастику.
- Раскатывают профильную мембрану, располагая ее вниз выступами. При укладке геополотна выступы выводят наружу.
- Ленты мембраны укладывают внахлест, а затем проклеивают каждый шов бутил-каучуковой лентой, которая исключает перерасход цементной смеси.
На последнем этапе укладки материала герметизируют стыки самоклеющейся лентой или жидким герметиком.
Подбетонка для различных типов фундамента
В частном домостроительстве популярные монолитные и сборные ленточные основания. Подготовка из бетона – необходимое условие строительства каждого из фундаментов.
Подбетонка для основания-ленты
Работы выполняют последовательно, придерживаясь требований строительных нормативов:
- Делают разметку местности под ленточный монолит, выравнивают почву.
- Проводят засыпку щебнем на высоту 10 см, трамбуют. Уложенный материал заливают жидким битумом.
- Монтируют опалубку и проводят армирование. Сетку из прутьев диаметром 8 мм располагают согласно проекту.
- Заливают бетонную смесь по высоте опалубки и утрамбовывают виброплитой.
После того, как состав застынет, демонтируют опалубный каркас и проводят гидроизоляцию боковых поверхностей при помощи мастики.
Подготовка для сборного ленточного основания
Заливка подбетонки происходит с перерывами, а для изготовления фундамента закупают специальные блоки. Рабочий процесс можно выполнить пошагово:
- Устроить основание из песка, проливая и трамбуя каждый пласт. Слой материала делается не более 10 см.
- Поверх песчаной насыпи монтируют опалубку.
- По уровню секций заливают бетонное тесто.
Песчаная подушка актуальна только для хозпостроек. Бетонная подготовка строительной площадки под необходимый фундамент, выполненная согласно нормативным документам, обеспечивает экономию материалов. Качество черновых и разметочных мероприятий при этом сохраняется. Подбетонку не делают при формировании наливной стяжки пола на ровной плите. В остальных случаях подготовка нужна для увеличения эксплуатационного ресурса постройки.
Устройство бетонной подготовки под фундамент
Подготовка под монолитный фундаментРазница качества основания домов зависит не только от материалов, использованных для возведения, но и от того, как было подготовлено место, перед тем как началось строительство. Возводя дом, стоит принять решение, подходит ли бетонная подготовка под фундамент, как самая качественная и устойчивая, или для этой почвы лучше выбрать другую. Песчаная или щебневая подготовка менее надёжна, труднее в создании, но дешевле в стройматериалах и времени на укладку.
Для чего используют подготовку
Чаще всего бетонную подготовку используют под заливной фундамент или для повышения прочности и устойчивости основания дома.
Причины сделать подбетонку:
- Дополнительная гидроизоляция, которая замедляет поднятие влаги из грунта в фундамент.
- Ровная строительная площадка, убирает любые неровности, оставленные при разрытии котлована техникой или строителями, позволяет выровнять перепады до 10 см.
- Препятствует впитыванию в почву «бетонного молочка», из-за того, что бетонная заливка производится не на открытый грунт, а на твёрдое основание, основа при застывании имеет одинаковую плотность, что повышает её эксплуатационные качества.
- Облегчает монтирование арматуры, даёт возможность использовать фиксаторы, защищая арматуру основания от коррозии.
- Исключает искривление арматуры вследствие вдавливания в грунт под весом не застывшего бетона.
Какие бывают виды подготовок
Подготавливая площадку под монолитный или ленточный фундамент, можно выбрать разные материалы в зависимости от нужных характеристик, бюджета и трудности в установке своими силами. Главными причинами выбрать тот или иной вариант являются выносливость грунта, его влажность, планируется ли цоколь или подвальный этаж. Также важно, какой тип опоры будет использоваться, не заглублённый, малозаглублённый или заглублённый. Из каких материалов, и каким способом он будет возводиться, заливным или из готовых блоков, ленточным или плитным.
К сожалению, СНиП 52–01-2003 и СП 50–101-2004 не дает чётких рекомендаций, в каком случае и какую подготовку проводить, поэтому причиной для выбора является тип фундамента и используемые для него материалы.
Песчаная подбетонка ленточного фундаментаПесчаная подготовка
Самый простой и дешёвый способ выровнять грунт для строительства, это песчаная подготовка под основу, для лёгких деревянных домиков используется достаточно часто, но не подходит для домов с расчётным сроком службы более 10 лет. Она ненадёжна, постепенное смешение с грунтом и прорастания корнями растений вызывает проседание под весом здания, возможны перекосы и трещины полов и стен. Низкая влагоустойчивость требует дополнительной гидроизоляции, для предотвращения сырости в помещениях.
Бетонная подготовка
Используется «тощий» бетон с максимум 6% содержанием цемента, основным наполнителем которого выступает песок, иногда щебень или гравий. Заливают тонким слоем по всей площади будущего фундамента, толщина бетонной подготовки зависит от типа грунта, веса дома и уровня залегания грунтовых вод. В зависимости от этих трёх факторов толщина может быть от 4 до 10 см.
Подготовка мембранами из профиля
Новый способ подготовки фундамента, лёгкий в монтаже и менее дорогой, чем бетонный или щебневой. Несмотря на заверение производителей о прочности и аналогичной долговечности, пользуется меньшим спросом.
Если есть возможность, чаще выбирают проверенные подбетонки. Из-за дополнительных расходов на теплоизоляцию стоимость может доходить до цены стандартной подготовки.
Щебневая подготовка
Щебёночная подготовка под фундамент используется, если не предусмотрено армирование или неравномерное распределение веса. Щебень засыпают толщиной от 15 до 20 см, заливая его битумом до образования плёнки или полной пропитки слоя. Для тяжёлых домов является ненадёжной из-за неоднородности щебня, может привести к перекашиванию и трещинам в фундаменте и стенах.
В холодное время года щебёночную подготовку почти не используют из-за трудности создания нужной температуры для битумной заливки.
Котлован, усиленный щебнемПредварительные работы перед заливкой подбетонки
Строительство фундамента и подготовки для него начинают с инженерно-геологических работ, чтобы выяснить, как глубоко залегают грунтовые воды, и какое давление может вынести земля на месте будущего дома. Составляется план строительства и выбирается тип фундамента, монолитный или ленточный, заливной или сборного типа.
Прежде чем создавать бетонную подушку, надо произвести разметку территории для того, чтобы вырыть котлован. Он должен давать возможность сделать опалубку для заливки, поэтому с каждой стороны от будущей опоры делается отступ минимум 30 см.
Снимается плодородный слой грунта и переносится в другое место, где его можно будет использовать. В глубину яма под фундамент должна быть минимум на 20 см больше, чем планируемая высота опоры.
Если будет укладываться теплоизоляция, то глубину ямы увеличивают на ширину дополнительных слоёв.
Способ приготовления тощего бетона
Тощим бетон называют из-за очень маленького содержания цемента, что из-за хрупкости делает его бесполезным при полноценном строительстве, но идеальным для бетонных подготовок под фундамент. В зависимости от стойкости выбор предоставлен 2 классами бетонных смесей, это B7,5 и B15, последний сложнее в использовании из-за большого содержания керамзита.
Для получения кубометра готового раствора из В7,5 нужно:
- 160 кг цемента, это 6,4 мешков цемента весом по 25 кг;
- 2,2 т песка;
- 75 л воды.
Всё составляющие надо хорошо перемешать и залить на подготовленный участок.
При изготовлении B15 нужна специальная техника, чтобы получить однородную консистенцию готовой смеси.
Подбетонка для монолитной плиты
Схема монолитного основанияНа очищенное пространство высыпают 10 см щебня или песка и утрамбовывают с помощью вибрационной плиты. Это делается для отвода лишней влаги от основания, благодаря чему оно прослужит дольше.
На щебневую подушку монтируется опалубка, в которую будет заливаться бетонная масса из цемента B7,5. Опалубку делают такой высоты, чтобы залитый бетон образовал ровный верх, на который будет уложено основание дома. Она должна быть минимум 10 см и максимум 30 см высотой.
Часто при монтаже опалубки устройство бетонной подготовки под фундамент советуют делать с запасом площади на 10–30 см относительно фундамента. Это делается для того, чтобы уменьшить давление на грунт и оставить место под термоизоляцию и отделочные работы, которые предотвращают разрушение фундамента со стороны стен.
Заливают бетон вровень с верхом опалубки, выравнивают и иногда утрамбовывают с помощью виброплиты. Для лучшего сцепления с заливной фундаментной плитой в подбетонку устанавливают прутья 0,8 см в диаметре, выступающие на 10 см из подготовки, если основание планируется большое, то подбетонку придётся заливать по частям для того, чтобы вставить связующую арматуру.
Если покупается готовая бетонная плита, а не заливается, то прутья не устанавливают.
После этого слой тонкого бетона оставляют высохнуть в течение 7–21 дней в зависимости от погоды. Иногда для тяжёлых зданий проводится армирование подложки сеткой с арматурой 0,8 см в сечении. Кроме того, размер такой подложки должен быть минимум 15 см.
Если не были установлены связующие прутья в подложку, то на готовый настил советуют положить слоями гидроизоляцию, теплоизоляцию из ЭППС, а потом опять гидроизоляцию. После этого можно монтировать опалубку для заливания монолитной плиты основы.
Как заливают и утепляют бетонную подготовку можно увидеть на видео:
Подбетонка для ленточного основания
Бетонная подготовка под фундамент ленточного типа отличается от подготовки для плиты. Копают траншею, которая шире на 40 см, с каждой стороны от ленты фундамента. Выравнивают дно траншеи и укладывают гидроизоляцию. Монтируют опалубку высотой 20–30 см и заливают бетонную смесь.
Подготовка для ленточной опорыШирина ленты подбетонки должна быть больше основания на 15 см с каждой стороны. Если планируется использовать заливной ленточный фундамент, подбетонку усиливают прутьями для лучшего сцепления.
Когда заглублённая ленточная основа строится из готовых блоков, желательно использовать подготовку из утрамбованного вибрационной плитой щебня, пропитанного битумом. Иногда сверху кладут гидроизоляцию и заливают второй слой подбетонки для лучшей устойчивости к разрушениям.
При незаглубленном или малозаглубленном фундаменте на устойчивых грунтах, возможно, выравнивание песком или утрамбованным щебнем без битума. Такое основание из-за лёгкости здания не требует серьёзного укрепления.
Подготовка для столбчатого фундамента
Для свайного основания чаще используют песчаную подготовку из-за функций самого фундамента. Его устанавливают для лёгких домов и на стабильных почвах. Чаще всего он не требует дополнительного усиления. Если строящийся дом достаточно тяжёлый, то используется щебень, залитый битумом. Бетонную подложку используют крайне редко, из-за возможности купить небольшие бетонные плиты, которые надёжнее заливаемых.
Каким бы ни были фундамент и дом, в большинстве случаев бетонная подготовка позволит продлить срок службы и, потратившись на этапе строительства, предотвратить траты на более дорогостоящий ремонт основы.
Снип на бетонную подготовку под фундамент нормы и правила подбетонки
Бетонная подготовка под фундамент – требования СНиП и устройство подбетонки
Устойчивость фундаментов зависит от качества подготовки основания. Его выбор и устройство во многом определяется материалом подземных конструкций и грунтовыми условиями площадки застройки. Бетонная подготовка под фундамент считается наиболее надежной и дорогостоящей по сравнению с песчаными и щебеночными подушками. Чаще всего она выполняется под монолитными лентами и плитами с учетом требований соответствующих СНиП и СП.
Для чего нужна подбетонка
Прежде всего, подготовка участка под фундамент преследует цель упрочнения и выравнивания основания. Но бетонный слой является еще и барьером, защищающим будущий подземный монолит от потери цементного молочка, которое при бетонировании конструкции может просто просачиваться в землю или подстилающие слои щебня и песка. Подбетонка способствует удержанию влаги в растворной массе, что требуется для корректного прохождения процесса отверждения бетона. Если воды будет недостаточно, цемент не сможет полностью раскрыть свои свойства, а это приведет:
- к появлению трещин в бетонируемой конструкции;
- к недобору проектной прочности;
- к дальнейшим разрушениям фундамента в период эксплуатации.
Устройство в основании подземной части дома бетонной площадки в соответствии со СНиП способствует максимально равномерному распределению нагрузок, действующих со стороны грунта и наземной части строения. Подготовка под фундамент из бетона позволяет выровнять дно выемки и устойчиво расположить в опалубке арматурный каркас для монолитной ленты или плиты. Кроме того, подстилающий слой практически исключает появление усадок грунта вследствие воздействия больших или точечных нагрузок.
Еще одна причина, определяющая для чего нужна подбетонка, заключается в том, что по жесткому и ровному слою подготовки устройство фундамента в зимний период происходит проще.
Нормативные документы – СНиП и Свод Правил (СП)
Устройство любых конструкций при возведении гражданских и промышленных объектов подчиняется определенным требованиям, указанным в соответствующих СНиП и других стандартах государственного и отраслевого значения. Бетонная подготовка под фундамент выполняется, основываясь на:
В данных документах определяются мероприятия по проектированию и устройству оснований с учетом:
- типа грунта;
- окружающей застройки;
- действующих нагрузок;
- сейсмичности;
- экологических требований.
Толщина и ширина бетонной подготовки для фундамента рассчитывается, согласно СНиП, по несущей способности и возможным деформациям. В первом случае расчет требуется, если:
- предполагается наличие значительных сжимающих нагрузок;
- строение предполагается размещать вблизи откосов, на склоне или насыпи;
- под подошвой фундамента находятся слабые грунты.
Следует оговориться, что СНиП допускает не производить расчетов по несущей способности, если проектом будут предусмотрены мероприятия, исключающие смещение грунта по ранее названным причинам.
В качестве нагрузок на бетонную подготовку фундамента принимаются все передаваемые от сооружения длительные и кратковременные усилия, включая вес подземной части строения. Возможные сочетания указаны в СНиП.
Устройство подбетонки
Вне зависимости от типа грунта, на первом этапе работ по выполнению подготовки из тощего бетона под фундамент следует выровнять дно выемки. К сведению, для монолитной ленты достаточно будет выкопать траншею, а для плиты потребуется котлован. При определении глубины выемки учитывается толщина подбетонки и толщина песчано-гравийного слоя, укладываемого непосредственно на грунт.
Рыхлую почву необходимо утрамбовать, а на дно выемки подсыпать песок и щебень. Слои также трамбуются. Щебень, в этом случае, будет выполнять дренажную функцию. Далее на поверхность в качестве гидроизоляции настилаются полотна рубероида или пленки.
Бетонная подготовка под монолитную ленту или фундаментную плиту должна выступать по периметру за пределы подземной конструкции на 10-15см. С таким учетом делается щебеночно-песчаная подоснова и выполняется устройство опалубки под заливку основания. Высоту короба принимают, исходя из толщины подготовки под фундамент.
На следующем этапе замешивается тощий бетонный раствор, в состав которого входит малый объем цемента. В качестве наполнителя используется гравий и песок. После того, как бетон будет залит в опалубку, его потребуется утрамбовать, чтобы избавиться от пузырьков воздуха, и выровнять. В первые несколько дней поверхность бетонной подготовки накрывают полиэтиленовой пленкой, предотвращающей чрезмерное высыхание поверхности.
Важно знать, что основание под фундамент, не усиленное арматурой, имеет ограничения по размерам.
Армирование значительно укрепляет подбетонку и повышает надежность подземной части строения. Сетки вяжут посредством проволоки из стержней диаметром восемь миллиметров, а укладывают до заливки раствора. Для обеспечения надежного спряжения бетонной подготовки с фундаментом, в толщу основания вертикально устанавливают металлические прутья таким образом, чтобы они выступали над поверхностью бетона на 20-30см.
Оптимальной толщиной подбетонки без армирования считается 15-20см. При устройстве железобетонного основания под фундамент, размер подготовки может быть уменьшен до 6-10см. В СНиП указывается максимальное отклонение горизонтальной поверхности – не более 5мм на метр при устройстве монолитной ленты и не более 50мм для плиты шириной более 25 метров.
Бетонная подготовка под фундамент – требования СНиП и устройство подбетонки
Устойчивость фундаментов зависит от качества подготовки основания. Его выбор и устройство во многом определяется материалом подземных конструкций и грунтовыми условиями площадки застройки. Бетонная подготовка под фундамент считается наиболее надежной и дорогостоящей по сравнению с песчаными и щебеночными подушками. Чаще всего она выполняется под монолитными лентами и плитами с учетом требований соответствующих СНиП и СП.
Для чего нужна подбетонка
Прежде всего, подготовка участка под фундамент преследует цель упрочнения и выравнивания основания. Но бетонный слой является еще и барьером, защищающим будущий подземный монолит от потери цементного молочка, которое при бетонировании конструкции может просто просачиваться в землю или подстилающие слои щебня и песка. Подбетонка способствует удержанию влаги в растворной массе, что требуется для корректного прохождения процесса отверждения бетона. Если воды будет недостаточно, цемент не сможет полностью раскрыть свои свойства, а это приведет:
- к появлению трещин в бетонируемой конструкции;
- к недобору проектной прочности;
- к дальнейшим разрушениям фундамента в период эксплуатации.
Устройство в основании подземной части дома бетонной площадки в соответствии со СНиП способствует максимально равномерному распределению нагрузок, действующих со стороны грунта и наземной части строения. Подготовка под фундамент из бетона позволяет выровнять дно выемки и устойчиво расположить в опалубке арматурный каркас для монолитной ленты или плиты. Кроме того, подстилающий слой практически исключает появление усадок грунта вследствие воздействия больших или точечных нагрузок.
Еще одна причина, определяющая для чего нужна подбетонка, заключается в том, что по жесткому и ровному слою подготовки устройство фундамента в зимний период происходит проще.
Нормативные документы – СНиП и Свод Правил (СП)
Устройство любых конструкций при возведении гражданских и промышленных объектов подчиняется определенным требованиям, указанным в соответствующих СНиП и других стандартах государственного и отраслевого значения. Бетонная подготовка под фундамент выполняется, основываясь на:
В данных документах определяются мероприятия по проектированию и устройству оснований с учетом:
- типа грунта;
- окружающей застройки;
- действующих нагрузок;
- сейсмичности;
- экологических требований.
Толщина и ширина бетонной подготовки для фундамента рассчитывается, согласно СНиП, по несущей способности и возможным деформациям. В первом случае расчет требуется, если:
- предполагается наличие значительных сжимающих нагрузок;
- строение предполагается размещать вблизи откосов, на склоне или насыпи;
- под подошвой фундамента находятся слабые грунты.
Следует оговориться, что СНиП допускает не производить расчетов по несущей способности, если проектом будут предусмотрены мероприятия, исключающие смещение грунта по ранее названным причинам.
В качестве нагрузок на бетонную подготовку фундамента принимаются все передаваемые от сооружения длительные и кратковременные усилия, включая вес подземной части строения. Возможные сочетания указаны в СНиП.
Устройство подбетонки
Вне зависимости от типа грунта, на первом этапе работ по выполнению подготовки из тощего бетона под фундамент следует выровнять дно выемки. К сведению, для монолитной ленты достаточно будет выкопать траншею, а для плиты потребуется котлован. При определении глубины выемки учитывается толщина подбетонки и толщина песчано-гравийного слоя, укладываемого непосредственно на грунт.
Рыхлую почву необходимо утрамбовать, а на дно выемки подсыпать песок и щебень. Слои также трамбуются. Щебень, в этом случае, будет выполнять дренажную функцию. Далее на поверхность в качестве гидроизоляции настилаются полотна рубероида или пленки.
Бетонная подготовка под монолитную ленту или фундаментную плиту должна выступать по периметру за пределы подземной конструкции на 10-15см. С таким учетом делается щебеночно-песчаная подоснова и выполняется устройство опалубки под заливку основания. Высоту короба принимают, исходя из толщины подготовки под фундамент.
На следующем этапе замешивается тощий бетонный раствор, в состав которого входит малый объем цемента. В качестве наполнителя используется гравий и песок. После того, как бетон будет залит в опалубку, его потребуется утрамбовать, чтобы избавиться от пузырьков воздуха, и выровнять. В первые несколько дней поверхность бетонной подготовки накрывают полиэтиленовой пленкой, предотвращающей чрезмерное высыхание поверхности.
Важно знать, что основание под фундамент, не усиленное арматурой, имеет ограничения по размерам.
Армирование значительно укрепляет подбетонку и повышает надежность подземной части строения. Сетки вяжут посредством проволоки из стержней диаметром восемь миллиметров, а укладывают до заливки раствора. Для обеспечения надежного спряжения бетонной подготовки с фундаментом, в толщу основания вертикально устанавливают металлические прутья таким образом, чтобы они выступали над поверхностью бетона на 20-30см.
Оптимальной толщиной подбетонки без армирования считается 15-20см. При устройстве железобетонного основания под фундамент, размер подготовки может быть уменьшен до 6-10см. В СНиП указывается максимальное отклонение горизонтальной поверхности – не более 5мм на метр при устройстве монолитной ленты и не более 50мм для плиты шириной более 25 метров.
Для чего нужно устройство подбетонки — 2 вида подготовки под фундамент
Перед началом монтажа основы дома или другого строения выполняется комплекс подготовительных мероприятий. Устройство бетонной подготовки под фундамент — важный этап по созданию устойчивой и долговечной несущей конструкции. Такой элемент сооружения, как прослойка из монолитного раствора, покрывает котлован, служит амортизатором и распределителем нагрузок.
Что такое подбетонка и зачем нужна?
Определение и назначение
Бетонная подготовка под фундамент представляет собой работу по заливке прослойки из монолитного материала, что обеспечит экономичную и удобную постройку основного несущего сооружения. Устройство подбетонки имеет первоочередную задачу — упрочнение и выравнивание площадки для дальнейшего бетонирования. Как вариант, можно выполнить подушку из рулонного средства, песка, щебенки или же комбинированный вид сооружения из двух материалов. Но свойства этих средств не позволяют создать устойчивую конструкцию на слабых типах почвы — торфяной, сапропелевой, переувлажненной глины.
Нормативные документы, необходимые для устройства подбетонки: СНиП 52—01—2003, СП 50—101—2004. Толщина бетонной подготовки — около 100 мм. Ее главное назначение — создание надежной опоры фундамента строения при неблагоприятных факторах окружающей среды и эксплуатационных особенностях здания, например:
Слой данного основания не должен быть очень толстым.
- На слабой и подвижной почве.
- На территориях с элементами сложного естественного и искусственного рельефа (откосы, насыпи, склоны).
- С высокими сжимающимися нагрузками от постройки.
- В регионах с повышенной сейсмической активностью.
При строительстве объектов в зимний период устройство основания из тощего бетона упрощает монтаж несущей основы сооружения.
Функции сооружения
Бетонная подготовка выполняет ряд второстепенных, но не менее важных задач:
- Создание гидробарьера. Во время заливки бетона для фундамента жидкая смесь не будет просачиваться в землю, при этом влага удерживается в растворной массе.
- Формирование ровной поверхности. При таких условиях уменьшается расходование бетонной смеси.
- Защита от поверхностной влаги. Фундамент уязвим перед грунтовой водой, защитный слой повышает его сопротивляемость агрессивной среде.
- Перераспределение нагрузок. Бетонная подушка принимает на себя всю тяжесть строения и плавно распределяет ее на грунт.
- Создание улучшенных условий для монтажа армокаркаса. Укладывать элементы скелета проще по готовой бетонной подушке.
- Противостояние усадочным процессам. Строение надежно держится «на плаву», не разрушается от движения грунта.
- Увеличение прочностных и эксплуатационных показателей. Амортизирующая подушка улучшает свойства строения.
Разновидности
Подушка из песка
Устройство фундамента на таком материале оптимально распределяет воздействие грунта. Этот вариант подбетонки сооружают в середине весны или осени, когда грунт прекращает сезонное движение. При использовании этого вида подготовки низ несущей основы поднимается выше уровня нахождения почвенных вод, поэтому бетонная конструкция избегает разрушительного влияния грунтовой влаги. Такую разновидность фундаментной подушки применяют на почвах с повышенной влажностью. Мощность слоя устанавливается в пределах 15 см.
Для выполнения песчаной подложки нужен материал с такими характеристиками:
- Фракция 2—2,5 мм. Наиболее подходящий песок с низкой плотностью, способный хорошо пропускать влагу.
- Глиняные частицы, известковые, соляные отложения. Допускается незначительное присутствие.
- Частицы органики. Способствуют образованию ила, препятствующего водопропускным способностям подбетонки.
Сооружение подложки выполняется по такому алгоритму:
Для укладки подушки нужно вырыть котлован.
- Снимается почва под котлован.
- Дно траншеи засыпается подготовленным песком.
- Выполняется разравнивание материала по котловану, равномерность засыпки контролируется уровнем.
- Проводится трамбование подушки.
Щебневая подбетонка
Для укладки материала готовится котлован, глубиной 200—600 мм. Если на участке высоко находятся грунтовые воды, дно укладывается пленочным материалом. Укладку начинают из засыпки крупной щебенки, затем мелкой. Такая последовательность обеспечит конструкцию фундамента постоянным дренажем. Это увеличит прочностные и жесткостные качества подложки. Конструкцию засыпают песком, который обеспечит равномерную передачу тяжести строения на уложенные слои. Подбетонка такого типа ненадежная, она не обладает достаточным уровнем жесткости, поэтому многоэтажные сооружения так не устраивают. Малогабаритные и хозяйственные постройки на такой подсыпке строить можно.
Механизм обустройства фундаментной подготовки включает следующие этапы:
Каменная подушка должна быть выложена на дно котлована.
- Готовится котлован и укладывается щебенка.
- Выполняется выравнивание материала лопатами.
- Трамбуется щебень по площади всей основы.
- Выполняется гидробарьер из битумной смеси или пленочно-рулонным материалом.
Такие мероприятия можно выполнить собственными силами. Если привлекаются наемные работники, требуемую оплату за выполненные объемы работ можно сравнить с доступными сведениями в ЕНиР.
Технология устройства бетонной подготовки
Самый дорогой вид подложки под фундамент, но он идеально подходит для ленточной или плитной несущей основы дома. Бетонку можно оснащать дополнительно металлическим армировочным каркасом, который обеспечивает большую прочность подложки. Перед монтажом конструкции следует ознакомиться с технологией, включающей следующие условия и этапы:
Подложку можно сделать и без армопояса, но тогда она должна быть немного толще.
- Приготовление «тощего» бетона. Используется раствор марок от М50 до М100.
- Толщина сооружения. При отсутствии высокого нахождения почвенных вод составляет 100 мм.
- Укладка вспомогательного слоя. Укладывается на дно ямы небольшой слой щебенки или песка.
- Мощность подготовки без армопояса. Если арматура не устанавливается, то бетонная подложка должна иметь толщину в 150—200 мм.
- Дополнительное армирование. Используются металлические пруты диаметром 0,8 см. Арматурины монтируются в вертикальном положении с запасом высоты над поверхностью бетонной подготовки в 0,25—0,30 м.
Перед монтажом котлована определяется уровень нахождения поверхностных вод на участке под застройкой. Это будет «отправной точкой» при сооружении подбетонки — она должна находиться выше. Выполняется рытье траншеи, дно которой потом трамбуется и выравнивается. Для придания конструкции улучшенных качеств дно засыпается тонким слоем песка и щебенки, которые разравниваются по котловану. Желательно выполнить пленочный или рулонный гидробарьер для защиты монолита. Осторожно в толщу основания устанавливают секции арматуры. Рекомендуется зафиксировать по уровню маяки, по ним будет легко контролировать укладку раствора. Далее выполняют заливку подготовленного бетона. После его созревания поверхность бетонной подготовки обрабатывают битумной мастикой.
Снип на бетонную подготовку под фундамент нормы и правила подбетонки
Надежность и устойчивость фундамента во многом зависят от качества подготовки под него. Не случайно этому этапу строительства посвящены специальные разделы строительных норм и сводов правил, исполнять которые требуется неукоснительно. Это:
- СНиП 3.02.01-87 «Земляные сооружения. Основания и фундаменты».
- СНиП 2.02.01-83 «Основания зданий и сооружений».
- СП 63.13330.2012 «Бетонные и железобетонные конструкции. Основные положения. Актуализированная редакция СНиП 52-01-2003».
- СП 50-101-2004 «Проектирование и устройство оснований и фундаментов зданий и сооружений».
В зависимости от планируемой нагрузки на основу, качества грунта, сложности ландшафта нормативами разрешается делать под фундамент песчаные и щебеночные подушки. Однако наиболее эффективным считается вариант с устройством бетонной подготовки.
Подбетонка для фундамента
Наименование данного этапа производства строительных работ говорит само за себя. Прямым и единственным назначением подбетонки является создание нормальных условий для правильного сооружения основания. Сюда входит:
- формирование строго горизонтальной поверхности;
- защита основной конструкции от потерь цементного молочка в грунт;
- нивелирование возможных подвижек почвы;
- обеспечение условий для удобной установки опалубки и арматурного каркаса с созданием защитного слоя.
Бетонное основание полезно устраивать практически под любые виды фундаментов из различных материалов. Но чтобы принять правильное решение в отношении типа основы, познакомимся с существующими вариациями.
Виды подготовки
Подготовка под основание несет не только функциональную задачу, но также значительно облегчает процесс возведения основной конструкции. Кроме того, для любого застройщика немаловажное значение имеет финансовая сторона вопроса. Требования СНиП не ограничивают выбор жесткими рамками. Поэтому к каждому случаю следует подходить индивидуально, подбирать наиболее оптимальное решение.
Из тощего бетона
Тощей называют бетонную смесь с малым содержанием цемента. Его количество в общей массе не превышает 6%. Тощие растворы часто используют для выравнивания и уплотнения основания под плитные фундаменты, а также столбчатого и свайного типа с небольшими нагрузками.
Щебеночная
Щебеночная подготовка выполняется по выровненному и утрамбованному песком грунту. Ее толщина обычно бывает размером 15-20 см. Щебень лучше использовать высокопрочный. Отсыпка делается слоями с тщательным уплотнением каждого. По окончании выравнивания поверхностного пласта, его проливают горячим битумом. Эта процедура поможет защитить основание от вредного воздействия грунтовой воды. Щебеночную подушку целесообразно делать под основу из монолитной плиты. Поскольку для других типов она имеет недостаточную жесткость.
Бетонная
Несмотря на дешевизну щебеночной подготовки или использования тощих составов, большинство застройщиков выбирают тяжелый бетон. Особенно когда строится ответственное сооружение. О данном типе основания поговорим подробнее.
Организация бетонной подготовки под фундамент
Стоимость обустройства бетонной подготовки выше прочих, но результат стоит того. Во всяком случае можно быть уверенным в прочности и долговечности сооружения. Порядок выполнения работ под разные типы фундаментов отличается только видом выполнения земляных работ. Так под ленточные основания необходимо отработать траншею. Для основы из монолитной плиты нужен котлован. Под столбы роют ямы, а для свай бурят скважины. Глубина выемок во многом зависит от уровня грунтовых вод на конкретном участке.
- Сначала надо выполнить очистку территории, при необходимости спланировать участок и сделать разметку.
- На первом этапе работ выполняется выборка грунта.
- Независимо от типа почвы, сначала необходимо выровнять днище траншеи или котлована и утрамбовать его.
- СНиП на устройство бетонной подготовки под фундамент предусматривает укладывать бетон на подушку из песка и щебня. Для засыпки лучше брать песок крупной фракции. Этот слой делают толщиной 100-150 мм с проливкой водой и уплотнением.
- Следующий пласт – щебень или гравий фракции 20-40 мм, толщиной 200-250 мм. Слой должен получиться ровным и утрамбованным. Работу удобно выполнять при помощи виброплиты или ручной трамбовки. Слой щебеня в этом случае выполняет также роль дренажа.
- Чтобы подбетонка для монолитной конструкции или из сборного железобетона имела четко очерченную конфигурацию, а бетонная смесь не растекалась, необходимо установить опалубку. В зависимости от материала основной конструкции определяется высота опалубки. Для монолита она может быть общей с подготовкой, а под кирпич или блоки достаточно толщины подготовки.
- Щебеночную подушку нужно укрыть полотном гидроизоляционного материала.
- Если необходимо придать бетонной подготовке большую прочность, то перед заливкой раствора, в заранее подготовленный котлован надо уложить арматурные стержни или сетку. Не забудем сделать анкерные выпуски длиной не менее 200 мм даже при отсутствии армирования. Это необходимо для того, чтобы увязать каркас фундамента с подготовкой во избежание его возможного смещения. В случае устройства подбетонки без арматуры анкера удобнее ставить после формовки.
- Заливку бетонного состава выполняем с послойным уплотнением с помощью глубинного вибратора, либо пользуясь подручными средствами. Верхнюю поверхность тщательно выравниваем. Горизонтальность проверяем строительным или лазерным уровнем. Согласно СНиП допускается отклонение по горизонтали не более 5 мм на один метр плоскости.
Бетонную смесь следует готовить в таком количестве, чтобы его хватило полностью на весь объем. Иначе можно допустить расслоение бетона при его твердении, что негативно скажется на прочности и надежности всей конструкции.
При строительстве фундамента толщина оптимальной считается высота неармированной подготовки бетона в 150-200 мм. При использовании арматуры нормативы допускают снижение этого показателя до 60-100 мм.
Подготовка из бетона, что это «подбетонка»
Бетонная подготовка является промежуточным слоем между уплотненным основанием и монолитным фундаментом (плитным или ленточным).
Требования к устройству достаточной бетонной подготовки зависят от монтируемых сверху конструкций: это могут быть фундаменты домов или стены и днища резервуаров. Именно этим обусловлена толщина слоя, использование различных классов бетона по прочности и марок по водонепроницаемости.
Для чего нужна «подбетонка»
Подготовка под фундамент производственных сооружений предназначенная для защиты конструкций от грунтовых вод и для дополнительного распределения давления на грунт. Работы такого уровня требуют предварительных расчетов и соблюдения технологий производства строго в соответствии со строительными нормами и сводами правил, составляются акты на скрытые работы.
Устройство под основание индивидуального жилого дома бетонной подготовки может выполняться с применением «тощего» бетона с малым классом, что уже свидетельствует о не столь жестких требованиях к прочности слоя.
Подбетонка в этом случае выполняет следующие функции:
- предотвращает протечки раствора в грунт, что обеспечивает требуемые прочностные качества бетона в монолитном железобетонном фундаменте;
- выравнивает площадку и обеспечивает удобство монтажа арматурного каркаса и монтажа монолитного фундамента;
- в зависимости от прочности бетона является дополнительным «амортизатором» при незначительных деформациях грунта, тем самым защищает конструкцию основания.
Устройство
Любое строительство начинаются с подготовки площадки:
- план строения выносят на участок с помощью измерительной рулетки, шнура и колышков;
- убирают верхний почвенный слой;
- в зависимости от типа фундамента (ленточный, столбчатый или плитный), глубины его заложения и типа грунта выкапывают траншеи или котлован – указанные параметры определяются расчетом;
- дно траншеи выравнивают;
- подсыпку применяют по типу грунта (щебень, песок), обязательно тщательно утрамбовывают.
Бетонную подготовку рекомендуется устраивать по подсыпке (щебень, шлак, песок, песчано-гравийная смесь), которую подбирают по типу грунта и, в обязательном порядке, тщательно утрамбовывают послойно. Допускается выполнять и по утрамбованному грунтовому основанию. Основное требование в последнем случае – исключить пучение грунтов при замораживании. Следует критически отнестись к экономии на подсыпке: в процессе эксплуатации строений нельзя исключать порывы трубопроводов, многолетние и непредвиденные колебания грунтовых вод, которые вызовут намокание, промерзание и пучение грунта в зимнее время.
Надежные и прочные скальные или гравелистые и крупно-песчаные основания не требуют устройства дополнительной подушки, но может понадобиться их уплотнение.
Подсыпка выполняется:
- при высоком уровне грунтовых вод – из толстого слоя уплотненного щебня: он используется как дренаж; выравнивают щебень песчано-гравийной смесью;
- на пучинистых грунтах – из толстого утрамбованного слоя крупного и среднего песка;
- на глинистых и непучинистых грунтах – из уплотненного песка толщиной 10 см в качестве выравнивающего слоя.
Порядок выполнения работ
Устройство бетонного основания под фундамент одно- или двухэтажного жилого дома и хозяйственных построек включает опалубочные и бетонные работы.
Опалубку из досок или обрезков фанеры высотой, соответствующей толщине подготовки, устанавливают по контуру проектируемой бетонной подушки, которая может быть в плане на 10-15 см шире конструкции самого фундамента. Со стороны траншеи рекомендуется обернуть в рубероид или полиэтилен. Доски фиксируют забивая колышки с наружной стороны. Назначение опалубки – сохранить бетону необходимую форму, пока он набирает прочность.
Для бетонирования используют смесь с низким содержанием цемента. Допускается применять бетон класса В7,5-10 по прочности. Учитывая, что толщина бетонной подготовки составляет не более 10 см, заливку бетона в опалубку выполняют одним слоем, который уплотняют штыкованием или вибротрамбовкой.
Конструкцию накрывают полиэтиленом и увлажняют водой.
Опалубку демонтируют приблизительно через 7 дней, после набора бетоном распалубочной прочности. Марочная прочность бетона устанавливается по прошествии 28 суток.
Бетонная подготовка в качестве фундаментов
В фундаментах мелкого заложения бетонная подготовка, фактически, может является фундаментом стен одно- или двухэтажных домов. Выполняется она по песчаной подушке (подсыпке), размеры сечения которой (толщина – hn и ширина – b) рассчитывается в зависимости от типа грунта. Именно объемная песчаная подушка обеспечивает устойчивость строения. Бетонная подготовка выполняется толщиной 20 см, но размеры сечения принимаются по расчету в зависимости от нагрузок. Но, если для непучинистых грунтов для подушки достаточно щебня с заливкой цементным раствором, то для среднепучинистых грунтов необходимо армирование стены на уровне цоколя.
Бетонная подготовка перед заливкой фундамента
По технологии строительства перед монтажом монолитного фундамента необходимо обустройство подушки – слоёной подложки, частью которой является бетон. Такая подготовка обеспечивает соблюдение расчётных характеристик конструкции, а также облегчает процесс заливки раствора. Расскажем подробно, как сделать хорошую подушку под бетонирование.
Для чего нужно бетонное основание под фундамент
Подушка требуется именно для монолитного фундамента, для сборного её не делают. В чём смысл:
- Во-первых, слой бетона образует непроницаемое основание, сквозь которое рабочий бетон не будет утекать в грунт, из него не будет уходить молоко. Соответственно, после затвердевания смеси камень наберет проектную прочность и не потеряет в качестве.
- Во-вторых, монтаж каркаса из арматуры удобно устанавливать именно на ровное основание, коим выступает подложка из бетона. Только так можно получить идеально ровный фундамент с правильным распределением внутренних нагрузок.
- В-третьих, подушка всегда скомбинирована с песком и/или щебнем, которые распределяют давление почвы, стабилизируя ее для каждого квадратного сантиметра фундаментного основания. Слой также является дренажом для грунтовых вод, которые минуют бетонную конструкцию через песок и щебень.
- Чисто теоритически, обойтись без подушки можно, но в таком случае придётся продумывать фундамент более тщательно, что неизбежно приведёт к увеличению стоимости монтажных работ и объёма материалов. На практике на устройстве бетонной подготовки экономят только те, кто возводит гараж, сарай или другую лёгкую постройку.
Подкладочная подушка необходима для ленточных и плитных фундаментных конструкций, которые опираются на грунт ниже или выше уровня его промерзания.
Состав подготовки
Всего различают 3 вида подготовки под монолит:
- щебёночная;
- мембранная;
- бетонная.
Щебёночная подсыпка неэффективна с точки зрения обустройства и несущей способности. Она представляет собой насыпной и тщательно утрамбованный слой гравия (щебня) толщиной около 20 см. Чтобы обеспечить его герметичность, камни поливают расплавленным битумом. В таком случае получается большой расход полимера, а нужной герметичности достичь не удаётся.
Другая разновидность такой подготовки – с утеплителем (пеноплекс) толщиной 50 мм, который укладывают на 10-сантиметровый слой щебня. Поверх вспененных плит укладывают гидроизоляцию (рубероид или битум), затем монтируют сам фундамент.
Современные производители предлагают ещё один способ обложить грунт – использовать полимерные мембраны. Их укладка чистая, быстрая, при плотных грунтах вполне эффективная.
Самая простая и эффективная в монтаже бетонный вариант подготовки под фундамент. Она состоит из трёх слоев:
- Базовый слой – песок. Он воспринимает основную нагрузку от грунтов и по максимуму её перераспределяет, дренирует воду. Толщина обычно такая же, как толщина бетонной подготовки или немного больше – до 20 см.
- Слой геотекстиля отделит песочную насыпь от верхних пластов.
- Далее укладывается слой щебёнки, которая играет роль основного отводящего дренажа. Толщина насыпи – 10-15 см.
- Гидроизоляция жидким битумом или рубероидными листами.
- Финишный слой – тощий бетон под конструкционную заливку.
Регламент
К обустройству фундаментной подушки подходят так же ответственно, как к остальным этапам строительно-монтажных работ. Рассматриваемый процесс описан в СНиП 52-01-2003 «Бетонные и железобетонные конструкции», а также СП 50-101-2004 и СП 52-101-2003. В документах прописаны основные моменты работы:
- тип щебня, толщина слоя;
- марка используемого бетона не ниже М50, оптимально применить М50 или М100 в зависимости от размера подушки;
- приведён порядок расчета толщины подбетонки и самой подложки в зависимости от типа грунта, массы здания;
- размер арматуры для каркаса, тип прутов, необходимость в них. Да-да, оказывается, подушка может быть армированной!
Этапы работ
Теперь о том, как устроить бетонную подготовку под фундамент. Эти работы можно осуществить самостоятельно, придерживаясь чёткого алгоритма действий:
- Первый этап – рытьё котлована. Его нижняя отметка должна быть обозначена в проекте. Если в чертежах отражена только глубина подошвы фундамента, прибавляем к ней 20-30 см. Лишний грунт вынимаем, основание утрамбовываем виброплитой.
- Далее при необходимости проводим дренажные работы: откачка грунтовых вод, укладка перфорированных труб с выводом в колодцы.
- Насыпаем песок толщиной 10-15 см, утрамбовываем.
- Далее желательно выстелить слой геотекстиля. Он предотвратит смешивание песка и щебня. Это идеальный вариант. Однако, материал есть не всегда, поэтому в частном домостроении можно обойтись без прослойки.
- Щебёночный слой 10-15 см укладываем на песок или геотекстиль и уплотняем.
- Далее на камни укладываем гидроизоляцию – 1-2 слоя рубероида.
- Для подушки необходима установка опалубки.
Теперь можно заняться подготовкой бетона. Для подложки под фундамент понадобится слой толщиной 5-10 см согласно расчету. Для этих целей подойдет тощий бетон, содержание цемента в котором не превышает 6-10%. В раствор добавляем бетон, песок, делают замес.
Чтобы приготовить бетон марки М100, ингредиенты следует взять в таких пропорциях:
| Марка цемента | Цемент, частей | Песок, частей | Щебень, частей |
|---|---|---|---|
|
М400 |
10 |
41 |
61 |
|
М500 |
10 |
53 |
71 |
Воду добавляем до получения рабочей консистенции.
Если по расчету толщина подушки значительная, имеет смысл укладки арматурного каркаса из прутков диаметром 8 и более мм, точные параметры можно определить расчётом.
Теперь можно приступать к заливке бетона. Раствор укладываем и уплотняем вибраторами погружного типа, допускается использование плитного уплотнителя.
Подготовленная подложка набирает проектную прочность через 28 дней, но к монтажу фундамента можно приступать уже через 7-14 дней, когда камень наберет минимум 70% прочности.
Как правило, подушка располагается под поверхностью земли, если речь о строительстве фундамента. Подготовка также может служить основанием для отмостки у цоколя, аналогичным способом устраиваются площадки под навесами, полы в ангарах. Правда, вместо тощих бетонов в этих случаях используют растворы более высоких марок, в остальном технология остается прежней.
Бетонная подготовка под фундамент: функции, толщина, технология
Возведение любого здания, промышленного, коммерческого или жилого назначения, любых бытовых построек подразумевает в обязательном порядке закладку фундамента. Он еще должен хорошенько постоять, осесть перед тем, как приступить в выкладке стен и прочим строительным мероприятиям. Так что между начальным этапом и другими работами проходит довольно продолжительное время.
На то, сколько времени понадобится, как будет вести себя фундамент при эксплуатации дома, будет ли оседание постройки, влияет грунт. Почвы бывают неоднородными, водянистыми, часто сжимаются, проваливаются под столь серьезными нагрузками. Именно для равномерного распределения физического давления сверху была придумана подготовка под фундамент. Песок, бетон, щебенка, гравийная подушка также призваны сократить проседание здания и другие деформации по естественным причинам.
Когда требуется бетонная подготовка
Подбетонка – это прослойка из тощего цемента, прокладываемая между слоем гравия или щебня и телом фундамента. Как правило, толщина подушки не превышает 1 дм.
Благодаря ей здание надежно опирается на стойкую основу. Этого больше всего не хватает в таких ситуациях:
- рыхлых почвах;
- существовании сейсмоопасности;
- непосредственной близости склонов, откосов и насыпей;
- высокой сжимающей нагрузке от здания.
Помимо базового назначения – прочной опоры строения – фундаментная подготовка облегчает многие этапы процесса:
- Монтаж сборных конструкций на выровненной поверхности происходит удобнее, и результаты получаются точными.
- Бетон высокой марки расходуется более экономично, когда выкладывается на ровную уплотненную основу из дешевого материала.
- На бетоне проще с максимальной точностью установить каркас из арматуры для изготовления монолитного фундамента. Щебневая подушка не даст столь точного результата.
- Создается специальное покрытие, препятствующее проникновению влаги.
- Предохранение бетона от потери марки вследствие утечки цементного молока, полноценная гидратация вяжущих зерен.
Назначение подготовки под фундамент
Постройки масштабных размеров, массивные сооружения требуют подготовки под фундамент. Этот этап устройства основной конструкции здания выполняется в следующих целях:
- Выравнивание – максимально ровняет дно траншеи. Подоснова необходима для плитных и сборных фундаментов. Если предполагается закладывать ленточную мелкозаглубленную основу под невысокую постройку, то роль подушки будет играть гравий или уплотненный песок.
- Дренаж – отведение осадков в сторону и препятствие поднятию влаги из глубинных слоев.
- Защита от сдвигов – сезонное движение почв. Надежность основанию способен обеспечить хороший слой гравия или песка, что стабилизирует слабые и пучинистые грунты.
- Предохранение от морозного пучения – во время холодов земля промерзает, мороз доходит и до грунтовых вод, они переходят в твердое состояние, увеличиваясь в размерах. Расширяющаяся вода выталкивает фундамент из земли, а подбетонка успешно препятствует этому.
- Во избежание усадки постройки – прочная опора под объектом не даст зданию осесть вследствие природных и иных причин.
- Достижение стабильности здания – предотвращает негативные последствия подземных толчков, целесообразно в сейсмологически нестабильных районах.
Что касается морозного пучения, грунт с этим явлением не справится, здесь нужна более плотная подоснова. Промерзание глинистых грунтов зимой неравномерное, их объемы порой увеличиваются до 9%. К тому же весь холодный сезон глина понемногу вытягивает влагу из нижних горизонтов. Тогда подъем почвы будет сильно заметен, а масштабы деформаций превысят территорию застройки и дойдут до дороги, железнодорожного полотна.
Какая бетонная подготовка под фундамент лучше
Под монолит или блочный фундамент подушку устраивают одним из двух способов:
- Заливка 10-сантиметрового слоя бетона низких марок М50–М100.
- Выкладка щебня, заливка жидким битумом.
Чаще всего подбетонка отличается от других аналогичных подготовок тем, что она является уширением фундамента. Растягивание площади несущей поверхности необходимо, если рассчитанной ширины стенки фундамента не хватает для восприятия веса от будущего дома. Расширенное основание выдержит гораздо больший вес, прослужит надежной опорой. Толщина подбетонки в таком случае должна быть минимум 300 мм, но не больше 400 мм.
Согласно строительным нормативам, во время изготовления бетонной подушки должны быть учтены и выполнены следующие моменты:
- тощий бетон готовится из марки М50;
- толщина подушки равна 10 см;
- смесь заливают на песочно-щебневую подушку;
- залитой массе нужно расстояться в течение 28 суток;
- при составлении проекта и непосредственном устройстве основы под фундамент необходимо учесть вид грунта, нагрузку от объекта, расположение ближайших построек, уровень сейсмической угрозы и степень экологичности материалов;
- для каркаса применяется арматура холоднодеформированного типа (d=3-12мм), упрочненная 6–40 мм или горячекатаная (d=3-80 мм).
Расчет нагрузки является обязательным мероприятием в случае сжатия почв во время зимних морозов, размещения дома на холме или склоне, расположения подошвы на неустойчивой поверхности.
Технология устройства бетонной подготовки под фундамент
Данная технология нечасто применяется в рядовом жилом строительстве, так как мероприятия достаточно трудоемкие и обходятся дорого. Но именно она считается наиболее прочной среди подоснов из других составов. Бетонная подготовка устраивается по такому же принципу, что и фундамент здания, только слой будет в несколько раз тоньше.
Заливка подушки состоит из следующих этапов:
- Выемка грунта.
- Укладка и трамбовка песчаного слоя.
- Устройство гидроизоляции.
- Заливка тонкого слоя цемента.
- Строительство опалубки.
- Выкладка горизонтального армирующего слоя.
- Заливка бетонной подушки.
- Штыкование.
- Высыхание.
Придерживаясь именно такого порядка работ, можно гарантировать устойчивость здания к землетрясениям, подмывам грунта, промерзания почв, сползания и оседания основы. С такой подготовкой значительно уменьшается вероятность возникновения трещин в фундаменте, разрушения дома и провалов. Подбетонка удерживает влагу в еще не застывшем растворе. Если вода будет просачиваться в грунт, то корректно процесс затвердевания вряд ли пройдет, а свойства бетона не будут раскрыты полностью.
Подготовительные мероприятия
На данном этапе важно сформировать хорошую стройплощадку для фундамента. Необходимо должным образом обработать грунт для плотного прилегания к подошве конструкции, ведь на него возлагается задача держать всю конструкцию.
Последовательность действий:
- Рытье котлована по ширине строения.
- Очистка дна от камней, мусора и корней растений.
- Трамбовка поверхности для уплотнения.
- В зависимости от мероприятий, проводимых далее, почвы увлажняются или осушаются.
Подготовка котлована или траншеи
Котлован обустраивается предварительно, до заливки подбетонки. Рытье проходит вручную, если идет строительство частного дома. Параметры котлована:
- Что касается форм: для столбчатого фундамента потребуются скважины или шурфы, для ленточного траншея, а прямоугольный котлован подойдет для плиточной основы.
- Глубину выбирают по уровню промерзания грунта (на 30–40 см ниже отметки) и высоты поднятия грунтовых вод (нельзя приближаться ближе, чем на 0,5 м).
- По ширине и длине котлован должен превышать габариты на 15–20 см с каждой стороны.
Создание подушки из песка или щебня
Подготовку из песка используют довольно часто, в основном для ленточных фундаментов. При укладке важно учитывать утрамбовку песка, так что его уровень должен быть больше на 15%. Лучше брать песок крупной фракции: речной или карьерный.
У песчаной подушки под фундамент множество преимуществ:
- доступный материал, безграничные запасы песка есть практически во всех регионах;
- песок отлично трамбуется;
- он впитывает грунтовые воды и отводит дожди от фундамента, препятствуя его подмыванию;
- песок прекрасно амортизирует при морозном пучении;
- песчаная подушка препятствует проникновению холода, удерживает тепло;
- экономия при создании базового слоя;
- равномерно распределяет нагрузки;
- позволяет выровнять поверхность;
- работы настолько простые, что можно обойтись своими силами;
- плотная и прочная подушка.
Слой щебенки под фундаментом станет более прочной альтернативой песку. Известняковый щебень здесь не подойдет, лучше брать гранитный или гравийный. В большинстве случаев подоснову засыпают гравием, он дешевле.
Щебеночная подушка отличается от песчаной повышенной стоимостью, меньшей способностью впитывать влагу, большей прочностью. Такая подоснова выдержит и двух и трехэтажное строение. На рынке сегодня можно найти и морозостойкие разновидности щебня.
Сооружение из профильных мембран
Полимерные мембраны, не так давно появившиеся на строительном рынке, применяются в работах данного типа как средство гидроизоляции. Фибра защищает здание от поднятия влаги из почвы. Профиль с шипами в то же время укрепляет грунт, а это принципиально новое свойство таких материалов.
Производители отмечают полезные свойства геомембран:
- сокращают вероятность образования и число трещин при усадке;
- перераспределяют усилия при передаче нагрузки основанию;
- вентилируют пустоты между изоляцией и бетоном;
- вода гарантированно не просочится из-за сечения определенной формы;
- отличаются долговечностью и прочностью;
- способны выдержать слишком высокие и слишком низкие температуры.
Фибра укладывается на слой геотекстиля на уже сформированную песчано-щебеночную. подготовку, перед тем, как будет заливаться бетон.
Безарматурная подготовка и с армированием
Подготовка фундамента при помощи бетона – это довольно не дорогой и не энергозатратный способ. Нет нужды обзаводиться специальной техникой, платить рабочим за лишний труд, не требуются химические реагенты или другие приспособления. К тому же весомым аргументом становится минимум времени на работу.
Бетонная подушка формируется либо при помощи армирования, либо вообще без арматуры.
Армированная подготовка
Обеспечит безопасность и устойчивость здания к подмыванию грунтовыми водами. Здесь берется бетон марки М50 и выше, толщина пласта не более 10 см. Армирование подушки под фундамент в разы укрепит постройку.
Подушка под фундамент без арматуры
Здесь потребуются наименьшие затраты, правда, надежностью такая конструкция не сможет похвастаться. Закрепляется фундамент так называемым тощим цементом или щебнем. Небольшой слой толщиной в 20 см укладывают, тщательно уплотняя и заливая битумной смолой.
Безарматурная подготовка не выдержит капитальное жилое здание. Ее используют для постройки технических помещений, вспомогательных и подсобных небольших домов.
Приготовление тощего бетона своими руками
Тощий бетон – это так называемый облегченный вариант материала, где содержится всего лишь 6% цемента, а вдобавок вводятся наполнители из щебня или гравия. Наименьшее число компонентов гарантирует моментальное схватывание, изготовление и застывание состава.
Изготовление тощего бетона своими руками потребует немного усилий. На 275 кг цемента нужно 590 кг песка и 165 л воды. Этим количеством удастся залить 1 м² основания.
Песок и гравий в бетономешалку с цементом и водой вводят постепенно, иногда подливают воду. По итогам замеса вводят жидкие пластификаторы, а время перемешивания состава не должно превышать 5 минут.
Бетонная подготовка (заливка)
Общая картина по подготовке бетонной подушки для фундамента будет выглядеть так:
- Формирование дна траншеи или котлована.
- Засыпка крупнофракционной или средней щебенки. Выравнивание и трамбовка слоя, в итоге он должен получиться толщиной в 10–15 см.
- Далее подсыпается крупный песок, увлажняется и трамбуется.
- Монтаж арматуры и вертикальных выпусков для связи с основанием.
- Заливка дециметрового цементного слоя, выравнивание, уплотнение, выпуск воздуха из толщи материала.
- Снятие щитов опалубки спустя неделю или меньше.
Основу любого здания желательно укрепить при помощи подушки из бетона или любой другой подготовки под фундамент. Ее вид необходимо выбрать исходя из многих особенностей конструкции, почвы и прочих критериев. Нельзя пренебрегать строительными нормами, прописанными в специальных документах. Упускать точный расчет и качество материала тоже нельзя. В итоге должна получиться прочная основа под фундамент капитальной постройки. О бетонировании ленточного фундамента самостоятельно читай здесь
Бетонная подготовка под фундамент и её устройство
Бетонная подготовка под фундамент
Для чего необходим СНиП на бетонную подготовку под фундамент, и какие требования он ставит перед строителями? Какие это нормы и правила? Эти вопросы возникают в голове у многих мастеров, как начинающих, так и бывалых.
В этой статье мы поможем вам разобраться в этих вопросах и все доступно объяснить.
Фото предварительной подбетонки основания
Подготовительные работы при возведении оснований
Подготовка фундамента под дом должна включать следующие этапы:
- проведение предварительных расчетов
- подготовку площадки основания
- подготовку под основание.
Здесь мы остановимся собственно на последнем из перечисленных этапов.В принципе подушка под основание выполняется либо из утрамбованного щебня, либо из тощего бетона и ее несложно выполнить своими руками.
Технические требования регламентируют толщину слоя строительного материала, которую должна иметь бетонная подготовка под фундамент также технологию ведения работ. Основные нормы и требования для приготовления основания содержатся в СНиП 52-01, СП 50-101-2004 и СП 52-101-2003.
Главная задача этого этапа работ – приготовление к собственно сооружению основания. Существующие строительные правила предусматривают различные виды этих работ, но главным из них является подбетонка.
Назначение подбетонки для монолитных конструкций
- Защищает бетонную массу от протекания цементного раствора. Это способствует более быстрому достижению требуемых параметров основания при общем улучшении его качества
- Нивелирует воздействие сил со стороны грунта. Подбетонка распределяет силы, которые возникают в грунте
Виды предварительных работ
Щебень с битумом
Это ненадежный метод, который имеет серьезный недостаток – недостаточную жесткость подложки.
Результатом этого является невозможность обеспечения максимального удобства ведения последующих фундаментных работ .
Естественно, что для возведения ответственных сооружений такого вида следует избегать. Однако для вспомогательных, технических или подсобных зданий его применение вполне допустимо для снижения затрат на строительные работы.
Бетонная подготовка
Устройство бетонной подготовки под фундамент приобретает актуальность для возведения армированных ленточных или плитных конструкций. Основная причина состоит в том, что при таких технологиях возведения оснований предполагается жесткая установка стальных сеток и каркасов перед заливкой бетонной смеси.
Дополнительная причина связана с тем, что на жесткой поверхности возведение фундамента упрощается в принципе.
Важно. Особенное значение этот метод приобретает при ведении строительных работ в зимний период, когда грунт ухудшает свои свойства.
Основные тезисы, которые содержит инструкция и правила:
- Правила позволяют для подбетонирования использовать бетон М50 и выше.
- Общей толщины слоя в 10 см обычно хватает не только для того, чтобы выровнять площадку, но и для того, чтобы сформировать надежное основание под возводимый фундамент.
- Слой бетона выкладывается на подушку из песка или щебня.
Устройство песчаной и щебеночной подушки
Песчаная подготовка под фундамент обеспечивает оптимальное перераспределение нагрузки на нижнюю часть основания.Актуальность этого связана с тем, что весной и осенью грунт претерпевает сезонные изменения.
С помощью песчаной подушки нижнюю часть фундамента можно поднять над уровнем грунтовых вод и сгладить деформирующие влияния посторонних объектов и материалов вследствие препятствия прямому соприкосновению.
Совет. Песчаную подушку имеет смысл устраивать, если на дне котлована находится проблемная почва.
Обратите внимание
В этом случае слой грунта удаляется и на его место засыпается крупный речной песок слоем не менее 150 мм.
После этого он разравнивается с помощью простых уровней и трамбуется специальным инструментом – трамбовкой.
Трамбовка песчаной подушки
Качественная песчаная подушка может быть уложена при учете уровня грунтовых вод и сезонного их изменения. При высоком уровне возможно понадобится возведение дренажного слоя (который, впрочем, не будет лишним в любом случае).
Схема размещения песчаной подушки
Для этого по периметру возводимого сооружения выкапывается траншея, которая защищает от талых вод и повышения уровня грунтовых вод при сильных осадках. Эта траншея должна быть соответствующим образом гидроизолирована. Дренаж будет препятствовать подтоплению подвальных помещений.
Вместо песчаной может использоваться щебеночная подготовка под фундамент. Она прочнее своей конкурентки. Материалом служит щебень фракции 20/40 мм. Под слой щебня в 20-25 см насыпают небольшой слой крупного песка (10-15 см).
Щебень нужно утрамбовать при помощи виброплиты. После уплотнения верхний слой материала должен находиться на нулевой отметке.
Схема подушки с использованием щебня
Важно. Наличие подушки определяет величину расстояния от поверхности фундамента до арматуры, которое называется защитным слоем.
https://www.youtube.com/watch?v=RLw7QDSKh4U
При использовании бетонной подушки этот слой может быть сокращен с нормативных 7 см вдвое до 3,5 см.
Устройство подготовки под фундамент
- Подготовка из тощего бетона
- Щебеночная подготовка
- Профильные мембраны
- Устройство бетонной подготовки под ленточный фундамент
- Устройство бетонной подготовки под монолитный ленточный фундамент
- Подготовка под сборный ленточный фундамент
- Устройство подушки для столбчатого фундамента
Как выполняется подготовка под фундаментную плиту? До начала работ по возведению фундамента нужно подготовить строительную площадку. Это необходимо, чтобы во время заливки бетонного фундамента предотвратить утечку цемента. Должная подготовка строительной площадки позволит получить долговечное основание для дома.
Схема укладки фундамента из тощего бетона.
Подготовка из тощего бетона
Главная цель подготовки бетона строительной площадки #8211 обеспечить правильный процесс возведения бетонного фундамента, исключить возможность просадки грунта, обеспечить зданию наилучшую устойчивость и прочность.
Использование тощего бетона #8211 дорогостоящий вариант, но тем не менее этот способ является наиболее традиционным и часто используемым. Он представляет собой цементный раствор, в котором содержится не более 6 % цемента. Наполнителем является гравий или щебень. Раствор заливается на дно котлована тонким слоем.
Схема монолитного фундамента с щебеночной подготовкой.
Толщина бетонной подготовки под фундамент зависит от уровня подземных вод, типа грунта, веса будущего здания. Рекомендуется использовать толщину слоя от 50 до 100 мм.
Важно
Бетонирование исключает возможность повреждения каркаса из арматуры и арматурных сеток бетонного фундамента. Если строительство ведут зимой, в бетон нужно добавить специальные противоморозные компоненты.
Зимой проще выполнить бетонную площадку, чем площадку из щебня, так как перед началом работ щебень еще нужно прогревать.
Под свайные и монолитные конструкции устраивают гравийную или щебеночную основу толщиной до 200 мм. Гравий или щебень после утрамбовки заливается тощим бетоном. Его толщина должна быть не менее 80 мм. При выполнении работ на плотных сухих грунтах можно применять толщину цементного слоя до 70 мм.
Источник: http://1pofundamentu.ru/betonnaya-podgotovka-pod-fundament.html
Бетонная подготовка под фундамент: расчеты
Площадь подготовки под фундамент всегда больше размеров самого основания
После того, как проведены исследования грунта и произведены расчеты по типы и объему основы капитального здания, в ряде случаев, необходимо провести подготовительные мероприятия. Для чего нужна бетонная подготовка под фундамент? Это способ позволяет гарантированно усилить конструкцию базы, продлить срок эксплуатации строения в целом, и снизить роль влияния грунтов на основание.
Подбетонка под фундамент выполняется в строгом соответствии со СНиП (строительными нормами и правилами), имеет четкий регламент выполнения работ и строгую последовательность. В статье мы расскажем о способах устройства заградительного барьера, возможных материалах и опишем технологию устройства подбетонки на примере ленточного монолитного фундамента.
Актуальность устройства подготовки под основание
Сразу стоит отметить, что не всегда требуется устройство подбетонки. Такой заградительный барьер следует устраивать в том случае, если планируется заливка фундамента, а не устройство его из готовых блоков. Как правило, подбетонку прокладывают для ленточных или плитных оснований, но всегда возможны исключения.
Подбетонка для монолитного фундамента
Что дает устройство бетонной подготовки под фундамент?
Он:
- Предотвращает быструю потерю влаги из массы бетона самого фундамента, что влияет на прочность конструкции.
- Снижает и распределяет по всей площади основания силу давления пучинистых грунтов.
- Значительно упрощает устройство армирующего каркаса.
Исходя из данных преимуществ, понятно при каких условиях требуется обязательное устройство подготовки под основание здания.
Наиболее актуально устройство подготовки под фундамент при строительстве на сложных подвижных грунтах
Виды подготовительных мероприятий
На данный момент существует 3 способа подготовить строительный участок под устройство крепкого и надежного монолитного фундамента:
- отсыпка щебнем;
- заливка тощего бетона;
- укладка профильных мембран.
Каждый из способов имеет свои достоинства и недостатки. Рассмотрим их подробнее.
Отсыпка щебнем
Устройство щебеночной подготовки под основание является наиболее бюджетным из всех вышеперечисленных.
Чаще всего такая подготовка производится, если планируется устройство монолитной плиты или для фундамента на свайных ростверках.
Для подготовки используется щебень мелких и средних фракций, толщина отсыпки колеблется в пределах 15 — 20 см, в зависимости от необходимости выравнивания и типа грунта.
Процесс устройства подготовки следующий:
- на дно траншеи или котлована отсыпается щебень необходимой толщины слоя;
- после отсыпки щебень трамбуется;
- после утрамбовки и выравнивания слой заливается битумом.
Наиболее экономичным способом подготовки под фундамент является отсыпка щебнем
Укладка профильной мембраны
Самый современный вид устройства подготовки под фундамент. По сути профильная мембрана — это полиэтиленовая пластина, усиленная ребрами жесткости. Ранее для подобного вида работ использовался обычный рубероид. Безусловным преимуществом такого способа укрепления грунта является попутная гидроизоляция фундамента.
Профильная мембрана, используемая для укладки на подбетонку или даже вместо неё
Технология процесса
Процесс укладки мембраны довольно прост, но требует дополнительной подготовки.
Инструкция по укладке профильных листов:
- На дно котлована или траншеи отсыпается щебень мелкой или средней фракции. Толщина отсыпки не более 10 см. Данная процедура нейтрализует действие капиллярной влаги грунта на основание.
- Производится выравнивающая заливка цементным тестом. После схватывания поверхность обрабатывается праймером.
- Плита обрабатывается мастикой из битума, которая выполняет роль клея для мембраны.
- Профильные листы укладываются внахлест, ребра выступов должны быть направлены вверх.
- Стыковочные швы проклеиваются.
После того, как работы по укладке мембран закончены, поверхность подготовки под основание накрывается геотекстилем. Таким образом создается система из мелких дренажных каналов между грунтом и фундаментом дома, что значительно укрепляет основание, и увеличивает срок эксплуатации здания в целом.
Мембрана выполняет функцию гидрозащиты
Заливка тощим бетоном
Цена бетонной подготовки под фундамент занимает среднее положение между предыдущими. При этом прочность подбетонки гораздо выше подушки из щебня.
После заливки тощим бетоном грунт не проседает, и строение максимально надежно фиксируется. Толщина бетонной подготовки под фундамент согласно СНиП колеблется в пределах 15 — 30 см.
Данный показатель определяется исходя из следующих параметров:
- типа почвы,
- уровня грунтовых вод,
- массы возводимого здания.
Компоненты раствора подбетонки стандартные, но их пропорции в растворе отличаются от товарного бетона
Тощим бетоном называют раствор, состоящий из 6 % цемента марки М100 прочностью В15 с заполнителями из щебня и песка. Специфика состава и минимум компонентов способствует быстрой гидратации смеси.
Рецепт состава для подбетонки на 1 м3:
- цемент — 275 кг,
- песок — 590 кг,
- щебень — 1377 кг,
- вода — 165 л.
При необходимости усилить морозоустойчивость или влагонепроницаемость прослойки в состав водятся добавки и пластификаторы. Время подготовки раствора должно быть не более 5 минут.
На фото схема максимально возможного набора пирога фундамента монолитной плиты с устройством подбетонки
Расчет цементного раствора
Процесс выполнения подбетонки
После того, как выполнена разметка площади, планируемой к устройству подбетонного защитного слоя для устройства фундамента, работы производятся в следующем порядке:
- Выкапываются котлован или траншея, в зависимости от того, какой тип основания планируется к устройству.
- На дно подготовленной ямы засыпается щебень, после чего слой утрамбовывается. Толщина слоя щебенки в среднем составляет около 10 см.
- Монтируются щиты опалубки. Высота щитов должна находится на уровне планируемого слоя заливки, это упростит процесс выравнивания и позволит правильно разместить армирующий каркас.
Вид подготовленной площадки для заливки тощего бетона
- Укладывается горизонтальное армирование. Обычно, используются прутки стального периодического профиля диаметром 8 мм. Упростить процесс можно использую специальные карты строительной армирующей сетки.
- Устанавливаются стержни вертикальной армации, выступающие за край опалубки на 20 — 30 см. Данные прутки позволят связать подбетонку с основой здания. Иногда вертикальные стержни устанавливаются в залитый и утрамбованный бетон.
- Замешивается состав для заливки. Цементное связующее, используемое при затворении раствора — цемент марки М50 и более.
- Готовый раствор заливают в опалубку и утрамбовывают, используя механические вибраторы.
После этого, подбетонку оставляют в покое до полного схватывания. Данный процесс происходит в течение 4 недель. Более подробно ознакомиться с технологией устройства подбетонки своими руками можно, посмотрев видео в этой статье.
Строительные нормативы
Если вы не являетесь профессиональным строителем, и хотите при этом выполнить работы по устройству подбетонки своими силами, то предварительно мы рекомендуем ознакомиться со следующими нормативными документами:
- СНиП 52-01-2003 «Бетонные и железобетонные конструкции. Основные положения»;
- СП 50-101-2004 «Проектирование и устройство оснований и фундаментов зданий и сооружений».
В данных документах прописываются основные требования к материалам, растворам и технология процесса. В них можно прояснить для себя всё, что касается технологических элементов и требования к качеству материалов.
Резюмируя нормативы можно отметить следующее:
- Тощий бетон изготавливается с применением цемента М50 и выше.
- Засыпка подушки из щебня перед заливкой обязательна.
- Время набора полной прочности составляет 4 недели (28 дней).
- Прописывается диаметр арматуры при различных условиях.
Подбетонка для ленточного фундамента
Устройство бетонной подготовки под основание обязательно в тех случаях, если здание, планируемое к строительству, будет расположено в следующих условиях:
- климатическая зона с сезонными изменениями объема и плотности грунта;
- тип местности участка ближе к холмистому или склон;
- неустойчивый тип грунта.
Подбетонка под ленточный фундамент
Если планируется производить работы своими руками, придерживайтесь следующей технологии:
- Производится разметка площади подбетонки, с учетом припусков с каждой стороны на 10 см.
Разметка участка для подбетонки под ленточный фундамент
- По разметке вырываются траншеи по периметру здания и под несущими стенами.
- Дно траншеи засыпается слоем щебня толщиной в 10 см. Щебень трамбуется и проливается битумной мастикой.
- Устанавливаются щиты опалубки. Внутрь опалубки укладывается горизонтальное армирование и вставляются вертикальные прутья для связи подбетонки с фундаментом.
- Заливается раствор подбетонки и трамбуется.
- По истечении недели, щиты опалубки можно снять. Подбетонку оставляют до полного схватывания. После окончания работ, верхнюю плоскость подбетонки и боковые части обрабатывают битумной мастикой или выбранным праймером для гидроизоляции.
После схватывания все видимые части подбетонки рекомендуется обработать битумом
Расчет ленточного фундамента
Заключение
Как мы выяснили, выполнить заградительный защитный слой для фундамента можно разными способами, но наиболее распространённый тип — подбетонка. Устройство бетонной подготовки под фундамент — процесс довольно простой, его вполне под силу выполнить своими руками. Такая защита основания здания укрепит фундамент, и сделает строение более прочным и устойчивым.
Источник: https://beton-house.com/iz-monolitnogo/betonirovanie/betonnaya-podgotovka-pod-fundament-405
Что такое бетонная подготовка
Главная » Статьи » Что такое бетонная подготовка
Перед строительством фундамента, кроме предварительных расчётов, нужно подготовить строительную площадку. Так называемая бетонная подготовка под фундамент нужна в первую очередь. Она заключается в возведении подушки под основанием.
Существует ряд технических требований, регламентирующих технологию ведения подготовительных работ, выбор материала и толщину слоя, применяемого для подушки.
Перечень основных норм и требований предфундаментной подготовки изложен в СНиП 52-01, СП 52-101/ 2003 и СП 50-101/2004. В них на тему, которая нас интересует, содержится много информации.
В основном, роль фундаментной подготовки сводится к следующему.
Основные функции подбетонки
Если основание планируют заливать по месту, а не возводить из готовых блоков, подготовка под фундамент поможет:
- Защитить бетонную массу от протечек жидкого цементного раствора. Это ускорит набор фундаментом нужного объёма и общее улучшение его качественных показателей.
- Нивелировать силовые воздействия, возникающие под давлением грунта. Бетонная подготовка перераспределяет силы, возникающие в грунте, и ослабляет их негативное влияние на фундамент.
- Обеспечить комфортные условия для подготовки арматурного каркаса основания, который можно будет монтировать на ровной поверхности.
Виды предварительных работ
Согласно СНиП 52-01 для бетонной подготовки под фундамент в качестве основного материала используется щебень, тощий бетон (в нём малое содержание вяжущих веществ, соответственно, невысокая марка – от М50) или профильные мембраны.
Щебень с битумом
Подготовки из щебня применяют для снижения общей стоимости фундамента и уменьшения расхода цемента. Толщина щебёночного слоя должна быть от 20-ти см. После тщательного уплотнения щебень заливают битумом. Щебёночную подготовку используют в тех случаях, когда нужно залить битумом основание котлована до максимального насыщения грунта или образования битумной плёнки.
Использование щебневой подготовки фундамента не может обеспечить достаточной жесткости подложки. Кроме того, возводить основание на подложке из щебня не совсем удобно. Поэтому её применяют при строительстве вспомогательных подсобных и технических построек для максимального снижения затрат.
Бетонная подготовка
Она нужна для обеспечения правильного процесса возведения бетонного фундамента и исключения просадок грунта. Тощий бетон – отнюдь не дешёвый вариант, тем не менее, применяется он довольно часто.
В таком бетоне не больше 6% цемента, остальное щебень и гравий. Толщина слоя бетонной подготовки должна соответствовать 50 – 100 мм. Она зависит от веса будущего здания, уровня подземных вод и вида грунта.
Бетонную подготовку под фундамент применяют, прежде всего, при возведении плитных и ленточных армированных конструкций. Это обусловлено особенностями технологического процесса, который предусматривает жёсткую установку каркасов и стальных сеток в тело будущего фундамента перед его заливкой бетонной смесью. Кроме того, на бетоне возводить фундамент намного проще, особенно в зимний период.
Профильные мембраны
Современный способ подготовки фундамента, который может заменить щебёночную и бетонную подготовку. При их укладке исключаются «мокрые» виды работ, экономятся средства, и ускоряется строительный процесс.
Как обустроить бетонную подготовку
Работы надо производить в следующей последовательности:
- Сначала под устройство фундамента надо сделать разметку строительной площадки.
- Участок нужно выровнять и засыпать щебёнкой слоем в 10 см.
- С помощью виброплиты утрамбовать подушку.
- Разметить периметр и смонтировать опалубку высотой не более 30-ти см. Высота её будет зависеть от толщины слоя бетона.
- Под верхний край опалубки необходимо залить бетонную смесь.
- С помощью армирования подушку усиливают, используя прутки сечением не меньше 8-ми см.
- Бетон нужно утрамбовать, используя виброплиту.
- После заливки участка бетонным раствором в него нужно установить прутки арматуры, задача которых скрепить фундамент с подушкой. Выступать над бетоном они должны примерно на 20-30 см.
С каждой стороны периметра надо отступить за пределы фундаментной плиты на 10-15 см, тем самым увеличив размеры участка бетонной подготовки. Для основания, выполненного методом бетонной заливки нет ограничений в применении.
Он считается настолько надёжным, что его армирование делать не обязательно. На практике оба варианта зарекомендовали себя с самой положительной стороны.
Единственное их отличие – не армированная бетонная подушка имеет ограниченные размеры.
Строительные требования предусматривают минимальную высоту бетонного слоя, который должен возвышаться над поверхностью грунта не меньше, чем на 15 см. Это позволяет оптимально размещать сетку для армирования. Сетка нужна для укрепления нижней части бетонной подушки, которая испытывает силы растяжения. Они передаются от фундамента, испытывающего весовую нагрузку всего сооружения.
Чтобы понять, для чего нужна бетонная подготовка под фундамент, надо внимательно изучить действующие нормативные документы. В них сказано, что любой вариант бетонной подготовки лучше, чем его отсутствие. Она обеспечит зданию наилучшую прочность и устойчивость, помогая фундаменту длительное время поддерживать всю конструкцию в нормальном состоянии.
Источник: http://vest-beton.ru/stati/chto-takoe-betonnaya-podgotovka.html
Бетонная подготовка под фундамент
Прежде чем возводить фундамент дома своими руками, важно не только провести предварительные расчеты, но и не забыть подготовить площадку основания должным образом. Вы наверняка не раз слышали о таком понятии как подготовка под фундамент.
Ее обычно выполняют либо из щебня, который тщательно трамбуют, либо из тощего бетона. Толщина слоя во многом зависит от выбранного стройматериала, основная же его задача кроется в названии – «подготовка» — основание буквально подготавливают к последующим этапам строительства фундамента.
В этой статье мы рассмотрим основные виды подготовки, а также уделим большое внимание устройству бетонной подготовки.
Для чего вообще необходима подготовка под основание дома? В случаях, когда идет речь о заливке фундамента по месту (не из готовых сборных блоков), роль подготовки сводится к:
- защите бетонной массы от утечки цементного молочка, ввиду чего фундамент быстрее достигает нужных параметров, да и качество его лучше;
- нивелированию воздействия со стороны грунта. Как ни крути, а бетонная подготовка способствует распределению сил, возникающих в грунте;
- обеспечению удобства при монтаже арматуры, попросту говоря – на ровной поверхности гораздо проще сконструировать скелет фундамента
Виды подготовки
В СП 50-101-2004 (рекомендуем ознакомиться) указано, что в качестве материала для подготовки под фундамент, может быть использован тощий бетон (который содержит малое количество вяжущего, соответственно и его марка невысокая) либо щебень.
Щебень используют для уменьшения общего расхода цемента на фундамент – попросту, в качестве экономии. Толщина такой подготовки составляет 200 мм: материал уплотняют и проливают битумом. Этот путь сложно назвать оптимальным и надежным, т.к.
щебень не обеспечивает того удобства работы и жесткости, которые гарантирует бетонная подготовка. Именно поэтому мы уделим ей повышенное внимание.
Читать еще: Гидроизоляция фундамента «Технониколь»
Совет
В целом, выбор между щебеночной и бетонной подготовкой во многом зависит от решаемой задачи. Но в большинстве случаев именно последний вариант является наиболее приемлемым.
Бетонный слой актуален для армированного ленточного или плитного фундамента, когда перед заливкой смеси необходимо жестко установить стальные сетки и каркасы.
Во-вторых, с такой подготовкой в принципе проще возводить фундамент, особенно, если строительные работы по каким-то причинам отложены на зимний период.
В качестве материала используют бетон марки М50 и выше – решается исходя из экономической целесообразности.
Толщина слоя составляет 100 мм – этого вполне хватает не только для выравнивания площадки, но и для формирования надежного основания под будущий фундамент.
Бетонная подготовка укладывается на песчаную или щебневую подушку в соответствии с принятыми параметрами основания фундамента дома.
Марка (класс) бетона:
М100 | В7,5 М150 | В10 М150 | В12,5 М200 | В15 М250 | В20 М300 | В22,5 М350 | В25 М350 | В26,5 М400 | В30 М450 | В35 М550 | В40 М600 | В45
Марка цемента:
М300 М400 М500 М600
Заполнители:
Высококачественные Рядовые Пониженного качества
Крупный заполнитель, мм:
10 мм | Щебень 20 мм | Щебень 40 мм | Щебень 70 мм | Щебень 10 мм | Гравий 20 мм | Гравий 40 мм | Гравий 70 мм | Гравий
Мелкий заполнитель, мм:
Мелкий песок (1,1-1,8 мм) Средний песок (2-2,5 мм) Крупный песок (более 2,5 мм)
Подвижность смеси:
П3-П4 (для частного строительства)
Обратите внимание
Кстати, от наличия подготовки зависит минимальная величина защитного слоя бетона (расстояние от поверхности фундамента до арматуры). Так, если используется бетонная подготовка, то защитный слой допускается сокращать до 35 мм, если его нет, то 70 мм.
Читать еще: Мелкозаглубленный ленточный фундамент
Есть ли альтернатива?
В последние годы производители полимерных строительных материалов активно продвигают на рынок так называемые профилированные мембраны, которые призваны заменить бетонную или гравийную подготовку.
Насколько такой подход целесообразен? Все зависит от цены на материал. Подчитайте, сколько надо цемента на фундамент, вернее, на подготовку.
Если производитель предлагает намного более дешевую альтернативу, то почему бы ею не воспользоваться?
Источник: http://tolkostroyka.ru/fundament-dlya-doma-svoimi-rukami/betonnaya-podgotovka-pod-fundament/
Создание бетонной подготовки под фундамент
Бетонная подготовка укрепляет конструкцию основания, повышает длительность использования строения, понижает воздействие грунтов на базовую часть. Заливка под фундамент формируется согласно СНиП, обладает строгим регламентом и последовательностью проведения работ. Подготовка может различаться по видам, назначению и способу размещения.
Назначение подбетонки
Структура грунтов часто бывает неоднородной. Они проседают, сжимаются и разрушаются под высокими нагрузками. Для распределения по всей площади давления в равных частях, предотвращения деформации и усадки проводят мероприятия по устройству бетонной подготовки под фундамент. Она особенно актуальна при работе с сапропелями, илистыми грунтами, торфяниками и влажными глинами.
Подбетонка отделяет основную конструкцию от подсыпки из гравия и щебня, являясь слоем тощего бетона толщиной до 10 см. Ее главная функция заключается в создании опоры для фундамента дома в следующих случаях:
- если есть слабые разносортные грунты;
- вблизи располагаются насыпи, откосы и склоны;
- сооружение несет повышенную нагрузку сжимающего типа;
- регион подвержен сейсмической опасности.
Преимуществами подготовки являются:
- удобство сборки конструкций на ровной площади;
- точность монтажа и выравнивания каркасов из арматуры в горизонтальной плоскости;
- защита от грунтовой влаги, негативно воздействующей на элементы сооружения;
- экономия высококлассного бетона, благодаря его укладке на плотный и дешевый материал;
- предотвращение протекания из свежего раствора цементного молока, полноценная гидратация зерен позволяет сохранить марочные качества бетона.
Основные виды
Каждый способ создания подготовки обладает своими плюсами и минусами. Всего их существует четыре:
- бетонный;
- щебеночный или гравийный;
- мембранный;
- песчаный.
Щебеночный и песчаный
После окончания земельных работ делают отсыпку на основе инертных компонентов и утрамбовывают ее. Подушка из щебня, песка и гравия должна иметь толщину 20−60 см. Если грунтовые воды расположены близко, то дно ямы укрывается геотекстилем.
Первым слоем идут крупнозерные фракции, создающие дренаж, а затем укладывается слой среднего помола. Последним насыпается песок. Разграничение слоев позволяет добиться повышения прочности и жесткости фундамента. Песок используется для подачи равномерной нагрузки на нижние слои.
К качеству мелкозерного наполнителя имеются некоторые требования:
- песок должен содержать гранулы 2−2,5 мм, большего всего подходит дробленый гравий, обладающий малым весом и хорошо пропускающий воду;
- примеси из известняка, глины и солей содержатся в минимальном количестве;
- отсутствуют органические остатки, способствующие снижению водопроницаемости, образованию ила в песке.
Под фундаментом создается подсыпка из гравия, щебня на основе известняка или гранита. Прочность материалов должна иметь маркировку М800, а фракционная величина составлять 20−70 мм. После каждого слоя в 50 мм проводится уплотнение ручной утрамбовкой или виброплитой. Песчаная поверхность предварительно увлажняется.
Подготовка из бетона
Под блоками фундамента и плитами формируется подушка по двум технологиям. В первом случае слой щебня заливается жидким раствором битума, во втором — создается прослойка в 10 см из бетона дешевых видов М50-М100.
Подготовка основания под бетонирование проводится:
- размещением по периметру опалубки и формированием подбетонки;
- заливкой котлована без сооружения опалубки;
- в заготовку под фундамент закладывается последовательно тощий и высококачественный бетон.
Использование геомембраны
Новым элементом для подготовки основания стали мембраны из полимеров. Фибра способствует защите строений от влаги в грунте. Шипованный профиль дополнительно укрепляет почву. Благодаря геомембранам реже появляются трещины от усадки, нагрузка распределяется равномерно на все основание. Промежутки между бетоном и изолирующим материалом играют роль вентиляции.
Подготовка из щебня и песка покрывается геотекстилем, а сверху укладывается слой фибры. При помощи сварки соединяются швы мембраны. Этот материал может прослужить долгое время, стойко перенося перепады температур.
Этапы работ
Перед укладкой фундамента проводится защита подушки от влаги рулонными или обмазочными материалами. СНиП допускает горизонтальные отклонения до 5 мм при проверке уровнем длиной в 2 м. Это показатель для всего участка не должен быть больше 20 мм. Монтаж бетонной подготовки включает следующие этапы:
- Дно траншеи или котлована выравнивается.
- Засыпаются слои щебня крупной и средней фракции, утрамбовываются и выравниваются. Прослойка должна составлять 10−15 см.
- Распределяется слой песка с гранулами 2−2,5 мм, трамбуется с предварительным увлажнением.
- Сооружается опалубка для подушки.
- Создается сетка из арматуры и вертикально расположенные выпуски, позволяющие связать подготовку и фундамент.
- Подушка формируется из бетона М100 с добавлением портландцемента качеством от М50. Слой заливки — 10 см.
- Поверхность выравнивается и трамбуется, чтобы из раствора вышел воздух.
- По истечении 3−7 дней можно убирать опалубку.
Подготовка под закладку фундамента является важным элементом строительных работ. Ее назначение и правила заливки определяются строительными нормативами. Подбетонка обязательно нужна при высоких показателях нагрузки, слабых почвах, неровном рельефе и зонах, склонных к возникновению землетрясений.
Источник: https://TvoiDvor.com/beton/sozdanie-betonnoy-podgotovki-pod-fundament/
Бетонная подготовка под фундамент: как правильно сделать
Качественное основание гарантирует долговечность и прочность жилого строения. Правильная подготовка фундамента обеспечит длительную службу конструкции, исключит протекание цемента в ходе заливки. Работы проводятся в соответствии с нормативными документами, в строгой последовательности.
Необходимость выполнения подбетонки
Участок, подготовленный под заливку цементного раствора, предусматривает упрочненное и выровненное основание. Бетонному слою отводится роль барьера, который может защитить подземный монолит от усадки, просачивания материалов в грунт. Подбетонка, уложенная под любой фундамент, будет способствовать:
- устранению протеканий цементной смеси;
- быстрому набору фундаментальной конструкцией объема, улучшению ее эксплуатационных показателей;
- нивелированию воздействия подвижных грунтов путем равномерного рассредоточения массы по площади изделия;
- ослаблению влияния вспучивающихся грунтов;
- созданию условия для монтажа армирующего каркаса.
Благодаря бетонной подготовке достигается ровность поверхности грунта, создаются условия для комфортных и быстрых работ.
Нормативы для организации подбетонки
Устройство бетонной подготовки под фундамент регламентируется нормативными документами.
Строители руководствуются СНиП 52-01-2003, где указывается тип основного материала – щебень, профильная мембрана или тощий бетон.
В документе также содержаться инструкции по расчету, изготовлению и эксплуатации оснований из цементного теста. Содержание нормативных правил сводится к нескольким ключевым положениям:
- использование состава марки М50 для изготовления тощего бетона;
- сооружение песчано-щебневой подушки перед заливкой смеси;
- обустройство подбетонки слоем 10 см;
- выдержка залитой массы на протяжении 28 суток;
- проектирование и устройство основы с учетом разновидности грунта, ближайших архитектурных объектов, нагрузки, сейсмичности и экологичности материалов;
- применение арматуры для каркаса (горячекатаной диаметром 3-80 мм, упрочненной диаметром 6-40 мм, холоднодеформированной диаметром 3-12 мм).
Рассчитывать нагрузку сооружения необходимо, если почва дает сжатие в холодное время года, здание будет размещено на склоне или в холмистой местности, а подошва фундамента расположена на поверхности с неустойчивым составом. Помимо основного сборника нормативов используются СП 50-101-2004 и СП 52-101-2003.
Рытье котлована – подготовительные мероприятия
Главная цель работ заключается в подготовке строительной площадки под будущий фундамент. На этом этапе проводится обработка грунта, чтобы он смог выдержать постройку и плотно прилегал к подошве конструкции. Задачи осуществляются последовательно:
- Выкапывается котлован по ширине строение.
- Дно очищается от мусора, камней и корневой системы растений.
- Поверхность дна уплотняется путем трамбования.
- Проводится увлажнение или осушение грунтов согласно виду последующих мероприятий.
Котлован необходимо обустраивать перед началом строительства подбетонки. В частном домостроительстве рытье целесообразно выполнять вручную.
В зависимости от нагрузки здания, подвижности грунта существуют две традиционных методики – укладка щебня и заливка бетонной смеси. Современные производители предлагают специальные мембраны, которыми удобно проводить устройство бетонной подготовки.
Применение щебня
Щебеночная подготовка под фундамент позволит сократить себестоимость строительных мероприятий и уменьшить расход цемента. Гравий и щебень укладывают, когда предусмотрено сооружение основания из монолитной плиты или на свайных ростверках. При организации подушки стоит учитывать некоторые нюансы:
- Щебеночный слой укладывают на толщину 10-20 см.
- Сыпучий среднефракционный материал уплотняют, а затем заливают битумом.
- Щебеночный тип конструкций актуален с целью максимального насыщения и уплотнения земли.
Укладка щебня не предоставит требуемой жесткости для подложки частного дома. Подобным способом подготавливается подбетонка, предназначенная под фундамент подсобных строений, технических сооружений.
Выполнение подушки из тощего бетона
Бетонная подготовка под фундамент – эталонный тип работ, создающий максимально прочное изделие. При этом земля не будет проседать, а здание окажется надежно зафиксированным. Перед началом мероприятий изготавливают цементное тесто.
Что такое тощий бетон?
Раствор, в котором содержится 6 % цемента прочностью В15, гравийные или щебневые наполнители, называется тощим бетоном. Состав замешивают из цемента марки М100. За счет минимального количества компонентов смесь быстро гидратируется, изготавливается и застывает. Рецептура тощего бетона предусматривает:
- использование 275 кг цемента, 590 кг песка, 1377 кг гравия и 165 л воды на 1 м2 смеси;
- засыпку в бетономешалку объемом 200 л 44 кг цемента, 94 кг песка, 220 кг гравия и 26 л воды;
- расход на мешок цемента массой 25 кг 54 кг песка, 125 кг гравия и 15 л воды.
Все компоненты тщательно отмериваются. Если у застройщика имеется бетономешалка, в нее заливается вода и засыпается цемент. Песок и гравий вводятся постепенно, к ним в небольшом количестве добавляется вода. Жидкие пластификаторы так же смешиваются с водой и добавляются в конце замешивания. Время перемешивания состава не должно превышать 5 минут.
Строительство подбетонки из тощего бетонного теста
Подготовка под основание с использованием тощего бетона выполняется по следующему алгоритму:
- Проводятся расчеты несущей способности постройки с учетом типа почвы, УГВ.
- Делается разметка территории и монтируется опалубка на 30 см.
- Приготавливается раствор. Ингредиенты подбираются из расчета высоты подушки – 4-10 см.
- Выкапывается котлован и на 10 см засыпается щебнем. Материал обязательно утрамбовывается.
- Под верхний край опалубки заливается бетонное тесто из тощего материала.
- Подбетонка усиливается арматурой с сечением не менее 8 мм, утрамбовывается виброплитой. Прутья должны выступать на 20-30 см.
При выполнении строительства учитывайте, что за пределы основания нужно выступить на 10-15 см – так увеличивается размер подготовки и укрепляется строение. Толщина бетонной подготовки будет определяться характеристиками грунта, нагрузкой на основание и площади дома. Параметр, указанный в СНиПе – 4-10 см.
Сооружение из профильных мембран
Профильные мембраны представляют собой пластины из полиэтилена, усиленные ребрами жесткости. Помимо подготовки фундамента изделия способны гидроизолировать цокольные помещения, удерживая давление почвенных вод на стены. Устройство подбетонки проводится последовательно:
- Поверхность котлована очищают от мусора.
- Обустраивают подушку из щебня размером до 13 мм, возвышая ее на 10 см. Так нейтрализуют капиллярное воздействие воды.
- Проводят заливку подложки бетонным тестом, которую после высыхания обрабатывают праймером или грунтовкой.
- На поверхность плиты наносят битумную мастику.
- Раскатывают профильную мембрану, располагая ее вниз выступами. При укладке геополотна выступы выводят наружу.
- Ленты мембраны укладывают внахлест, а затем проклеивают каждый шов бутил-каучуковой лентой, которая исключает перерасход цементной смеси.
На последнем этапе укладки материала герметизируют стыки самоклеющейся лентой или жидким герметиком.
Подбетонка для различных типов фундамента
В частном домостроительстве популярные монолитные и сборные ленточные основания. Подготовка из бетона – необходимое условие строительства каждого из фундаментов.
Подбетонка для основания-ленты
Работы выполняют последовательно, придерживаясь требований строительных нормативов:
- Делают разметку местности под ленточный монолит, выравнивают почву.
- Проводят засыпку щебнем на высоту 10 см, трамбуют. Уложенный материал заливают жидким битумом.
- Монтируют опалубку и проводят армирование. Сетку из прутьев диаметром 8 мм располагают согласно проекту.
- Заливают бетонную смесь по высоте опалубки и утрамбовывают виброплитой.
После того, как состав застынет, демонтируют опалубный каркас и проводят гидроизоляцию боковых поверхностей при помощи мастики.
Подготовка для сборного ленточного основания
Заливка подбетонки происходит с перерывами, а для изготовления фундамента закупают специальные блоки. Рабочий процесс можно выполнить пошагово:
- Устроить основание из песка, проливая и трамбуя каждый пласт. Слой материала делается не более 10 см.
- Поверх песчаной насыпи монтируют опалубку.
- По уровню секций заливают бетонное тесто.
Песчаная подушка актуальна только для хозпостроек.
Бетонная подготовка строительной площадки под необходимый фундамент, выполненная согласно нормативным документам, обеспечивает экономию материалов.
Качество черновых и разметочных мероприятий при этом сохраняется. Подбетонку не делают при формировании наливной стяжки пола на ровной плите.
В остальных случаях подготовка нужна для увеличения эксплуатационного ресурса постройки.
Источник: https://idachi.ru/stroitelstvo-i-remont/fundament/betonnaya-podgotovka-pod-fundament.html
Бетонная подготовка под фундамент: строительные нормы и правила подбетонки
Главная|ГОСТы и СНиП|Бетонная подготовка под фундамент: строительные нормы и правила подбетонки
Дата: 27 октября 2018
Просмотров: 7373
Коментариев: 1
Осуществляя строительство, важно правильно выполнить предварительные расчёты, а также технически грамотно, качественно подготовить основание, которое определяет устойчивость фундамента здания. Бетонная подготовка под фундамент представляет собой комплекс работ по возведению подушки под будущим объектом.
Выбор оптимального варианта выполнения подготовительных мероприятий влияет на надежность фундамента, срок эксплуатации объекта строительства. Правильно подготовленная основа, пропорционально площади, перераспределяет действующие на грунт нагрузки, предотвращает утечку цементной массы, которая возможна в процессе заливки раствора бетона.
Формирование подушки – ответственная операция. Именно поэтому технические требования, определяющие особенности выполнения подготовительных мероприятий, технологию, необходимый материал, толщину слоя, используемого для подушки, регламентируют СНиП и свод правил, рекомендации которых рассмотрим далее более детально.
Существует ряд технических требований, регламентирующих технологию ведения подготовительных работ, выбор материала и толщину слоя, применяемого для подушки
Нормативные документы
Требованиям, каких нормативных документов и правил, должно соответствовать устройство бетонной подготовки под фундамент?
При осуществлении промышленного и гражданского строительства сооружение любых видов конструкций подчиняется специальным положениям, приведенным в отраслевых и государственных стандартах, строительных нормах и правилах, а также сводах правил. Главной документацией, регламентирующей специфику работ, являются:
- СНиП 52–01, выпущенные в 2003 году, посвящены конструкциям из бетона и железобетона;
- СП 50–101, утвержденные в 2004 году, содержащие требования к проектированию и устройству оснований фундаментов;
- СП 52–101 (2003), посвященные конструкциям без предварительно напряженной арматуры;
- СНиП 2.02.01, разработанные в 1983 году, регламентирующие параметры оснований объектов строительства;
- СП 63.13330.2012 – свод правил, объединяющий требования к строительным сооружениям.
Указанные стандарты четко определяют особенности мероприятий, связанных с устройством фундаментов, их проектированием. Они учитывают:
- Особенности почвы на участке строительства.
- Специфику объекта застройки.
- Требования экологичности.
- Действующие усилия.
- Степень сейсмической активности.
Устройство любых конструкций при возведении гражданских и промышленных объектов подчиняется определенным требованиям
Разновидности подготовки
Требования строительных норм и сводов правил предусматривают, что для формирования основания необходимо выполнять один из указанных видов подготовки. Перечислим возможные варианты:
- основа из тощего бетона, характеризующегося невысокой маркой, малым процентным содержанием вяжущих ингредиентов;
- щебеночная подготовка под основу, толщиной 200 мм, обеспечивающая значительное снижение расхода цемента. Щебень уплотняют, заливают раствором битума;
- профильное мембранное основание, объединяющее особенности указанных выше видов работ.
Повышенную прочность обеспечивает первый вариант, после которого удобнее выполнять дальнейшие работы по обустройству фундамента. Остановимся на нем подробно.
Главные задачи подбетонки
Устройство бетонной подготовки под фундамент обеспечивает требуемое состояние основания, обладающего необходимой несущей способностью, достаточной для восприятия прилагаемых усилий. Именно поэтому строительные нормы уделяют ей повышенное внимание. Каково основное назначение подбетонки, являющейся базой монолитных конструкций? Какие задачи она выполняет?
Бетонную подготовку под фундамент применяют, прежде всего, при возведении плитных и ленточных армированных конструкций
Основные функции:
- Обеспечение защиты залитого раствора от вытекания, что способствует быстрому затвердеванию основы в соответствии с требованиями технологии, улучшению ее качества. Недостаток влаги является причиной растрескивания массива, снижения прочности основания и последующего его разрушения с течением времени.
- Создание плоской поверхности, позволяющей геометрически правильно, устойчиво установить каркас основания и выполнить армирование в соответствии с требованиями СНиП.
- Выравнивание реакции грунта на основание подошвы, равномерное распределение усилия по всей площади.
- Предотвращение возможной усадки почвы под воздействием точечных усилий и значительных нагрузок.
Стадии подготовительных мероприятий
Подготовительная стадия, согласно правилам, предусматривает выполнение следующих этапов:
- расчётной части, определяющей толщину и габариты основы фундамента, ее способность противостоять деформациям;
- обустройства зоны работ;
- формирование площадки.
Согласно СНиП 52-01 для бетонной подготовки под фундамент в качестве основного материала используется щебень
Требования к расчетной части
Строительные правила требуют выполнять расчет усилий, которые способно воспринимать основание в следующих случаях:
- При наличии серьезных сжимающих усилий.
- При расположении объекта строительства вблизи насыпей, склонов или откосов.
- При обустройстве подошвы фундамента, расположенной на слабых почвах.
Стандарты разрешают не выполнять расчеты несущих нагрузок, если, согласно проекту, будут выполняться мероприятия, которые не допускают смещение почвы.
Готовим котлован
Основные стадии работ по подготовке грунта для установки бетонной фундаментной основы включают:
- обустройство и разметку котлована, с учетом будущей толщины слоя песчано-гравийной смеси и бетона;
- планировку и подчистку дна выемки;
- уплотнение рыхлой почвы с использованием вибрационных плит;
Вне зависимости от типа грунта, на первом этапе работ по выполнению подготовки из тощего бетона под фундамент следует выровнять дно выемки
- дополнительное увлажнение или осушение грунта в зависимости от результатов работ по уплотнению;
- подсыпку песочно-щебеночной фракции толщиной 10 см, необходимой для дренажа;
- трамбование массива;
- нанесение гидроизоляционного слоя из пленки или полотен рубероида;
- сборку опалубки высотой не более 30 см для бетонирования.
Только после этого приступают к выполнению работ по бетонированию. Таковы основные стадии, предусмотренные стандартами, из которых состоит бетонная подготовка под фундамент.
Выполнение армирования
Согласно строительным нормам, бетонная подготовка под фундамент предусматривает необходимость усиления бетонного массива стальной арматурой. Это мероприятие улучшает надежность находящейся ниже нулевой отметки части постройки, усиливает подбетонку.
Усиление основы осуществляется стальными сетками, связанными специальной проволокой диаметром 8 миллиметров. Конструкция укладывается на основание до заполнения опалубки смесью.
Стандарты предусматривают установку вертикально расположенных стальных прутьев, обеспечивающих прочную связь фундамента с основой.
Стальные прутки должны возвышаться над поверхностью основания не менее чем на 20 сантиметров.
Армирование значительно укрепляет подбетонку и повышает надежность подземной части строения
Особенности бетонной подготовки
Основные положения, содержащиеся в строительных нормах и своде правил, связанные с выполнением подушки на базе тощего бетона:
- Допускается применение раствора маркой М50 и выше. Для выполнения работ используется тощий бетон, представляющий собой разновидность цементного раствора, в котором содержится не более 6% цемента класса В15. Роль наполнителя играют песок и гравий.
- Залитый массив для плит фундамента или монолитной основы должен выходить за уровень подземной части конструкции и возвышаться над ней на 100-150 мм, что обеспечивается конструкцией заблаговременно подготовленной опалубки.
- Раствор заливается на предварительно выполненную щебеночно-песчаную основу.
- Удаление воздушных пузырьков производится путем трамбования смеси.
- Защита от обезвоживания поверхности обеспечивается полиэтиленовой пленкой, которой в первые дни накрывают залитую поверхность.
Можно ли выполнять подбетонку без армирования? Какая рекомендуемая строительными нормами толщина подбетонки, выполненной без усиления? Строительные правила допускают такой вариант, для которого толщина слоя бетонного массива составляет 150-200 мм.
При обустройстве армированной основы под фундамент свод правил разрешает уменьшенную высоту основы. Толщина слоя в этом случае составляет 60-100 мм. На размер влияют масса строения, уровень залегания грунтовых вод, тип почвы.
Строительные требования предусматривают минимальную высоту бетонного слоя, который должен возвышаться над поверхностью грунта не меньше, чем на 15 см
Важно
Согласно СНиП, допуск плоскостности поверхности при формировании монолитной ленты не превышает 0,5 см на каждый метр длины и не более 5 сантиметров для цельных плит, имеющих ширину свыше 25 метров.
Использование подготовленных оснований на базе щебня позволяет уменьшить затраты на выполнение строительных мероприятий. Ведь экономится цемент, а объем расходов на приобретение щебня вполне приемлемый.
Щебеночная подготовка под основание допускается сводом правил и строительными нормами. При этом толщина слоя должна быть порядка 20 сантиметров. Слой щебня должен быть тщательно утрамбован, залит жидким битумом.
Заливка битумного раствора выполняется, если необходимо максимально насытить почву или сформировать гидроизолирующую битумную пленку. Указанный метод не обеспечивает высокой жесткости подложки, затрудняет выполнение фундаментных мероприятий.
Он широко распространен для малоответственных строительства объектов технического назначения, подсобных помещений и вспомогательных построек.
Применение профильных мембран
Сборники строительных норм и правил при подготовке оснований предусматривают использование современных технологических решений, к которым принадлежат мембраны профильного типа.
Их применение упрощает процесс формирования основы, так как исключаются виды работ, связанные с бетонированием. Отсутствие «мокрых» этапов работ обеспечивает экономию ресурсов, упрощает процесс монтажа основы.
Результат – сокращение времени подготовительных мероприятий.
Итоги
Внимательно изучив сборники с действующими строительными нормами и сводом правил, строители и проектировщики получат полное представление о требованиях к мероприятиям по подготовке основания.
После выполнения подготовительных работ с соблюдением рекомендаций нормативных документов, объект строительства будет отличаться прочностью, повышенной устойчивостью и сможет длительное время эксплуатироваться.
Ведь бетонная подушка – оптимальное решение для обеспечения надежности строения!
Источник: https://pobetony.ru/gosty-i-snip/betonnaya-podgotovka-pod-fundament/
ТРЕБОВАНИЯ К БЕТОННОМУ ПОЛУ — Эксперты по автомобильным лифтам
Минимальная прочность бетона: 3500 P.S.I.
Минимальный срок старения новой бетонной плиты: 28 дней
Минимальная толщина бетонной плиты:
Подъемы 8 500 фунтов — 10 000 фунтов: минимальная толщина 4 дюйма
12 000 фунтов — 18 000 фунтов подъемы: 6 ″ Минимальная толщина
ЗАПРЕЩАЕТСЯ устанавливать автомобильный подъемник на любой поверхности, кроме бетона, с учетом минимальной прочности на сжатие, старения, армирования и толщины, указанных в таблице выше.ВСЕ ПОДЪЕМНИКИ ДОЛЖНЫ БЫТЬ УСТАНОВЛЕНЫ ТОЛЬКО НА БЕТОН
ЗАПРЕЩАЕТСЯ устанавливать какие-либо автомобильные подъемники на расширительных швах или на растрескавшемся или дефектном бетоне. Все анкеры диаметром 3/4 дюйма должны находиться на расстоянии не менее 8 дюймов от любых расширительных швов, контрольных швов или других несоответствий в бетоне.
НИКОГДА НИКОГДА не устанавливайте автомобильный подъемник на бетон, смешанный вручную.
Необходимо соблюдать спецификации бетона. В противном случае автоподъемник может выйти из строя, что приведет к травмам или смерти.Все наши автомобильные подъемники снабжены инструкциями по эксплуатации пола и бетона. Соблюдение этих спецификаций обеспечит безопасную и успешную установку.
Если пол не соответствует этим минимальным требованиям к ранее существовавшему перекрытию, предлагается построить плиту, как указано ниже в Рекомендациях по новым плитам.
Температурные стержни — это стальные стержни, расположенные горизонтально (по длине) в бетонных плитах для предотвращения образования трещин из-за перепадов температуры или высыхания; размещены перпендикулярно основным арматурным стержням (короткий пролет).Температурные стержни размещаются под прямым углом к основным арматурным стержням.
Примечание 1: Температурные стержни — это стальные стержни, расположенные горизонтально (по длине) в бетонных плитах для предотвращения образования трещин из-за изменений температуры или высыхания; размещены перпендикулярно основным арматурным стержням (короткий пролет). Температурные стержни размещаются под прямым углом к основным арматурным стержням.
Дополнительный слой 6 x 6 — 10/10 WWF на средней высоте новой плиты был бы целесообразен в любом чрезвычайно жарком или холодном климате, чтобы контролировать растрескивание из-за колебаний температуры и усадки.В местах расположения анкерных болтов сетку WWF держите только ниже отметки анкеровки, чтобы избежать столкновения с проволокой при сверлении.
Примечание 2: Основная арматурная и низкотемпературная сталь должна быть деформированными стержнями класса 60
Примечание 3: Допуск на расстояние между стержнями в каждом направлении должен быть указан, плюс или минус 1 дюйм. Кроме того, необходимо использовать количество стержней, указанное в таблице.
Примечание 4: Указанные габаритные размеры бетона и арматура приведены для допустимой несущей способности фундаментного основания не менее 2 000 фунтов./ кв. фут (1 тонна на квадратный фут). Многие глины, и большинство из них твердая глина, твердая глина, песчано-глинистые смеси, сухой песок, крупнозернистый сухой песок, сухой песок и иловые смеси, песчано-гравийные смеси и грунты гравийного типа соответствуют или превышают эту допустимую несущую способность. Если есть вопросы относительно допустимой несущей способности фундамента, следует проконсультироваться с инженером по испытанию грунтов. Особого внимания требуют ситуации, когда допустимая несущая способность ниже этого значения.
Новые бетонные плиты должны соответствовать вышеуказанным свойствам, прежде чем установка лифта будет признана приемлемой.Новая плита должна быть полностью окружена существующим асфальтовым или бетонным полом. Сертифицированную документацию по прочности следует получить у фирмы, поставляющей бетонную смесь во время заливки. Эти новые бетонные плиты спроектированы как «автономные» и не учитывают вклад прочности окружающего бетона. Может быть желательно привязать и укрепить новую плиту к ранее существовавшему окружающему полу. Следует проявлять осторожность, чтобы расположить арматурные стержни вдали от позиций анкеров конкретного подъемника.
Эти новые бетонные плиты не учитывают установку второго этажа или установку на первом этаже с подвалом под ним. В этом случае нельзя устанавливать лифт без письменного разрешения архитектора здания.
Все анкеры диаметром 3/4 дюйма должны находиться на расстоянии не менее 6 дюймов от любых компенсационных швов, контрольных швов или других дефектов в бетоне.
НИКОГДА не замешивайте бетон вручную.
Предоставлено Bendpak.com
Networx: Заливка бетонной плиты — Образ жизни — The Florida Times-Union
Бетон — один из самых удобных строительных материалов. Он прочный и недорогой, но при этом может быть удивительно привлекательным с помощью современных бетонных покрытий. Узнайте, как залить бетонную плиту, которая является основой для многих проектов по созданию сложных ландшафтов на открытом воздухе.
Расчет толщины и армирования
Цель заливки бетонной плиты определяет толщину бетона и тип арматуры, которую необходимо установить.
Парковка. Бетон для дополнительной стоянки, будь то для автомобилей, используемых каждый день или только время от времени (например, дома на колесах или лодке), должен иметь толщину не менее 6 дюймов и армированный арматурой.
Гараж. Подобно парковке, бетонный пол в гараже должен быть достаточно толстым и прочным, чтобы выдержать вес одного или нескольких автомобилей.
Патио или терраса у бассейна. Здесь подойдет бетонная плита толщиной 4 дюйма. Хотя вы можете армировать его арматурой, проволочной сетки должно быть достаточно.
Фундамент летней кухни. Толщина и армирование зависят от объектов, которые вы планируете установить. Каменная дровяная печь для пиццы или полноразмерная плита, а также открытый холодильник и барная стойка с влажной атмосферой на открытом воздухе потребуют более толстого бетона и более прочного армирования, чем небольшой гриль.
Этаж хозяйственной постройки. Плита от 3 до 4 дюймов подойдет для пола склада или сарая для инструментов, мастерской, садового сарая или домика для игр.
Этапы заливки бетонной плиты
1. Обратитесь в местную строительную администрацию.Проверьте, нужно ли вам разрешение для вашего проекта. Вы также должны узнать о неудачах, чтобы знать, какое расстояние нужно оставить между линией участка и вашим строением.
2. Позвоните по номеру для разового вызова. Перед земляными работами проверьте положение всех подземных кабелей.
3. Выкопайте и при необходимости выровняйте. Наклоните плиту патио примерно на дюйм на 12 футов от вашего дома, чтобы позволить дождю стекать и избежать повреждения фундамента.
4. Установить подоснову. Добавьте 1–1 дюйм гравия на каждый дюйм бетона, который вы планируете укладывать.Утрамбуйте, чтобы получить прочное основание, которое не оседает. Затем смочите садовым шлангом; это сводит к минимуму растрескивание бетона из-за усадки.
5. Формы сборки. Установите колышки на каждом углу будущей плиты. Прикрепите две боковые опалубочные доски (доски 2 x 12 на 3 дюйма длиннее предполагаемой ширины плиты) к угловым стойкам. Затем добавьте две торцевые доски той длины, которая вам нужна, так, чтобы боковые панели находились под точным углом в 90 градусов. Крепление гвоздей к формам с интервалом в 2 фута.
6. Замесить бетон.Смешайте 1 часть портландцемента, 2 части песка и 4 части заполнителя (обычно гравия) в бетономешалке или тачке. Затем добавьте воды, чтобы получилась рабочая смесь. (Слишком много воды ослабит бетон и вызовет более быстрое растрескивание.)
7. Залейте бетон. Насыпьте бетон в форму так, чтобы самые высокие вершины были на 2-3 дюйма выше опалубки.
8. Распространение. Взбейте бетон, чтобы он равномерно распределился по вашей форме с плоской верхней поверхностью.
9. Стяжка. Выровняйте бетон, равномерно проведя по нему стяжкой (прямой 2 x 4).Работайте с самой высокой точки вниз по склону. Убедитесь, что все места заполнены равномерно.
10. Поплавок. Используйте поплавок для сжатия заполнителя так, чтобы гладкий бетон без гравия лежал на поверхности вашей плиты.
11. Отделка метлой. Создайте противоскользящую поверхность, протерев бетон щеткой с жесткой щетиной.
12. Обрежьте контрольные швы. Создайте контрольные стыки примерно через каждые 5-6 футов, чтобы минимизировать растрескивание. Они должны быть равны глубине перекрытия (например, 1 дюйм для 4-дюймовой плиты или 1 дюйм для 6-дюймовой плиты.)
13. Кромка. Сгладьте края плит с помощью кромочного инструмента.
14. Лечение. Дайте плите застыть для максимальной прочности и устойчивости. Подождите 24 часа до ходьбы по новому бетону, за 10 дней до вождения автомобиля и за 28 дней до движения по нему более тяжелого транспортного средства. В этот период поддерживайте бетон во влажном состоянии с помощью распыления или лужения.
Советы
Лучшая погода для заливки бетонной плиты — не слишком жаркая или холодная 70 градусов — идеальный вариант.
Если вы нанимаете профессионала для выполнения работы, получите несколько предложений и сравните.
Перед заливкой бетонной плиты проложите коммунальную электрическую проводку, водопровод или газ.
Накройте близлежащие стены дома и ландшафт для защиты от брызг.
Акцент нового патио с декоративной отделкой из бетона.
Лаура Фирст пишет для networx.com.
Требования к бетонному полу — двухстоечные и четырехстоечные подъемники
Загрузить Требования к бетонным перекрытиям 2019 (pdf)
Существующие минимальные требования к этажам:
| ДВЕ МОДЕЛИ | МИН.ТОЛЩИНА | МИН. КОМП. ПРОЧНОСТЬ | УСИЛЕНИЕ | РАССТОЯНИЕ |
| МОДЕЛИ СЕРИИ GP ‐ 7 | 4-1 / 4 « | 3000 фунтов на квадратный дюйм / 28 дней выдержки | # 6 Арматура | 12 из |
| МОДЕЛИ СЕРИИ XPR ‐ 9 | 4-1 / 4 « | 3000 фунтов на квадратный дюйм / 28 дней выдержки | # 6 Арматура | 12 из |
| МОДЕЛИ СЕРИИ XPR ‐ 10 | 4-1 / 4 « | 3000 фунтов на квадратный дюйм / 28 дней выдержки | # 6 Арматура | 12 из |
| МОДЕЛИ СЕРИИ XPR ‐ 12 | 6 1/2 « | 3000 фунтов на квадратный дюйм / 28 дней выдержки | # 6 Арматура | 10 из |
| МОДЕЛИ СЕРИИ XPR ‐ 15 | 8 « | 3000 фунтов на квадратный дюйм / 28 дней выдержки | # 6 Арматура | 10 из |
| МОДЕЛИ СЕРИИ XPR ‐ 18 | 8 « | 3000 фунтов на квадратный дюйм / 28 дней выдержки | # 6 Арматура | 10 из |
| ПОДЪЕМНИКИ 4-ПОС. | МИН.ТОЛЩИНА | МИН. КОМП. ПРОЧНОСТЬ | УСИЛЕНИЕ | РАССТОЯНИЕ |
| МОДЕЛИ СЕРИИ HD ‐ 7 | 4-1 / 4 « | 3000 фунтов на квадратный дюйм / 28 дней выдержки | Только температура ACI * | Только температура ACI * |
| МОДЕЛИ СЕРИИ HD ‐ 9 | 4-1 / 4 « | 3000 фунтов на квадратный дюйм / 28 дней выдержки | Только температура ACI * | Только температура ACI * |
| МОДЕЛИ СЕРИИ GP ‐ 9 | 4-1 / 4 « | 3000 фунтов на квадратный дюйм / 28 дней выдержки | Только температура ACI * | Только температура ACI * |
| МОДЕЛИ СЕРИИ PL ‐ 6K | 4-1 / 4 « | 3000 фунтов на квадратный дюйм / 28 дней выдержки | Только температура ACI * | Только температура ACI * |
| МОДЕЛИ СЕРИИ HDS ‐ 14 | 4-1 / 4 « | 3000 фунтов на квадратный дюйм / 28 дней выдержки | Только температура ACI * | Только температура ACI * |
| МОДЕЛИ СЕРИИ HDS ‐ 18 | 4-1 / 4 « | 3000 фунтов на квадратный дюйм / 28 дней выдержки | Только температура ACI * | Только температура ACI * |
| МОДЕЛИ СЕРИИ HDS ‐ 27 | 4-1 / 4 « | 3000 фунтов на квадратный дюйм / 28 дней выдержки | Только температура ACI * | Только температура ACI * |
| МОДЕЛИ СЕРИИ HDSO ‐ 14 | 4-1 / 4 « | 3000 фунтов на квадратный дюйм / 28 дней выдержки | # 6 Арматура | 12 из |
| HD-973P | 6-1 / 2 « | 3000 фунтов на квадратный дюйм / 28 дней выдержки | Только температура ACI * | Только температура ACI * |
| МОДЕЛИ СЕРИИ HDS-35 | 6-1 / 2 « | 3000 фунтов на квадратный дюйм / 28 дней выдержки | Только температура ACI * | Только температура ACI * |
| МОДЕЛИ СЕРИИ HDS-40 | 6-1 / 2 « | 3000 фунтов на квадратный дюйм / 28 дней выдержки | Только температура ACI * | Только температура ACI * |
* Пол должен быть выдержан в соответствии со спецификациями Американского института бетона.Пол не требует армирования, но рекомендуется использовать минимум проволочной сетки.
Существующие бетонные полы необходимо просверлить для проверки минимальной толщины пола и подтверждения строительных чертежей. Необходимо получить образец керна и испытать его для проверки минимальной прочности пола на сжатие. При исследовании свойств пола сверьтесь с чертежами здания, чтобы убедиться в правильности армирования пола. Для всех двухстоечных подъемников требуется сплошная одинарная плита. Наложение расширительных швов или позиционирование стоек на отдельных плитах недопустимо.
- ЗАПРЕЩАЕТСЯ устанавливать подъемники BendPak на любой поверхности, кроме бетона, с соблюдением минимальных значений прочности на сжатие, старения, армирования и толщины, указанных в таблица выше. ВСЕ ПОДЪЕМНИКИ BENDPAK ДОЛЖНЫ УСТАНОВИТЬСЯ ТОЛЬКО НА БЕТОН.
- ЗАПРЕЩАЕТСЯ устанавливать подъемники BendPak на компенсационных швах, а также на бетоне с трещинами или дефектами. Все анкеры диаметром 3/4 дюйма должны находиться на расстоянии не менее 6 дюймов от любого компенсационные швы, контрольные швы или другие несоответствия в бетоне.
- Все анкеры должны располагаться на расстоянии не менее 6 дюймов от любых деформационных швов, контрольных швов или других дефектов в бетоне. Обратитесь к производителю анкера. спецификации для конкретной информации относительно краевых расстояний и требований к расстоянию между болтами.
- НИКОГДА не устанавливайте подъемник BendPak на бетон, смешанный вручную.
- ЗАПРЕЩАЕТСЯ устанавливать какие-либо лифты BendPak на уровне второго этажа или на любом первом этаже с подвалом под ним без письменного разрешения архитектора здания. и предварительная консультация и одобрение BendPak.
- Если пол не соответствует этим минимальным требованиям к ранее существовавшему перекрытию, рекомендуется построить плиту, как указано ниже в Рекомендациях по новым плитам. Если расположение подъемника в сейсмической зоне, свяжитесь с BendPak для проектирования сейсмических плит.
Рекомендации по новым бетонным плитам:
Информация, содержащаяся в этом дополнении, заменяет любую другую информацию, содержащуюся в прилагаемом руководстве. Эта информация представлена для рекомендаций по проектированию новой бетонной плиты в случае, если уже существующий этаж не соответствует минимальным требованиям применимого типа лифта.Пожалуйста, внимательно прочтите все приведенные ниже инструкции перед изготовлением новой плиты.
НОВАЯ БЕТОННАЯ ПЛИТА ТРЕБОВАНИЯ К БЕТОНУ:
| Минимальная прочность бетона на разрыв: | 4,000 фунтов на квадратный дюйм |
| Минимальное старение новой бетонной плиты: | 28 дней (время отверждения) |
| Минимальная толщина бетонной плиты: | См. Новую таблицу перекрытий и рисунки ниже |
| Минимальная ширина и длина плиты: | См. Новую таблицу перекрытий и рисунки ниже |
| ПОДЪЕМНЫЕ МОДЕЛИ | МИН.ТОЛЩИНА ПЛИТЫ | Вт МИН. ШИРИНА ПЛИТЫ | л МИН. ДЛИНА ПЛИТЫ | R РАЗМЕР УСИЛЕНИЯ (СМ. ПРИМ. 1 и 2) | S1 и S2 РАССТОЯНИЕ ДЛЯ УСИЛЕНИЯ (СМ. ПРИМ. 3) | D ДИАМЕТР АНКЕРА | I ДЛИНА АНКЕРА |
| GP ‐ 7 СЕРИИ | 12 « | 48 дюймов мин. | 12 дюймов шире, чем OA Ширина подъема | 8 — # 4 — Основные стержни 21 — # 4 — Температурные стержни | 6 дюймов — длинные стержни 8 дюймов — короткие стержни | 3/4 дюйма | 5 « |
| XPR ‐ 9 СЕРИИ | 12 « | 48 дюймов мин. | 12 дюймов шире, чем OA Ширина подъема | 8 — # 4 — Основные стержни 21 — # 4 — Температурные стержни | 6 дюймов — длинные стержни 8 дюймов — короткие стержни | 3/4 дюйма | 5 « |
| XPR ‐ 10 СЕРИЯ | 12 « | 48 дюймов мин. | 12 дюймов шире, чем OA Ширина подъема | 8 — # 4 — Основные стержни 21 — # 4 — Температурные стержни | 6 дюймов — длинные стержни 8 дюймов — короткие стержни | 3/4 дюйма | 5 « |
| XPR ‐ 12 СЕРИИ | 12 « | 72 дюйма Мин. | 12 дюймов шире, чем OA Ширина подъема | 12 — # 4 — Основные стержни 23 — # 4 — Температурные стержни | 6 дюймов — длинные стержни 8 дюймов — короткие стержни | 3/4 дюйма | 7 « |
| XPR ‐ 15 СЕРИЯ | 12 « | 72 дюйма Мин. | 12 дюймов шире, чем OA Ширина подъема | 12 — # 4 — Основные стержни 23 — # 4 — Температурные стержни | 6 дюймов — длинные стержни 8 дюймов — короткие стержни | 3/4 дюйма | 7 « |
| XPR ‐ 18 СЕРИЯ | 12 « | 72 дюйма Мин. | 12 дюймов шире, чем OA Ширина подъема | 12 — # 4 — Основные стержни 23 — # 4 — Температурные стержни | 6 дюймов — длинные стержни 8 дюймов — короткие стержни | 3/4 дюйма | 7 « |
| HD ‐ 7 СЕРИЯ | 12 « | мин. 24 дюйма * | мин. 24 дюйма * | 8 — стержни № 4 | 6 дюймов — в каждую сторону / крест-накрест | 3/4 дюйма | 5 « |
| HD ‐ 9 СЕРИИ | 12 « | мин. 24 дюйма * | мин. 24 дюйма * | 8 — стержни № 4 | 6 дюймов — в каждую сторону / крест-накрест | 3/4 дюйма | 5 « |
| GP ‐ 9 СЕРИИ | 12 « | мин. 24 дюйма * | мин. 24 дюйма * | 8 — стержни № 4 | 6 дюймов — в каждую сторону / крест-накрест | 3/4 дюйма | 5 « |
| PL ‐ 6K СЕРИИ | 12 « | мин. 24 дюйма * | мин. 24 дюйма * | 8 — стержни № 4 | 6 дюймов — в каждую сторону / крест-накрест | 3/4 дюйма | 6 « |
| HDS ‐ 14 СЕРИИ | 12 « | мин. 24 дюйма * | мин. 24 дюйма * | 8 — стержни № 4 | 6 дюймов — в каждую сторону / крест-накрест | 3/4 дюйма | 5 « |
| HDS ‐ 18 СЕРИЯ | 12 « | мин. 24 дюйма * | мин. 24 дюйма * | 8 — стержни № 4 | 6 дюймов — в каждую сторону / крест-накрест | 3/4 дюйма | 7 « |
| HDS ‐ 27 СЕРИИ | 12 « | 48 дюймов Мин. * | 48 дюймов Мин. * | 16 — стержни № 4 | 6 дюймов — в каждую сторону / крест-накрест | 3/4 дюйма | 7 « |
| HDSO ‐ 14 СЕРИИ | 12 « | 48 дюймов Мин. * | 48 дюймов Мин. * | 16 — стержни № 4 | 6 дюймов — в каждую сторону / крест-накрест | 3/4 дюйма | 5 « |
| HD-973P | 12 « | 48 дюймов Мин. * | 48 дюймов Мин. * | 16 — стержни № 4 | 6 дюймов — в каждую сторону / крест-накрест | 3/4 дюйма | 5 « |
| HDS-35 СЕРИИ | 12 « | 48 дюймов Мин. * | 48 дюймов Мин. * | 16 — стержни № 4 | 6 дюймов — в каждую сторону / крест-накрест | 3/4 дюйма | 7 « |
| HDS-40 СЕРИИ | 12 « | 48 дюймов Мин. * | 48 дюймов Мин. * | 16 — стержни № 4 | 6 дюймов — в каждую сторону / крест-накрест | 3/4 дюйма | 7 « |
* Четыре отдельных плиты сформированы на каждой стойке.
Температурные стержни — это стальные стержни, расположенные горизонтально (по длине) в бетонных плитах для предотвращения образования трещин из-за перепадов температуры или высыхания; размещены перпендикулярно основным арматурным стержням (короткий пролет). Температурные стержни размещаются под прямым углом к основным арматурным стержням.
Примечание 1: Температурные стержни — это стальные стержни, размещенные горизонтально (по длине) в бетонных плитах для предотвращения образования трещин из-за изменений температуры или высыхания; размещены перпендикулярно основным арматурным стержням (короткий пролет).Температурные стержни размещаются под прямым углом к основным арматурным стержням.
Дополнительный слой 6 x 6 — 10/10 WWF на средней высоте новой плиты рекомендуется в любом чрезвычайно жарком или холодном климате для контроля растрескивания из-за колебаний температуры и усадки. В местах расположения анкерных болтов сетку WWF держите только ниже отметки анкеровки, чтобы избежать столкновения с проволокой при сверлении.
Примечание 2: Основная арматурная и низкотемпературная сталь должна быть деформированными стержнями класса 60
Примечание 3: Допуск на расстояние между стержнями в каждом направлении должен соответствовать указанному значению плюс или минус 1 дюйм.Кроме того, необходимо использовать количество стержней, указанное в таблице.
Примечание 4: Указанные габаритные размеры бетона и арматура приведены для допустимой несущей способности фундаментного основания не менее 2 000 фунтов / кв. Фут (1 тонна на квадратный фут). Многие глины, и большинство из них твердая глина, твердая глина, песчано-глинистые смеси, сухой песок, крупнозернистый сухой песок, сухой песок и иловые смеси, песчано-гравийные смеси и грунты гравийного типа соответствуют или превышают эту допустимую несущую способность. Если есть вопросы относительно допустимой несущей способности фундамента, следует проконсультироваться с инженером по испытанию грунтов.Особого внимания требуют ситуации, когда допустимая несущая способность ниже этого значения.
Новые бетонные плиты должны соответствовать вышеуказанным свойствам, прежде чем установка лифта будет признана приемлемой. Новая плита должна быть полностью окружена существующим асфальтовым или бетонным полом. Сертифицированную документацию по прочности следует получить у фирмы, поставляющей бетонную смесь во время заливки. Эти новые бетонные плиты спроектированы как «автономные» и не учитывают вклад прочности окружающего бетона.Может быть желательно привязать и укрепить новую плиту к ранее существовавшему окружающему полу. Следует проявлять осторожность, чтобы расположить арматурные стержни вдали от позиций анкеров конкретного подъемника.
Эти новые бетонные плиты не учитывают установку второго этажа или установку на первом этаже с подвалом под ним. В этом случае нельзя устанавливать лифт без письменного разрешения архитектора здания.
Все анкеры диаметром 3/4 дюйма должны находиться на расстоянии не менее 6 дюймов от любых компенсационных швов, контрольных швов или других дефектов в бетоне.
НИКОГДА не замешивайте бетон вручную.
Загрузить Требования к бетонным перекрытиям 2019 (pdf)
РЕКОМЕНДАЦИИ ПО НОВЫМ БЕТОННЫМ ПЛИТАМ
МОДЕЛИ С ДВУМЯ ПОДЪЕМНИКАМИ
РЕКОМЕНДАЦИИ ПО НОВЫМ БЕТОННЫМ ПЛИТАМ
МОДЕЛИ С ЧЕТЫРЕМЯ ПОДЪЕМНИКА
Подготовка площадки под гараж | Как построить фундамент гаража
Эта информация о том, как построить фундамент гаража, предназначена ТОЛЬКО в качестве ОБЩЕГО ПРИНЯТИЯ.
Мы советуем обратиться за помощью к профессиональному подрядчику, который знаком с местными условиями и требованиями, чтобы обеспечить лучший фундамент для вашего гаража.
Подготовка площадки для наших сборных гаражей и гаражей двойной ширины обычно требует больше усилий, чем подготовка основных навесов, в зависимости от ваших потребностей, ваших предпочтений или местных требований.
Помните, за исключением стиля доски и обрешетки, все наши сборные гаражи — на 1 или 2 машины — поставляются стандарт с деревянным полом.Если вас беспокоит ухудшение состояния из-за влажности почвы, подумайте об этих обновлениях:
Балки пола, обработанные давлением: добавьте 20 долларов за квадратный фут.
Фанера, обработанная давлением: прибавьте 0,80 долл. США за квадратный фут.
Обработанные под давлением балки и пол из фанеры: добавьте $ 1,00 / квадратный фут
* Любой из наших сборных гаражей может быть построен без пола.
Другой вариант настила — бетонная плита. По нашему опыту, некоторые местные муниципалитеты ТРЕБУЮТ бетонный пол для любого здания, в котором размещаются автомобили или грузовики.Обязательно ознакомьтесь с требованиями в том месте, где вы живете, прежде чем заказывать один из наших модульных гаражей.
Для гаража с полом : ровная площадка из щебня размером ¾ дюйма, глубиной от 3 до 4 дюймов, на 1 фут больше размера гаража (например, для здания 20 x 24 фута потребуется подушка на минимум 21 ‘x 25’). Это позволит улучшить дренаж по периметру гаража от дождя / таяния снега, капающего с карнизов — особенно, если вы не планируете устанавливать водосточные желоба. Брызги воды прямо на землю, в конечном итоге, создадут грязную зону и будут брызгать на стены гаража.Основание из гравия не дает этому продлить срок службы здания.
Чтобы подготовить гравийное основание , удалите дерн с участка, который немного больше, чем площадка, выровняйте участок, удалив грязь там, где это необходимо, и разложите гравий на глубину примерно трех или четырех дюймов. Утрамбуйте гравий куском 4 на 4 или металлической трамбовкой до тех пор, пока он не распределится равномерно, а площадка не станет плоской и ровной.
- «Рама» из обработанных давлением полноприводных автомобилей или цементных блоков поможет удерживать камень на месте и создать более аккуратный вид; однако это не обязательно.
Для гаража БЕЗ пола — ПОСТРОЕННЫЙ НА МЕСТЕ : Подготовьте ровную бетонную плиту толщиной не менее 4 дюймов и точными внешними размерами вашего гаража.Вы можете выбрать плиту толщиной 6 дюймов для более крупных транспортных средств, таких как грузовики или внедорожники.
Обрамите периметр пиломатериалом, обработанным давлением, размером 2 x 4 дюйма или 2 x 6 дюймов, за исключением того места, где будет дверь, и закрепите древесину в бетоне с помощью J-образных болтов. Очень важно подготовить бетонную подушку, включая деревянную раму, к точному размеру здания, потому что мы расширяем наружный сайдинг вниз по плите и раме, чтобы вода не попадала обратно в гараж.
Имейте в виду, что если вы выберете бетонную плиту в качестве пола гаража, наши плотники предварительно построят гараж в нашем магазине, привезут детали на ваш участок и построят его на плите.За работу на месте будет взиматься дополнительная плата.
Хотя строительство модульных гаражей на месте потребует дополнительных затрат на оплату труда, наши клиенты имеют преимущество в возможности модернизации до более высокого гаража — 8-дюймовые боковые стены по сравнению с 7-дюймовыми боковыми стенами.
Как всегда, звоните нам по телефону 1-888-447-4337, если у вас есть вопросы по подготовке площадки под гараж!
Какой толщины должен быть бетон для пола гаража?
Какой толщины должен быть бетон для пола гаража?
При заливке пола в гараже важно, чтобы его толщина была достаточной для обеспечения прочности и долговечности бетона.Использование более толстого слоя бетона для пола вашего гаража будет более рентабельным в долгосрочной перспективе, сводя к минимуму возможное возникновение изгибов и трещин. Необходимая толщина бетона определяется предполагаемым использованием гаража; прежде всего вес, который будет поддерживать бетон.
Важно понимать порог веса, который может выдержать данный слой бетона, чтобы вы могли убедиться, что используете правильное количество бетона для пола вашего гаража.Использование слишком большого количества бетона повлечет за собой неоправданно более высокие затраты; однако заливка бетона до тонкости нарушит структурную целостность пола в гараже.
Следующие пункты помогут вам лучше понять количество бетона, необходимое для пола вашего гаража, в зависимости от использования и веса, который он будет поддерживать.
Легковые автомобили
Для меньшего количества автомобилей потребуется меньшее количество бетона. Мы рекомендуем использовать от одного до двух легких автомобилей или грузовиков не менее четырех дюймов бетона.Если вы планируете увеличить объем использования в будущем или планируете увеличить размер вашего автомобиля, следует залить более толстый слой бетона.
Средние автомобили
Автомобили среднего размера требуют более толстого бетонного основания для заливки. Мы рекомендуем, чтобы для одного-двух автомобилей среднего размера или грузовиков среднего размера бетон был толщиной шесть дюймов. Это обеспечит более прочную основу и снизит вероятность появления трещин при более высокой нагрузке.
Тяжелые автомобили
Тяжелым автомобилям потребуется еще более толстое основание. Для двух больших автомобилей или грузовиков мы рекомендуем залить не менее шести-восьми дюймов бетона для пола в гараже.
Наша рекомендация
Если вы не уверены в будущем использовании пола в гараже, рекомендуется залить более толстый слой бетона, чем требуется в настоящее время. Для большинства бытовых гаражей будет достаточно шестидюймовой плиты из бетона. Бетонная плита толщиной более шести дюймов может понадобиться только тогда, когда в пространстве будет наблюдаться постоянное движение гораздо более тяжелых транспортных средств.
Первое знакомство
Правильная толщина бетона для пола в гараже поможет избежать любых проблем в будущем, таких как образование трещин. Намного легче сделать это правильно с первого раза, так как перекрытие существующего бетона новым слоем приведет к гораздо более хрупкой структуре, и проблемы с растрескиванием могут сохраниться. Попытка исправить проблемы, возникшие в результате недостаточной толщины бетона, также потребует значительных затрат.Следуя нашим рекомендациям, вы можете убедиться, что ваш бетонный пол является прочным и поддерживающим, что приведет к фантастическому гаражному пространству, которое останется стабильным и прочным на долгие годы.
Что еще мне следует учесть?
Хотя толщина бетона имеет первостепенное значение для устойчивости пола гаража, это не единственный фактор, способствующий этому. Есть много других проблем, которые необходимо решить, чтобы пол в гараже мог выдержать вес, который на него лежит.Подготовка и уплотнение основания внизу, чтобы оно было прочным и ровным, что чрезвычайно важно. Неровное основание приведет к изгибу и растрескиванию плиты. Уплотнение слоя заполнителя толщиной не менее четырех дюймов перед заливкой бетона значительно облегчит выравнивание бетона, обеспечит слой изоляции и позволит влаге уйти. Также можно использовать пароизоляцию, чтобы предотвратить проникновение влаги через бетонный пол гаража. Для создания границы для бетона следует использовать окантовочные формы.Это легко сделать, прибив деревянные доски в форме прямоугольника, который будет содержать бетон при заливке. Арматурная сетка также может обеспечить дополнительную поддержку; однако это не важно, если соотношение бетонной смеси правильное и участок подготовлен должным образом. Другие шаги, включая правильную утрамбовку залитого бетона и использование усадочных швов или канавок, могут помочь сохранить устойчивость бетонной плиты. Бетонному полу в гараже потребуется около десяти дней для правильного отверждения.В это время он должен быть соответствующим образом укрыт и защищен от дождя.
Я знаю толщину бетона, которая нужна мне для пола в гараже. Что мне теперь делать?
После того, как вы определили толщину бетона, необходимую для пола вашего гаража, вы можете рассчитать общий объем бетона, который вам понадобится для вашего проекта, используя Concrete Singh Concrete Calculator. После ввода ширины, длины и высоты (толщины) бетона, необходимого для пола вашего гаража, калькулятор сгенерирует требуемый объем бетона в кубических метрах.Это значительно упростит размещение вашего заказа и поможет обеспечить доставку достаточного количества бетона в день установки.
Вот и все
Определив правильную толщину бетона для пола вашего гаража и рассчитав точный объем бетона, необходимый для проекта, дела пойдут намного более гладко. Успех проекта бетонирования сводится к подготовке: подготовка грунта, удержание бетона, заказ нужного количества бетона и понимание методов, которые необходимо использовать, чтобы гарантировать, что бетон затвердеет правильно, без изгибов и трещин. .Это особенно важно при заливке бетона для пола гаража. Надеемся, это поможет. Удачи тебе с твоим проектом!
Допустимые допуски для плит подвала в жилых домах
Отделка плиты подвала требует виброрейки для консолидации и установки окончательной отметки плиты перед первоначальной установкой и оставшейся частью отделочной операции.
Вопрос: У нас близится к завершению проект, по которому мы подготовили плиту пола толщиной 3,5 дюйма. Мы заказали и уложили достаточно бетона, чтобы оправдать измерения, и теперь домовладелец обсуждает толщину своей цокольной плиты.Владелец проделал отверстие в ванной, и его толщина составляла всего 2,75 дюйма. Есть ли на это комментарий или стандарт? Мы считаем, что очень сложно точно контролировать толщину, когда земляной слой состоит из гороха. — Подрядчик (Индиана)
Ответ: Эта проблема является распространенным приложением конфликта между минимальными требованиями к производительности и признанным допуском конструкции. Естественно и практично определить необходимость допуска во время строительства, если безопасность жизни, качество работы или долговечность не поставлены под угрозу.Вот почему были созданы минимумы кода. Однако допуски не определяются общими строительными нормами, в данном случае Международным жилищным кодексом (IRC), поскольку они часто устанавливаются со ссылкой на утвержденные документы. В случае бетонных конструкций основным документом, на который ссылаются, является Стандарт допусков ACI 117.
В этом документе для монолитных плит на земле есть три применимых допуска:
4.4.1 Верхняя поверхность плит Плиты на земле…………………………………. ± 3/4 дюйма
4.4.5 Мелкозернистый грунт непосредственно под плитами на земле …………… ± 3/4 дюйма
В этих двух допусках учитываются проблемы, возникающие между контролем верхней и нижней поверхности. Верхняя поверхность является мерой техники чистовой обработки и точности укладки, в то время как нижняя поверхность является мерой состояния земляного полотна и изменчивости уплотнения и размера заполнителя или выемки грунта.Этот второй допуск, как указано в комментарии к этому разделу, специально установлен для облегчения установки плит, которые могут соответствовать требованиям норм толщины, но с учетом воздействия подготовленного земляного полотна. Окончательный допуск от ACI 117 обеспечивает:
4.5.4 Толщина грунтовых плит
Среднее значение по всем образцам …………………………. …… –3/8 дюйма
Отдельный образец………………………………………. –3/4 дюйма
Здесь напрямую указывается толщина плиты. Эти допуски вызывают два момента.
Во-первых, к любой части плиты может быть применен допуск. В случае, если отдельная область выходит за пределы допуска, или если есть опасения, что значительный объем плиты будет затронут, отбор проб плиты может продолжиться, чтобы гарантировать, что весь элемент не выпадет за пределы допустимого диапазона. в среднем.Это предназначено для обеспечения работоспособности плиты по всей площади. Соответственно, в этом разделе допусков по-прежнему в комментариях содержится информация, позволяющая указать, что при отборе образцов для рассматриваемого сляба его толщина выходит за пределы допуска. Возможно, наиболее применимым к жилому подвалу будет следующее положение:
4.5.4.1 Минимальное количество образцов толщины плиты,
при отборе, должно составлять четыре (4) на каждые 5000 футов 2 или его часть
.
Другими словами, если есть достаточно проблем, чтобы гарантировать выбор толщины путем отбора кернов, в большом доме необходимы только четыре. Средняя из этих четырех толщин не должна отличаться более чем на 3/8 дюйма от указанной минимальной толщины, которую IRC предоставляет как 3,5 дюйма.
Абсолютная минимальная толщина бетонной плиты, предоставленная IRC, — это только часть информации, которую следует учитывать. Это требование совпадает с минимальным требованием к прочности бетона, указанным в Таблице R402.2 из 2500 фунтов на квадратный дюйм. В качестве стандарта минимальных требований IRC не предусматривает повышенную прочность или другие конструктивные решения в своих предписывающих критериях. Вместо этого IRC R104.11 устанавливает, что минимальные положения кодекса могут быть отменены на основании анализа и интерпретации предоставленной информации в поддержку альтернативной позиции.
Допуск толщины плиты (Положение № 9 ASCC), опубликованный Американским обществом бетонных подрядчиков, дополнительно определяет необходимость приемлемых допусков для строительства бетонных плит.Он признает, что такие вариации толщины плиты обычно не являются проблемой дефицита прочности. Хотя в документе изложена информация о допустимых средних значениях отклонений, возможно, наиболее благоприятным утверждением является то, что увеличение прочности бетона компенсирует уменьшение толщины плиты. Это также относится к средним отклонениям толщины плиты. Аналогичным образом, коэффициент k земляного полотна или уровень уплотнения также могут быть увеличены, чтобы учесть стандартные отклонения толщины плиты.
Достижение запланированных характеристик бетонных плит очень важно. Понимание точек контроля и изменения подхода к адаптации к изменениям условий на объекте и другим факторам важно для обеспечения качества. Это также значительно облегчает обсуждение позитивных и конструктивных решений при возникновении проблем на местах.
Изд. Примечание: Хотите узнать больше? Свяжитесь с исполнительным директором CFA Джимом Бати по телефону 866-232-9255 или по электронной почте jbaty @ cfawalls.орг. CFA — это национальная ассоциация, миссией которой является поддержка подрядчика, занимающегося монолитными работами, в качестве голоса и признанного авторитета в жилищной бетонной промышленности.
Ссылки:
1. Международный жилищный кодекс для одно- и двухквартирных домов 2015 г. , опубликованный International Code Council, Inc., 4051 West Flossmoor Road, Country Club Hills, IL 60478-5795 | Телефон: 888-422-7233 | www.iccsafe.org
2. Спецификация допусков для бетонных конструкций и материалов (ACI 117-10) и комментарии, опубликованные Американским институтом бетона, 38800 Country Club Drive, Farmington Hills, MI 48331 | Телефон: 248-848-3700 | www.Concrete.org
3. Допуски толщины перекрытий , Заявление о позиции ASCC № 9, опубликованное Американским обществом подрядчиков по бетону, 2025 г., бульвар С. Брентвуд, номер 105, Сент-Луис, штат Миссури, 63144 | 866-788-2722 | www.ascconline.org
Какая толщина бетонной плиты мне нужна
Однако обычная толщина бетонной плиты составляет около 10 см . Что бы вы ни планировали делать, ваша бетонная плита должна быть толщиной не менее 5 см. Это минимальная толщина бетонной плиты.Это только толщина бетонной плиты, и она не включает гравийную основу, если вы используете что-то подобное.
Толщина вашей бетонной плиты будет зависеть от типа плиты и ее назначения. Толщина очень важна для вашего проекта, потому что она напрямую влияет на размер цемента и бетона, которые необходимо заливать. Это, следовательно, означает больше денег на материал проекта.
Получите цитаты и полезные советы от опытных бетонщиков. Они сообщат вам, как лучше всего приступить к проекту бетонирования, и дадут вам наилучшую оценку вашего бюджета.
Какой глубины должна быть бетонная плита?
Если вам не нужна гравийная основа для бетонной плиты, вам нужно вырыть яму, достаточную для того, чтобы бетон находился на одном уровне с землей или немного над землей — опять же, на столько же, сколько и вы. хочу, чтобы это было.
Это означает, что отверстие для бетонной плиты должно иметь глубину около 10 см, для плиты толщиной 10 см, которая заливается непосредственно на землю, или для плиты толщиной 5 см с гравийным основанием глубиной 5 см. Так готовится грунт под бетонную плиту с основанием.
Разберем разные типы проектов бетонирования и необходимую для них толщину бетонных плит.
Какой толщины должна быть бетонная плита для сарая?
Возможно, вам удастся вылить бетонную плиту толщиной 7,5 см, если вы планируете построить световой навес, в котором ничего особенного не будет. Однако, если вы хотите быть в безопасности, выберите бетонную плиту толщиной 10 см.
Сначала убедитесь, что ваша бетонная плита находится в правильном месте.Проверьте правила вашего совета, потому что ваш сарай не может быть где-то еще. Получив эту информацию, отметьте почву, на которой вы хотите копать, и подготовьте опалубку для бетонирования.
Таким образом, вы увидите, нужно ли вносить корректировки, если почва зашита или есть какие-либо другие сложности.
Какой толщины должна быть гаражная плита?
Ваш гараж должен выдержать вес вашего автомобиля, а также тонны других связанных с автомобилем предметов, которые вы храните в гараже. Это означает значительный вес, поэтому не пытайтесь построить бетонный фундамент для гаража менее толщиной 15 см .Этого должно хватить для гаража на одну машину.
Если вы ведете грузовик или хотите иметь гараж на две машины меньшего размера, минимальная толщина бетонной плиты составляет 20 см . Если вы используете свой гараж для больших и груженых грузовиков, вам также необходимо герметизировать бетон и защитить его от повреждений.
Построить гараж сложнее, чем построить сарай, и вам нужно проверить, есть ли у вас на это разрешение. Вы можете бетонировать фундамент гаража прямо на своей земле, если у вас песчаная почва, которая хорошо дренирует, но если у вас есть глина или что-то подобное, вам понадобится , по крайней мере, от 15 до 20 см гравия для основания .
Каким должен быть бетон для патио?
Ваша бетонная терраса будет красивой и прочной, если ваша бетонная плита толщиной 15 см . Однако вы можете сделать бетонную плиту толщиной 10 см для патио, которая не будет выдерживать большой вес. Все зависит от размера бетонной плиты, почвы, на которой вы строите свой внутренний дворик, и веса, который вы планируете положить на свой внутренний дворик.
Например, всего два стула и небольшой стол на хорошо дренированной земле легко подойдут даже с 7.5 см . Однако, если вы хотите иметь каменные или бетонные скамейки, столы, барбекю и целые кухни на открытом воздухе, ваш минимум составляет 15 см .
Проверьте состав вашей почвы. Если ваша почва плохо дренирована, необходимо основание для бетонной плиты. Это означает выкопать яму, установить вокруг нее опалубку, засыпать гравием и залить поверх нее плиткой.
Какая толщина лучше всего подходит для бетонной проезжей части?
Ваша бетонная плита для проезда должна быть толщиной около 10 см .Для него необязательно иметь гравийное основание, но необходимо подготовить почву под ним. Это означает, что необходимо удалить все большие камни и утрамбовать почву.
Если ваша подъездная дорожка будет удерживать большегрузные автомобили, вам необходимо сделать более толстую бетонную плиту. Сделайте его не менее 12 см и нанесите герметик из вашего бетона, чтобы его не так легко повредить.
При строительстве убедитесь, что подъездная дорожка имеет уклон. Это требование, потому что почву необходимо правильно дренировать.
Какой толщины должна быть бетонная дорожка?
Это один из самых простых проектов бетонирования. Бетонная плита для дорожки не должна быть толщиной более 7,5 см . Также не требуется гравийная основа или что-то в этом роде. Деформационные швы желательно делать через каждые 2 м. Кроме того, большинство путей не нужно осушать каким-либо образом, потому что они обычно недостаточно широки, чтобы создавать проблемы такого рода.
Это минимальные требования к бетонной дорожке.На самом деле, большинство людей выбирают хорошие 10 см толщины и минимальную гравийную основу для дополнительной прочности и качества бетонной дорожки.
Это лишь некоторые из наиболее распространенных проектов по бетонированию дома. Хотя некоторые из них являются простыми проектами, сделанными своими руками, другие никогда не должны выполняться без помощи опытного бетонщика.

