Наименование | длина, м. | ширина, м. | высота, м. | вес, кг | норма загрузки в 20 тн. а/м, шт. | Завод ЖБИ г.Владимир1 Цена (руб/шт) | Завод ЖБИ г.Рязань2 Цена (руб/шт) |
Плита ребристая 2ПГ4-А-Vт | 1. | 0.25 | 1130 | 6 | 12660.61 | нет | |
Плита ребристая 2ПГ6-3А-Vт | 6 | 1.5 | 0.3 | 1500 | 6 | 13494.74 | 14572.20 |
Плита ребристая 2ПГ6-4А-Vт | 6 | 1.5 | 0.3 | 1500 | 6 | 14033.51 | 16296.30 |
Плита ребристая 2ПГ6-5А-Vт | 6 | 1.5 | 0.3 | 1500 | 6 | нет | 17391. |
Плита ребристая 2ПВ6-5атVт-4 | 6 | 1.5 | 0.3 | 2000 | 6 | нет | 21239.70 |
Плита ребристая 2ПВ6-5атVт-7 | 6 | 1,5 | 0.3 | 1900 | 6 | 22863.41 | 21323.70 |
6 | 1.5 | 0.3 | 1800 | 6 | 18259.05 | 20688. | |
Плита ребристая 3ПГ6-4атVт | 6 | 3 | 0.3 | 2680 | 6 | нет | 36474.30 |
Плита ребристая 3ПГ6-5атVт | 6 | 3 | 0.3 | 2680 | 6 | нет | 38149.05 |
Плита ребристая 3ПВ6-5атVт-7 | 6 | 3 | 0.3 | 3200 | 6 | нет | 49045.91 |
Плита ребристая 2ПГ12-6Ат-Vт | 12 | 3 | 0. | 7140 | 2 | нет | 241119.87 |
| |||||||
| |||||||
| |||||||
| |||||||
| |||||||
| |||||||
| |||||||
| |||||||
| |||||||
|
Плиты ребристые перекрытий: размеры, характеристики
Ребристые плиты перекрытия – конструкционные элементы из железобетона, которые активно используются в современном мало- и многоэтажном строительстве. Плиты отличаются великолепными характеристиками прочности, надежности, несущей способности, равномерно распределяют серьезные нагрузки, гарантируют безопасность эксплуатации зданий даже в условиях повышенной сейсмической активности.
Ребристые перекрытия имеют цельное основание, а также ребристые элементы по бокам, благодаря чему способны выдерживать немалые нагрузки на изгиб. Для применения в условиях повышенных нагрузок плиты усиливают поперечными ребрами. Там, где нагрузки минимальны, бетон удаляют, добавляя его в зонах сжатия.
Благодаря этому сборная ребристая плита обладает максимальной прочностью, способностью переносить максимальные нагрузки при заметном уменьшении материала (экономия и снижение веса конструкции).
Шаг плиты перекрытия с балками не должен быть более 6 метров. Ребристая плита может выступать частью кровли либо цокольного этажа. Чаще всего такие элементы используют в промышленном строительстве, в жилом – редко, так как ребра создают неровную поверхность, которую трудно отделывать.
Плиты ребристые перекрытия производят из тяжелого/легкого, плотного силикатного бетона. Применяется разная стальная арматура (обозначается буквами/цифрами).
Современные производители создают изделия по ГОСТу 28043-89.
Основные виды ребристых плит:
- ПГ – без полостей
- ПВ – с отверстиями для вентиляции
- ПФ – с фонарями
- ПЛ – используются для удаления кровли
При выборе плиты обязательно нужно учитывать все типы предполагаемых нагрузок на конструкцию, смотреть размеры и технические характеристики изделия.
Применяемые материалы
Плиты ребристые перекрытий производятся в соответствии с установленными нормами и стандартами. Главной характеристикой плиты является единица учета нагрузок, которая считается в килограммах на квадратный метр.
Основные требования к качеству плит:
- Точное соответствие размеров установленным в ГОСТе величинам
- Четкое соблюдение параметров и характеристик указанным, что проверяется в ходе проверок и подтверждается сертификатами
- Хорошая стойкость плит ко влаге, перепадам температур, деформации, появлению трещин
Материалы, из которых производят монолитное ребристое перекрытие, также должны быть качественными и соответствующими требованиям.
Бетон должен обладать плотностью 1810-1990 килограммов на квадратный метр. Обязательно проверяется пористость, утвержденная в ГОСТе. По плотности тяжелые бетоны могут достигать показателя в 2550 килограммов.
Натяжение арматуры в плите измеряют после схватывания бетона. Тяжелые бетоны соответствуют маркам М455 либо М650, легкие – маркам М250 либо М300.
Арматура должна быть произведена из стали марок, указанных в ГОСТе. Все арматурные каркасы должны строго соответствовать стандартам. Могут меняться лишь показатели натяжения и то максимум на 10%.
В производстве ребристых плит используют арматуру из разрешенных сталей нужного диаметра, с определенными размерами и формой петель, напряжением электромеханическим/механическим методом. Все металлические элементы обязательно обрабатываются антикоррозийными составами.
При условии соблюдения всех норм плиты получаются жесткими и прочными, способными долго выдерживать серьезные нагрузки.
Нормативные требования
Они могут выпускаться только согласно установленным государственным нормативам.
Перечень требований значительный, устанавливается к каждому элементу конструкции, сюда входят такие показатели: марка ЖБ по прочности на сжатие, удельные расходы легкого/тяжелого бетона, его плотность, характеристика арматуры и предельные размеры конструкции.
Учитываются следующие ГОСТы:
- 21506-2013;
- 27215-87;
- 27215-2013;
- 25820-2000;
- 26633-2012;
- 13015-2012;
- 34028-2016;
- 7348-81;
- 5781-82;
- 6727-80.
Нормативные условия, которые должны выполняться производителями при выпуске РПП:
- Соответствовать проектным прочностным показателям, в том числе по трещиностойкости.
- Морозостойкость в пределах F = 100-300.
- Марка стали для закладных элементов Ст3.
- Защита от коррозии — обработка специальными защитными растворами.
- Масса перекрытий должна соответствовать бетону легких составов до 1800 кг/м3,средних — 2100 кг/м3, а тяжелых свыше 2500 кг/м3.

- Для ненапрягаемой арматуры применяются марки АV и АтIVC, А240/ 400 и проволоку В500.
- Для напрягаемой арматуры используют: А600/800/1000, канаты К1400/1500, проволоку В 1200-1500.
- Коэффициент вариации прочности не выше 9%.
- Трещины усадочные не выше 0,1 мм, а поперечные в торцах до 0,3 мм.
Подробнее о характеристиках бетонных ребристых перекрытий можно узнать здесь.
Сфера использования
Ребристые монолитные перекрытия используются там, где нужно: сформировать воспринимающую нагрузку перекрытия для крупнопанельного объекта промышленного назначения, создать перекрытие чердачного типа в административном/жилом здании. В процессе монтажа обязательно соблюдают интервал между несущими опорами, учитывают расчетные нагрузки.
Плита ребристая перекрытия может использоваться:
- При температуре до +50С там, где наблюдаются соответствующие особенности технологического цикла в условиях промышленных предприятий
- При температуре до -40С в конструкции сооружений, которые постоянно находятся в условиях естественно низких температур (из-за особенностей климата)
- В регионах, где сейсмичность достигает 9 баллов (но не более)
- В условиях воздействия среднеагрессивных газообразных составов, которые влияют на железобетон
- В отапливаемых помещениях, где установлен стабильный температурный режим
- При условиях температуры ниже -40С и выше +50С, если перекрытие было сделано по специальному заказу, что обязательно отображается в документации
Опалубка покрытия
Для этого можно воспользоваться минеральной ватой, забутовочным кирпичом или бетонным раствором.
Во время любого строительного действия может возникнуть непредвиденная ситуация, к примеру, поверхность могла треснуть, если были нарушены правила их хранения или нагрузки.
Избавляться от такого дорогого материала гост, просто глупо. Их можно выложить на капитальные стены. Или использовать при сооружении чердачного помещения, так как там нагрузка минимальна.
[custom_ads_shortcode2]
Конструктивные особенности
В соответствии с работающими в конкретных условиях нагрузками, технические характеристики ребристых плит могут меняться – добавляются поперечные ребра, что повышает прочность. Изделия лучше всего работают под влиянием нагрузки на изгиб, бетон сосредотачивается в местах сжатия, а на участках растяжения сконцентрирован минимально.
Мощная стальная арматура позволяет экономить бетонный раствор, уменьшает толщину перекрытия и его вес без ущерба прочности. Плиты могут быть выполнены в разных типоразмерах, обладать различным весом, толщиной, предполагать то или иное число ребер усиления.
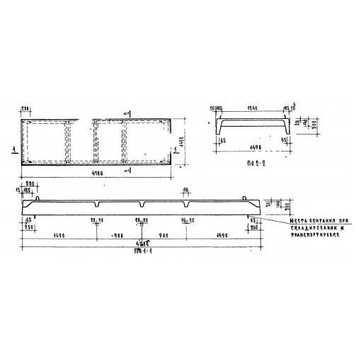
Конструкция обязательно предусматривает специальные монтажные скобы (петли), благодаря которым реализуются погрузочно-разгрузочные работы, осуществляется установка плиты на объекте, ее фиксация. Установку выполняют специальными захватными приспособлениями, с привлечением спецтехники.
В процессе монтажа монолитной ребристой плиты перекрытия изделие поднимают подъемным краном на большую высоту без перекосов, строго параллельно линии горизонта. Именно поэтому петли на плитах должны быть надежными и прочными, сделанными в соответствии с правилами техники безопасности (до начала монтажа все элементы проверяются на предмет отсутствия дефектов).
Возможна и беспетлевая установка при условии предусмотренных отверстий, расположение и размеры которых заказчик обязательно согласовывает с производителем до начала процесса изготовления плит.
Вывод
Ребристое перекрытие позволяет получить прочную конструкцию, разделяющую этажи, при грамотном проектировании и выполнении.
Конструкционные особенности позволяют сэкономить строительный материал и облегчить нагрузки на стены и фундамент дома, однако процесс возведения опалубки будет гораздо более трудоемким и дорогим, чем при других вариантах перекрытия, что также стоит учитывать.
Такой вариант перекрытия, выполненный своими руками, подойдет скорее тем, у кого много свободного времени и рабочих рук. В остальных случаях, на наш взгляд, эффективнее будет приобрести заводские ж/б плиты. А на небольшие пролеты более рациональным решением будет просто заливка плоской плиты.
Параметры
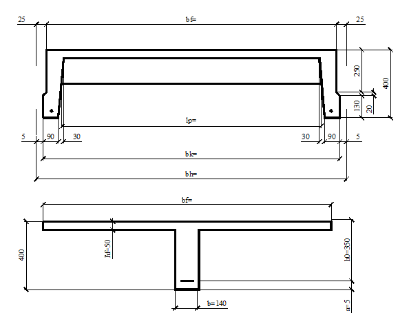
Размеры ребристых плит перекрытия могут быть разными. По нормативным документам, высота плит может быть 30 или 40 сантиметров. А вот длина и ширина существенно отличаются. Ширина варьируется в пределах 1.5-3 метра, длина – 6-18 метров. Очень важным параметром является вес, который зависит от габаритов плиты и плотности бетона.
Для плит высотой 30 сантиметров установлены такие стандартные значения:
- Длина – 5.
65 метров - Ширина – 0.94-3 метра
- Вес – для легких составов 1.16-3.08 тонны, для тяжелых 1.45-3.85.
- Стандартные габариты – 3 х 6 метров, 3 х 12, 1.6 х 6.1, а также 3 х 18.1 и 1.6 х 12.2 метров.
Плиты высотой 40 сантиметров:
- Длина – 5-6 метров
- Ширина – 0.75-3 метра
- Вес – легкие бетоны 1.1-3.8 тонны, тяжелые 1.37-4.73.
Где применяются?
Особенности и преимущества ребристых плит позволяют применять их в качестве перекрытий повсеместно. Железобетонными изделиями создают несущие элементы и отдельные узлы здания. Основные сферы использования:
- чердачные, гаражные или подвальные помещения;
- промышленные предприятия;
- жилые здания, преимущественно панельного типа;
- помещения с огневой или химически агрессивной средой.
Способ применения изделий зависит от их типа. Например, элементы с ребрами вниз предназначены для обустройства потолков в промышленных цехах, а с ребрами вверх – для укладки полов.
Виды и обозначение элементов перекрытий высотой 30 см
Данный тип плит предполагает уменьшенную высоту (30 сантиметров). Они обычно располагаются в определенных местах конструкции, что учитывается в проекте, вносится в чертеж.
По месту компоновки плиты бывают:
- П1 – в стандартных рядах
- П2 – для промежутков между несущими колоннами
- П3 – в одном замкнутом узле, собирающем в одно целое колонны и несущие стены
Маркировка ребристых плит перекрытия уменьшенной толщины содержит всю информацию по стандарту. Обязательно обозначается типоразмер, максимальный коэффициент прочности, вид бетона и арматуры, особенности изделия (наличие вентиляционных отверстий, которые обозначаются цифрами 1-3).
Так, если плита маркируется П2-АтVЛ-Н-2, то тут:
- П2 – это типоразмер
- АтV – размер, тип стальной арматуры
- Л – говорит о том, что изделие изготовлено из легкого бетона
- Н – свидетельствует о том, что ребристые перекрытия данного типа подходят для нормальных условий, не предназначены для эксплуатации при наличии агрессивных факторов
- 2 – наличие специального вентиляционного отверстия сечением 70 сантиметров
Железобетонные конструкции: виды плит
Для того чтобы понять как выложить материал, необходимо знать технические правила и технологию, предъявляемые к укладке плиты перекрытия.
Разделить конструкции из железобетона можно таким образом:
- ребристые, то есть шатровые;
- круглопустотные перекрытия;
- ребристые длинные материалы.
Некоторые потребители используют в строительстве железобетонные монолитные плиты, что относится к более дорогим вариантам и по карману не каждому. Даже верно сделанный расчет, не поможет в этом случае сэкономить. Самые популярные виды материала гост – крулгопустотные железобетонные. Они отличаются хорошей звукоизоляцией и теплопроводностью.
[custom_ads_shortcode1]
Классификация и маркировка продукции высотой 40 см
Ребристые перекрытия высотой 40 сантиметров также производятся по стандарту, делятся на классы в соответствии с конструктивными особенностями изделия.
Виды плит по типу контакта с опорой:
- 1П – опираются на поверхности полок ригелей, выпускаются в 8 размерах, серия маркируется 1П1 – 1П8
- 2П – при установке контактирует с верхней частью балок опорных.
По стандарту выпускается лишь один вид продукции с обозначением 2П1, но на заказ могут быть выполнены и другие плиты (в Москве и регионах производители гарантируют учет всех пожеланий заказчика)
Для усиления бетонного массива арматура может быть в напряженном состоянии – это марки 1П1-1П6, а также 2П1. С ненапряженной арматурой производятся плиты 1П7 и 1П8.
Маркировка указывает на такие параметры:
- Информация про габариты ребристой плиты перекрытия, что дает также сведения про максимально воспринимаемые нагрузки
- Тип и класс арматуры
- Показатели прочности и проницаемости бетона
- Разнообразные конструктивные особенности (закладные элементы, пустоты и т.д.)
Аббревиатура 1П1-3Ат-VIТ расшифровывается так:
- 1П1 – это типоразмер: говорит о том, что ширина плиты равна 3 метрам, длина – 5.55
- 3 – в обозначении скрыта информация про несущую способность, соответствующую третьей группе
- Ат-VI – индекс, указывающий на особенности армирования
- Т – говорит о том, что ребристая плита выполнена из тяжелого бетона марки М400, который можно использовать в условиях влияния газообразных составов с небольшой степенью агрессивного воздействия
Описание и технические характеристики
Состав ребристого перекрытия предполагает цельный вид плит и вспомогающие продольные элементы, которые выступают в роли балок, работающих на изгиб.
Когда имеет место большая нагрузка, то задействуются поперечные ребра.
На фото-плиты перекрытия ребристые:
Главная особенность такого строительного материала заключается в том, что из области растяжения бетон абсолютно уходит, а вот в области сжатия он локализуется. Благодаря армированию ребристой плиты удается сэкономить бетон и уменьшить толщину изделия. Но на прочностные параметры это никак не влияет.
Информация про плиты перекрытия сортамент размещена по ссылке.
На видео рассказывается о ребристых плитах перекрытиях, размерах, госте:
Как правило, такой материал активно задействуют на объектах промышленного характера, чердаках разнообразных комплексом. Но для этого необходимо соблюдать главное условие – шаг несущей стены не должен превышать 6 м. В жилых зданиях такой вид перекрытия не применяется. Причина в том, что имеется ограниченность обшивки нижней поверхности. Расчет конструкции строителями производится при помощи специальных программ, в которые вносят схемы.
Сегодня многие изготовители осуществляют производство ребристых плит на основе различных типов бетона (легкое, тяжелое и плотное силикатное).
На основании этого можно выделить следующую продукцию с напряженной арматурой:
- плоская верхняя плита;
- особые материалы – оболочки, для них характерна сводчатая поверхность.
Состав маркировки предполагает следующие наименования:
- параметры обозначают при помощи цифр и букв;
- показатель несущей способности;
- класс и тип арматуры;
- вид бетона;
- дополнительные свойства, если они имеют место.
Узнать о том, каковы размеры железобетонных плит перекрытия можно прочитав статью.
Установка ребристых монолитных перекрытий происходит при помощи различных методов. Неважно, какой вариант был выбран, здесь все равно понадобится использование автомобильного или башенного крана. Для поимки материала крюком требуется специальные монтажные петли.
Перед покупкой и их установкой требуется проверить количество и состояние петель. При установке перекрытий очень важно придерживаться составленного порядка действий.
Рекомендации по расчетам нагрузки
Плиты ребристые представляют собой конструкции П-образной конфигурации, сделанные из железобетона. В форму укладывается напряженная или ненапряженная арматура, потом заливается бетоном определенной марки. Те или иные конструктивные элементы выбираются в соответствии с предполагаемыми нагрузками на перекрытие, указанными в проекте и расчетах.
Строительные конструкции рассчитываются в специальных программах. Учитываются наиболее важные характеристики: поперечные силы, крутящий момент, изгибающий импульс, сейсмическая опасность, величина снежного покрова, грунт (на котором строится объект), вес плиты и всего здания.
В диаграмме нагрузок определяются: оптимальные параметры пролетов, марка стали и объем арматуры, параметры самого перекрытия. Если все сделать правильно, то все важные показатели будут учтены.
Таким образом, определяют марку и плотность бетона, тип и объем арматуры для производства железобетонной плиты, оптимальные размеры.
Все расчеты выполняются в килограммах на квадратный метр. Базовым для жилого дома считается значение, равное 400 кг/м2. Плита высотой около 12 сантиметров дает нагрузку в 255 кг/м2, бетонная стяжка пола добавляет до 110 кг/м2. Плиты делают объект устойчивым и жестким, повышая резистентность и долговечность. К полученным в результате расчетов данным закладывают добавочный коэффициент прочности в ½. Получается, что итоговая цифра равна где-то около 900 кг/м2.
После того, как готова графическая схема перекрытия, выбирают ребристые плиты нужного размера, которые равны расстоянию между пролетами и дают нужное усиление.
Качественные и произведенные по технологии ребристые плиты перекрытия обеспечивают надежность и прочность всей конструкции. Поэтому к их выбору и расчетам нужно подходить очень внимательно, учитывая все нюансы и тонкости.
Техника укладки перекрытия
Производить монтаж гост следует исключительно на капитальные стены будущей комнаты. Сооружение перегородок внутри осуществляется уже после установки перекрытий, опирающихся на стену на 12 см. Смежные материалы крепятся между собой строительными петлями. Для работы лучше воспользоваться цементно-песчаным раствором, жидкой консистенции, с хорошо просеянным песком, в противном случае попадание даже самой маленькой крупинки может привести к деформации потолка и пола.
После того, как были получены все размеры и осуществлена установка покрытий гост, между ними остаются рабочие швы, которые необходимо аккуратно зачистить. Щели при этом заполняются паклей, предварительно смоченной в гипсовом готовом растворе. Пакля должна хорошо улежаться.
После высыхания смеси из гипса значительно увеличивается ее размер, благодаря чему пакля будет прижата максимально к стене. После оставшиеся щели затирают известково-гипсовой смесью. Торцы также заделываются, чтобы плиты в холодное время года не промерзали.
[custom_ads_shortcode1]
Одноплечевые соединительные пластины 丨 Двуплечие опорные плиты 丨 Соединительная пластина литейного рельса 丨 Опорные плиты для систем крепления КПО Доступны на ваш выбор
Рельсовая стяжка
Рельсовая стяжка также называется опорной плитой рельса или подошвой, она является основным компонентом железнодорожной конструкции кранового рельса или системы поддержки пути.
Функции рельсовых стяжек
Рельсовые стяжки используются не только для поддержки рельсов, но и для фиксации всей системы рельсового скрепления. Он всегда работает вместе с анкерными болтами или шипами, выдерживая нагрузку на рельсовый путь, а также передавая часть нагрузки на шпалы, с плоской гладкой опорной поверхностью, чтобы гарантировать вертикальное выравнивание и удерживать рельс в правильной колеи для рельса. линейная система.
В целом, рельсовые шпалы используются для обеспечения гладкой и однородной опорной поверхности для рельса и шпалы, чтобы предотвратить врезание рельса в шпалу, сохранить ширину колеи, а также помочь лучше распределить нагрузку от колеса на шпалы.
Agico Rail может производить рельсовые шпалы литьем (сварным или сборным способом), ковкой или прокаткой, применимыми к различным сечениям рельсов, для деревянных, стальных или бетонных шпал, в зависимости от нагрузки и стандарта рельса, например, UIC 60, UIC. 54, РН 45, 90 А и т. д.
Типы рельсовых стяжек:
Рельсовые анкерные пластины можно классифицировать в зависимости от конструкции с одним или двумя плечами, чтобы обеспечить различные ребристые анкерные пластины.
1. Одноплечевые соединительные пластины
Для соединительных пластин с одним плечом плечо спроектировано на краю поля пластины. Короткий конец пластины или конец колеи помещается внутри рельсового пути, поэтому от клиентов всегда требуется ширина основания рельса. Стяжные пластины с одним плечом обычно используются для рельсов весом от 56 фунтов до 100 фунтов.
2. Опорные пластины с двойным плечом
Для подошвы с двойным плечом доступны типы с 2 отверстиями, 4 отверстиями, 5 отверстиями, 6 отверстиями или 8 отверстиями в соответствии с запросами клиентов.
Двойные плечевые пластины обычно используются для рельсов весом более 100 фунтов.
3. Рельсовая стяжка
Литье является распространенной технологией производства рельсовых стяжек, что также является способом экономии средств.
- Имя: плита связи рельса литья
- Тип: Подходит для рельсов UIC54, UIC60, рельсов 50 кг, рельсов 60 кг, S49 и размера по заказу
- Материал: QT500-7 или QT450-10 (низкоуглеродистая сталь или высокоуглеродистая сталь путем ковки и низкоуглеродистая сталь S275JR, Q235 и т. д. путем прокатки.)
- Стандарт относится: UIC864-6
4. Опорные плиты для систем крепления КПО
Опорная плита рельса является ключевой частью системы крепления КПО для поддержки рельса и фиксации всей системы крепления, закрепленной на рельсе рельсовыми болтами и железнодорожными костылями.
5. Стандартная соединительная пластина AREMA
Для американского рынка общие размеры включают 11-дюймовые, 14-дюймовые и 14-3/4-дюймовые соединительные пластины, они обычно предназначены для основания рельсов шириной 5-1/2 дюйма и 6 дюймов.
6. Крюк AREMA с двойной соединительной пластиной
HTTP, полное название которого — крюковая двойная соединительная пластина, широко используется для стрелочных переводов, расположенных за нижней частью переключателя. Чтобы обеспечить интервал между связями, HTTP часто используется в паре с одной связью. Среди продукции AREMA — первый производитель двойных стяжек AREMA с крюками толщиной 3/4 дюйма и 1 дюйм в Китае.
Различные доступные варианты:
Для двойной соединительной пластины с крюком 3/4’’: L23, L27, L31, LR23, LR27, LR31, h33, h37, h41.
Для двойных соединительных пластин с крюком 1 дюйм: L29, L33, L37, LR28, LR32, LR36, h39, h43, h47, h51.
На рынке сорта толщиной 3/4 дюйма и 1 дюйм наиболее популярны в Северной Америке. Наша мастерская с современной производственной линией является современной и особенной, и мы можем производить такую продукцию на 1000 тонн в год.
Чтобы обеспечить качество конечной продукции, более 30 рабочих сотрудников подготовлены только для HTTP, особенно для процесса изготовления отверстий и крючков. Кроме того, существует группа контроля качества для тестирования и проверки в процессе. Благодаря многолетнему упорному труду мы никогда не получали жалоб или неудовлетворенности от наших покупателей до сих пор.
7. Прочие типы подошв рельсов
Мы можем изготовить любые другие виды подкладок рельсов или подкладок по чертежам заказчика с указанием полных размеров и других технических характеристик, включая технологию обработки.
Технические параметры для популярных рельсовых стяжек:
| Тип | Размер | Отверстия | Наклон | Рельс | Вес (кг) |
| 1/160 | 345/285/127/160×15/13 | Ø 26 (4 шт. ) | 1:40 | С 49/С 54 | 7,86 |
| 01.01.160 | руб.345/285/127/160×15/13 | Ø 26 (4 шт.) | 1:40 | С 49/С 54 | 7,70 |
| 1/210 | 345/285/127x210x15/13 | Ø 26 (4 шт.) | 1:40 | С 49/С 54 | 10,55 |
| 1/210 | 345/285/127x210x15/13 | Ø 36,3 (2x) | 1:40 | С 49/С 54 | 10,55 |
| Rph 1/210 ФВЗ | 345/285/127x210x15/13 | Ø 26 (4 шт.) | 1:40 | С 49/С 54 | 10,69 |
| Сф 1(а) | 345/350/127x410x15/13 | Ø 26 (8x) | 1:40 | МСЖД 60 | 20,60 |
| 6/160 | 370/310/152x160x15/13 | Ø 26 (4 шт.) | 1:40 | МСЖД 60 | 8,44 |
| 6/210 | 370/310/152x210x15/13 | Ø 26 (4 шт. ) | 1:40 | МСЖД 60 | 11,32 |
| СЗ 60 | 370/350/152x420x15/13 | Ø 26 (8x) | 1:40 | МСЖД 60 | 22,73 |
| Рф 11 О | 664/554×160 | Ø 26 (4x) | 1:40 | С 54 | 15,37 |
| Рф 13 О | 690/570×160 | Ø 26 (4 шт.) | 1:40 | МСЖД 60 | 15,27 |
| РПО 5 | 345/285/127x160x15/13 | Ø 26 (4 шт.) | 1:20 | С 49/С54 | 8 |
Ребристые опорные плиты — рельсы ArcelorMittal
АрселорМиттал Европа. Сортовой прокат — Рельсы и специальные профили является частью сталелитейной компании номер один в мире и является ведущей компанией по производству железных дорог, шпунтовых свай и специальных профилей.
Прокатные заводы расположены в Роданже (Люксембург) и Хута-Кровлеска (Польша), где мы производим экологически чистые продукты и услуги для внутреннего и внешнего рынка.
Мы направляем эволюцию стали в транспорте, высокоскоростных железных дорогах, строительстве и т. д., чтобы обеспечить лучшее будущее для отрасли и будущих поколений.
АрселорМиттал Европа. Сортовой прокат – рельсы и специальные профили внедрила и постоянно обновляет систему обеспечения качества, соответствующую требованиям международного стандарта ISO 9001, и систему экологического менеджмента в соответствии с международным стандартом ISO 14001.
Ribbed Baseplates from section KRph2
| Type of Baseplate | Dimensions mm | Theorical weight (kg) | Marking | ||||||||||||||||||||||||||
|---|---|---|---|---|---|---|---|---|---|---|---|---|---|---|---|---|---|---|---|---|---|---|---|---|---|---|---|---|---|
| A | B | C | D | E | F | G | Whit 4 holes | Whit 2 holes | H | J | K | ||||||||||||||||||
| Rhp1-110-2 | 110 | 90 | +1,0 -0,5 | 28 ±1,0 | 56,5 | +3,0 -0,5 | 0,6 -0 | + 0 | ø26 ±0,8 | — | 5,28 | Rph2 | HK09 | — | |||||||||||||||
| RpIV-110* | 110 | — | +0,5 -0,0 | 27 ±0,5 | 56,5 | ±1,0 | 0,5 | +1,0 -0,0 | — | — | 2 5,435— | HK09 | — | ||||||||||||||||
| Rhp1-140/4/25 | 140 | 90 | +1,0 -0,5 | 28 ±1,0 | 56, 5 | +1,5 -0,5 | 0 | +1,0 -0,0 | ø25 ±0,2 | 6,79 | — | 49/40 | HK09 | — | |||||||||||||||
| Rhp1-150 | 150 | 90 | +1,0 -0,5 | 28 ±1,0 | 56,5 | +3,0 -0,5 | 0,9 | +1,0 -0,0 | ø26 ±0,8 | 7,328 | 7,445 | Rph2 | HK09 | — | |||||||||||||||
| RpIV-150 | 150 | 90 | +0,5 -0,0 | 27 ±0,5 | 56,5 | ±1,0 | 0, 5 | +1,0 -0,0 | ø24 | +1,0 -0,0 | 7,35 | — | — | HK09 | RpIV | ||||||||||||||
| RpIV | 160 | 90 | +0,5 -0,0 | 27 ±0,5 | 56,5 | ±1,0 | 0,5 | +1,0 -0,00 | Ø24 | +1,0 -0,0 | 7,86 | — | — | HK09993 | RPIVвив.160 | 90 | +0,5 -0,0 | 28 ±1,0 | 56,5 | +3,0 -0,5 | 0 | +1,0 -0,0 | ø26 ±0,8 | 7,857 | 7,97 | Rph2 | HK09 | — | |
| RHP1-160/2D/36 | 160 | 90 | +1,0 -0,5 | 28 ± 1,0 | 56,5 | +3,0 -0,5 | +3,0 -0,5 | +3,0 -0,5 | +3,0965 -0,5 | 56,5 | +3,0965 -0,5 | 56,5 | +3,0965 -0,5 | 56,5 | . | 0 | +1,0 -0,0 | ø36 | +1,0 -0,0 | — | 7,88 | Rph3 9009 | — | ||||||
| Rhp1-160/79/2/33 | 160 | — | +1,0 -0,5 | 28 ±1,0 | 56,5 | +3, 0 -0,5 | 0 | +1,0 -0,0 | ø33 | +0,8 -0,2 | — | 7,89 | Rph2 | HK09 | — | ||||||||||||||
| Рхп1-170/24 | 170 | 90 | +1,0 -0,5 | 28 ±1,0 | 56,05920093 +3,0 -0,5 | 0 | +1,0 -0,0 | ø24 | +1,0 -0,0 | 3,4 0909 8,4 09 0 9 8,44 0 | 8,44 | Rph2 | HK09 | — | |||||||||||||||
| Rhp1-180/26 | 180 | 90 | +1,0 -0,5 | 28 ±1,0 | 56,5 | +3 ,0 -0,5 | 0 | +1,0 -0,0 | ø26 ±0,8 | 8,95 | 9,07 | Rph3 | 0092 HK09 | — | |||||||||||||||
| Rhp1-210/26 | 210 | 90 | +1,0 -0,5 | 28 ±1,0 | 56,5 | +3,0 -0,5 | 0 | +1,0 -0,0 | ø26 ±0,8 | 10,549 | 10,67 | Rph2 | HK09 | — | |||||||||||||||
| Rhp1-210/ 285×140 | 210 | 140 | +1,0 -0,5 | 28 ±1,0 | 56,5 | +3,0 -0,5 | 0 | +1,0 -0,0 | ø36 ø37 | +1 -0,090 -6,0 | 10,35 10,31 | 10,56 10,55 | Rph2 | HK09 | — | ||||||||||||||
| Rhp1-210/285×150 | 210 | 150 | +1,0 -0 ,5 | 28 ±1,0 | 56,5 | +3,0 -0,5 | 0 | +1,0 -0,7 | ø036 | 0003 | +1 -0,0 -1,0 -0,0 | 10,35 10,31 | 10,56 10,55 | Rph2 | HK09 | — | |||||||||||||
Undrilled, milled
Ribbed Baseplates Rps8A
Ribbed Baseplates from section KRph6
| Type of Baseplate | Dimensions mm | Theorical weight (kg) | Marking | |||||||||||
|---|---|---|---|---|---|---|---|---|---|---|---|---|---|---|
| A | B | C | D | E | F | G | Whit 4 holes | Whit 2 holes | H | J | ||||
| Rph6-150 | 150 | 90 | +1,0 -0,5 | 28 ±1,0 | 56,5 | +3,0 -0,5 | 0 | +1,0 -0,0 ± | 9026 5 9026 5 0,87,88 | — | Rph6 | HK09 | ||
| Rph6-160 | 160 | 90 | +1,0 -0,5 | 28 ±1,0 | 56,5 | +3,0 -0,5 | 0 | + 1,0 -0,0 | ø26 ±0,8 | 8,44 | 8,56 | Rph6 | HK09 | |
| RpVI | 160 | 90 | +0,5 — 0,0 | 27 ±0,5 | 56,5 | ±1,0 | 0,5 | +01 -0,0 | ø24 ±0,8 | 8,48 | — | — | HK09 | |
| Rph6-180/26 | 180 | 90 | +1,0 -0,5 | 28 ±1,0 | 56 ,5 | +3,0 -0,5 | 0 | +1,0 -0,0 | ø26 ±0,8 | 9,59 | 9,71 | Rph6 | HK09 | |
| Рп6-210 (310×140) | 210 | 140 | +1,0 -0,5 | 28 ±1,0 | 56,5 | +3,0 -0,5 | 0 | +1,0 -0,0 | ø36 | +1,0 -0,0 1 0 10 10193 9 , 08 | 11,34 11,32 | RPH6 | HK09 | |
| Ø37 | +1,0 -0,0 | |||||||||||||
| RP6-1,065 ( | ||||||||||||||
| RP6-1,065 ( | ||||||||||||||
| RP6-1,065 ( | ||||||||||||||
| RP6-1,065 ( | ||||||||||||||
| RP6-1,065 ( | ||||||||||||||
| RP6-21065 ( | ||||||||||||||
| +1,0 -0,5 | 28 ±1,0 | 56,5 | +3,0 -0,5 | 0 | +1,0 -0,0 | ø36 | +1,0 -0,0 | 11,11 11,08 | 11,34 11,32 | Rph6 | HK09 | |||
| ø37 | +1,0 -0 ,0 | |||||||||||||
| Rhp6-210/26 | 210 | 90 | +1,0 -0,5 | 28 ±1,0 | 56,5 | +3,0 -0, 5 | 0 | +1,0 -0,0 | ø26 ±0,8 | 11,316 | 11,433 | Rph6 | HK0990 | |
Ribbed Baseplates from Rph6/Rus — 110×265
Ribbed Baseplates Pz60A
Ribbed Baseplates from section KRp01/01
| Type of Baseplate | Dimensions mm | Theorical вес (кг) | |||||||||||||||||||||
|---|---|---|---|---|---|---|---|---|---|---|---|---|---|---|---|---|---|---|---|---|---|---|---|
| A | B | C | D | F | G | 0 9 0 | 0 H | 09 91 | Рп01/01-160 | 160 ±2,0 | 90 | +0,5 -1,0 | 56,5 | +3,0 -1,2 | +3,0 -1,2 9000 0 | ø26 | ±0,8 | HK09 | Rp0101 | 7,7 | |||
| Rpb1-160 | 160 ±2,0 | 90 | +1,0 -0,5 | 56,5 | +3,0 -0,5 | 285 ±1,0 | ø26 | ±0,8 | HK09 | Rpb39 | 2 7,7 | ||||||||||||
| Рп01/01-150 | 150 ±2,0 | 94 | +0,5 -1,0 | 56,5 -090 +6,5 | 3 9 | 285 ±1,0 | ø24 | +1,0 -0,0 | HK09 | Rp0101 | 7,2 | ||||||||||||
| Rp01/01-110 | 110 ±2,0 | — | 56,5 | +3,0 -0,5 | 285 ±1,0 | ø26 | ±0,8 | HK09 | 4 Rp0093 | 5,19 | |||||||||||||
| RPB1-110 | 110 ± 3,0 | — | 56,5 | +3,0 -0,5 | 285 0092 | 29292929292929292929292929292929292929292929292929292929292929292929292929292900 | 92929292929292929292929292929292929292 | . ±0,8 | HK90 | Rpb1 | 5,19 | ||||||||||||
| Rp01/02-160 | 160 ±2,0 | 94 | +0,5 -1,0 | 56,5 | +3,0 -0,5 | — | ø26 | ±0,8 | HK90 | Rp0102 | 7,83 | ||||||||||||
| Рп01/01-210/4/36 | 210 ±2,0 | 150 | ±0,5 | 36,5 + | 36,5 + | 285 ±1,0 | ø36 | +1,0 -0,0 | HK90 | Rp0101 | 10,12 | ||||||||||||
| Rp01/01-140/4/25 | 140 ±3, 0 | 80 | ±0,5 | 56,5 | +3,0 -0,5 | 285 ±0,5 | ø25 | 9 2,29390 0 | 49/00 | 6,67 | |||||||||||||
| Rp16h * | 160 ±2,0 | 90 | +0,5 -1,0 | 56,5 | +3,0 -0,5 | 285 ±1,0 | ø26 | ±0,8 | HK90 | Rp16h | 7,91 | ||||||||||||
| Rp01/03-160 | 160 ±2,0 | — | 56,5 | +3,0 -0,5 | — | — | HK90 | — | 7,96 | ||||||||||||||
| RP01/09 ** | 160 ± 2,0 | 94 | ± 0,5 | 56,5 | +3,0 -0,5 | 285 285 ± 3,093 285 285 285 ° | +3,0 -0,5 | +3,0 -0,5 | +3,0 -0,5 | +3,0 -0,5 | +3,0 -0,5 | .![]() | Ø26 | ± 0,8 | HK90 | — | 7,7 | ||||||
** Milling Axle Dislocated при 25 мм
Ribled Baseplates от Seceptate KSRP3 DASP3. (g)
Дополнительно:
Ребристая опорная плита SRp1-g2 — 2 x ø28 ± 0,2 (во фрезерной оси)
Ребристая опорная плита SRp1-g3 — (без отверстий)
Ребристая опорная плита SRp1-g4 — 2 x ø25 ± 0,2 (с одной стороны)
Ribbed Baseplates: Type Rus
| Type of Baseplate | Dimensions mm | Theorical weight (kg) | |||
|---|---|---|---|---|---|
| B | C | D | E | ||
| Rus 26a | 15 ±1,0 | 110 | 235 ±1,0 | — | 3,86 |
| Rp 66a | 15 ±1,0 | 110 | — | 90 | 1,53 |
| Rus 108a | 15 ±1,0 | 110 | — | 60 | 1,14 |
Рп16г-200 н/о, франц.![]() | 15 ±1,0 | 200 | 293 ±2,0 | — | 8,86 |
| Rp16g н/о, франц. | 15 +1,0 -0,0 | 160 | 293 ±1,0 | — | 7,257 |
| Rp01/01-160/240 | 15 ±1,0 | 160 | 240 ±2,0 | — | 5 ,98 |
| Rh01/01/Rus-200×280 | 15 ±1,0 | 200 | 280 ±2,0 | — | 8,55 |
Ribbed Baseplates: Pm49
Ребристые опорные плиты: Pm60
Ребристые опорные плиты: Ps49
Рибленные базовые плиты: PS60-112
Рит. /26, ПТ180-110/2/28
RIBBED BASEPLATES: PżA16
9000 3 9000 3 9000 3 9000 3 9000 3 9000 3 9000 3 9000 9000 3 9000 9000 3 9000 9000 3 9000 9000 3.
Baseplates: Pża16A
Baseplate from section | Be sides we produce | |||||
|---|---|---|---|---|---|---|
| KPZ3 | Pża18A | Ps60-160/HR | Ps60-150/4/25 | Ps60 -180/4/25 | Пс60-210/4/26 | |
| KPZ3B thickness 20 mm | Pża16-20 | Ps60-20/112/2/26 | Ps60-20/160/4/24 | Ps60-20/160/2/ 28 | PS60-20/160/4/26 | PS60-20/180 |
| KPZ5 | PM49-140/HR | RP50 | RPL-110/HR | RP50 | RPL-110/HR. | |
| КРпо21 | Рпо21а | Рпо21ф | Рпо21б | | | |
Рябные базовые панели: RPL-20/4
Baseplates от Seceple-9000
:.
40
45
455
465.1-21.94
м на ригеля в производственном зданий? Заранее спасибо!
Хочу использовать их для строительства коттеджа(второй этаж мансардный).Посоветуйте, можно ли ими перерыть подвал и 1 этаж. Может быть усилить армированной стяжой + утепление? Спасибо.
Подскажите серию ребристых плит длиной 6 м шириной 1,5м. Заранее благодарю!
Маркировка 2ПГ6-3АVт. Несущая способность даного вида плит составляет до 600 кг/м2 без учета собственного веса плиты.
Завод жби гарантирует, что прочность бетона достигнет требуемой прочности, соответствующей проектной марке в возрасте бетона 28 суток со дня изготовления изделий.
)
)

±0,8
