Особенности проекта и строительства дома на склонах в Сочи. На что обратить внимание?
Природный ландшафт нашего города практически весь имеет сложный рельеф. Почти каждый человек, связавшийся со строительством дома в Сочи, сталкивается с определёнными трудностями. Архитектурная студия АрхиНОВА приготовила для вас статью, в которой вы увидите, на что стоит обратить внимание при выборе участка и строительстве дома в нашей горной местности. Наш опыт показал, что «неровные» рельефы могут быть не только пригодными для строительства, но и обладать некоторыми преимуществами.
Наиболее существенным среди них является возможность экономии денежных средств и материалов за счёт правильного использования перепада высот. Например, некоторые проекты домов позволяют разместить большую часть подсобных помещений под первым этажом, что позволит обойтись без проведения огромного количества земляных и противооползневых работ. Итак, какими моментами сопровождается проектирование и постройка дома на участке на склоне?
В зависимости от того или иного характера рельефа, земельные участки могут быть с уклоном до 10 градусов или больше. Если уклон небольшой, то на планировку дома не оказывается никакого отрицательного влияния. Более того, благодаря наличию такого уклона появляется возможность размещения дополнительных построек ниже жилого дома на разных отметках, без закрытия обзора участка или затенения.
Если необходимо, то к разным уровням жилого дома можно обустроить отдельные входы, при этом изолируя подсобные помещения от жилых, а зону дневного пребывания от зоны для сна.
Пример террасирования участка на большом уклоне в Центральном районе города Сочи
Если уклон составляет больше 15 градусов, то следует ограничиться проектами коттеджей, которые предназначены специально для участков на склоне. Такие проекты домов, естественно, отличаются некоторыми особенностями в планировке. К примеру, в цокольном этаже на склоне нередко размещают подвал, гараж и летнюю кухню. По нашему мнению, благодаря такому размещению кухонной зоны можно избежать перегрева помещений в летнее время года, а также обеспечить качественный обзор территории из окна и хорошее естественное освещение помещения.
Проект жилого дома на горе в Хостинском районе города Сочи
Сложности постройки дома на склоне
На рельеф влияет величина уклона. Если, к примеру, величина уклона составляет не более 3%, то участок считается ровным; если величина составляет от 3 до 8%, то участок идёт с малым уклоном; если до 20% — то средним и более 20% — крутым.
Если участок обладает малым уклоном, то возведение здания можно вести на ровной поверхности, для чего со стороны склона делается подсыпка грунта.
Если же уклон составляет 20% и более то чаще всего используют один из следующих способов:
- Цокольный этаж здания обустраивают частично или полностью заглубляя в самом склоне.
Проект дома на большом уклоне в Лазаревском районе города Сочи
- Возведение многоуровневого дома, где каждый уровень сдвинут по склону (каскадно-секционные или террасные дома). Один из наиболее дорогостоящих и сложных вариантов.

В таких ситуациях у многих людей возникают мысли о разравнивании склона, что позволяет обеспечить строительство на ровной поверхности. К сожалению, такой вариант не слишком удобен, так как изменение естественного строения рельефа сопровождается не только значительными денежными и трудовыми затратами, но и нарушением состояния окружающей среды (растительности, почвенного слоя, движения грунтовых вод и прочего).
Техническая сторона строительства на сложном рельефе
Подбирая площадку под строительство дома, желательно отдавать предпочтение сухому и возвышенному месту участка. На это есть несколько причин:
- В нижней части склона может происходить накопление выпавших осадков, земля становится заболоченной, что вызывает некоторые трудности при обустройстве фундамента.
- Строительство на наивысшей точке может помочь в решении проблемы, связанной с вопросами водоотведения, которая на участках с неровной поверхностью является весьма распространённой. На Сочинской глинистой почве потребуется дренаж фундамента. Благодаря линейному поверхностному дренажу можно благополучно отвести воду, которая стекает со склона к основанию дома.
Также не стоит забывать о том, что большое значение при строительстве домов на склоне имеют особенности залегания грунтовых вод, почвы и глубину залегания коренных пород. Именно поэтому мы настоятельно рекомендуем всем своим заказчикам выполнять инженерно-геологическое обследование земельного участка.
Проектирование домов на склонах и их дальнейшее строительство сопровождается некоторыми сложностями, которые опытный архитектор может преобразовать в преимущества. Например, немаловажное значение имеет то, с какой стороны происходит подъезд к дому – с вершины или подножья склона. В первом случае видно лишь верхнюю часть здания, а во втором оно располагается таким образом, что его видно полностью.
Если же разбирать технические вопросы возведения дома на неровном рельефе, то наибольшее значение здесь отдаётся особенностям грунтов, которые залегают на участке. Если вы имеете дело с плотным пластом или однородным грунтом, то можно залить монолитный ленточный фундамент, спроектировав его таким образом, чтобы он мог оказывать сопротивление давлению склона. В том случае, если грунт залегает наклонными или разнородными горизонтальными пластами, рекомендуется возводить фундамент на сваях. При этом важно учитывать глубину и характер залегания грунтовых вод а также коренных пород.
Здесь можете посмотреть пример возведения фундамента на сваях на большом склоне горы.
Возведение свайного фундамента на сильном уклоне в Хостинском районе города Сочи
Обратите внимание на то, что во избежание скольжения грунта используется террасирование склонов. Также необходимо искусственное изменение рельефа для стабилизации процессов скольжения, сдвигов, течения и осыпей грунта, в число которых входят и оползни-грунты.
Из-за того, что здание частично зарыто в грунт, к его тепло- и гидроизоляции предъявляются особые требования, которые в дальнейшем позволяют избежать образования на стенах протечек и конденсата. Кроме этого, в доме обязательно должна присутствовать приточно-вытяжная вентиляция, в противном случае некоторые помещения останутся без возможности естественной вентиляции.
«Архитектура Сочи»
Особенности проекта и строительства дома на склонах в Сочи. На что обратить внимание?
3 8 чел.arch-sochi.ru
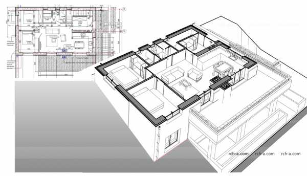
Дом на склоне | Катерина Пономарева

Наш новый проект – новая личность: Дом на склоне. Традиционный дом в современном издании – это определение ближе всего относится к данному проекту, к его концепции.
Дом расположен в старой деревне. На участке еще сохранился дом, построенный дедушкой: дощатый, уже искривленный, но всё еще жилой. Время безжалостно, и, к сожалению, этот дом придется разобрать. А чтобы сохранить память, мы предлагаем в архитектурном облике нового дома использовать в качестве облицовки старые доски.. Хотелось бы, чтобы они еще звучали и несли память
Во многом, благодаря преемственности, а также стремлению выглядеть скромно и уместно в сложившейся среде, был разработан мансардный дом общей площадью 140 м2

Так выглядит дом со стороны улицы – его скромная сторона. Одноэтажный, лаконичный и не претенциозный.
Со стороны двора открывается полноценный цокольный этаж, с крытой террасой, печью-барбекю, с клумбами в ограждениях. Верхняя терраса, которая служит крышей нижней, а также клумбы визуально скрывают нижнюю часть дома от чужих глаз, одновременно создают уютное пространство для отдыха хозяев и их родных и друзей.


Эффектный, но, прежде всего, рациональный, удобный и отвечающий требованиям заказчика. Этот дом строят два взрослых сына своим родителям и в этом доме учтено все для комфорта хозяев и их гостей. Планировкой предусмотрена гостиная, как центральное место в доме, где все встречаются. Помещения небольшие по площади, но объемные благодаря подкрышному пространству, включенному в интерьер.
Главной задумкой планировки со стороны заказчика была все та же преемственность, но ориентированная в будущее. В проекте постарались уйти от внутренних несущих стен, чтобы новые взгляды новых поколений могли быть реализованы и дом мог трансформироваться под новые требования. Живой дом!
Больший, но тоже “живой” дом мы спроектировали чуть ранее: Проект 2 в 1: жилой и гостевой дом в современном стиле, 2016 г.
Этот проект попадает и в введённое нами понятие “мудрый дом”. Дома, где дружные семьи могут жить вместе, имея при этом автономные зоны. Комнаты для сыновей и их семей предусмотрены в цокольном этаже, с южными окнами во двор, душевой и небольшой кухней-гостиной.

Если у Вас большая семья и Вы ищите действительно комфортные решения для жизни, то рекомендую посмотреть проекты мудрых домов, выполненные нами в последнее время:
Проект этого дома создавался как проект энергоэффективного дома:
- Компактное архитектурно-планировочное решение;
- Все жилые помещения и преимущественная площадь остекления ориентирована на юг;
- Южная сторона затенена, что предохраняет дом от избыточной инсоляции летом;
- Выбраны правильные материалы ограждающих конструкций дома – стены из гб блоков толщиной 375 мм с гб утеплителем Мультипор 50 мм, утепление крыши 250 мм минеральной ваты, цокольная часть утеплена 100 мм ЭППС;
- Предусмотрено альтернативное отопление твердотопливным котлом, в связи с чем, топочная имеет удобный вход непосредственно с улицы для загрузки.
Результатом проектной работы является комплекс достижений в планировочном решении, гармоничном внешнем виде дома, его эксплуатационные параметры. Неплохо для стратегически важных дел в жизни.
Заказывайте проекты домов! Грамотный проект – это не так легко, как может показаться на первый взгляд
Разглядеть множество нюансов и принять технически верные решения возможно только сотрудничая с профессионалами. Экономия на проекте не сравнима с финансовыми потерями при устранении ошибок в процессе эксплуатации дома. Некоторые ошибки неустранимы в принципе!
Связывайтесь с нами по почте или в чатах skype, viber, whatsapp. Консультация бесплатно
С уважением,
гл. архитектор проекта – Катерина Пономарева
rch-a.com
Как разместить дом на склоне с учетом направления его уклона
В первых двух статьях мы рассказали, как влияют особенности рельефа на строительство дома и как лучше разместить в существующем ландшафте участка ваше здание. Завершим цикл статей рассказом о том, как именно влияет на выбор места для дома направление уклона местности.
Расположение дома на участке с южным или восточным склоном
Южные склоны, конечно, больше согреваются солнцем. Поэтому нужно стараться ориентировать жилые помещения на восток, юго-восток или юг. Расположив дом на южном склоне можно сэкономить ресурсы на обогрев здания в отопительный период. Достаточно тепла и на юго-восточных и восточных склонах. Направления эти особенно благоприятны для районов с холодным климатом. Для теплых районов такие склоны удачны потому, что здесь раньше настает прохлада. Если же с южной стороны разместить вход в дом, то снега зимой в таком случае будет меньше и растает он весной быстрее. Южный склон меньше обдувает ветрами, а солнце пригревает сильнее, освещая комнаты и террасу. Воплощая, например, проект двухэтажного дома с гаражом, стоит разместить его на южном склоне ближе к восточной границе землеотвода.

Расположение дома на участке с северным склоном
Размещать дома на северных склонах не рекомендуется, если только речь идет не об участке, расположенном в жарком климате. Если необходимо определить место для дома на северном склоне, то строят его посредине, как можно ближе к его западной границе.

Расположение дома на участке с западным склоном
Западные склоны известны тем, что очень сильно нагреваются послеполуденным солнцем, поэтому для строительства также не рекомендуются. Это касается всех климатических районов. Если для строительства имеется участок, расположенный на западном или восточном склонах, то дом следует расположить у его северной границы в его самой высокой точке, разместив ниже все хозяйственные постройки.

Карман холода
Размещая дом на пересеченной местности, следует учитывать потоки холодного воздуха, ночью опускающиеся вниз. Преграда в виде стены дома, возникшая у него на пути, способствует образованию «морозного кармана» или «кармана холода», температура в котором будет ниже, чем у окружающей среды на 9 градусов.

Зимний сад
Если дом планируется украсить зимним садом, то идеально его пристроить с северной стороны. Помимо его основного назначения это помещение будет служить тепловым буфером. К тому же можно избежать установки солнцезащитных устройств и не бояться, что растения подвергнутся прямому воздействию солнечных лучей. Открытую часть зимнего сада лучше ориентировать на склон.
Основные правила расположения дома на рельефном участке:
- Стоит обеспечить расстояние не менее 6 метров от жилых комнат дома до построек на соседнем участке.
- Если позволяет размер участка, стоит удалить помещения для животных, туалеты и компостные ямы на расстояние от 15 метров от дома, расположив их внизу склона.
- Освободить место для проезда на участке можно сместив дом к границе территории (актуально для тех, кто выбрал проект двухэтажного гаража).

Любые неровности рельефа усложняют подготовительные работы для строительства:
- Проект строительства дом нужно разрабатывать индивидуально, привязав его к существующим условиям местности.
- В проекте нужно учесть расположение участка и его уклон.
- Прежде чем приступить к разработке проекта, необходимо выполнить сложные расчеты.
- Если вы предпочли проект двухэтажного дома с подвалом, следует особое внимание уделить вопросу изоляции поверхностей здания, примыкающих к грунту, от воздействия грунтовых вод.
- Также может затрудниться строительство террас или устройство выемки части склона для строительства цокольного этажа.
Все эти факторы требуют дополнительных финансовых вложений. Но во многих случаях неровности рельефа могут вдохновить на смелые эксперименты для создания нескучного современного дома. Грамотная организация участка для строительства и расположение дома и других построек на местности с учетом её особенностей сделает участок уникальным.

Со инженерной точки зрения строительство на неровном участке имеет следующие плюсы:
1. Отток поверхностных стоков осуществляется не принудительно, а с помощью естественного уклона участка.
2. Эту воду можно использовать для организации полива на участке.
3. Затраты на земляные работы по созданию выемок для подвала, подземного гаража или цокольного этажа ощутимо снижаются.
Если ваш участок не может похвастаться идеальным рельефом, расстраиваться не нужно. Цикл наших статей поможет превратить любые недостатки в достоинства и создать дом неповторимой архитектуры.
Смотрите также видео об особенностях обустройства рельефного участка:
z500proekty.ru
Проекты домов на склоне — Владимир Глазков
Плохо или хорошо – участок на склоне? Вы планируете строительство дома, и нашли прекрасный участок, который Вам нравится – но он на склоне. Нет, это, конечно же, не плохо – это просто тот случай, когда нужно будет делать индивидуальный проект и строить иначе, чем обычно. При этом использовать это его свойство так, чтобы плюсов оказалось больше. Некоторые детали того, как на практике решается вопрос фундаментов проекта дома на склоне – об этом в статье Участок на склоне.
Факторы удорожания. Геология.
Участок может благодаря геологии грунтов дать большое удорожание, и тогда вопрос – стоит ли овчинка выделки?
Рассмотрим случай с оползневым склоном, сложенным грунтами с оползневыми свойствами. Фундаменты дома на таком склоне (и с такими грунтами) будут дороже, также придется выполнить дренаж и водоотведения (не всего участка, а только области вокруг фундаментов). В большинстве случаев это свайные фундаменты, реже плитные или ленточные, но с заглублением ниже плоскости скольжения склона. И то, и другое сложно в работе и дорого, а сваи ещё и долго.
Итак, самый дорогостоящий вариант – строиться на склоне с оползневыми грунтами. Замечу на всякий случай, что строительство это ничем не рискованнее равнинного, так как все противооползневые меры предусматриваются совершенно исчерпывающим образом. Достаточно просто сделать всё так, как рекомендовано в строительных нормах – и никаких проблем. Но именно поэтому так дорого.
Понятно теперь, что если грунты не оползневые, то этих всех затрат можно избежать. Следовательно, если у вас на примете два участка с примерно равным балансом плюсов и минусов, то выбрав не оползневой склон, вы сэкономите тысяч 20 – 40 долларов..
Как же узнать характеристики грунтов на участке? Вариантов тут не очень много – это геологические изыскания. Обойдется это в Киевской области, к примеру, около 500 долларов (пять скважин по 8 метров). И если результаты геологии покажут наличие на склоне оползневых грунтов, то надо заказывать и расчет устойчивости/скольжения склона – ещё пять скважин. Ну, и для ориентировки – свайное поле под дом размером 12 х 15 стоить будет тысяч 50. Вот такие затраты – на то, чтобы оценить качества участка, и на, чтобы построиться там.
Геология. Что она даёт.
Ещё один случай из нашей практики – проект Северн. Участок с невероятной красоты краевидами оказался на склоне, сложенном оползнеопасными грунтами. Дом современный, с плоской кровлей – и конечно, с террасами, на всех трех уровнях дома, у каждой из которых свой собственный угол зрения на пейзаж. Место того стоит, и затраты на страховку от оползня найдены приемлемыми. Проектом предусмотрены свайные фундаменты, железобетонные монолитные подпорные стены – максимум гарантии и максимум стоимости.
Проекты современных домов с плоской кровлей
Дом решен стандартно для проекта на склоне, где цокольный этаж со стороны улицы полностью заглублен в землю – и, наоборот, полностью открыт с противоположной стороны – там, откуда из окон дома открываются пейзаж местности. Однако не надо думать, что польза цокольного этажа есть только в той его части, которая богата на окна и виды – нет, остальная его часть, находящаяся полностью или наполовину под землёй, не менее полезна. В этой части этажа погреб, кладовые и топочная, без которых дом существовать не может. С другой же стороны, открытой, размещена творческая студия (хотя могло быть и жилое помещение).
Да, это достаточно стандартное решение для дома на склоне – ну, разве что оползнеопасные грунты местности (и, следовательно, свайные фундаменты) попадаются не так часто.
Какой фундамент лучше?
Проект дома на склоне – уже вашем склоне. Начало пути.
Итак, этот участок уже ваш. Ещё вчера были варианты, но сегодня первая развилка пройдена – и теперь нужен проект. Но не совсем обычный – а дома на склоне.
Разница с обычным состоит в том, что на склоне, особенно с выраженным рельефом, стандартный (типовый) проект может не быть экономичным. Это происходит тогда, когда форма «тела» здания никак не зависит от формы рельефа местности, принята для среднего случая, или вообще для ровной местности. В такой ситуации архитектор должен решить проезды и проходы участка (к дому и вокруг него) только за счет рельефа склона, минимизируя изменения типового проекта. Понятно, что все издержки такого решения приводят к повышению цены всего того, что должно быть вокруг дома – проезд и проходы, площадки и лестницы, подпорные стены и системы дренажа. Суммарная стоимость котлована, стен подвала, фундаментов (ленточные, плитный или даже свайные, см. выше), плюс система дренажа и подпорные стены – всё это вместе может сравняться или превысить цену дома, если просто взять стандартный проект, и применить его с доработкой.
Но можно с самого начала искать решения, используя рельефа склона, сделать дом его частью, и минимально затрагивая форму склона, а «тело» здания делать с учетом примыкающих элементов генплана – лестниц, проездов и проходов, пр.
Кроме того, важна и «посадка» дома в вертикальном отношении. При этом архитектор исходит из того, что фундамент должен «сесть» на подходящие по прочности грунты, миновав негодные – а это может существенно увеличить высоту подвала. Часто бывает, что продуманное решение здесь сильно снижает строительную смету.
Участок и улица: вдоль неё или поперёк, внизу она или сверху.
Участок на склоне может быть расположен по-разному по отношению к примыкающей улице. Если она внизу, то вход и въезд в дом будут оттуда, снизу. Очевидно, что в цокольном этаже, а именно в его надземной части, будет входная группа помещений (если нужно и гараж), а служебные помещения будут отодвинуты в глубь этажа, в его подземную часть. Важно ещё то, как будет расположена лестница – но тут уже решающим будет замысел архитектора. Прагматичное и стандартное для дома на склоне решение – лестница не делается в той части дома, где видовой фасад. И это понятно – в таком случае весь этот фасад будет использован окнами жилых комнат.
Второй случай – улица выше участка по склону. Значит, входная группа помещений (с гаражом, возможно), будет не в цокольном, а на первом этаже, а цокольный будет ниже. В нём, в цокольном, могут быть и жилые помещения в надземной части, и конечно, служебные и подсобные в подземной. Кстати, проекты домов на склоне характерны разной этажностью, с улицы и со двора, с разницей в этаж. Пример – проект дома на склоне Ворскла, улица выше участка
Дом на склоне и вода.
У проектов домов на склоне есть одна особенность: окнами они выходят и на подножье склона и в стороны (стало быть, хорошие виды и даже солнце), а вот один из фасадов неизбежно «зарыт» в склон. И это не проблема с отсутствием солнца и видов (все равно там служебные помещения) – тут есть контакт с грунтовыми водами, риск протечек, и значит, должна быть хорошая гидроизоляция.
Нет, не так.
Окончательная, решительная гидроизоляция.
Чтоб ни одна капелька не просочилась, ни струйка не протекла. Очевидная вещь, и не секрет, как достигнуть – только профессионалы, и желательно только этим и занимающиеся. Пусть бригада широкого профиля монтирует блоки фундаментов, монолитит колонны и выполняет кладку стен – но этот небольшой объём отдайте хмурым спецам, чей послужной список скучен и однообразен.
Южная, восточная или западная ориентация дома.
Инсоляция (минимально необходимое количество солнца в спальнях) не проблема на склоне – как и в обычном проекте, можно спланировать так, чтобы окна половины спален были на юг и восток, при этом не лишив их видов на пейзаж.
Пример такого проекта – проект дома на склоне А1, ориентация спален на три фасада.
Что учесть при предварительной оценке:
Подготовка стройплощадки будет несколько дороже – надо будет сделать подъездные пути к будущему дому строительства, для чего поработать с землёй (подсыпать или срезать). Так мы обеспечим и доставку стройматериалов, и сами работы.
Что учесть при проектировании дома:
Одновременно сделать генплан всего участка, принципиальную схему его благоустройства, а потом – весь ландшафтный дизайн.
Проекты домов на склоне с пятном застройки дома поперек склона:
Проект дома на склоне Темза-II-320
Проект дома на склоне А2
Проект дома на склоне Эльба-290
Проект дома на склоне Самара-290
Проект дома на склоне Стайки-200
Выбор участка под строительства
Добавить комментарий
Для отправки комментария вам необходимо авторизоваться.
www.vglazkov.com
Проекты домов на склоне холма или горы – mega-stroy.com
Скрыть поиск
Сортировать Дата добавленияНазваниеКод проектаТип строенияЦена проектаМатериалПлощадьЦена комплекта
ВидВсеПроекты включая эскизныеПроекты для строительстваПроекты с инженерными сетямиКомплекты
Тип строенияПроекты для индивидуального строительстваМногоквартирные жилые домаНежилые здания и сооружения
Категория/ПодкатегорияЖилые дома и коттеджиВиллы, резиденции и усадьбыДома для многодетных семейДома на два хозяинаТаунхаусы (сблокированные дома)Садовые летние домикиДачные домаЖилые дома с нежилыми помещениямиГостевые дома (с гаражом, с баней)Дома на склонеБеседки и шатрыНавесы и тентыТеплицы и оранжереиГаражиБани и банные комплексыБассейныКонюшниПруды и фонтаныХозяйственные постройкиМалоэтажные многоквартирные дома (до 5 этажей)Многоэтажные многоквартирные домаВысотные жилые дома (свыше 20 этажей)Торговые здания → Небольшие магазины, лавки → Мини-маркеты → Продуктовые магазины → Магазины хозяйственных товаров → Супермаркеты → Торгово-развлекательные комплексы → РынкиОфисные здания → Малые офисы, конторы → Малоэтажные офисные центры → Бизнес-центрыГостиницы и общежития → Мини-гостиницы → Гостиницы → Общежития → Спальные корпуса → Санатории → Дома отдыха → Детские лагеря → Пансионаты → Кемпинги → МотелиТранспорт → АЗС (Автозаправочный станции) → Паркинги и многоуровневые гаражи → Автосервисы → Автомойки → Автосалоны → Мосты автомобильные → Дорожные развязки → Пункты взимания платы за проезд → Автовокзалы → Железнодорожные вокзалы → Мосты железнодорожные → Железнодорожные переезды → Аэропорты и авиационная инфраструктура → Вертолётные площадки и хелипорты → Надземные пешеходные переходы/ мосты → Подземные пешеходные переходы → Подземные транспортные системы → Причалы → Доки → Объекты речного транспорта → Объекты морского транспорта → Объекты общественного транспорта → Шиномонтажные мастерскиеСпортивные → Стадион → Спортивные комплексы, клубы → Тренажёрные залы → Фитнесс центры → Спортивные площадкиМедицинские центры → Поликлиники и амбулатории → Центры красоты и здоровья, СПА-центры → Стоматологические клиники → Больницы, стационары → Инфекционные корпуса → Родильные дома → Хосписы → Морги → Станции скорой помощиПредприятия общественного питания → Столовая → Ресторан → Кафе → Бары и пабы → Пиццерии → ЗакусочныеОбразовательные центры → Ясли-сады → Детские сады → Центры дошкольного образования → Внешкольные учебные заведения → Школы → Интернаты → Средние специальные учебные заведения → Высшие учебные заведения → Другие учебные заведения → Учреждения управления образованиемКультурные центры/здания досуга → Кинотеатры → Ночные клубы → Театры → Танцевальные залы → Цирки → Выставочные залы → Музеи → Галлереи → Концертные залы → Библиотеки → Конференц-залы → Дома культуры → Летние сцены и эстрады → ЗоопаркиФермы и с/х постройки → Фермы → Сельскохозяйственные постройки → Животноводческие комплексы → Птицеводческие комплексы → Молочно-товарные фермы → Мини фермы → Рыбной фермы → Гидромелиоративные объекты → Амбары → Овощехранилища → Сельскохозяйственное производствоНаучные и проектные центры → Научно-исследовательские организации → Проектно-конструкторские организации → ЛабораторииПредприятия сервиса → Прачечные → Химчистки → Общественные бани → Общественные душевые → Общественные туалеты → Салоны красоты и парикмахерские → СПА-центрыЭлементы городской инфраструктуры → Котельные → Трансформаторные подстанции → Очистные сооружения → Гидроэнергетика → Электроснабжение → Теплоснабжение → Газоснабжение → Водоснабжение → Канализация → Объекты связи → Дамбы, плотиныБанки, кассы → Банки → Кассы → ХранилищаПроизводственные здания → Пекарни → Пищевые производства → Кузня (кузница) → Мастерская → Типографии → Топливная промышленность → Угольная промышленность → Чёрная металлургия → Цветная металлургия → Химия и нефтехимия → Машиностроение и металлообработка → Древообработка и производство бумаги → Лёгкая промышленность → Тепловые электростанции → Объекты нефтегазового комплекса → Опасные производства → Другие производстваСкладские сооружения → Небольшие склады → Склады → Холодные склады → Ангары для техники → Хранилища жидкостей и газов → Cклады-холодильникиМногофункциональные комплексыРелигиозныеОбщественные, муниципальные зданияЗдания почтыЭлементы ГО и ЧСОхрана порядка и исполнение наказанийУникальные здания и сооружения
Несущие стеныАрболитБревноБрусГазобетонный блокДеревоДеревянный каркасКерамзитобетонные блокиКерамические блокиКирпичКлееный брусКомбинированыеЛафетЛСТКМеталлический каркасМонолитный железобетонный каркасНесъёмная опалубкаПанели трёхслойные из керамзитобетонаПеноблокПолистиролбетонные блокиПоризованный кирпичПрофилированный брусСборно-монолитный железобетонный каркасСиликатный кирпичСИП панели (SIP)Тёплая керамикаЦилиндрованное бревно
Ключевое слово Показать cброситьКод проекта IHh4-150

Спальни
4
Санузлы
3
Гараж
1
Ширина
8.9
Глубина
10.7
Архитектурный стиль
Функционализм
Технология строительства
Каменный дом
Площадь общая / жилая, м²
181 / 132
Стоимость строительства, руб
32 200
Стоимость проекта, руб
32 200
Код проекта IHh4-148

Спальни
4
Санузлы
2
Гараж
—
Ширина
8
Глубина
10.5
Архитектурный стиль
Современный
Технология строительства
Каменный дом
Площадь общая / жилая, м²
190 / 68
Стоимость строительства, руб
Стоимость проекта, руб
34 000
Код проекта IHh4-149

Спальни
3
Санузлы
3
Гараж
1
Ширина
8.7
Глубина
11.8
Архитектурный стиль
Современный
Технология строительства
Каменный дом
Площадь общая, м²
210
Стоимость строительства, руб
4 200 000
Стоимость проекта, руб
55 000
Код проекта IHh4-147

Спальни
5
Санузлы
5
Гараж
—
Ширина
13.3
Глубина
12.3
Архитектурный стиль
Функционализм
Технология строительства
Каменный дом
Площадь общая / жилая, м²
275 / 188
Стоимость строительства, руб
32 200
Стоимость проекта, руб
32 200
Код проекта IHH7-106

Спальни
3
Санузлы
3
Гараж
2
Ширина
13.25
Глубина
19.06
Архитектурный стиль
Современный
Технология строительства
Каменный дом
Площадь общая / жилая, м²
343 / 107
Стоимость строительства, руб
Стоимость проекта, руб
45 000
Код проекта IHH7-107

Спальни
3
Санузлы
5
Гараж
—
Ширина
16.64
Глубина
18.755
Архитектурный стиль
Современный
Технология строительства
Каменный дом
Площадь общая / жилая, м²
495 / 114
Стоимость строительства, руб
Стоимость проекта, руб
45 000
Найдено 6
Показывать 12244896 на странице
Проекты домов на склоне — особенности строительства на участках с уклоном
Выбирая проект коттеджа или загородной усадьбы, необходимо учитывать характеристики рельефа участка, на котором планируется строительство. Проекты домов на склоне подходят для реализации при наличии перепадов высот, уклона земли. Грамотное проектное решение позволит превратить такой, как многие считают, недостаток — неровный рельеф местности, в преимущество. Нередко проекты домов на уклоне имеют цокольные этажи.
Уклон площадки под строительство может быть незначительным, средним или большим. Малый уклон не превышает 3-8 %, а средний составляет максимум 20 %. Все, что выше этого показателя, уже считается крутым склоном. Проект дома на склоне горы при малом уклоне может не предусматривать наличие подвала. Но со стороны низины в большинстве случаев понадобится подсыпка грунта.
В каких случаях заказчику стоит остановиться на готовом проекте дома на склоне холма? При неровности поверхности с уклоном свыше 8 % рекомендуется оборудовать подземный гараж, другим способом обустроить нижний этаж, позаботившись о гидроизоляции фундамента и стен. А вот для дома на крутом склоне проект должен быть разработан специально, чтобы обратить в неоспоримые достоинства особенности неудобного рельефа. Например, на сложном участке можно построить многоярусное жилое здание с отдельными блоками. В них будут располагаться гостевые комнаты, кладовая, мастерская, гараж и другие помещения разного размера.
В проекты домов на уклоне, представленные на портале «МЕГА-СТРОЙ», можно внести дополнения, поправки. Сроки исполнения каждого варианта указаны в описании.
projects.mega-stroy.com
Дом на склоне
Дом на склоне
Написано Super User в .
Этот 3-х уровневый дом расположен на окраине города Брно (Brno) в Чешской Республике, такая себе частичка роскоши в обычной сельской местности. Дизайн-проект разработан архитектурной фирмой Орак (Orak).
Написано Super User в .
Для этого проекта дома бюджет был очень скромный, но архитектор Тайлер Энгл справились с этой задачей на отлично. Сказать, что этот дом идеально вписывается в окружающий лес – это не сказать ничего.
Написано Super User в .
Этот уникальный современный проект дома на склоне в Белу-Оризонти, Минас-Жерайс в Бразилии, стал результатом творческого сотрудничества между архитекторами Фернандо Макулан (Fernando Maculan) и Педро Мораис (Pedro Morais).
Написано Super User в .
Это симпатичный дом – отличный пример современной архитектуры. Дом в меру прост, открытый, просторный и привлекательный. Высокие стеклянные стены от пола до потолка разбавляют минималистский интерьер дома, открывая вид на окружающую природу.
Написано Super User в .
Casa 205 в Барселоне – это необычный проект дома горной испанской архитектурной фирмы Arquitectes H, созданный, чтобы минимизировать воздействие на окружающую среду. Крутой склон горы задает тон для всего дома и создает ощущения опасного зависания сооружения над краем склона.
Написано Super User в .
Gartner Trovato Architects спроектировали этот великолепный дом в бухте БайВью, Новый Южный Уэльс, Австралия. Расположен на крутом склоне горы и дарит живописный вид на залив из любой точки дома.
Написано Super User в .
Это испанское сооружение в Ayora имеет дизайн, который легко можно назвать идеальным. Дизайнерское решение архитекторов из Fran Сильвестр Arquitectos, это белый бетонный монолит цепляющийся за ближайший крутой склон горы, подчеркивая резкий контраст между человеком и природой, правильными формами и беспорядочностью окружающего.
Написано Super User в .
Вы обязательно должны это увидеть — консольный дом в Nova Lima, Бразилия, в окружении живописнейшего пейзаж с холмистым ландшафтом. Дом расположен на склоне и является идеальной точкой обозрения этого бескрайнего простора.
Написано Super User в .
Как ни странно, этот ультрасовременный дом в горах был спроектирован и построен с использованием традиционных методов фирмой Morato Arquitetura, Бразилия. Этот современный дом на склоне горы построен на основе проверенных временем методов и из местных материалов, под сильным влиянием португальской колониальной архитектуры. Состоит из трех уровней, а уникальное расположение и ландшафтный дизайн на склоне позволяет изящно использовать крутой склон.
Написано Super User в .
На первый взгляд обычный проект дома на склоне, но стоит приглядеться и можно найти много интересных дизайнерских решений.
Написано Super User в .
Остин, штат Техас, архитекторы из компании Mell Lawrence Architects разработали этот летний дом прямо на собственном заднем дворе. Этот дизайн под камень выполнен как снаружи так и внутри дома, остальное пространство занимают широкие окна. С таким нейтральным материалом и цветовой палитрой, да еще и построенным на склоне, дом получился больше похожим на миниатюрную крепость.
Написано Super User в .
Этот небольшой летний домик проектировали две немецкие фирмы MVM Architekt и Starke Architektur, сохраняя при этом современный фасад, дабы выделить дом в общем пейзаже леса.
Написано Super User в .
Можете ли вы себе представить более спокойное место для работы?
Написано Super User в .
BAK Architects разработали этот оригинальный проект дома на склоне в Аргентине. Дом окружен массивными соснами и может похвастаться инновационным ступенчатым дизайном.
Написано Super User в .
Проект итальянского архитектора Алессандро Булетти.
С верхней стороны дом полностью «погружен» в склон, а с нижней открывается вид на глубокую долину с крутого склона.
Написано Super User в .
Этот проект пляжных домиков был создан архитектором Хорхе Гарсия (Jorge Garcia). На самом деле, эта комплекс из 20 пляжных домиков, которые является частью отеля Endemico Resguardo Silvestre в Валье-де-Гуадалупе.
Написано Super User в .
Расположенный на склоне горы Канагава (Kanagawa ), этот современный дом имеет не только захватывающий пейзаж, но и симпатичный интерьер. Дом разработан японской архитектурной фирмой Shun Hirayama Architecture и место выбрано не зря, с горы открывается прекрасный обзор на город.
Написано Super User в .
Этот внешне прохладный дом, расположенный в Кейптауне, Южная Африка, интересен своей многоуровневостью и сочетанием разных элементов. Glen 2961 является совместной работой SAOTA (Stefan Antoni Olmesdahl Truen Architects) и Three 14 Architects, не говоря уже о Матери-Природе, создавшей этот холм и окружающий пейзаж.
Написано Super User в .
Деревянный дом расположен в «Mount Misery» в Sag Harbor, штат Нью-Йорк.
Проект создан архитекторами Jendretzki Design и Planning Consultant. Окружающий сад и лес стали частью дома, для этого есть удобная терраса и лестница, сделанные из дерева.
Написано Super User в .
Архитекторы Пола Бауэр (Polla Bauer) и Андраш Оноди (Andras Onodi) создали этот интересный проект современной венгерской архитектуры, который, без сомнения, является плодом их любви. Молодая пара архитекторов, которые сами проживают в Будапеште, создали свою первую совместную работа, и в результате получился проект «скромного дома» с ультра современной эстетикой, запрятанный в маленьком городке.
niola-td.ru
Планирование и постройка дома на склоне
Возведение дома на склоне является как проблемой и экспериментом для современных застройщиков и дизайнеров, так и подарком для его будущих жильцов. Проблема заключается в том, что сама по себе неровная местность добавляет проектированию и строительству сложности и, следовательно, стоимости. Подарок же получаете вы в результате проделанных работ, ведь дом на склоне выглядит куда более привлекательным, добротным и интересным, нежели строения на ровной земле.
В этой статье мы проведем вас через строительные и финансовые аспекты, с которыми вы в любом случае столкнетесь, затеяв возведение своего жилища на склоне. Итак, с чего же начать, чтобы ничего не упустить и получить желанный результат?
1. Основные преимущества и недостатки строительства дома на наклонном рельефе
Преимущества
- Неровная местность предлагает множество эстетических выгод. Дом, построенный на склоне в лесу, предполагает, что окна с одной стороны строения будут выходить на пологие склоны леса. Такой чудесный вид создаст впечатление, будто вы живете в доме на дереве. С другой же стороны окна будут выходить на иной пейзаж — горы, бескрайнее небо, озера, луга;
- Расположение дома на склоне по направлению на юг, будь то вершина холма или нижерасположенный участок, всё же, предусматривает большее количество солнечных лучей, проникающих в комнаты жилища. Природное тепло позволит вам значительно экономить на электроэнергии.

Проблемы
- Доступность. Крутые склоны составляют некоторые неудобства для тяжелого оборудования необходимого для строительства. Поэтому в обязательном порядке стоит найти пути решения этой проблемы, которые, разумеется, не обойдутся без дополнительных расходов;
- Дренаж. Строительство коттеджа внизу склона грозить собирать вблизи строения большое количество воды. Это может нарушить фундамент и в конечном итоге привести к деформации дома. Строительные нормы и правила в таком случае требуют создания дренажного фундамента и дополнительного уклона, который шел бы стразу же от дома. Таким образом, осадки не будут собираться вокруг строения, стекая вниз по склону.
2. Разрешение от компетентных органов
Посетите ваш местный отдел компетентных строительных органов и планово-экономический отдел для получения необходимой информации о нормах и правилах на расположение нового строения.

Например:
- учитывая то, что строительство дома планируется на рельефе с уклоном, вполне вероятно, что существует максимальная высота и ограничения по возведению подпорной стены;
- если вы планируете строительство на вершине холма, видимость будущего дома может спровоцировать осмотр участка и плана коттеджа контролирующим отделом, дабы понять, какое влияние он окажет на окружающую среду.
3. Доступность
Узнайте, имеются ли электросети, расположенные близ будущего строения, ведь городские коммунальные услуги по стандартам проводятся не везде. Убедитесь, что уровень их доступа, а также доступ дороги к вершине холма приемлемый, иначе вам придется потратить значительно большую сумму на строительство подъезда к участку и обеспечение дома водой, электричеством и др.

4. Как величина процента уклона рельефа влияет на выбор проекта дома
Любой рельеф, вне зависимости от строения своей поверхности (холмы, низины, плато, горы, долины, впадины и выпуклости, овраги), определяется уклоном. Уклон, в свою очередь, являет собой разность между двумя точками, расположенными на разной высоте склона. Измеряется он в процентах. Для жилого дома, да и не только, желательно, чтобы склон был направлен к югу:
- не более 3% — ровная местность. Отлично подходит под строительство типовых домов. Наличие некоторых склонов приветствуется, так как они в разы облегчает отвод канализации. Искусственные склоны создаются подсыпкой камней, гравия, цемента;


- 3-8% — малый уклон местности. Идеальный вариант для возведения домов без подвалов. Также такую неровность можно выгодно использовать для сооружения цокольного этажа, который врезается в склон;
- до 20% — средний уклон. Столь серьезный уклон подразумевает создание индивидуального проекта. Позволяет возвести многоярусное жилище с отдельными входами в каждый из его блоков. Эта настоящая находка для дизайнеров открывает множество возможностей для создания дома своей мечты. Проект затратный, но стоящий большого количества и времени, и денег;
- более 20% — крутой уклон. В таком случае каждая из террас коттеджа, если такие имеются, должна укрепляться и фиксироваться подпорными стенками, которые возводятся из бруса, валунов, камней, плит, кирпича. Важно, чтобы вертикальные швы прилегающих стенок не совпадали. Так конструкция будет крепче и долговечнее.
5. Возможные варианты строительства домов на склоне

Затраты, проект дома и его расположение — главные критерии, на которые влияют особенности рельефа выбранной вами местности. Именно рельеф ставит некоторые ограничения перед вами и заставляет архитекторов хорошенько подумать над планом дома и организацией близлежащего участка. Итак, существует несколько вариантов возведения постройки на рельефе с уклоном и вот некоторые из них:
- Строительство дома на ровной местности путем подсыпки грунта для создания идеально ровной площадки. Этот вариант не только уменьшит ваши затраты, но и позволит возвести практически любой из понравившихся типовых проектов.
- Врезание цокольного этажа в склон. Здесь требуется создание индивидуального проекта под строительство.
- Классическое и наиболее затратное — строительство дома на склоне — когда наклонность рельефа не нарушается, а используется, как дань природы. Каждый из уровней будущего дома сдвигается по склону.
- Срезание рельефа для получения ровной местности. Такой вариант практически не реален, так как нарушается естественная структура рельефа. Экологи и местные компетентные органы могут не позволить вам такого рода издевательства над природой. Если же у вас получится добиться разрешения, во время разравнивания почвы вы неизбежно столкнетесь с огромными трудовыми и финансовыми затратами.
6. Строительство дома на сложном рельефе — вид с технической стороны
На уклонной местности ваш дом всегда будет подвержен воздействию атмосферных явлений. Именно поэтому важным этапом строительства является как природная защита коттеджа (деревья), так и искусственная — крыши, ограждения.

Специалисты рекомендуют строительство дома на самом возвышенном месте холма (горы и др.), которое будет освобождено от чрезмерной и разрушающей влаги — если защитить здание от ветра будет не сложно, то вода может стать весомым аргументом для смены места жительства или серьёзной реконструкции здания.
Еще несколько причин, по которым возведение дома стоит совершать на наиболее сухой и возвышенной точке склона:
- Осадки. Строительство жилища внизу косогора опасно, так как именно в этом месте и скапливаются всевозможные осадки. Почва становится все более влажной, заболачивается и возведение фундамента дома делает почти нереальным.

- Низкая температура. Места ниже верхней части холма препятствуют движению ночного холодного воздуха, вследствие чего он скапливается в одном месте, образуя карман холода. Такое погодное явление может понизить температуру воздуха на 9ºС, что неприемлемо для жилого дома.
- Строительство жилища на наиболее высокой точке позволяет избежать проблем связанных с водоотведением. При песчаной почве поверхностного дренажа будет достаточно, глинистый грунт потребует дренажа фундамента.
7. Благоприятность сочетания крутизны с ориентацией склона
Если о крутизне, измеряемой в процентах, мы уже говорили, стоит сказать несколько важных слов и об ориентации склона. Выражается она в румбах и азимутах. Первые разделяют территорию на участки (север, северо-восток, восток, юго-восток, юг, юго-запад, запад, северо-запад), вторые имеют шкалу горизонта в 360º с отсчетом от направления на север по часовой стрелке.

Благоприятные склоны
Те, что обращены на юг или юго-восток, так как принимают на себя наиболее приемлемое для здоровой жизнедеятельности количество солнечных лучей, да и ветры дуют слабее. Таким образом, вы значительно выигрывайте в финансовом плане, ведь не нужно тратиться на дополнительное отопление.
Неблагоприятные склоны
Те, что направлены на север или запад — ветры суровее, солнечный свет ограничен. Немалую сумму денег придется потратить, дабы жить в таком доме было комфортно и безопасно.
8. Советы по размещению домов и построек на рельефе
- Дополнительные строения. Компостные ямы, наружные туалеты и душ, сараи, стойла и другие помещения, не предназначенные для проживания людей должны располагаться в метрах 15 от жилого дома. Желательно ниже постройки, точнее — вниз по склону.
- При наличии соседнего участка стоит обратить особое внимание на расстояние между вашим домом и их нежилыми постройками. Оно должно составлять не менее 6 метров.
- Если дом будет располагаться близ одной из границ территории, у вас будет больше территории, а значит и возможностей для расположения места под подъездные нужды (дорога, гараж, стоянка и т.д.)

9. Какой тип дома выбрать?
Вне зависимости от того, насколько велик уклон, и от того, что все дома, возводимые на склонах строятся по индивидуальному проекту, все они делятся на два типа:
- Ступенчатые. Проект такого строения наглядно показывает интересную структуру здания — каждый из его этажей размещается подобно ступеням, соответствующим уклону рельефа. Такого рода строения подразделяются на:
- каскадно-секционные — те, которые возводятся на местности с уклоном 7-17%;
- террасные — те, которые строятся на участках с уклоном 25-30%.

- Переменной этажности. Кровля в таких домах имеется лишь на одном уровне. Также имеется множество этажей в разных частях строения. Именно от перепада рельефа и зависит количество этажей. Возводятся дома с переменной этажностью на склонах с любым уклоном.

10. Будьте готовы ко всему!
Убедитесь, что ваш бюджет не просто велик, но и что он способен растягиваться, увеличивая в разы. Ведь строительство на склонах — далеко не дешевая затея и требует огромного количества денег. Не удивляйтесь постоянно приходящим новым счетам, беспрерывно появляющимся проблемам, которые без дополнительных затрат никак не решить, увеличению срока, отведенного на строительство и т.д.
Не скупитесь при проектировании и строительстве дома на склоне — чем качественнее и добротнее будут подготовлены местность, фундамент, близрасположенная территория и остальные части проекта, тем безопаснее, долговечнее и комфортнее будет ваше новое жилище. Поверьте, оно того стоит!
www.buildercamp.ru