Бетономешалка своими руками — современные конструкции и их особенности (90 фото)
Ни одна стройплощадка не может быть организована без бетона. Замешивать раствор при помощи обычной строительной лопаты и большой емкости весьма проблематично и физически затруднительно. А если объемы работ большие — то такой процесс лишен целесообразности.

Значительно удобнее использовать бетономешалку. В каждом строительном магазине продаётся такой агрегат. Кто-то в целях экономии денег сооружает сей агрегат для замеса цементного раствора своими силами. Посмотрите фото бетономешалки, выполненной своими руками, дабы понимать какими они могут быть.
Как сделать бетономешалку своими силами?
Изготавливая бетономешалку своими силами у вас появляется возможность обзавестись собственным оборудованием с минимальным расходом финансов. Рассмотрим в деталях процесс изготовления бетономешалки.

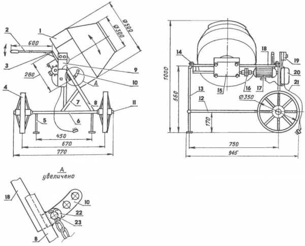
На самом деле конструкция довольно простая – замес тут механический. Все очень хорошо видно на чертежах бетономешалок. Основное преимущество агрегата — работа с большими объемами цемента.

Привод здесь не обязательно должен быть ручным или механическим, можно установить электродвигатель. Чтобы выгрузить бетон из мешалки, бадью наклоняют в одну из сторон.
Механическая бетономешалка
Есть здесь и минус, характерный для всех подобных бетономешалок с использованием цилиндрической емкости под цемент — замес цемента в углах неаккуратный и некачественный. При превышении оборотов свыше 35 в минуту, смесь разлетается.

Решить вторую проблему можно, если вместо вырезанного отверстия приварить обратно отрезанный элемент и сделать люк. Для замешивания раствора в такой бетономешалке требуется не больше 5 мин., на сухой уходит от 1 до 12 мин.

Инструкция как сделать бетономешалку приводится ниже. Эта конструкция, как и представленная ранее выше, может быть с электрическим приводом и без него. Преимущество: однородность всего цемента, скорость замеса смеси и качественный бетон на выходе.

Для изготовления подойдет старая бочка, несмотря на невзрачный внешний вид, она не будет ничем уступать современным бетономешалкам промышленного производства. В данном случае, на скорость замешивания влияют больше обороты, а не время. Достаточно прокрутить смесь несколько раз, как она уже полностью готова.
Из минусов можно выделить весьма сложную схему самой конструкции бетономешалки. Чтобы изготовить даже самый простой ручной вариант, нужно будет запастись сразу десятком различных элементов и запчастей.

Все внимание нужно сосредоточить при изготовлении бетономешалки на разгрузочном люке, посмотрите как плотно прилегают шпингалеты, уплотнители и петли. Каждый элемент должен быть крепким и надежным, обладать высоким качеством. Ну а если питание поблизости для электрической мешалки отсутствует, то подобный агрегат окажется просто незаменимым.

Подобные конструкции можно встретить и в сфере промышленного производства. Это свидетельствует о том, что самодельная бетономешалка не уступает ничем фабричным образцам.

Электрическая бетономешалка
Еще один вариант бетономешалки подразумевает использование электродвигателя. Это самая популярная конструкция, которую любят копировать друг у друга домашние кустарные мастера. Никаких особых пояснений по этому поводу не требуется. Схема доступна на фотографии ниже.
Есть огромное количество конструкторских решений и видов электрической бетономешалки. Даже детальные чертежи представлены в большом количестве.

Поговорим об этом агрегате в паре слов. Как правильно сделать бетономешалку своими руками:
- Горловая часть и днище конструкции укрепляются при помощи сварных планок;
- Идеальным выбором будет рамный миксер, сваренный с основанием;
- Обратите внимание, чтобы ось и емкость вращались вместе — рама станет сложнее, но при этом увеличиться её надежность, и будет отсутствовать необходимость в уплотнителях на днище. Последний момент влияет на срок эксплуатации готового устройства.

Электрическая бетономешалка с перфоратором

Наиболее часто встречающиеся ошибки:
Неправильно выбранная по габаритам емкость. Она не должна быть чрезмерно круглой формы, иметь вытянутые очертания.

Неправильное расположение вибратора значительно ухудшает качественные показатели замешивания. Его высота до дна должна соответствовать диаметру. Раствор должен быть залит в том же объеме, что и радиус вибратора.
Плоский вибратор не самое лучшее решение. Такой инструмент не сможет создать необходимые волнообразные возмущения на поверхности смеси и она просто не будет должным образом перемешена.

Посмотрите на изображение ниже, чтобы понимать какой именно следует применять или покупать. Наиболее подходящая модификация имеет пару тарелок (блюдец).

Вибратор больших размеров. На каждый последующий киловатт мощности прибавляется 15-20 см в диаметре. Наш агрегат сможет спокойно работать с тарелками на 25 сантиметров.

Фото бетономешалки своими руками











































Также рекомендуем посетить:
mojdominfo.ru
Бетономешалка своими руками — фото готовых идей с инструкцией
Бетономешалка требуется, когда происходит строительство. Экономия на материале приводит к плохим последствиям, поэтому его следует тщательно выбирать.

Бетон используется как при постройке крупных зданий, так и для фундамента небольшого помещения.

Разновидности изготовления бетономешалки
Самый простой вариант – это бетономешалка, которая работает с помощью человеческих усилий. В более сложном варианте используется электродвигатель. Но и он создается из подручных приспособлений.

При изготовлении бетономешалки своими руками следует учесть несколько моментов:
- Изделие должно быть безвредным. Особое внимание уделяется преобразователю, который работает от электричества.
- Вложений в производство бетономешалки должно быть по минимуму.
- Делайте выбор в пользу автоматического изделия, оно проще в применении.

Выбор материалов
Что же требуется для производства ручной бетономешалки? Нам понадобятся:
- крепление;
- трубка;
- сварочное устройство;
- профиль;
- шлифмашина;
- подшипники;
- фланцы;
- бочка на 200 литров;
- металлические уголки 50 на 50 мм;
- карточные петли.

Для изготовления бетономешалки с электрическим двигателем в список потребуется добавить несколько уголков, разрезанная труба по частям, узловую арматуру и сам электрический двигатель.
Поэтапная инструкция
- С торцевых частей бочки сделать прорези. К ним фиксируются фланцы и вал.
- По бокам делаются отверстия для заполнения бочки бетоном и прикрепления люка.
- Карточные петли понадобятся для открывания люка
- Протяните вал через прорези с торцовых сторон бочки.
- На вал крепятся фланцы, которые усилят стенки.
- Уголки требуются для изготовления гребенки. Благодаря ей смесь готовится быстрее. Уголки помещаются с внутренней стороны бочки, и к ним крепятся штыри.
- Швеллер, уголки и подкосы нужны для подпорок.
- Детали состыковывают, и полученные подпорки располагают рядом с торцевыми сторонами бочки.
- Подпорки вкапывают в землю для прочности глубиной около 30 см.

Вал по бокам фиксируется рычагами. Величина ручек выбирается такая, чтобы можно было вращать барабан двумя руками.

Выбираете место для бетономешалки и располагаете там конструкцию, рядом с люком должен быть участок для хранения элементов бетона. Они укладываются через люк и перемешиваются.

Сборка электрического двигателя
Для изготовления бетономешалки с электрическим двигателем подойдет мотор с одной фазой.

Если есть дома двигатели от старых стиральных машин, можно использовать их в качестве электродвигателя для бетономешалки. Средняя скорость вращения должна быть 20 – 30 оборотов в минуту.

Мотор с бензинных мотоциклов тоже подойдет. Он будет удобен тем, что нет зависимости от электричества.

Необходимо помнить: Для удобства эксплуатации бетономешалки следует продумать наличие механизма для опрокидывания (она делается из уголков) и для передвижения.

Вал должен вращаться через подшипники. Раствор используется в максимум в количестве 7 ведер.

Проявите сообразительность, учтите свои собственные предпочтения, и вы добьетесь необходимого результата и удобства использования.

Схемы для создания бетономешалки
Он составляется довольно легко. Для самого простого механизма возьмите электрическую дрель, ведро и опора. Бетона при этом будет не много, но для прокладывания дорожки во дворе или для заливания пола в доме такой вариант подойдет.

Далее проектируем основание. Чертеж его тоже должен содержать. Основание нужно такое, чтобы смогло выдержать и бетон, и саму бетономешалку. Оно обязательно должно быть крепким и устойчивым. Легким вариантом будет участок из бруса, более крепким будет основание из металла.

Для контроля вращения двигателя используйте редуктор, который можно сделать из ремней.

Не исключайте из производства бетономешалки этап проектирования. Процесс становится намного легче.

Сделаем выводы: бетономешалка является неотъемлемой частью строительных работ, и при небольших усилиях ее можно сделать своими руками как ручную так и с электродвигателем. Главное, не забывайте о чертежах, и тогда сам работа будет сделана без ошибок и за короткий срок!

Фото бетономешалок сделанных в домашних условиях

























dizajninterer.ru
Своими руками бетономешалка: подробная инструкция

Самодельная бетономешалка
Трудно представить возведение дома или другого объекта, без использования цементных растворов. А у владельцев собственных загородных домов, которые постоянно, что-то перестраивают и благоустраивают территории, бетонирование — очень востребованная операция: для заливки садовых дорожек, фундамента под беседку, обновления отмостки, установки забора.
Для облегчения процесса изготовления раствора, применяются разного рода приспособления. Как изготавливается своими руками бетономешалка разных конструкций, подскажет статья.
Содержание статьи
Требования к устройству

Использование бетономешалки при сооружении дома
Существует несколько вариантов изготовления бетономешалок. Они могут быть:
- Простыми, работающими за счет приложения усилия человеком.
- С применением электродвигателя.
- Собранными из подручных средств, своими руками.
В любом случае конструкция должна удовлетворять некоторым требованиям. К ним относятся:
- Безопасность при работе. Особенно это важно при использовании привода, работающего от электрического тока.
- Небольшая стоимость, простота изготовления. Комплектующие для сборки конструкции, и сама сборка, не должны быть дорогими.
- Легкость в использовании.

Привод на бетономешалке
Принцип работы бетономешалок
Такое оборудование отличается:
- Размерами.
- Формой емкости.
- Мощностью.
- Принципом смешивания.
Способы получения раствора представлены в таблице:
| Способ смешивания | Особенности |
![]() Схема бетономешалки принудительного типа На схеме основные узлы:
| Компоненты смешиваются в неподвижной емкости, за счет вращения вала, с прикрепленными на нем лопастями. Вал вращается механическим приводом. Чтобы изготовить такой бетоносмеситель своими руками, можно воспользоваться схемой, размещенной в таблице слева. При таком способе можно получить очень качественный раствор. Недостатки принудительного смешивания:
|
![]() Схема вибрационного способа На схеме:
| При достаточно простой схеме процесса изготовления раствора, необходимо соблюдать некоторые нюансы при изготовлении конструкции:
Таким способом можно получить раствор хорошего качества, но «тяжелые» составы со щебенкой или гравием приготовить достаточно сложно. |
Схема гравитационной бетономешалки | В этой конструкции раствор получается смешиванием компонентов под действием силы своей тяжести. Ось вращения может крепиться снаружи емкости, что не потребует дополнительной герметизации устройства, или проходить внутри барабана. Такие бетономешалки своими руками обеспечивают лучшую однородность перемешивания раствора за меньший промежуток времени. |
![]() Бетономешалка комбинированного принципа работы | В таких конструкциях совмещаются гравитационный и принудительный принципы работы бетономешалки. Их особенность — наличие на внутренней поверхности барабана жестко закрепленных лопастей. При вращении эти элементы перемещаются по отношению стремящегося падать под своей тяжестью вниз раствора. Преимущества конструкции:
|

Схема бетономешалки принудительного типа
На схеме основные узлы:
- Поз.1 – корпус.
- Поз. 2 – опорная рама.
- Поз. 3 – привод.
- Поз. 4 –пульт управления.
- Поз. 10 муфта предохранительная.
Компоненты смешиваются в неподвижной емкости, за счет вращения вала, с прикрепленными на нем лопастями. Вал вращается механическим приводом.
Чтобы изготовить такой бетоносмеситель своими руками, можно воспользоваться схемой, размещенной в таблице слева. При таком способе можно получить очень качественный раствор.
Недостатки принудительного смешивания:
- Вдоль стенок, а особенно по углам, трудно избежать «мертвых зон».
- Сложность конструкции.
- Практически невозможно приготовить в таком бетоносмесителе раствор с компонентами средней или крупной фракции. Но это отличный вариант, на основе которого можно изготовить пенобетоносмеситель своими руками.

Схема вибрационного способа
На схеме:
- Поз. 1 – емкость для смешивания раствора.
- Поз. 2 – кронштейн для крепления генератора импульсов или перфоратора, мощностью не менее 1,3 кВт.
- Поз. 6 – вибратор.
При достаточно простой схеме процесса изготовления раствора, необходимо соблюдать некоторые нюансы при изготовлении конструкции:
- Вибратор должен иметь такую форму, которая станет распространять в плотной среде колебания от центральной точки к периферии.
- Диаметр вибратора выбирается по мощности привода, исходя из примерной пропорции: на 1 кВт мощности перфоратора -150 ÷ 200 мм диаметр вибратора.
- Диаметр емкости выбирается так, чтобы между ее стенкой и наружным краем вибратора оставалось расстояние, равное радиусу тарелки.
- Уровень раствора под и над вибратором должны быть примерно равны диаметру «тарелок» вибратора.
Таким способом можно получить раствор хорошего качества, но «тяжелые» составы со щебенкой или гравием приготовить достаточно сложно. В этой конструкции раствор получается смешиванием компонентов под действием силы своей тяжести.
Ось вращения может крепиться снаружи емкости, что не потребует дополнительной герметизации устройства, или проходить внутри барабана. Такие бетономешалки своими руками обеспечивают лучшую однородность перемешивания раствора за меньший промежуток времени. В таких конструкциях совмещаются гравитационный и принудительный принципы работы бетономешалки.
Их особенность — наличие на внутренней поверхности барабана жестко закрепленных лопастей. При вращении эти элементы перемещаются по отношению стремящегося падать под своей тяжестью вниз раствора.
Преимущества конструкции:
- Собранный своими руками бетоносмеситель, не требует никакой герметизации: барабан постоянно открыт сверху; узел вращения элементов, производящих смешивание раствора, не имеет с ним контакта.
- Значительно меньший износ деталей.
- Простота, надежность при эксплуатации.
- Легко обслуживать.
- Нет ограничений при выборе компонентов для состава раствора: щебенки, гравия, керамзита.
Чтобы определить, какая лучше бетономешалка своими руками, видео-урок поможет разобраться со всеми тонкостями конструкций любого типа смешивания раствора.
Состав бетономешалки и советы по изготовлению

Схема устройства бетономешалки
Перед тем, как сделать своими руками бетономешалку, стоит познакомиться с основными ее составляющими узлами и прислушаться к советам специалистов.
Совет: Новичку в отношении сварки, который знает о ней лишь понаслышке, не стоит приниматься за изготовление бетономешалки своими руками, а все работы доверить человеку знакомому с этим делом.
Далее необходимо:
- Оценить рентабельность будущей конструкции. При необходимости приобретения всех деталей, скорее всего, дешевле будет приобрести готовую модель.
- Иметь опыт в конструировании.
- Подготовить все необходимые материалы, желательно по минимальной стоимости.
- Иметь огромное желание сделать бетономешалку своими руками, невзирая на сложность конструкции.
Рассматривая любую конструкцию, можно выделить три ее основных части:
- Бадья или барабан. При этом для механического или комбинированного способов, емкость цилиндрической формы, для смешивания компонентов не очень подходит, из-за плохого перемешивания раствора в ее углах.
Избежать этого можно, но потребуется помощь человека, для перемешивания раствора вручную или увеличить время перемешивания, а это приведет к дополнительным энергозатратам.
Совет: Для улучшения качества бетона, бадью бетономешалки следует располагать горизонтально и использовать гребенчатый миксер.
Лучше всего скруглить бадью, придать ей форму груши или яйца. При небольшом объеме раствора, вместо бочки можно использовать два металлических или пластиковых тазика, но лишь в случае, если работать агрегат будет очень редко.
Для этого: вырезается дно одного тазика, горловина емкости укрепляется одной или двумя планками, закрепленными крест-накрест. Устанавливать такую конструкцию можно лишь под наклоном, сделать боковую выгрузку не получится.
- Привод. Сделать бетономешалку с зубчатым венцом на корпусе, как в готовых фирменных конструкциях, в домашних условиях не получиться, а приобрести дороговато, однако этот узел можно заменить. Для этого необходимо иметь:
- От автомобильного двигателя – маховик.
- Шестеренку-бендинг.
- Ступицу от колеса.
По первому варианту: ось барабана одним концом заходит во втулку с шарикоподшипником, расположенную внутри ступицы. Маховик и емкость будут вращаться вокруг оси.
По второму варианту: ступица приваривается к маховику, а барабан крепится к ступице за заднее днище. При этом одна муфта закрепляется на маховик, а вторая устанавливается для усиления горловины.
После расположения емкости под наклоном, верхний подшипник конструкции, будет засыпаться бетоном. Этот вариант лучше использовать при расположении барабана в горизонтальном положении, с боковой выгрузкой готового раствора и глухим дном.
Совет: При наличии под рукой редуктора с нужным передаточным отношением, его можно использовать для бетономешалки, подсоединив к оси. Для бака, расположенного с наклоном, берется редуктор с прямозубыми колесами, при горизонтальной установке – косозубыми, с оптимальной скоростью вращения до 50 об/мин.
Привод для конструкции можно приспособить из мотоблока, как на фото.

Бетономешалка своими руками из мотоблока

Бетономешалка своими руками на трактор
- Миксер. Какое расположение миксера имеет бетономешалка своими силами, большого значения не имеет. Для конструкции из бочки, и подобных емкостей, узел приваривается к оси. Исключение – крепление гребенчатого миксера.
После знакомства с основными узлами конструкции, выбора способа смешивания раствора, можно приступать к сборке бетономешалки своими руками, видео подскажет, как это сделать правильно.
Подготовка к изготовлению бетономешалки
Перед изготовлением конструкции, необходимо сделать чертеж или эскиз будущего изделия, подготовить место сборки: подвести электричество, обеспечить, чтобы шум и грязь не попадали в жилой дом или грядки с растениями.

Чертеж для изготовления бетоносмесителя
Из инструментов могут понадобиться:
- Аппарат для сварки.
- Электрическая дрель.
- Набор отверток.
- Ножовка по металлу.
- Емкость.
- Металлический прокат для изготовления рамы.
- Подобрать мотор, мощностью минимум 1,3 кВт.
- Металл для лопаток, используемых при перемешивании компонентов.
- Если это будет шнековая бетономешалка своими руками, понадобится подобрать или изготовить шнековый вал.
На стадии подготовки к работе необходимо решить вопрос, будет бетономешалка для заливки фундамента своими руками на колесах или стационарная. После этого можно приступать к работе.
Но для более качественной сборки конструкции, решения всех вопросов, как изготавливается своими руками бетономешалка, видео окажет неоспоримую помощь.
Изготовление ручной бетономешалки

Эскиз для сборки простейшей бетономешалки
Представленная на эскизе мини бетономешалка своими руками, может быть изготовлена из материалов, которые можно найти у любого хозяина своего участка. При этом:
- Емкостью может быть старая бочка, с двух сторон закрытая крышками, или большого диаметра труба с заваренными с двух сторон торцами. По центру, по длине бочки вырезается отверстие, для загрузки компонентов и выгрузки готового раствора.
- По центрам обоих торцов просверливаются отверстия, под имеющуюся в наличии трубу, которая будет служить осью вращения емкости.
- Для большей жесткости конструкции на торцы привариваются или прикручиваются фланцы, внутренний диаметр которых выполняется с небольшим, до 0,5 мм зазором с осью.
- Внутри бочки крепится на болтах или приваривается гребенка, что улучшает смешивание компонентов для получения раствора.
- Ось с барабаном крепится на опоры. Собрать их можно из швеллеров или уголков, которые имеются в наличии.
- На конце оси крепится кронштейн с рукояткой.
Изготовление бетономешалки с приводом

Привод на бетономешалке
Большая бетономешалка своими руками изготавливается с электроприводом.
Инструкция по ее сборке предлагает такой порядок работ:
- Собирается рама с бочкой для будущего агрегата. Она должна быть достаточно прочной, из-за большой нагрузки на основание. При этом:
- Раму стоит изготавливать их профильного уголка со стенками не менее 130 мм.
- Для крепления элементов используются болты диаметром 27 мм.
- Бочка устанавливается под углом 35°.
- Для передачи крутящего момента от двигателя на бочку, крепится зубчатый венец, его можно использовать от двигателя автомобиля «Волги», приварить или прикрутить болтами.
- На раму крепится редуктор.
- Устанавливается бочка. Внутреннюю часть барабана можно наполнить по своему усмотрению или воспользоваться такой же конструкцией, как и для ручной бетономешалки.
- Для изготовления пеноблоков, собирается бетономешалка для пенобетона своими руками. Ее отличие от бетономешалок — наличие специального перемешивающего устройства.

Смеситель для пенобетона своими руками
- Крепится штурвал для опрокидывания бочки.
Чтобы изготовить бетономешалку своими руками любого вида, для большей наглядности проведения работ по сборке, стоит просмотреть видео в этой статье.
Несколько советов по эксплуатации оборудования
Собранная конструкция, как и любое оборудование, требует соблюдения правил эксплуатации:
- Нельзя опускать руки во вращающийся барабан.
- При подключении электричества нужно следить за исправностью проводки.
- Даже к неработающему агрегату не следует подпускать детей.
- При использовании передвижной конструкции, всегда нужно ставить под колеса упоры, перед началом работы.
- Из-за большой вибрации барабана, могут нарушиться соединение элементов в узлах, которые требуют периодического подтягивания крепежных деталей.
- Никогда нельзя оставлять включенную технику без присмотра.
Изготовленная даже самая простая бетономешалка своими руками, значительно облегчает выполнение тяжелой работы, связанной с использованием бетонного раствора, экономит не только силы, но и время человека.
beton-house.com
Бетономешалка своими руками: чертежи, фото
Содержание статьи:
По своим размерам бетономешалки могут отличаться друг от друга. Все зависит от предназначения данного агрегата – будет они применяться в промышленных целях или в производстве частного масштаба. Для обычного аппарата в работе не предусмотрено никаких особых сложностей. Управляться с ним можно и без специальных навыков, другими словами. Но благодаря достижению современных технологических высот даже такие агрегаты стали более совершенными в работе. Пример – два вала, которые позволяют получить бетон более высокого качества, либо при необходимости приготовить больший объем замешиваемого раствора.
Для домашних мастеров нет ничего невозможного, в том числе и сделать бетономешалку своими руками, чертежи, фото которых можно найти легко в интернете. Как показала практика, это вполне реально. А учитывая, сколько стоит бетономешалка для дома, то это все однозначно имеет смысл. Прочесть более подробно о самодельных бетономешалках и посмотреть видео о них вы можете в этой статье.
Что вообще представляет собой самая простая бетономешалка? Не что иное, как приспособление, в котором можно смешать цемент с водой и нужными заполнителями до соответствующего состояния.
В чём заключается процесс перемешивания в бетономешалке
Процесс перемешивания начинается после того, как все ингредиенты поступили в барабан.
Сколько мешать по времени – решает сам пользователь. Получиться должна в результате качественная смесь бетона. По особенностям производства различают бетономешалки с гравитационным или принудительным перемешиванием.
Во втором случае сама емкость остается неподвижной, а перемешивание осуществляется за счет лопастей особой формы. Первый предполагает наличие вращающегося барабана, внутри которого расположены лопасти. В процессе подъема и опускания смеси, которое происходит многократно, получается раствор нужной консистенции. Гравитационные установки позволяют смешивать как строительные растворы, так и бетонные смеси, которые считаются более жесткими.
Как приготовить раствор для бетономешалки
Чтобы в домашних условиях приготовит нужное количество раствора, достаточно воспользоваться мини-бетономешалкой. Барабан закреплен на основании с колесиками, а работа осуществляется при помощи электроэнергии. Агрегат удобно перемещать, а емкость разворачивать так, чтобы можно было бетон погрузить на тележку.
- Приобретая устройство подобного типа, нужно опираться на знание масштабов смеси (единоразово) и размеров оборудования. Что пригодится для того, чтобы бетономешалку своими руками соорудить дома? Электрический двигатель, бак для раствора, подшипники (2 штуки), составляющие лопастей и каркаса, вал привода.
Емкостью для состава вполне может служить бочка (из пластика или металла), объемом не менее 200 л. Приводной вал – обыкновенный прут или труба из металла, а балки, уголки, арматуру обрезанную можно успешно использовать как элементы конструкции.
Электрический двигатель — одна из важных частей установки, поэтому для этой цели лучше найти приводной механизм со скоростью вращения в минуту 1500 оборотов с обозначенной мощностью 2200 вольт. Вал привода при этом не должен вращаться со скоростью более 48 оборотов за минуту. Чтобы этого добиться, необходимо подобрать для этой цели шкивы ременной передачи или еще один редуктор.
На дне резервуара получают отверстия для закрепления вала и резервуара. Ингредиенты загружаются сбоку, для чего в этом месте необходимо прорезать отверстие в виде, например, прямоугольника с размерами 24х30 см. Края люка защищают резиновой прослойкой, а потом бочку соединяют с крышкой отверстия шарнирами через болты. То же самое можно сделать при помощи карточных петель.
Основная задача – сделать так, чтобы люк во время работы агрегата прилегал как можно более плотно. Решить эту задачу можно посредством металлических уголков, стянутых болтами. Внутри бочки необходимо поставить крестовину (швеллера или уголки). Приварить их нужно таким образом, чтобы между стенками емкости и устройством остался зазор не меньше 10-15 мм. Таким образом, раствор можно будет перемешивать более однородно.
Уголки из металла пригодятся и для того, чтобы сделать приспособление для опрокидывания резервуара, плюс к этому устройство для облегчения передвижения бетономешалки. Внутри емкости, как известно, смесь хранить нельзя. Поэтому необходимо рассчитать объем самодельной бетономешалки так, чтобы готовый раствор не превышал объема 8 литров.
Знание секретов замешивания «правильного» раствора» не менее важно, чем сбор приспособления для этой цели собственными руками. Об изготовлении бетоносмесителя собственноручно вы можете здесь.
Кубический метр бетона требует 125 л. воды. Кроме этого, понадобятся песок и гравий. Соотношение гравия и песка – 1,2/1.
Поэтому бетономешалка своими руками, чертежи, фото которой без проблем можно найти, собирается легко, только перед этим надо прочитать полезную литературу. Либо необходимо обратиться к знающему и опытному специалисту, для того чтобы он помог вам с созданием такого приспособления, как бетономешалка. Другой опыт изготовления бетономешалки своими руками вы можете почитать тут.
dom-fundament.ru
Бетономешалка своими руками поэтапно, советы и рекомендации
Ни одно капитальное строительство не обходится без применения бетонного раствора. Вручную замешивать его при больших объёмах работ – занятие невероятно трудоёмкое, без бетономешалки не обойтись. Если приобрести технику нет возможности или старая модель вышла из строя, можно сделать бетономешалку своими руками, взяв за основу опыт и рекомендации мастеров.
Какие бетономешалки бывают
Для того чтобы приняться за конструирование собственного изобретения, нужно ознакомиться с видами бетономешалок, выпускаемыми в производственных условиях.
Принцип работы машины заключается в заполнении ёмкости ингредиентами, из которых делают бетон (песок, цемент, щебень, вода). Бак подключён к мотору, который обеспечивает его вращение, необходимое для тщательного смешивания всех компонентов. Продолжительность замеса зависит от количества бетона и качества работы устройства.
Вращательные движения можно получить с помощью принудительного или гравитационного перемешивания. В первом случае компоненты смешиваются лопастями, установленными внутри бака, при этом сама ёмкость остаётся неподвижной. Второй вариант предусматривает замес ингредиентов посредством круговых движений бака. Тщательное перемешивание обеспечивают неподвижные лопасти, установленные на внутренних стенках ёмкости.

Характеристики бетономешалки
Устройство бетономешалки простое. Все элементы конструкции крепятся на раме с колёсиками, которые дают возможность без усилий перемещать технику по участку. По центру размещается бак (барабан) с отверстием для заброса ингредиентов и изъятия готового бетона. С боку ёмкости фиксируется двигатель. От него идёт провод для подсоединения в электрическую сеть. Барабан можно сделать поворотным по горизонтальной оси, чтобы выгрузка раствора была удобной.
Более сложная техника предусматривает наличие бункеров, через которые происходит автоматический заброс компонентов в бак. Это экономит время и на приготовление бетона и сокращает трудозатраты.
Что понадобится для сборки бетономешалки своими руками
Мастеровитые хозяева находят применение всякой мелочи, казалось бы, непригодной в быту. Поэтому каждый может с подбором комплектующих поэкспериментировать (в пределах разумного). Один из вариантов бетономешалок состоит из следующих узлов:
• ёмкости, в которой замешиваются ингредиенты;
• приводного вала;
• двух подшипников;
• электродвигателя, редуктора;
• деталей для каркаса и лопастей;
• пусковой кнопки, кондиционного короба и провода с вилкой.

Для получения рабочей порции раствора нужно брать бак объёмом минимум 200 л. Это может быть как металлическая, так и пластиковая бочка. Толщина металла стен должна быть не менее 2 мм, дна – от 5 мм. Ёмкость берётся преимущественно в виде цилиндра с зауженной горловиной. В качестве приводного вала используется круглая труба или прочный прут. Среди других элементов конструкции: обрезки швеллера, арматуры, уголка.
Характеристики двигателя должны соответствовать номинальной мощности 2200 Вт, которая обеспечивает движение бака со скоростью 1500 оборотов в минуту. При этом рекомендуемая скорость вращения приводного вала составляет 48 оборотов в минуту. Достичь показателя можно путём установки редуктора или соответствующие шкивы ременной передачи.

Этапы сборки конструкции
1. В округлой бочке проделать сквозные отверстия примерно по центру боковых сторон. В них будет входить вал для соединения с барабаном.
2. К донной части бочки приварить зубчатый венец. Он является частью редуктора.
3. К боковым сторонам изнутри ёмкости приварить по диагонали лопатки (лопасти). Высота их не должна превышать 15 см.
4. К зубчатому венцу закрепить шестерню меньшего диаметра.
5. Из швеллера либо уголков сварить элементы рамы, которые по виду напоминают букву А. Соединить обе детали между собой швеллером, учитывая, что интервал между ними должен соответствовать параметрам бочки и крепежам. В принципе форма рамы моет быть разной, главное, чтобы она обеспечивала устойчивость конструкции в момент работы двигателя.
6. Усилить раму наклонной стойкой, к которой фиксируется конденсаторная коробка и пускатель.
7. Закрепить на раму двигатель и редуктор.

8. Фланец-ступицу насадить на редуктор. Зафиксировать миксер шпонкой и болтом через отверстие на валу.
9. Подсоединить двигатель с пускателем и проводом, на конце которого устанавливается вилка.
10. Ножки рамы оснастить колёсиками, если есть потребность перемещать бетономешалку по участку.
11. Металлический бак покрасить защитной эмалью. Краской пройтись нужно только по наружной поверхности.
Завершается сборка тестовым запуском без заполнения бака ингредиентами.
Советы/рекомендации
• Оптимальная скорость вращения вала на бетономешалке составляет 30-50 оборотов в минуту. Если установить двигатель малой мощности, то потребуются большие затраты электроэнергии на замес бетонного раствора. К тому же строительство будет вестись медленней. При оснащении конструкции двигателем большой мощности, то при перемешивании раствор будет разбрызгиваться через горловину бочки.
• Если на участке нет электричества, то устройство самодельной бетономешалки упрощается. На бак продевается вал, к которому крепится ручка. Достаточно её просто вращать, чтоб осуществлялся замес бетона.
• В качестве ёмкости для бетономешалки подойдёт бак от старой стиральной машины. А рабочий двигатель от этой же техники вполне сойдёт за привод.
• При фиксации бака стоит учесть, что его наклон должен соответствовать 20-40 градусам.
• Ингредиенты засыпаются в ёмкость бетономешалки в такой последовательности: вначале вливают воду, после чего поочерёдно вводят цемент и песок. В последнюю очередь добавляют щебень.
• После каждого рабочего дня бетономешалку необходимо вымыть, тщательно очищая углы в зоне фиксации лопастей.
Посмотрите видео «Бетономешалка своими руками»
Поделиться:
Рекомендуем прочитать:
nastroike.com
Бетономешалка своими руками: чертежи, инструкция
Зачем использовать ручной способ замеса бетона и раствора? Существенно облегчить вашу работу может данная статья. С её помощью вы получите более качественный получаемый материал при меньших физических затратах.
Виды бетономешалок
Более качественный цемент получается из бетономешалок изготовленных для промышленных нужд, в таких устройствах могут присутствовать два вала, но куда более рациональным для личных потребностей будет работа с бетономешалками собственного производства (т.е. созданных своими руками).
Бетономешалка доводит до состояния однородности цемент, наполнитель, воду. В роли второго при этом выступают щебень, песок, отсев. Давайте рассмотрим два варианта устройства бетономешалок: с принудительным перемешиванием и гравитационным.
- Принудительный тип — движение лопастей осуществляет процесс перемешивания, барабан остается неподвижным.
- Гравитационный тип — лопасти располагаются внутри барабана, при этом барабан вращается. Кроме строительных растворов, такой тип бетономешалок так же работает и с цементом. Чаще всего именно такой вариант люди предпочитают для домашнего использования.
Чертежи самодельной бетономешалки


Бетономешалка: производство в домашних условиях
К составляющим которые выступают для вас в роли «конструктора» относятся:
- емкость раствора (старайтесь использовать бочку из метала)
- минимум два подшипника
- материалы лопастей
- приводной вал
- электродвигатель
- материалы каркаса
В изготовлении приводного вала для бенотомешалки используют трубу или прут, остаточные части швеллеров и арматуры подойдут для использования в изготовлении частей корпуса, а так же лопастей.
Особое внимание уделите такой детали как электродвигатель, убедитесь что он достаточно мощный для того что бы корректно работать с емкостями которые имеют большой вес. Для изготовления бетономешалки в домашних условиях вам подойдет эта часть конструкции со следующими характеристиками: кол-во оборотов 1500, «сила» 2,2 кВт. Не забывайте так же о том, что эту скорость необходимо держать в пределах до 48 оборотов за минуту. Редуктор, как аналог ременная передача с подходящими шкивами помогут вас справиться с этой задачей.

Правильная работа домашней бетономешалкой
Приводной вал самодельной бетономешалки необходимо размещать на дне бочки, для этих целей сделайте отверстие и должным образом закрепите эту часть конструкции, далее на нее устанавливается шкив, оборудование «оживает» с помощью электродвигателя, которому в этом помогает ременная передача. Для работы с элементами содержимого в емкости — сделайте отверстие (люк), размер будет достаточным в пределах 35х30 см. Фиксируйте люк шарнирами и болтами, края при этом следует оклеить резиной. Для правильной работы, что бы вы не потеряли часть содержимого, убедитесь что люк в достаточной мере прилегает.
Из швеллера и уголков изготавливают такую часть внутренности бочки как крестовина. При этом её нужно приварить. Для равномерности вымешивания содержимого емкости, обязательно оставляйте 10-15 мм между краем бочки. Не забывайте о необходимой части в конструкции — устройство с помощью которого будет происходить опрокидывание бочки. Не лишней окажется и ручка предназначенная для транспортировки вашего изделия.
Аналогичный способ в изготовлении бетономешалки
На дне бочки бетономешалки, а так же по её центру по середине необходимо сделать отверстие — в него будет помещаться вал. Крепления в количестве двух штук изготовьте из уголков, оно должно иметь форму буквы А. Треть бочки отсеките с использованием болгарки. Подшипники помогут провести соединение между валом и бочкой. Мешалку необходимо устанавливать так, что бы она всего на пару миллиметров доставала до стен бочки, это устройство изготавливается на вал. Электродвигатель работает при помощи ременного вала.
Оборот вращения в этой ситуации так же не должен превышать значения 48-ми за одну минуту. В этом варианте конструкций сама бочка остается неподвижной, работает мешалка на валу. Когда этап перемешивания закончен, высыпается содержимое при помощи ручки. Этот вариант не предусматривает люк.
Бетономешалка ручная
Этот вид бетономешалок поможет вам в случаях когда электродвигатель найти не предоставляется возможности.
Вам понадобится бидон, как аналог можно использовать флягу. Ось с ручкой пропускается через эту флягу или бидон. Раму необходимо изготовить из уголка, использовав подшипники прикрепите ось, определив центр тяжести бидона.

Процесс приготовления бетона
Помните, качество получаемого раствора или цемента зависит не только от вашей бетономешалки, но и от других факторов! Придерживайтесь правильных пропорций. Один куб. м. для изготовления раствора расходует 125 л. воды, качество пойдет на спад при не соблюдении этой пропорции! Если говорить про правильные пропорции песка при работе с гравием — 1:1,3, если же речь идет о щебне — один к двум.
Важный момент: в изготовлении раствора использованный песок должен быть хорошего качества, это сильно влияет на полчаемый результат. Песок должен быть чистым! В летний период для процесса приготовления подойдет и холодная вода, если же это зима — температура должна составить 40°.
Видео
positroika-doma.ru
