Проекты бань из газобетона фото
Классическая баня — это, конечно, деревянная конструкция. Кто бы что ни говорил, лучше деревянной рубленой бани быть не может ничего. Только древесина дорожает не по дням, а по часам, поэтому надежды о настоящей парилке с ядрёным хвойным душком отплывают все дальше с каждой новой партией экспортируемого леса. Так что же, кроме древесины не из чего строить баню? Выход, безусловно, есть и этот выход — баня из газобетона.
Содержание:
- Почему выбирают газобетон
- Проблемы газоблоков
- Чем хорош газобетон для бани
- Проектирование бани из блоков
- Гидроизоляция стен и внутренняя отделка
Почему выбирают газобетон

Проекты бань из газобетона фото и чертежи которых рассмотрены на странице, имеют такое же право на жизнь, как и бани из бруса или оцилиндрованного бревна. В чем-то они даже могут посоперничать с классическими деревянными постройками, но для начала стоит разобраться в характеристиках материала, из которого мы собираемся строить. Но нужно помнить о том, что из какого материала не выполнялись бы стены, к отделочным работам, если стены не деревянные, будут повышенные требования.
Газобетонные блоки выбирают по нескольким причинам, но основная из них — простота в постройке. Кроме этого, блоки гораздо дешевле клеенного бруса, а тем более, натурального оцилиндрованного бревна. Постройка получается лёгкой, практичной и надёжной, не нужно устраивать массивный фундамент, да и своими руками можно сделать большую часть работы. Единственное, что может настораживать при выборе газобетона — повышенная гигроскопичность.

CREATOR: gd-jpeg v1.0 (using IJG JPEG v80), quality = 85
Проблемы газоблоков

Как с этим бороться, мы сейчас разберёмся, только есть одно условие — если мы все же выбираем газобетон для бани, специалисты настоятельно не рекомендуют красить или покрывать штукатуркой наружную сторону стены. Это приведёт к тому, что в структуре материала неизбежно образуется избыток влаги, а последствия этого могут быть самые непредсказуемые.
Ещё одним непременным условием постройки бани по такому методу — тщательная гидроизоляция внутренней поверхности стен. Ситуация несколько упрощается тем, что газобетон имеет отличные теплосберегающие свойства, поэтому особенно налегать на теплоизоляцию не придётся, а вот о гидроизоляции позаботиться нужно.

Чем хорош газобетон для бани
Теперь, чтобы окончательно успокоиться и приступить к проектированию бани, посмотрим на положительные аспекты применения газобетонных блоков:
- газобетон — лёгкий материал, поэтому можно будет сэкономить на громоздком фундаменте;
- экономия на утеплителях, поскольку блок хорошо держит тепло;
- структура газобетона не подвержена влиянию плесени, в ней не разводятся бактерии, ею не интересуются грызуны;
- баня из газобетона будет пожароустойчива, поскольку сам материал не горит и не поддерживает огонь;
- отличная возможность совместить в проекте гостевой дом и баню из газобетона.

Проектирование бани из блоков
Перед тем, как приступить к проектированию бани, стоит хорошо изучить свойства материала, поскольку многие технологические моменты во время строительства основываются именно на них. К примеру, специалисты рекомендуют в таких банях использовать сухие парные, сауны, для того чтобы минимизировать влияние влаги на поверхность стен. Также необходимо очень тщательно продумать систему вентиляции.

Тип фундамента может быть спланирован любой, но в том случае, если готовится проект двухэтажной бани из газобетона, то лучше выбирать из плитного фундамента или армированного ленточного. Для остальных типов проектов, одноэтажных или проектов бань с комнатой отдыха и даже с мансардой, достаточно будет свайного фундамента. Он очень облегчит подводку и подключение коммуникаций и стоить будет дешевле, чем остальные типы оснований.

Гидроизоляция стен и внутренняя отделка

Толщина стен выбирается в зависимости от площади помещения. К примеру, если баня не более 20 квадратов, то вполне достаточно будет возвести стены в половину блока. Его теплосберегающих свойств хватит с запасом. Но если площадь больше, тогда стоит укладывать стены в один блок. Снаружи стены облицовываются вентилируемыми типами фасадов — либо облицовочным кирпичом или клинкерной плиткой, но дешевле всего будет применить сайдинг под бревно.

В основном при проектировании подобных зданий, предполагают применение паропроникающей мембраны, которая пропускает влагу только в одном направлении. Это также послужит дополнительным барьером для холода и не выпустит из помещения тёплый воздух. Несколько видов проектов, которые мы представили ниже, предполагают наличие в бане комнаты отдыха, бассейна, хозяйственного помещения.

Перед тем, как делать чистовую отделку стен из газобетонных блоков, они должны быть покрыты специальной водооталкиавющей грунтовкой или оббить стены фольгированной плёнкой. Таким образом, расходы на строительство бани сокращаются более чем в два раза по сравнению с деревянной постройкой, а большую часть строительных работ можно выполнить самостоятельно, что ещё уменьшит себестоимость проекта. Удачной всем работы и с лёгким паром!
nashprorab.com
Дом баня из газобетона проекты фото
Выбор проекта бани из газобетона
Проект бани из газобетона – это второй по популярности в России проект строительства банных комплексов. Несмотря на то, что газо- или пенобетон на строительном рынке нашей страны появился относительно недавно, он быстро завоевал популярность благодаря своей дешевизне, лёгкости, а также потому, что его можно обрабатывать всеми известными способами.В связи с этим баня из газобетона и проекты её строительства предлагаются в числе первых при обращении домовладельцев строительные компании или архитектурные бюро с целью заказать возведение бани за городом.

Плюсы и минусы бань из газобетона
Проект бани из газобетона имеет свои плюсы и минусы. Связанно это с особенностями производства данного строительного материала и его техническими характеристиками. Так, например, к плюсам газобетона можно отнести:
- Хороший уровень теплоизоляции, сопоставимый с брусом. При этом построить баню с помощью данного материала можно в два-три раза дешевле, чем применяя брус. Если же сравнить пеноблоки с кирпичом, то один их ряд будет равен полутора рядам кирпича.
- Газобетон очень прочный, и его можно сопоставить по этому показателю с кирпичом или же деревом. При этом его можно пилить обыкновенной ножовкой по дереву.
- Блоки, изготовленные из газобетона, не выделяют вредных веществ при нагревании, при этом они не гниют и не боятся воздействия агрессивных химических веществ. В них не поселяются грызуны, а также не развиваются микроорганизмы.
- Стены из пеноблоков собираются на порядок быстрее, чем стены из кирпича и дерева. В результате строительство зданий из них можно вести без применения тяжёлой строительной техники.

- Из-за того, что данный материал очень лёгкий, у вас отпадает необходимость возведения массивного фундамента. Здесь вполне подойдёт ленточный фундамент, заглубленный в грунт ниже точки его промерзания.
- Ещё одним плюсом строительства бани из пеноблока является то обстоятельство, что бани из газобетона, их проекты и фото можно найти на многих сайтах строительных компаний. В результате вы сможете выбрать проект по своему вкусу и потребностям.
Что же касается минусов стро
superbany.ru
Как разработать проект бани из газобетона
Проект бани из газобетона – это второй по популярности в России проект строительства банных комплексов. Несмотря на то, что газо- или пенобетон на строительном рынке нашей страны появился относительно недавно, он быстро завоевал популярность благодаря своей дешевизне, лёгкости, а также потому, что его можно обрабатывать всеми известными способами.
В связи с этим баня из газобетона и проекты её строительства предлагаются в числе первых при обращении домовладельцев строительные компании или архитектурные бюро с целью заказать возведение бани за городом.
Плюсы и минусы бань из газобетона
Проект бани из газобетона имеет свои плюсы и минусы. Связанно это с особенностями производства данного строительного материала и его техническими характеристиками. Так, например, к плюсам газобетона можно отнести:
- Хороший уровень теплоизоляции, сопоставимый с брусом. При этом построить баню с помощью данного материала можно в два-три раза дешевле, чем применяя брус. Если же сравнить пеноблоки с кирпичом, то один их ряд будет равен полутора рядам кирпича.
- Газобетон очень прочный, и его можно сопоставить по этому показателю с кирпичом или же деревом. При этом его можно пилить обыкновенной ножовкой по дереву.
- Блоки, изготовленные из газобетона, не выделяют вредных веществ при нагревании, при этом они не гниют и не боятся воздействия агрессивных химических веществ. В них не поселяются грызуны, а также не развиваются микроорганизмы.
- Стены из пеноблоков собираются на порядок быстрее, чем стены из кирпича и дерева. В результате строительство зданий из них можно вести без применения тяжёлой строительной техники.

- Из-за того, что данный материал очень лёгкий, у вас отпадает необходимость возведения массивного фундамента. Здесь вполне подойдёт ленточный фундамент, заглубленный в грунт ниже точки его промерзания.
- Ещё одним плюсом строительства бани из пеноблока является то обстоятельство, что бани из газобетона, их проекты и фото можно найти на многих сайтах строительных компаний. В результате вы сможете выбрать проект по своему вкусу и потребностям.
Что же касается минусов строительства зданий из газоблков, то они следующие:
- Высокая степень влагопроницаемости. Связанно это с тем, что этот строительный материал имеет пористую структуру, которая прекрасно впитывает в себя воду. В результате придётся в вашей бане обустраивать дополнительную систему вентиляции, которая «съест» полезную площадь. При этом как альтернатива имеется вариант установки окон во всех помещениях бани, но это приведёт к увеличению уровня теплопотерь.
- Неизвестен срок службы данного материала, так как он изобретён недавно и пока что не зафиксированы случаи его разрушения под действием времени.
- Некоторые любители бани утверждают, что стены из газобетона создают иной микроклимат в помещении, чем деревянные. Однако данный недостаток можно достаточно легко исправить, используя отделку из дерева.
В любом случае положительные качества газобетона превалируют над отрицательными, поэтому имеет смысл взять на заметку проект строительства бани из данного материала.
Критерии выбора проекта
Сравнивая бани из газобетона, их проекты и цены для того чтобы выбрать один из вариантов будущего строительства, необходимо учитывать несколько моментов. Так, первоначально вы должны решить, какие именно размеры будет иметь ваша баня, сколько в ней будет помещений, какой её вид будет с архитектурной точки зрения. Например, русская баня обычно имеет небольшие размеры, так как в ней традиционно устраивается всего лишь 2 помещения: предбанник и парилка. А та же баня, совмещённая с гостевым домиком, может иметь несколько комнат и большую площадь.
Кроме того, весьма распространены проекты бань из газобетона с мансардой, а это уже практически второй этаж, где можно поместить комнаты для гостей или же бильярдную. Естественно, что и площадь первого этажа возрастёт. Всё это будет напрямую влиять на стоимость всего строительства, но в этом случае уровень комфорта вашего банного отдыха значительно повыситься.
При этом стоит отметить то обстоятельство, что баня, возведённая из газоблоков, будет иметь небольшой вес. В результате её можно будет разместить на слабых грунтах, где строительство более тяжёлого сооружения просто запрещено. Это открывает перед вами широкие возможности по её размещению на участке, но при этом при подборе вариантов такого строительства необходимо советоваться с опытным архитектором, который учтёт все нюансы подобного проект и последующего воплощения его в жизнь.
Кроме того, проект бани из газобетона позволяет использовать при строительстве самый лёгкий и дешёвый фундамент ленточного типа. В результате вы сможете сэкономить до 20% стоимости всего строительства.
Фундаменты ленточного типа вполне можно залить самому, а это ещё одна возможность для экономии.
При выборе проека бани из пеноблоков стоит сразу же определиться с тем, как будет размещаться в ней печь. Дело в том, что данная конструкция может быть установлена как на общем фундаменте, так и на отдельном. Обычно кирпичные печи кладутся на отдельном фундаменте из-за их большого веса, металлические же можно устанавливать на конструкции пола и фундамента самой бани.
В любом случае способ отопления данного здания в обязательном порядке должен быть отражён в вашей проектно-строительной документации. Этого требуют СНИПы и нормы противопожарной безопасности.
Особенности кладки стен из газобетона
В том случае, когда баню из газобетона вы будете строить самостоятельно, вам стоит иметь в виду некоторые нюансы выполнения кладки стен из него. Они должны быть отражены в проекте строительства вашего здания. Так, например, кладку блоков из газобетона можно вести при температуре от +5 ºС до +25 ºС. При этом, когда температура достигает верхней планки, поверхность газобетонных блоков необходимо будет увлажнить водой. Если же вы будете вести строительство вашей бани зимой, в раствор придётся добавить специальную противоморозную добавку для лучшей его схватываемости.
При возведении помещений из газобетона в обязательном порядке выполняется горизонтальная гидроизоляция между фундаментом и кладкой, основное предназначение которой – обеспечить её защиту от влаги. С этой целью можно использовать любые материалы, изготовленные на основе битума, например, рубероид. Кроме того, можно будет воспользоваться специальными гидроизоляционными полимерцементными растворами, приготовляемыми из сухих смесей
Кроме того, перед началом кладки необходимо будет произвести выравнивание фундамента. Далее можно будет приступать к первому ряду кладки. Для этого задаётся ровная горизонтальная поверхность, что максимально может облегчить укладку последующих рядов. Во время кладки постоянно контролируют её ровность по горизонтали и правильность выкладки углов. При этом небольшие неровности можно выправить при помощи обыкновенного рубанка.
При кладке стен из газобетона можно использовать как готовые смеси, так и приготовлены самостоятельно. Блок должен быть установлен на нанесённую смесь в течение 15 минут, если установить его позже, он не схватится с ним. Иногда блоки бывают пазогребной формы. Это тоже должно быть отражено в проекте строительства бани. В этом случае раствор необходимо будет нанести на гребень блока и его пазы. При этом блоки обычно ведут с перевязкой в полблока.
Для упрочнения кладки используют армирование. Это краткие пояснения по поводу ведения кладки блоков из газобетона. Более подробную информацию можно получить не только из проекта строительства, но и из технологических карт проведения той или иной операции в процессе строительства.
Выбор варианта размещения помещений
Изучив и выбрав способы выполнения кладки, стоит далее провести подбор вариантов размещения помещений в вашей бане. При этом недорогое бюджетное строение, которое будет обслуживать одного-двух человек, можно будет выполнить и варианте двух помещений — предбанник и парилка. В предбаннике будет находиться раздевалка и кладовая для хранения банных аксессуаров. В парилке же можно будет непосредственно париться и мыться.
В том же случае, когда вы решите построить для себя более комфортабельную и просторную баню, вам нужно будет присмотреть проект, включающий, по крайней мере, три помещения: предбанник, моечная и парилка. Здесь каждое помещение будет выполнять своё назначение: мыться вы будете только в моечной, а в парной только париться.
В отличие от парилки, предбанник обычно имеет окно, при этом его общая площадь должна быть не менее шести квадратных метров. При этом необходимо выбирать такой проект, в котором дверь парной будет открываться в сторону предбанника, что поможет избежать несчастных случаев во время парения. Обычно к ним относят случаи угорания, а при размещении двери таком образом её можно будет открыть снаружи в случае необходимости.
Что же касается самой моечной, то СНИПы предусматривают для неё показатель в 1,2 м2 на человека. Однако в том случае, когда у вас имеется возможность расширить площадь моечной, в ней можно дополнительно установить ванну или же душевую кабину. При этом некоторые домовладельцы размещают в помещении бани мини-бассейны. В том же случае, когда вы захотите обзавестись полноценным бассейном, имеет смысл его построить рядом с баней в виде отдельной конструкции.
Что же касается парилки, то она как раз должна быть небольшого размера. Только в этом случае вы сможете добиться хорошего жара в ней, а это важнейший показатель для любой бани. При этом маленькое помещение можно хорошо протопить с малыми затратами, что весьма немаловажно в том случае, когда ваша баня расположена за городом.
Что же касается иных дополнительных помещений, то обычно они носят технический характер. Например, в отдельном помещении устанавливается газовая печь. А вот если вы решите отапливать свою баню при помощи обычной дровяной каменки, то её можно будет установить прямо в парилке.
Вспомогательные помещения также могут внести дополнительные нюансы в проект вашей бани. Та же мансарда или второй этаж в обязательном порядке потребует возведение лестницы, а крытая веранда – наличия дополнительной свободной площади на участке. Можно также встроить баню в архитектурный ансамбль, например, с гостевым домом и гаражом.
Размещение бани на участке
Ещё одним аспектом выбора проекта для бани является определение места её расположения на земельном участке. Дело в том, что строительные нормы и правила устанавливают особенные требования к размещению бани в зависимости от того, на каком расстоянии она находится от других строений. Так, от жилого здания её можно возвести не ближе пяти метров. При этом строительство нужно будет вести исключительно с подветренной стороны, так как в этом случае при возможном пожаре огонь не пересиниться на жилые строения.

Что же касается размещения окон, то в бане они должны быть установлены на западной стороне здания, так как здесь больше солнца. Кроме того, эксперты советуют ставить баню на берегу водоёма. При этом необходимо будет её разместить так, чтобы она стояла на некоторой возвышенности. Делается это для того, чтобы обеспечить возможность стока вод во время весеннего паводка. Тем самым предотвращается её возможное подтопление.
Существует и такая хитрость, как установка входной двери с южной стороны. В этом случае возле неё будет наметаться небольшое количество снега, в результате чего можно будет её легко открыть. Также стоит установить на крышу бани систему снегозадержания и в том случае, если вы проживаете в северных регионах страны.
Если же называть те места, где строить баню нельзя ни в коем случае, то это, во-первых, зоны рядом участками соседей и улицей. Дело в том, что для этого потребуется получить специальное разрешение, а соседи далеко не всегда могут его дать. Во-вторых, избегайте строительства на слабых грунтах, так как сточные воды, вытекающие из бани, могут их размыть, в результате чего ваше строение может просто обрушиться.
Если вы сами не можете спроектировать загородную баню, отдайте предпочтение любому подходящему стандартному проекту. В этом случае вы будете уверенны в том, что её вы возведёте в строгом соответствии с требованиями строительных норм и правил. Это, в свою очередь, даст вам гарантию длительного срока службы возведённого вами строения.
banyabest.ru
Баня из газосиликатных блоков своими руками
Современные проекты бань из блоков газосиликата составляют достойную конкуренцию традиционным постройкам из кирпича или древесины, несмотря на его высокую гигроскопичность (способность впитывать влагу). Еще несколько лет назад проекты бань из газосиликатных блоков были невозможны из-за этого отрицательного параметра газосиликата, но сегодня рынок насыщен специальными пропитками, в несколько раз уменьшающими влагопроницаемость этого стройматериала. А если добавить к пропиткам современные гидроизолирующие материалы, то результат превзойдет самые смелые ожидания строителей – все характеристики, связанные с теплопроводностью и влагопроницаемостью, окажутся намного выше, чем у дерева или кирпича.
Готовая газосиликатная баня
Газобетон, пенобетон и газосиликат в типовых и индивидуальных проектах
Газоблоки изготавливаются по двум методикам – автоклавной (газобетон и газосиликатные кирпичи), и пенообразованием (пенобетон). Автоклавная технология считается более эффективной, но и более дорогостоящей из-за применения специального оборудования – автоклава. Кроме того, геометрия и размеры газоблока намного лучше и точнее, чем у пеноблоков, что позволяет сэкономить значительную часть сметы на клеевом составе. Тонкие шов строительного клея также способствует минимизации «мостиков холода», через которые возможны утечки тепла.
Визуально отличия между газосиликатом и пенобетоном видны сразу: известь в газобетонных блоках делает их белыми, а пенобетонные блоки имеют серый цвет по цвету пенообразователя и цемента.
Типовой проект бани из блоков – практически идеальное решение для бюджетных строительных операций, но такие проекты можно дополнить, изменить, или заказать свой проект, который будет называться индивидуальным. Небольшая баня из газосиликата обычно состоит из 2-3 помещений (комната отдыха, совмещенная с раздевалкой, душевая и парное помещение), и вносить изменения в типовой проект нет смысла.
Проект планировки типовой бани 4 х 4 метра из ячеистых газоблоков
Баня дополнена функциональными помещениями – гардеробной, тамбуром или холлом. Предбанник (он же тамбур) крайне рекомендуются при строительстве бани, так как при морозах любое открывание входной двери влечет за собой мгновенное понижение температуры в прилегающих помещениях. Потому даже в проектах маленьких бань тамбур можно просто пристроить, утеплить и сделать его закрытым.
Раздевалку тоже можно организовать в тамбуре или выделить для нее отдельное помещение, что куда более удобно. Дверь из гардеробной при этом решении может открываться или в душевую, или в комнату отдыха, что не очень удобно с точки зрения попадания в парилку. Если сделать дверь, открывающуюся в парное помещение, то не придется раздетым проходить через другие комнаты, а можно сразу попасть в парилку. Но, реализуя такие проекты бани, в раздевалке придется делать хорошую принудительную вентиляцию, чтобы одежда не отсыревала при постоянно открывающейся двери в парилку.
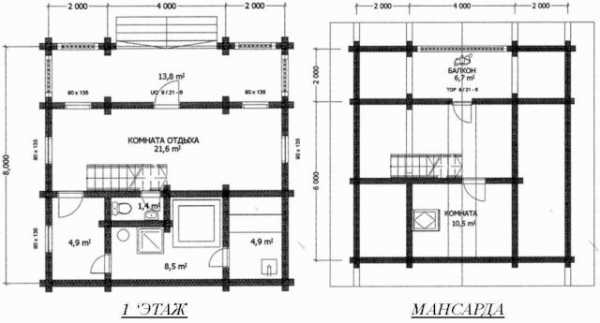
Планировка бани 6 х 6 метров
Большая баня из газосиликатных блоков, проект которой представлен выше (6 х 6 м), имеет пристроенную террасу, а сама баня имеет два этажа, второй этаж – мансардный. Кроме террасы, на первом этаже имеется три помещения и два помещения – на втором этаже:
- Комната отдыха 16,79 м2;
- Душевая комната 3,44 м2;
- Парилка 4,37 м2;
- Терраса 9 м2;
- Комната отдыха 18,97 м2;
- Балкон 6,75 м2.
Для раздевалки выделяется место в комнате отдыха или в углу террасы.
Баня 7 х 7 метров с террасой
Большие бани из газосиликатных блоков проекты которых чаще всего разрабатывают по индивидуальному заказу, могут иметь самый разнообразный дополнительный функционал – и игровую комнату, и бассейн, и спальни. Такие постройки часто делаются двух- и даже трехэтажными, подразумевая, что в перерывах между прямым назначением баня может использоваться, как домик для гостей или как жилой дом для хозяев участка.
Одноэтажная баня из газосиликатных блоков своими руками на проекте выше имеет террасу площадью 8,4 м2, довольно большое парное помещение – 5 м2, в котором могут одновременно находиться до 4-х человек, комнату отдыха площадью 11 м2, моечную с санузлом и входной тамбур. Печь-каменка установлена в комнате отдыха, поэтому самые теплые помещения в проекте этой бани – парилка и комната отдыха.
Типовой проект бани из газосиликата 6 х 4 метра
Помещения:
- Комната отдыха, совмещенная с раздевалкой;
- Парное помещение;
- Душевая (моечная).
На примере этого проекта видно, что вариантов для добавления или изменения существующих помещений не существует, кроме отдельной пристройки террасы или веранды. Печь установлена в парилке, но дымоход проходит и по стене комнаты отдыха, что делает ее теплой и комфортной.
В следующем проекте бани средних размеров (6 х 6 метров) добавлена терраса, что делает пользование более удобным:
Баня с террасой
Размеры помещений в проекте бани 6 х 6 метров:
- комната отдыха имеет площадь 16,2 м2;
- Душевая комната – площадь 5,5 м2;
- Парное помещение – площадь 5,2 м2;
- Холл (гостиная) – площадь 3,2 м2;
- Терраса площадью 12,3 м2.
Особенности возведения газосиликатных построек
Возведение фундамента и стен, как того требует строительство бани из газосиликатных блоков, проходит по тому же алгоритму, что и при строительстве других зданий и сооружений. Основание может быть ленточным – это универсальное решение для любых типов грунта – или столбчатым. Но газобетонные блоки имеют небольшой вес, поэтому проще построить мелкозаглубленный ленточный фундамент, на котором плотно и ровно улягутся ряды блоков. Клеевой раствор для блоков из газосиликата следует разводить чистой водой согласно инструкции.
Фундамент под баню и печь
Фундамент под баню и печь
Как видно из рисунка выше, фундамент необходимо гидроизолировать двумя-тремя слоями рубероида, которые настилаются сверху на ленту. Таким образом, газобетон не будет тянуть влагу из почвы. Кроме рубероида, можно применить стеклохолст, срок службы которого в несколько раз больше.
Нижний ряд блоков укладывается на обычный песчано-цементный раствор (3:1), остальные ряды – на клей с толщиной слоя не более 5 мм, при помощи специальной каретки или зубчатого шпателя. Через 4-5 рядов на поверхность блока укладывается арматура или металлическая сетка. Под арматуру блоки штробятся, сетка укладывается всплошную. Укладывается газобетон в шахматном порядке, каждый блок выверяется уровнем и отвесом.
Газосиликатные банные блоки имеют довольно рыхлую структуру, поэтому нагружать их тяжелыми перекрытиями или стропильными балками напрямую нельзя – необходимо создать обвязку и для пола, и для кровельной системы. Лаги при обустройстве пола должны укладываться на основание бани, которое должно быть немного шире толщины стен. Иногда при проектировании газоблоки выдвигают на 10-12 см за фундамент, чтобы стена нависала над основанием, не позволяя талым и дождевым водам мочить его. Разница в толщине закладывается пенополистиролом и гидроизолируется. Кроме защиты от влаги, этот прием позволяет увеличить внутреннюю полезную площадь помещений бани.
Соединение стен и фундамента бани
При возведении кровли на верхний ряд блоков укладывается брус (мауэрлат) сечением 150 х 150 мм, а на нем строится стропильная система. Еще одно решение – по периметру верхних блоков залить армирующий пояс. Для этого на верхнем ряду укладывают U-образные газосиликатные блоки, выемки которых заполняют четырьмя связанными между собой арматурными стержнями толщиной 10-12 мм. Рекомендуемая толщина стены из газоблоков – 25-35 см, плотность блоков – D 400 или D 500.
Устройство вентиляции и утепление
Главный недостаток всех банных помещений – повышенная влажность, поэтому и естественная, и принудительная вентиляция необходимы для всех комнат. Эта мера не только приведет влажность в норму, но и предохранит все поверхности от появления грибковых заболеваний и плесени. Основа для вентиляции закладывается пир возведении стен – это небольшие вентиляционные отдушины в каждом помещении, которые делают и вверху, и внизу. Чтобы при нахождении в парилке не возникал сквозняк, вентиляционные отверстия закрывают.
Вентиляция
Наружное утепление стен бани оформляется, исходя из климатических условий в регионе. Так, для средней полосы России толщины базальтовой ваты в 100 мм будет вполне достаточно. Севернее утеплитель делают толще, южнее – тоньше. Недостаток минваты – высокая гигроскопичность, поэтому ее обрабатывают специальными составами типа «Пенетрон» или «Кальматрон». Это же относится и к стенам из пеноблока.
Чтобы не покупать пропитки и не делать строительство дороже, вместо минваты можно использовать экструдированный пенополистирол (ЭППС), который не впитывает и не пропускает влагу, обладает низким коэффициентом теплопроводности, им не интересуются грызуны и насекомые-вредители. Экструдированный пенополистирол выполняет сразу две функции – гидро- и теплоизоляции. Сверху на нем конструируют каркас для будущей декоративной обшивки из вагонки. Кроме вагонки, ЭППС можно оштукатурить, предварительно закрепив на нем малярную стекловолоконную сетку.
Внутреннее утепление парного помещения проводят следующим образом:
- Стены пропитывают составом на цементе;
- Набивают брус сечением 50 х 40 мм;
- Внутрь каркаса укладывают теплоизоляцию;
- Сверху на каркас крепят паро- и гидроизоляцию;
- Собирают второй каркас из бруса сечением 25 мм;
- На этот каркас крепят вагонку.
В остальных помещениях слой теплоизоляции можно не монтировать. Если душевое помещение тоже будет оббиваться вагонкой, то предварительно необходимо уложить слой фольгированной пароизоляции, а стены пропитать гидрофобными составами. В более сухих помещениях стены также пропитываются гидрофобными жидкостями, но без пароизоляции. После этого монтируется каркас для крепления вагонки.
Внутренняя отделка в бане
Утеплять потолок в парном помещении следует снизу-вверх. Слои стройматериалов при утеплении снаружи внутрь:
- вагонка;
- Фольгированная пароизоляция;
- Поверхность чернового потолка;
- Слой теплоизоляции от чердака.
Между слоями вагонки и пароизоляционной фольги следует оставить вентзазор, для чего собирается специальная тонкая обрешетка (каркас).
Декоративная отделка
Для минимизации скопления конденсата в душевой пол рекомендуется отделать керамической неглазурованной плиткой. Чтобы по такому полу было не холодно ходить, на него укладывают деревянную решетку. Кроме этого решения, можно реализовать и более дорогостоящее – теплые полы с запиткой теплоносителя от печки-каменки. В парном помещении пол и стены на высоту 10-15 см выкладывается керамической плиткой, чтобы не допустить активного переувлажнения стен.
jsnip.ru
плюсы и минусы, разработка проекта, этапы работ
Желание сэкономить часто заставляет владельцев строить не только загородные жилые дома, но и бани. Им приходится самостоятельно решать все возникающие вопросы, в том числе и выбирать материал для строительства. В последние годы довольно популярными стали строения из газобетона. Однако не все владельцы уверены в том, можно ли его использовать для строительства бани. Специалисты хорошо осведомлены о возможностях этого современного материала для частного строительства. Но чтобы владелец мог получить максимальную выгоду от его применения на своем приусадебном участке, ему не помешает сперва ознакомиться с его сильными и слабыми сторонами.
Баня из газобетона: плюсы и минусы
Характеристики будущего строения зависит от многих факторов, среди которых не последнее значение имеет выбранная технология выполнения строительных работ.
Особо стоит остановиться на плюсах, которые часто становятся определяющим фактором для владельцев:
- Материал отлично подходит для строительства бани своими руками, поэтому с этой задачей справится даже начинающий мастер.
- Если оценивать только стоимость газобетона, то он представляется более доступным материалом, нежели древесина.
- При условии точного соблюдения требований технологии строительства можно построить крепкое и долговечное здание, которое не потребует ремонта как минимум 20 лет.
- Баня из газобетона обладает прекрасными теплозащитными свойствами;
- Газобетон — биологически стойкий материал. Он изготавливается из особых компонентов, которые позволяют ему демонстрировать высокую устойчивость к плесневой и грибковой микрофлоре, что в условиях эксплуатации бани приобретает особенно большое значение.
- Огнестойкость. Печь в бане является обязательным элементом, но в то же время она предстает в качестве источника потенциальной угрозы, способного вызвать пожар. Использование газобетона снижает вероятность порчи строения из-за того, что он не поддерживает горение, поэтому выбор в пользу этого материала может в некоторых случаях даже спасти жизнь.
- Малый вес. Это свойство обеспечивает газобетону массу преимуществ — облегчается процесс транспортировки, погрузка и выгрузка, а также выполнение работ, связанных с его использованием в строительстве. Владелец может реализовать любой проект своими силами, не прибегая к услугам бригад рабочих.
- В отличие от дерева газобетонные блоки не дают усадки
, а это экономит немало времени, позволяя сразу же после завершения основного объема работ начать отделку бани. Это существенно ускоряет введение бани в эксплуатацию. - Перед строительством бани необходимо определиться с оптимальной толщиной стен, а для этого необходимо принять во внимание условия ее эксплуатации. Если планируется пользоваться ею не чаще одного раза в неделю, то толщина стен должна составлять 25 см, а если ежедневно — не менее 40 см.
Но даже обладая столь впечатляющими преимуществами, газобетон имеет и не менее серьезные недостатки:
- Материал плохо выдерживает воздействие влаги, впитывая ее как снаружи, так и изнутри. При длительном контакте происходит изменение теплоизоляционных свойств и начинается разрушение. Помочь избежать этого можно лишь за счет качественного выполнения гидроизоляции и устройства утепленного фасада.
- Требовательность к качеству несущего основания. Малейшее нарушение технологии изготовления фундамента может привести к появлению трещин. Газобетон не обладает эластичностью, и любая деформация может вызвать серьезные повреждения его структуры.
- Требует более сложной внутренней отделки и применения специального крепежа.
Типовой проект
Самый распространенный вариант бани из газоблока, который могут предложить строительные компании — это одноэтажная постройка, включающая два-три помещения и дополнение в виде террасы. Подобные объекты обычно имеют площадь 5 x 4 или 6 x 6м. Для создания максимального комфорта можно предусмотреть в проекте комнату отдыха, тамбур и парную.
Для обеспечения длительной и беспроблемной эксплуатации бани при проектировании необходимо учесть следующие моменты:
- Выполнение работ по гидро- и пароизоляции;
- Отсутствие щелей в оконных и дверных проемах;
- Внутренняя и внешняя отделка;
- Площадь сооружения, количество и площадь комнат, их планировка;
- Прокладка инженерных коммуникаций, решение проблемы с отведением воды;
- Наличие купели;
- Фундамент, обладающий оптимальными характеристиками;
- Печное оборудование, при выборе которого необходимо учесть характеристики и метод монтажа;
- Инструменты и материалы, необходимые для строительства.
Баня из газобетона своими руками
Владелец, который решил строить баню из газоблока, может выбрать один из следующих вариантов: обратиться в строительную компанию, оказывающую услуги проектирования подобных объектов или же воспользоваться готовым решением и ориентироваться на него при строительстве бани своими руками. В последнем случае важно в точности соблюдать определенный порядок действий.
Фундаментные работы
При определении размеров строения обязательно нужно учесть, что придется сооружать внутренний деревянный вентилируемый каркас, из-за которого заметно уменьшится полезное пространство.
Реализация этапа возведения фундамента предполагает выполнение следующих действий:
Для строительства бани рекомендуется выбирать мелкозаглубленный ленточный фундамент.- На участках с преобладанием грунта пучинистого характера рекомендуется возводить основания свайно-ростверкового типа.
- Подготовка места для строительства фундамента, предполагающее выравнивание поверхности.
- Нанесение границы строения в соответствии с данными проекта.
- Изготовление котлована глубиной 0,6 м. Остальные характеристики должны соответствовать проекту.
- Изготовление песчано-гравийной подушки высотой 10-15 см.
- Монтаж опалубки. Ее можно построить из листов ДСП, шифера или фанеры. Обязательно нужно выполнить проверку на соблюдение вертикальности конструкции при помощи уровня;
- Для повышения устойчивости проводится армирование;
- Выполняется заливка бетонной смеси. Лучше всего брать сухой состав марки М200/В15, однако если в целях экономии будет сооружаться монолитный ростверк, то можно использовать бетон марки М300;
- Схватывание раствора происходит примерно через 2-3 дня, после чего приступают к выполнению гидроизоляции. Для неё можно использовать листы рубероида.
Кладка стен
Этот этап предполагает следующие действия и рекомендации:
Стены возводят толщиной 0,25-0,5 м.- После предварительной укладки блоки необходимо выровнять при помощи резиновой киянки.
- Рассчитывается самый высокий угол несущего основания при помощи строительного уровня.
- На это место помещается первый блок.
- Для закрепления первого уровня наносят цементную смесь, что позволит расположить модули ровно по горизонтали.
- После отвердевания раствора выполняется затирка поверхности и очистка от пыли.
- В углах ставят рейки с отделениями, протягивают шнур, который поможет в дальнейшем ровно уложить остальные блоки.
- Для укладки остальных рядов используется клей. При его нанесении нужно учесть, чтобы толщина шва должна быть равна 0,7 см.
- При подготовке клея к работе следует соблюдать инструкции, указанные на упаковке;
- После укладки каждого 4 ряда необходимо выполнить армирование конструкции. Для этого при помощи фрезы по всему периметру устраивают пазы с отступом 0,6 см от внешнего края. В них начинают лить клей, а затем вставляют металлические элементы. Арматуру необходимо вставлять до самого упора, а сверху залить раствором;
- Кладку выполняют в виде перевязки в 1/2 блока.
- Для нанесения клея используют каретку или ковш;
- Блоки распиливают при помощи ножовки;
- Для изготовления перемычек и поясов жесткости используют блоки U-образной формы. В лоток блока вставляют элемент арматуры, а затем ее заливают бетонной смесью марки М200. Для придания необходимой формы над проемом предварительно устанавливают подпорки.
- При укладке завершающего ряда необходим монолитный пояс жесткости, который изготавливают с применением U-образных модулей. Вместо него разрешается использовать мауэрлат.
- На бетонном поясе обязательно должны присутствовать проволочные скрутки, которые крепят с помощью анкеров. Это помогает надежно зафиксировать стропила на месте.
- При выборе материала для гидроизоляции и утепления парной разрешается использовать плиточный клей и пеностекло, обладающее нулевым водопоглощением.
Укладка стандартной двускатной крыши
Этот этап предусматривает выполнение следующих действий:
Сперва необходимо установить стропильную систему, включающую в себя основание, стропильную ногу и ригель. Ее делают из обрезной доски размерами 10 x 4 см.- Выполняется установка треугольников фронтонов.
- Монтируется обрешетка, можно выбрать сплошной вариант или из брусьев, укладываемых с шагом 0,5-1 м.
- Укладывают чердачный пол, не забывая о вентиляционных зазорах.
- Производится обшивка фронтона.
- Выполняется монтаж гидроизоляции на обрешетку.
- На крышу укладывают кровельный материал.
Отзывы
С газобетоном я знаком давно и вот, наконец, решил построить из него баню. Все получилось так, как я и хотел — строение очень теплое, однако сильно набирает влагу. Каждое помещение приходится дополнительно проветривать. Для этого на некоторое время оставляю открытыми дверь и окно — так удается немного просушить помещение. А вообще в ближайшее время собираюсь сделать гидрофобную отделку, чтобы пористые газоблоки меньше впитывали влагу.
Виктор Чернышов, Омск
У меня на участке стоит банька из газобетона. Зная о низкой устойчивости материала к влаге, я решил сделать внутри деревянный каркас, в результате между стеной и деревом у меня появилось вентилируемое пространство. В одном из отзывов я узнал, что стены из газобетона быстро намокают и покрываются плесенью. Однако я пока ничего такого в своей баньке не увидел. Возможно, это связано с тем, что она покрыта стекловолокном, а стены отделаны ольховой вагонкой. Я доволен своей банькой, мои друзья также ее оценили и каждые выходные приезжают ко мне попариться.
Илья, Московская область.
Я являюсь счастливым обладателем бани, которая появилась на моём участке 5 лет назад. Из доступных материалов решил выбрать газобетон, прежде познакомившись с его преимуществами и недостатками. В свое время знакомые отговаривали меня от этого, но теперь видно, кто из нас оказался прав. Я же тогда учел их критику и решил очень тщательно выполнить гидроизоляцию, чтобы все наружные и внутренние поверхности были надежно защищены от влаги. С этим я отлично справился, хотя сам далёк от строительства.
Для парной я использовал стекловолокно, на пол и стены и уложил минеральную вату в качестве теплоизолятора. Стены отделал сосновой вагонкой. В общем я остался доволен, какой у меня получилась баня. Особенно меня радует ее цена. Просто нужно знать, как правильно строить.
Сергей Анисимов, Нижний Новгород
Заключение
Строительство бани, как и любого другого объекта, должно начинаться с разработки проекта. Только так можно учесть все нюансы, а в случае с баней это особенно важно. При строительстве бани из газобетона необходимо в первую очередь учесть особенности материала, чтобы после завершения работ он не преподнес вам неприятных сюрпризов. Если же вы решите положиться только на его положительные стороны, то довольно скоро пожалеете о том, что не приняли никаких мер. Но помимо этого нужно забывать о том, что в процессе строительства нужно в точности соблюсти все этапы. Иначе все преимущества газобетона будут сведены на нет, и вы не получите от его использования никакой выгоды.
bane.guru
Проект бани из газобетона 5х7
Баня из газобетонных блоков своими руками

Обычно для строительства бани используют дерево, но сегодня цены на натуральную древесину намного выше ценового уровня современных строительных материалов. Особенности эксплуатации строения под баню требуют тщательного выбора материала для возведения стен. Строительство бани из газобетона возможно только в случае правильного выполнения внутренних отделочных работ, предусматривающих использование гидроизоляционных материалов.
Характеристики газобетона

Газоблоки для бани
Почему вместо дерева специалисты рекомендуют использовать газобетонные блоки? Ответ простой:
- Из этого материала баню можно построить самостоятельно без найма бригады строителей.
- Цены на газоблоки ниже за древесину, а эксплуатационные сроки намного больше.
- Строение из газобетона получается прочным и надежным.
Среди всех характеристик строительного материала есть одна, которая останавливает многих застройщиков от использования газобетона для бани. Это высокий показатель впитывания материалом влаги. Устранить данную проблему можно, только используя при внутренней отделке хороший гидроизоляционный материал. Снаружи стены из газобетона обрабатываются специальными пропитками или грунтовками для снижения показателя водопроницаемости.
Важно! Специалисты не рекомендуют здания из газоблоков с наружной стороны штукатурить и красить.Газобетон способен прекрасно сохранять тепло внутри здания и практически не нуждается в использовании теплоизоляционных материалов. Для строительства бани используют изоляционные стеновые блоки, прекрасно сохраняющие свои технические характеристики в условиях эксплуатации.
Блоки из газобетона не покрываются плесенью и не подвергаются нападению грызунов. Немаловажным фактором для строительства ба
superbany.ru
Бани из газобетона проекты фото
Баня из газобетонных блоков своими руками

Обычно для строительства бани используют дерево, но сегодня цены на натуральную древесину намного выше ценового уровня современных строительных материалов. Особенности эксплуатации строения под баню требуют тщательного выбора материала для возведения стен. Строительство бани из газобетона возможно только в случае правильного выполнения внутренних отделочных работ, предусматривающих использование гидроизоляционных материалов.
Характеристики газобетона

Газоблоки для бани
Почему вместо дерева специалисты рекомендуют использовать газобетонные блоки? Ответ простой:
- Из этого материала баню можно построить самостоятельно без найма бригады строителей.
- Цены на газоблоки ниже за древесину, а эксплуатационные сроки намного больше.
- Строение из газобетона получается прочным и надежным.
Среди всех характеристик строительного материала есть одна, которая останавливает многих застройщиков от использования газобетона для бани. Это высокий показатель впитывания материалом влаги. Устранить данную проблему можно, только используя при внутренней отделке хороший гидроизоляционный материал. Снаружи стены из газобетона обрабатываются специальными пропитками или грунтовками для снижения показателя водопроницаемости.
Важно! Специалисты не рекомендуют здания из газоблоков с наружной стороны штукатурить и красить.Газобетон способен прекрасно сохранять тепло внутри здания и практически не нуждается в использовании теплоизоляционных материалов. Для строительства бани используют изоляционные стеновые блоки, прекрасно сохраняющие свои технические характеристики в условиях эксплуатации.
Блоки из газобетона не покрываются плесенью и не подвергаются нападению грызунов. Немаловажным фактором для строительства бани из газоблоков является пожароустойчивость строительного материала.
Небольшой вес блоков не требует возведения усиленной конструкции фундамента, что позволит сэкономить на времени строительства и материалах. Здание из газоблоков практически не дает усадку. Эксплуатацию строения можно начинать сразу после окончания строительства.
Проектирование бани из газобетона

Разраб
superbany.ru