видео-инструкция по монтажу, особенности строительства бани из шлакоблоков, фото
Понравилась статья? Следите за новыми идеями полезных авто советов в нашем канале. Подписывайтесь на нас в Яндекс.Дзене. Подписаться.
На загородном участке должны присутствовать подсобные строения, необходимые для хранения инвентаря, дров и других целей. К примеру, можно построить баню своими руками из пеноблоков или обычный сарай, который будет обладать боковыми плоскостями с низкой теплопроводностью.
Материал из ячеистого бетона способен защитить внутреннюю часть от воздействий внешней среды, особенно если монтаж и подбор элементов будет выполнен правильно.

Легкая конструкция из пенобетонных блоков.
Подготовительный этап
На данной стадии осуществляется выбор места и составляется проект изготавливаемой конструкции, то есть производится разработка технической документации. Наряду с этим приобретаются все необходимые для строительства материалы и инструменты. Участок должен иметь площадь несколько больше, чем квадратура самого строения, тогда можно избежать задержек.
Выбор продукции
Покупая для возведения пенобетонные блоки, нужно знать все о размерах и плотности изделий, в противном случае подобрать оптимальный вариант вряд ли получится. Кроме того, есть риск столкнуться с контрафактным товаром, ведь материал достаточно популярен.
Рекомендуется приобретать материал непосредственно со склада, чтобы цена осталась минимальной.
Для сооружения легких перегородок прекрасно подходит размер 100x300x600 мм. Такие изделия укладываются довольно быстро, при этом финансовые расходы не так высоки.- Универсальными считаются элементы 200x300x600 мм, ведь они предоставляют возможность устраивать как наружные стены с дополнительной теплоизоляцией, так и внутренние части любых конструкций.
- Усиленный вариант – продукция 200x400x600 мм. С ее помощью организуются внешние стены, способные переносить высокие нагрузки. При этом утепление можно не производить.

Стандартные размеры элемента на фото.
Дополнение!
Когда строим баню из пеноблока своими руками или простой сарай обязательно обращаем внимание на показатели плотности.
Важную роль играет марка бетона, которая используется при производстве.
Необходимые инструменты
Особенностью возведения представляемых строений является простота осуществления работ, ведь элементы легко поддаются обработке. Поэтому в большинстве случаев осуществляется строительство из пеноблоков своими руками.
Однако перед самостоятельным сооружением необходимо подготовить инвентарь.
- Дрель с насадкой, применяемая для замешивания клеевого состава.
- Кельма, представляющая собой ковш для смеси. С ее помощью раствор наносится на поверхность изделий. Данный инструмент очень эффективен при возведении стен с замысловатой конфигурацией.
- Резиновый молоток требуется для выравнивания элементов при кладке.
- Строительный уровень помогает определить горизонталь и вертикаль.
- Ножовка нужна для разрезания материала на отдельные части. Однако лучше использовать специальный инструмент.
- Терка для пенобетона позволяет разгладить неровности непосредственно перед шпаклевкой или штукатуркой.
- Штроборез необходим для подготовки пазов, созданных под арматуру или проводку.
- Электрофреза подходит для проделывания отверстий для труб маленького диаметра.
- Каретки для нанесения клеевого состава на горизонтальную поверхность в процессе кладки.
- Широкая кисть позволит сметать мусор.

Пример терки для осуществления кладки.
Примечание!
С помощью перечисленных инструментов строим баню из пеноблоков своими руками или сарай.
Однако в некоторых случаях может использоваться совершенно другой набор приспособлений.
Место расположения
Прежде чем приступить к выполнению работ, следует определиться с расположением строения, однако перед этим должны быть соблюдены все нормы. В первую очередь ориентируются на СНиП.
Это документ, представляющий собой набор нормативных актов правового, экономического и технического характера.
- От сооружения, предназначенного для птицы и другого мелкого скота, до границы с соседями должно быть 4 м.
- От других построек до рубежей участка в обязательном порядке оставляется расстояние не менее 1 м.
- От погреба до конструкции с мелким скотом и птицей, а также до компостного устройства отступается 7 м.
- От высоких деревьев должно отделять расстояние не менее 4 м. Стволы растений средних размеров должны находиться в пределах 2 м.

Удачное расположение хозяйственного блока на участке.
Примечание!
Все вышеуказанные размеры рекомендуется соблюдать, начиная строительство бани из пеноблоков своими руками или иного строения, иначе можно столкнуться с серьезными проблемами.
Основные работы
Хозяйственные блоки устраиваются на частном дворе не очень далеко от домов и могут располагаться в один ряд. С баней из пеноблоков дело обстоит немного иначе, так как данное сооружение имеет повышенную огнеопасность. Ниже приводится инструкция, рассказывающая о кладке пенобетона.
Статьи по теме:
Создание основания
В качестве базовой платформы может использоваться ленточный фундамент, обладающий также хорошими теплоизоляционными характеристиками. В связи с небольшой массой материала глубину заложения можно сократить до 50-60 сантиметров.
Траншеи следует проводить под внешними стенами и внутренними перегородками.
- Выполняется предварительная разметка, после чего за линией основания устанавливается обноска, позволяющая определить внутреннюю часть.
- Подготавливается траншея по конкретным размерам, а уже в нее засыпается песочный слой.
- Изготавливается деревянная опалубка, способная выдерживать успешно давление бетонной смеси. Также формируется арматурный каркас.
- Производится заливка раствора внутрь конструкции, при этом желательно осуществить работы за один раз.

Бетонная смесь в деревянной опалубке.
Дополнение!
Узнавая о том, как построить баню из пеноблока своими руками, внимание нужно уделить гидроизоляции основания.
Однако ее тип будет зависеть от уровня грунтовых вод.
Возведение стен
Чтобы сформировать боковые плоскости строения без посторонней помощи, необходимо ознакомиться с особенностями кладки этого материала. Перед началом работ нужно проверить горизонтальность цокольной части, избежав тем самым лишних сложностей.
Это удобнее сделать с использованием нивелира или обычного водяного уровня.
- Производится тщательная гидроизоляция верхней части фундамента при помощи рубероида, пергамина или других материалов.
- В каждом углу устанавливаются элементы строго по уровню, чтобы обеспечить горизонтальность кладки пеноблоков.
- Между угловыми блоками натягивается шнур, помогающий выровнять первый ряд компонентов.
- Если в одну линию не может войти целое количество составных частей, то ножовкой отрезается нужный кусок.
- Закончив работы с первым рядом, приступают к его армированию. Таким образом, укладываются две полосы из металлических прутьев.
- Кладка остальных рядов осуществляется по той же схеме. Однако в процессе установки элементов используется резиновый молоток.
- На последнем этапе устраивается арматурный пояс под перекрытие. Применяются металлические куски толщиной 20 см.

Демонстрируется процесс резки материала.
Внимание!
Изучая информацию о том, как построить баню из пеноблоков своими руками или какое-либо другое строение, необходимо понимать, что кладка бывает также двухрядной и многослойной.
Строительство односкатной крыши
При выборе материала для компонентов стропильной конструкции специалисты рекомендуют использовать хвойные породы древесины. Влажность элементов стропильной системы не должна превышать 15 процентов.
Для придания верхней части огнеупорных свойств желательно произвести обработку специальными составами.
- Перед сборкой крыши наружная сторона здания доводится до нужной высоты, обеспечивая расчетный уклон.
- На переднем и заднем торце фиксируется мауэрлат, предоставляющий возможность распределить нагрузку.
- Стропильные ноги устанавливаются с шагом 70-80 сантиметров. Свесы должны иметь ширину примерно полметра.
- Усиление каркаса выполняется путем инсталляции дополнительных стоек или подкосов.
- К балкам саморезами или гвоздями фиксируется обрешетка, причем доски располагаются в поперечном направлении.
- К элементам опорной конструкции крепятся листы кровел
openoblokah.ru
Сарай из пеноблоков своими руками
Многие владельцы частных и дачных домов очень часто сталкиваются с такой насущной проблемой, как нехватка подходящего места для хранения нужных рабочих вещей и инструментов. Эту проблему решает строительство сарая на своем участке. Как правило, для этих целей используют пиломатериал или керамический кирпич, но сегодня многие выбирают ячеистые изделия, и это хороший выбор, ведь сарай из пеноблоков не только надежный и долговечный, но и эргономичный.
Где построить сарай
Это хозяйственное помещение будет находиться в одном месте постоянно, поэтому важно основательно продумать его расположение на участке. Некоторые строят его на заднем плане, а кто-то наоборот привязывает его к своему дому. Главное, при планировании сарая – это гармоничное сочетание с остальными постройками и удобное использование в зависимости от назначения.

Если он будет использоваться для хранения дачного инвентаря, то к нему должен быть организован удобный доступ с обрабатываемого участка. Если же такой хозблок предназначен для содержания в нем инструментов, то лучший вариант – размещение его вблизи гаража или мастерской.

Месторасположение сарая зависит также и от его облицовки. Если Вы запланировали бюджетный малопривлекательный вариант, то лучше спрятать его в дальнем углу, если же оформление фасада будет необычным и полностью сочетаемым с вашими основными строениями, то выдвинуть его на передний план – правильное решение.
В любом случае эту хозяйственную зону всегда можно сделать привлекательнее. Например, проработав оформление дорожки к нему, или же разбить вблизи ароматные цветники или пышные кустарники. Хорошее украшение любого фасада здания, даже самого невзрачного – это вьющиеся растения, они придадут нотку изысканности всему вашему участку.
Выбор материала

Пусть сарай – это нежилое помещение, но он должен быть такой же качественный, и это не стоит забывать при выборе материалов. Для экономии лучше приобрести блоки, имеющие стандартные размеры 20*30*60 см, это позволит в короткие сроки и с меньшим расходом кладочного раствора произвести строительство.
фото фундаментных болтовНесмотря на то, что это хозяйственная постройка – устройство фундамента необходимо, иначе все труды и затраты будут напрасны. Для него нужны будут раствор и гидроизолятор. Также понадобится арматура для усиления здания d=6мм.
Для лучшего стыковочного шва необходимо выбрать специальный клей для кладки пеноблоков, он позволит не только сэкономить, но и улучшить теплоизоляцию.
Что касается марки вспененных изделий, то не стоит брать ниже D500, особо прочный пенобетон будет нецелесообразен. Оптимальный вариант блоки D600, и прочность достаточная и цена приемлемая. Для устройства финального армопояса понадобятся пеноблоки толщиной 10 см.
Строительство

Как правильно заложить фундамент и произвести кладку стен можно узнать из этих статей «кладка стен из пеноблоков » и «фундамент из пеноблоков», на устройстве монолитного пенобетонного армопояпояса можно остановиться подробнее.
Завершив кладку последнего ряда, самое время подумать об устройстве финального армопояса, который будет равномерно распределять нагрузки создаваемые перекрытием крыши. Для этого нужно уложить блоки, толщиной 10 см, по краям стен с двух сторон. В получившийся промежуток укладывается арматурный каркас, его можно сварить или связать специальной проволокой из арматурных прутов, диаметром 6 мм.
Когда этап пройден, то эту конструкцию следует залить бетонным раствором. Такой армопояс выстаивается 3 суток под пленкой, если температура воздуха ниже 10 градусов, то его стоит обернуть каким-нибудь утеплителем.
Полезное видео о заливки фундамента
Вывод
Строительство сарая – задача не сложная и если к ней подойти со всей ответственностью, то он будет радовать вас ни один десяток лет.
Удачной стройки!
oblokax.ru
Как построить сарай своими руками (+фото)
Сарай является неотъемлемой хозяйственной постройкой на дачном участке. Хорошо продуманный сарай может прослужить более десяти лет. Кроме того, вы сможете хорошо сэкономить, если построите сарай самостоятельно. Первым делом чтобы приступить к его строительству, необходимо нарисовать будущий проект дачи, а на нем конкретно указать месторасположение. В большинстве случаев его расположение будет зависеть от особенности вашей территории.
Где построить сарай
Выбор места для строительства
При выборе места учтите, что сарай будет располагаться на одном месте продолжительное время. Поэтому хорошо продумайте, где будет оптимальное место для него. Крайне важно чтобы он гармонично вписался в общий пейзаж участка. Исходя от месторасположения других построек, например, баня, гараж. На выбор месторасположения будет зависеть из какого материала он будет сделан и какой будет его внешняя отделка. В этом вопросе предоставляется большая свобода. Самое главное, чтобы он мог полностью отвечать своему главному предназначению.
Из бруса
Сарай из бруса
Первым делом, необходимо сделать проект, ведь сарай – это маленький домик. Его можно сделать самостоятельно. В проекте указываете общий размер, используемый материал и его количество, наличие крыши и ее форму, наличие перегородок и тому подобное.
Дальше необходимо определиться с видом фундамента. Для такого сарая фундамент может быть разного типа, так как стены из бревна не дают трещин. В большей степени выбор типа фундамента будет зависеть от наличия грунтовых вод, глубины промерзания, а также от основных характеристик той или иной почвы.
Фундамент столбчатый
Наиболее популярный вид фундамента, который выбирают большинство строителей, это столбчатый. Почему? Причина очень проста. Для его изготовления потребуется минимальное количество строительных материалов. Более того, столбчатый фундамент вполне по силам сделать самостоятельно. Для его изготовления необходимо наличие песка, щебня, цемента и арматуры. Опалубку под основание можно сделать из рубероида, скрутив его в форме трубы. Этот вариант будет наиболее дешевым и простым.
Укладка бруса
Итак, теперь рассмотрим последовательность выполнения работ по изготовлению столбчатого фундамента под сарай из бруса:
- Первым делом определяется месторасположение столбов, а предварительно важно снять растительный слой почвы, достаточно будет до 25-30 см.
- Крайне важно наличие столба на каждом углу сарая, с промежутком между ними в 1500-3000 мм.
- Исходя от уровня промерзания грунта, при помощи садового бура изготавливается скважина.
- После, в обязательном порядке делается подушка из песка на дне ямы, слоем в 200 мм.
- Когда скважина подготовлена, в нее помещается ранее подготовленный рубероид, который будет выступать в роли опалубки.
- В него вставляется изготовленный каркас из арматуры. По длине арматуру можно положить 3-4 штуки. Дальше остается изготовить бетон и залить его в скважину.
- После полного высыхания столбчатый фундамент готов.
Закладка основания
Перед тем как начать строительство стен, требуется уложить обвязочный венец. Предварительно на готовые столбики ложиться рубероид. Желательно в несколько слоев, таким образом, вы сделаете гидроизоляцию. После на них, по всему периметру укладываются пропитанные антисептиком брусья. На каждом углу брусья соединяются при помощи нагеля. Перед укладыванием следующего ряда брусьев необходимо положить утеплитель, например, паклю или джут.
Обратите внимание! Чтобы будущий сарай можно было легко обшить сайдингом, а также дополнительно утеплить, в углах соединять брусья нужно «в лапу».
Используя нагеля, соединяйте венцы. Чтобы это сделать, в каждом венце делается несколько отверстий через каждые три бруса. В сделанные отверстия вставляется «палочка» 3-4Ø мм. Чтобы в процессе усадки не появились щели, их длина может быть меньше глубины просверленного отверстия.
Каркас строения
Когда высота стен соответствует вашему проекту, остается положить балки, а на них настелить перекрытие. Форма крыши может быть односкатной. Для этого одну сторону сарая сразу поднимаете выше другой. Если вы хотите сделать чердачное помещение или сеновал, то можно сделать этот подъем от основания перекрытия крыши выше.
Из профнастила
Сарай из профнастила
Строительство начинается с закладки фундамента. Перед заливкой фундамента необходимо зачистить площадь от плодородной земли и углубится на глубину до 500 мм. Потом равномерно по всей плоскости делается подушка, например, из гравия и песка. Далее, равномерно засыпается небольшой слой щебня, который необходимо утрамбовать. Для связки укладывается арматура, а после заливается всплошную бетон.
Плиточное основание
После того как бетон высох, подготавливается будущий пол. Для этого по всему периметру кладутся бетонные блоки. При помощи уровня проследите, чтобы верхние точки блоков были на одном уровне. После на эти блоки кладется каркас, который является основанием пола. Когда каркас готов, сделанный из брусьев, дополнительно укладывается поперечные перекладины каждые по 300-400 мм. Уже готовую раму необходимо закрепить при помощи уголков и саморезов. О том из чего сделать пол, будет говориться ниже.
Когда основание пола готово, можно приступать к изготовлению каркаса для монтажа профнастила. Исходя из запланированной высоты сарая, подготавливаются вертикальные стойки. Также позаботьтесь об горизонтальных брусках. Они потребуются, чтобы придать конструкции большей жесткости. После изготовления каркаса, начинается крепеж профнастила. Крепится он саморезами. Как правило, на один квадратный метр у вас пойдет в среднем шесть саморезов. В обязательном порядке листы накладываются внахлест на 20 см.
На первоначальном этапе работ, стены изнутри можно утеплить. Что касается внутренней отделки стен, то она может быть выполнена в самом разном стиле, об этом речь пойдет дальше.
Профнастил
Ну и последний этап работ, это возведение кровли сарая. Первым делом нужно решить, какая она будет, односкатной или двускатной. Если односкатная, то это самый простой и быстрый вариант. Но если вы хотите сделать чердачное помещение, то лучше сделать двускатную крышу. На крышу можно также использовать профнастил. Однако в отличие от стен, на крышу лучше использовать профнастил с полиэстеровым покрытием. Это позволит создать дополнительную защиту от коррозии, а также придать более привлекательный вид. Монтаж листов выполняется на обрешетку при помощи саморезов с резиновой прокладкой. Также его укладывают внахлест 200 мм. Утеплить крышу можно по необходимости.
Из пеноблоков
Сарай из пеноблоков
Если вы хотите построить массивный и долговечный сарай, то пеноблок является идеальным вариантом. Для такого сарая лучше всего подойдет ленточный фундамент.
Ленточный фундамент
Делается он в 6 этапов:
- Первым делом требуется тщательно очистить поверхность от плодородного слоя. После делается разметка траншеи. Ее ширина может достигать до 500 мм. Крайне важно сохранять прямые углы.
- На глубину до одного метра копается траншея.
- Ее дно засыпается песком в толщину до 400 мм, а после поливается водой и трамбуется.
- Следующим этапом будет сооружение опалубки из досок. Ее высота должна измеряться от земли примерно в 200 мм.
- Используя арматуру и проволоку, изготавливается арматурный каркас.
- За один прием осуществляется заливка всей ленты бетоном.
После заливки готовый фундамент оставляют накрытым пленкой на несколько дней, чтобы он полностью засох. Если температура воздуха слишком высокая, основание каждый день умерено поливать водой.
После его полного затвердевания можно приступить к возведению стен. Прежде чем начинать класть пеноблоки, на основание ленточного фундамента прокладывается слой гидроизоляции. Для возведения блоков можно использовать цементную смесь с песком.
Обратите внимание! Если использовать для кладки специальный клей, то швы будут небольшие и аккуратные.
Для перевязки каждый ряд укладывается со смещением ровно на половину блока. Начинать кладку необходимо с любого угла сарая. Для этой цели чаще всего используют угловой блок. В процессе возведения стен важно использовать строительный уровень. Им проверяется вертикальность стен. Если этого не делать, то придется тратить деньги для покупки строительного материала, которым стены можно будет выровнять как снаружи, так и внутри. Чтобы распиливать блоки можно использовать специальную ножовку. Благодаря тому, что пеноблок имеет правильную геометрическую форму, а также одинаковые размеры можно построить сарай быстро и что самое главное качественно.
Когда стены готовы, необходимо приступать к изготовлению крыши. Для этого не требуется больших вложений средств. Можно изготовить односкатную крышу, накрыв ее обычным шифером. По всему периметру стен устанавливается направляющий брус. Между ним кладутся балки перекрытия 100×150 мм, на расстоянии один метр.
Вертикальными стойками подпираются стропила. Чтобы наиболее эффективно распределить нагрузку, стойку можно расположить на середине стропил. На изготовленный каркас укладывается шифер внахлест. Закрепляется шифер гвоздями. Остается выполнить отделочные работы.
Из кирпича
Сарай из кирпича
Что касается кирпича, то это наиболее популярный строительный материал, который используется для строительства сарая. Это обуславливается тем, что он имеет множество преимуществ. Например, он долговечный, прочный, практичный в эксплуатации.
Монтаж фундамента
Следует отметить что, как и для пеноблоков, так и для кирпича идеальным вариантом будет ленточный фундамент. Как его изготавливать говорилось выше. Рассмотрим, для чего нужен такой прочный фундамент. В первую очередь он отлично подходит в тех случаях, когда почва влажная. Такой фундамент способен выдерживать дополнительную нагрузку. Для примера можно построить чердачное помещение. Более того, некоторые над сараем решают сделать просто ровную крышу, а на ней размещают беседку. Это будет являться отличным местом для отдыха. Также существует вариант установить сушку для фруктов или же просто сделать арку под виноград. Все это станет возможным благодаря ленточному фундаменту, который сможет выдержать большую нагрузку.
Одной из важных работ является выгонка стен. Для этого предварительно делается гидроизоляция. При кладке будет достаточно полкирпича из силикатного кирпича. Исходя из погодных условий, раствор готовится по технологии.
Обратите внимание! Не следует спешить, выгоняя стены за один раз. Выгнать стены можно за три захода. Это делается, чтобы стена не поплыла.
При кладке кирпича важно сразу делать расшивку, пока раствор свежий. При строительстве сразу оборудуется вентиляция. Это важно, так как внутри не будет застаиваться воздух, а также помещение будет хорошо просушиваться.
Когда последний ряд готов, желательно залить армопояс. Он будет надежно держать всю конструкцию по всему периметру. После устанавливается крыша. Как и в случае с сараем из пеноблоков, крыша делается аналогично. Единственно что, так это выбор кровельного материала, а также вида крыши. Существует большое разнообразие покрытий для крыш, самое главное, достичь высокого качества работ, а именно хорошего стока воды и герметичности. В таком случае ваш сарай прослужит долгие годы. Что касается отделочных работ, то об этом пойдет речь дальше.
Пластиковый сарай

Благодаря разработкам технологов и инженеров существует возможность оригинально украсить свой дачный участок всевозможными конструкциями из быстровозводимых пластиковых панель. При их сборке не требуется особых строительных навыков. Их сборка осуществляется по принципу детского конструктора. Из пластика можно изготавливать самые разные размеры и формы сарая. Самое главное, что построить его можно самостоятельно.
Основана данная технология на металлическом каркасе. Что касается стен, пола и крыши, то они изготовлены из морозоустойчивого пластика. Конек крыши выполнен из прозрачного пластика. Благодаря этому даже в дневное время можно работать внутри него без искусственного света. Благодаря оборудованному полу, сарай полностью защищен от поступления грунтовых вод. Соответственно в нем всегда будет сухо, а благодаря хорошо продуманной вентиляции воздух будет свежим. Что касается зимнего времени года, то вся конструкция отлично выдерживает массу снега.
Одно из его значительных преимуществ, это время сборки. Даже если вы не имеете опыта, то в среднем сборка конструкции займет у вас три часа. Удобства заключаются в том, что в любое время сарай из пластика можно переносить с места на место. Более того, сарай из пластика не требует текущего ремонта. При аккуратной эксплуатации срок службы может составить до тридцати лет.
Общи рекомендации по изготовлению дверей и окон
Оконные проемы
Независимо от выбранного метода строительства, выбрать месторасположение дверей и окон необходимо заблаговременно. Что касается дверей, то их можно купить готовыми или же смастерить самостоятельно.
Задвижка на двери сарая
Чтобы сделать двери предварительно снимаете ее размеры. Первым делом собирается дверная коробка. Что касается самой рамы полотна, то ее можно сделать из досок 50×50 мм, а сверху ее накладывается доска, толщина которой может быть 100 мм. Чтобы они не мешали открыванию и закрыванию, следите чтобы доски не выступали за пределы рамы. Для увеличения жесткость дверей, на обратной стороне набивается планки формой «Z». После устанавливаются петли и навешивается полотно на уже установленную раму. После останется только врезать замок и прикрутить дверную ручку.
В большинстве случаев сарай используют для хранения хозяйственного инструмента, поэтому можно обойтись и без природного освещения. Если же вы желаете установить окна, то для них подготовить проемы необходимо в процессе изготовления стен.
Надежный пол
Утепление пола
Если ваш сарай имеет временное предназначение, то в качестве пола будет выступать грунт. В некоторых случаях землю можно равномерно застелить досками, предварительно ее выровняв.
Если вы соорудили столбчатый фундамент, то на устанавливаемые лаги настилаются доски шириной в 100 мм. При помощи гвоздей они прибиваются к лагам.
Следите за тем, чтобы прибить доски без зазора, так как со временем они могут усохнуть и эти зазоры сами по себе образуются.
Если делается сплошной фундамент, по принципу ленточного, то на поверхности укладывается гидроизоляционный слой. После укладываются лаги. В самом конце настилается деревянный щит, который равняется общей площади пола.
Внешняя и внутренняя отделка
Внутренняя отделка
Что касается наружной отделки, то здесь все будет зависеть от того, какой материал вы выбрали для строительства сарая. Если это брус, то достаточно просто покрыть его лаком. Если стены сарая сделаны из кирпича или пеноблока, то отделка просто необходима. Существует много вариантов. Например, штукатурка стен по маякам. После штукатурку можно покрасить, обложить плиткой или декоративным камнем. Некоторые прибегают к простым решениям, которые связаны с использованием пластиковых панелей. Для них изготавливается деревянный каркас, а потом выполняется быстрый монтаж панелей, паз в паз.
Видео
Если же вы не хотите строить сарай самостоятельно, то можно купить бытовку или хозблок для дачи. Можно выбрать как бюджетные варианты, так и дорогие бытовки с душем и туалетом.
kakpravilnosdelat.ru
Сарай своими руками: каркасный и из пеноблоков
Необходимость сарая на дачном участке или на территории загородного дама несомненна. Если его нет, или старое помещение пришло в негодность, то встает вопрос о строительстве. Это статья будет интересна тем, кто решил построить сарай своими руками. Используя советы и рекомендации, вы сможете возвести хозблок или сарай для дачи в кратчайшие сроки.
Перед началом строительства даже небольшого сооружения необходимо решить несколько важных вопросов.
- Выбрать место для постройки.
- Составить четкий план размещения строения.
- Выбрать проект для сооружения.
- Составить смету.
- Приобрести материалы для строительства.

Законодательные нормы на строительство зданий и сооружений на садовом участке
Санитарно-гигиенические нормы строительства вспомогательных помещений на садовом участке ↑
При выборе места для сарая необходимо отталкиваться от санитарных норм, установленных законодательством РФ. Регистрировать такие постройки не нужно, а вот соблюсти необходимые расстояния между объектами необходимо. Помните, что предназначение сарая может быть разным, и если у туалета одна удаленность от жилого дома, то у птичника и обычного сарая — совершенно другая. Не нарывайтесь на неприятности с соседями, ведь в случае нарушения условий размещения постройки вы получите предписание о сносе и административный штраф.
Важно! Вспомогательное помещение должно располагаться только в пределах участка, находящегося в вашей собственности. Если здание выходит за границы вашей земли, то на его строительство влияют совершенно другие законы.

Примерный план участка
Проектирование сооружения ↑
План размещения и разметка постройки необходимы для дальнейшего строительства фундамента. Не нужно строить сарай, тем более капитальный, в низине, на заливаемых участках, на осыпаемом склоне. В этих случаях можно дождаться преждевременного разрушения своих трудов.
Проект сооружения выбирается, исходя из целей постройки. Можно построить небольшой деревянный сарайчик для садового инвентаря, деревянный птичник, лесопилку или капитальный каменный хозблок с туалетом и душем. Если вы не умеете рисовать проекты, то сможете выбрать план сарая в конце статьи.

Проект сарая с погребом
Отзывы заказчиков по стоимости строительства ↑
Составление сметы на постройку нельзя игнорировать. Многие читатели задают вопросы, сколько должен стоить сарай того или иного типа. Цены на материалы и строительство очень разнятся во всех регионах нашей страны, и ответить на этот вопрос однозначно нельзя. Но совершенно точно можно утверждать, что услуги рабочих, даже самых низко квалифицированных, будут составлять минимум треть из всей суммы.
Отзывы заказчиков по возведению деревянного хозблока 3х6 метров говорят о цене не менее 30 тысяч только за работу строителей! Конечно, построить сарай самому значительно выгодней. Кто-то строит из подручных материалов и старых досок, а кто-то закупает туфоблок или силикатный кирпич, изготавливает плитный фундамент, да еще и погреб проектирует. Любая постройка требует серьезного подхода при расчете стоимости материалов, а иначе вы рискуете влезть в долгострой из-за нехватки средств.
Строительство каркасного сарая своими руками
Любое строительство начинается с возведения основания, им является фундамент. Фундаменты бывают разные, но для сарая на садовом участке, независимо от «капитальности» строения, используют несколько типов, возведение которых рассмотрим подробней.
Ленточный ↑
Если вы решили делать капитальную постройку, то ей понадобится крепкий фундамент. Здесь уже не обойдешься слегка вкопанными кирпичами для временной конструкции. Лучше всего выбрать ленточный фундамент. У него есть ряд преимуществ:
- не сложен в возведении без посторонней помощи;
- сроки изготовления минимальные;
- подходит для большинства грунтов;
- выдерживает вес многоэтажного здания.

Разметка под фундамент
Для него вам потребуется бетон, дерево на опалубку, арматура диаметром 1,2 см, песок и щебень для подушки. Ход работы прост и понятен даже новичку.
- Расчищаем землю от мусора, камней и корней.
- Намечаем размеры фундамента колышками и веревкой.
- Роем траншею шириной 70-80 см. Её глубина должна быть чуть больше глубины промерзания почвы в вашей местности.
- Мастерим опалубку. Дерево для нее не обязательно выбирать высокого качества — после застывания бетона доски можно будет убрать. Главное, чтобы высота опалубки было выше поверхности почвы, так вы защитите свое строение от влаги и грязи.

Опалубка под ленточный фундамент
- Дно фундамента, а особенно траншей, засыпают двумя слоями песка и щебня, тем самым формируя амортизационную и дренажную подушку. Она защитит ваше будущее строение от колебаний почвы.

Подушка под фундамент
- Затем укладывается арматура в виде сетки. Ширина ячейки примерно 30-40 см.

Укладка арматуры
- Заливаем фундамент бетоном, даем ему схватиться, убираем опалубку. Ваш фундамент готов. Для тяжелых сооружений рекомендуется соблюсти время между строительством и закладкой основания. Но для легкого сарая достаточно полного высыхания бетона.

Готовый ленточный фундамент под сарай
Если вы планируете крупную постройку, например, большой хозблок или сарай из кирпича, а почвы в вашей местности достаточно подвижны, то можно усилить конструкцию сваями. Свайно-ленточный фундамент изготавливается по тому же принципу. Отличие лишь в том, что через каждые 1,5-2 метра устанавливаются сваи.

Установка свайно-ленточного фундамента
Плитный ↑
Этот вид фундамента не дешев, но не сложен в изготовлении. Такое основание мастерят для строений на плывунах, болотистых почвах, грунтах, подверженных сезонным колебаниям и затоплению. Выполняется он схоже с ленточным фундаментом, но есть и отличия.
- Песчано-гравийная подушка должна быть качественной и достигать толщины до 30 см. Сначала засыпается и трамбуется песок, затем щебень.
- Далее укладывается геотекстиль.

Укладка плитного фундамента послойно
- Сетка из арматуры монтируется по всей площади основания.

Сетка из арматуры
- Все пространство внутри деревянной опалубки заливается бетоном.

Плитный фундамент
Столбчатый ↑
Обычно рассказ начинают с самого простого, но в нашем случае вариант простого фундамента опишем в конце. Дело в том, что этот вид основания подойдет только тем регионам, где почва не подвержена «гулянию». Подвижные грунты расшатают легкий фундамент и быстро разрушат постройку. Этот вид основания под сарай можно с успехом использовать если:
- Постройка временная: рассчитанный срок службы – не более нескольких лет.
- Уровень подъема грунтовых вод низкий.
- Нет плывунов и глубокого промерзания почвы.
- Не бывает сезонных разливов и поднятия вод.
- У почвы нет болотистых свойств.

Опора столбчатого фундамента
Если вам подходят все условия, то научиться делать такой фундамент очень просто.
- Делается разметка под основание сарая.
- В углах выкапываются лунки на 15 см больше глубины промерзания почвы.
- На дно лунок трамбуется 15 сантиметровый слой песка и щебня.
- В лунки устанавливаются кирпичные или бетонные сваи.
Если используется кирпичная кладка, то важно не забыть еще два пункта.
- Внутрь сваи поместить металлический стержень для еще большего укрепления конструкции.
- Обмазать сваю гидроизоляционным материалом или обернуть рубероидом.

Столбчатый фундамент может быть использован, как основание для небольших строений
Прежде чем строить нужно представить себе это и нарисовать подробный чертеж, а иначе ваш сарай будет не только некрасивым, но может и вовсе не получиться. Хотя проект начинается даже не с рисунка, а с формирования четкой цели строительства. Например, сараи подразделяются на: капитальные и временные. Капитальный сарай имеет совершенно иную стоимость и трудозатраты, чем временный. Опять же, какую крышу вы предпочтете: односкатную или двускатную с коньком. И тот и другой вариант вполне приемлемы для уличного подсобного помещения, но и финансовые и временные затраты разные. Может быть, вам нужен комбинированный сарай, где будут помещаться одновременно птичник, дровник и летний душ. Или потребности удовлетворит мини-сарайчик для садового инвентаря. Кроме размеров, сарай может быть каркасный, кирпичный или построенный из пеноблоков.

Небольшой сарайчик
Если вы не наделены талантом чертежника и не можете выбрать из множества вариантов построек — этот раздел для вас. Здесь описано, как построить сарай своими руками в проектах и чертежах. Выбираем и строим!
Иногда на участке места недостаточно, а вместить хочется многое. Тогда на помощь приходят проекты подсобных строений, в которых объединены несколько хозяйственных помещений.

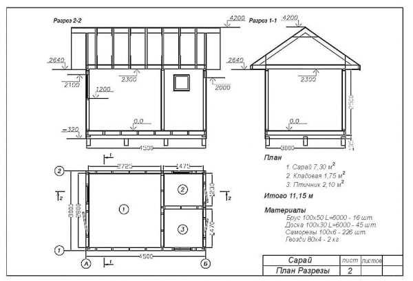
Проект сарая с кладовой и птичником
Подсобные помещения имеют разную направленность. Кто-то хранит в сарае старые вещи, а кому-то необходим сарай для скота.

Проект сарая для скота
Следующий проект для тех, кто нуждается в небольшом помещении на дачном участке, например, для хранения садового инвентаря. Его можно расположить в любом месте огорода или сада.

Проект небольшого сарая для дачи
Обычный каркас сарая с крышей под уклон может применяться для любых целей.

Чертеж каркаса сарая
Начнем описание с простого проекта. Если сарай необходим срочно, а времени на его возведение очень мало, допустим, неделя. Тогда выбирают облегченный вариант постройки из дерева на столбчатом или мелко заглубленном фундаменте. Такая конструкция может прослужить от нескольких лет и более — все будет зависеть от подвижности и сезонных колебаний почвы. Начальный этап строительства стандартного каркасного деревянного сарая с размерами 3х6 м с односкатной крышей 3 и 2,4 метра, выглядит так:
- Выбираем место, учитывая все особенности.
- Формируем столбчатый фундамент, о котором говорилось в предыдущих разделах. Либо делаем мелко заглубленный фундамент из стандартных блоков или 600х300х200
- На выступающие части фундамента выстилаем рубероид или любую другую гидроизоляцию. Это необходимо сделать для защиты всей постройки от гниения за счет подъема грунтовых вод, грязи, дождей.

Основание под постройку на бетонных блоках с гидроизоляцией
- Теперь монтируем каркас из деревянного бруса 150х150 – это оптимальное сечение для основания. Пропитываем и обрабатываем дерево и скрепляем между собой. Более опытные мастера могут крепить «в полдоски», а начинающие строители «в стык» при помощи металлических уголков. Таким же образом крепим лаги пола.

Крепление брусьев уголками
- Выстилаем пол влагостойкими ОСБ или толстой фанерой. И начинаем собирать каркас.

Пол застелен влагостойкими ОСБ
Переходим непосредственно к строительству каркаса. Если у вас есть вторые руки, да не одни, то можете воспользоваться способом сборки на земле. При этом варианте каждая стена собирается отдельно и монтируется к основанию.

Монтаж готовых стен каркасного сарая
Если вы работаете в одиночку, то поставить готовую стенку будет тяжело. В этом случае надстраиваем каркас от пола. Монтируем брусья по уровню, учитывая места под окна и дверной проем. В случае строительства без помощников будет сложно сразу выставить уровень вертикальных брусьев. Для этого пользуются палками-откосами.

Каркас сарая с палками-откосами
После вертикальных стоек можно приступить к установке крыши. На каркас накладываются горизонтальные брусья с пропилами, которые будут служить основанием крыши.

Строение каркаса односкатной крыши
Следующим этапом будет обшивка стен и укладка кровли. Самый простой вариант материала для стен — ОСБ плиты, которые необходимо покрасить для защиты от атмосферного воздействия. Крышу можно укрыть доской, а поверх доски выложить рубероид. Если позволяют средства, то укройте крышу шифером, профлистом или металлочерепицей.

Монтаж профлиста на крышу

Каркасный сарай обшитый ОСБ
Строительство каркасного сарая своими руками: видео мастер-класс
Почему выбор пал именно на этот материал, а не на кирпич, к примеру. Дело в том, что пеноблок имеет ряд огромных преимуществ. Это теплый, дышащий материал, который имеет маленький вес, потому строить из него не трудозатратно. Легкость пенобетона позволяет строить дома в одиночку, а скорость увеличится в несколько раз, так как блоки в несколько раз больше кирпича. Плюс к этому, пенобетонные блоки просты в монтаже. Пеноблоки бывают разные, и об этом нужно знать.

Характеристика пеноблоков
Размеры у этих строительных блоков тоже разнятся.

Размеры пеноблоков
Плюс этого материала еще и в том, что укладка может происходить как на специальный клей, так и на раствор.

Инструменты для строительства из пеноблоков
Этапы строительства сарая из пеноблоков рассмотрим подробнее.
- Это капитальное строение, и ставить его на легкое основание не стоит, потому возводим ленточный, свайный или плитный фундамент, как описано в разделе выше.
- Начиная возведение стен, выстилаем основание фундамента рубероидом и жидкой гидроизоляцией.
- Начинаем строить с углов сарая, выравнивая их при помощи уровня и отвеса.

Первый ряд пеноблоков
Натягиваем шнур-причалку и по нему продолжаем строить стену. Перевязка швов, как на фото, позволит обезопасить от протечек во время сильных косых ливней и защитит от сквозняков.

Кладка газобетона
Раствор или клей наносится обильно, а его остатки снимаются инструментом и тщательно зачищаются.

Нанесение раствора на газобетонные блоки
После возведения стен необходимо смонтировать крышу. Для этого по верхней кладке монтируется мауэрлат, на который будут укладываться стропильные ноги.

Монтаж стропильной системы
После монтажа несущей системы крыши её покрывают доской или ОСБ, гидроизолируют, утепляют и накладывают кровельный материал.

Укладка кровли
Сарай из пенобетона — очень выгодная постройка. Она прочная и теплая. Такое помещение можно приспособить под мастерскую, птичник и хозблок.
Строительство из пенобетона
Использовать можно не только внутренние помещения сарая, но и его стены, если крышу сделать чуть больше, чем нужно.
Можно обшить каркас строения профлистом и сделать автоматическое поднятие двери. Такой сарай смотрится очень стильно.
Сарай для скотины может состоять из двух помещений: крытого загона и уличного варианта. Тогда ваши животные не будут портить окружающую территорию и уничтожать посадки.
Небольшой сарай будет выглядеть привлекательно, если его украсить вьющимися растениями.
Деревянный сарай с двускатной крышей тоже может быть красивым, если дерево пропитать специальным маслом и покрасить.
Хозблок из оцилиндрованного бревна выглядит как избушка из сказки и будет украшением любого участка.
Этот сарай поднимет настроение в любую погоду, ведь он ярко разукрашен всеми членами семьи.
Сарай на приусадебном участке необходим, а, используя наши советы, вы можете сэкономить на его строительстве. Главное – не бояться и все правильно просчитать.
strmnt.com
Сарай для дачи своими руками (54 фото): пошаговая инструкция

Сарай для дачи может стать не только местом для хранения всего необходимого инвентаря, а и декоративной постройкой
Сарай для дачи своими руками – это самый простой способ в кратчайшие сроки получить минимально необходимый уровень комфорта. Когда первая радость от приобретения участка пройдет и станет вопрос реального освоения участка, именно хозблок – первая необходимая постройка. Пока жилой дом будет только возводиться, он послужит местом для хранения всего необходимого инвентаря. А после завершения строительства сарай может как сохранить свои первоначальные функции, выполняя роль кладовой, так и стать местом для хранения дров или, например, курятником.
Содержание

Сарай для дачи — это простой способ в кратчайшие сроки получить минимально необходимый уровень комфорта

Сарай может выполняя роль как кладовой, так и стать местом для хранения дров или, например, курятником
Как выбрать сарай для дачи: рассматриваем варианты
Зачастую строительством сарая начинается освоение участка, поэтому к этому времени необходимо уже иметь детальный план-схему, на котором будет обозначено расположение всех планируемых построек: жилой дом, баня, беседка, гараж, сарай и т.д.
Совет! Поскольку дачный участок обычно не отличается большой площадью, все хозпостройки, для экономии места, лучше объединить – построить сарай, который будет совмещать функции кладовой, туалета и душевой. Такое решение особенно оправдано на начальном этапе строительства.

Для экономии места можно построить сарай, который будет совмещать функции кладовой, туалета и душевой
Есть несколько подходов для выбора места для строительства сарая, например, рядом с границей участка, за домом, чтобы скрыть хозблок от посторонних взгляд. Кроме дома, дополнительную маскировку сараю можно обеспечить с помощью вертикального озеленения участка. Другой вариант – разместить сарай вблизи дома, чтобы не приходилось за каждой мелочью бегать через весь участок. Очень часто под сарай отводят место, которое по разным причинам (затененность, северная сторона, плохая почва) хуже всего подходит для посадки деревьев или выращивания садовых культур.

Часто под сарай отводят место, которое по разным причинам хуже всего подходит для выращивания садовых культур
Рассмотрим несколько самых популярных вариантов сараев для дачи.
Готовый контейнерный хозблок
Самый быстрый и наименее трудозатратный вариант – это приобретение готового сарая (бытовки) в виде готового сборно/разборного хозблока. Это моноблочное строение (обычно – контейнерного типа), в основе которого – жесткий металлический каркас, который по бокам обшит металлом, а в стены заложен утеплитель, в нем уже проложена электропроводка. Существует множество вариантов – это может быть как просто небольшой сарай-кладовка, так и многофункциональный хозблок, включающий в себя туалет, душевую и даже место для отдыха, а в некоторых моделях предусмотрен съемный навес, что дает возможность сделать небольшую веранду.

Готовый сарай — самый быстрый и наименее трудозатратный вариант

Сарай-кладовка — удобно и не занимает много места
Для установки такого контейнерного хозблока не требуется заливка фундамента, будет вполне достаточно столбчатого фундамента или простых бетонных блоков. В уже готовом виде (правда, может понадобиться минимальная сборка внутренних коммуникаций, например, подключение шлангов к водосборникам, что вполне можно сделать самостоятельно) его доставляют на участок, для монтажа потребуется автокран. Внешне такой сарай выглядит не очень привлекательным, но благодаря его надежности, долговечности и мобильности такой хозблок можно будет продать после окончания строительства жилого дома.

Контейнерный хозблок
Сарай из необрезной доски (горбыля)
Хозблок эконом-класса, самый дешевый и быстрый для самостоятельного возведения, для его установки можно даже не заливать фундамент. Чтобы уберечь здание от влаги и загнивания, его устанавливают на поддоны или широкие бруски. Оптимальный размер = порядка 2 м в ширину, 3 – в длину и 2,4-2,5 м в высоту. Для изготовления каркаса используют деревянный брус, который затем обшивают необрезной доской (горбылем). Крыша – односкатная, в качестве кровли используют толь (рубероид). Чтобы сделать такой сарай привлекательнее, вдоль стен можно высадить вьющиеся растения, а сам дом украсить граффити, даже простая покраска сделает его симпатичнее и дополнительно защитит дерево от гниения.

Сарай из необрезной доски
Такой сарай – временный вариант, уже через 3-5 лет ему потребуется замена на что-то более капитальное.

Сарай из необрезной доски — экономически выгодно, но не долговечно
Каркасный сарай
Так же не очень дорогой и быстро возводимый вариант, но в отличие от предыдущего примера, главное – это создать крепкий несущий каркас из качественного прочного бруса. Со временем, когда потребуется ремонт, нужно будет просто заменить обшивку, установив, например, привлекательный сайдинг. А односкатную крышу заменить на двускатную, уложив вместо толи (рубероида) битумную черепицу. И невзрачный сарай сразу станет оригинальной и привлекательной частью ландшафтного дизайна. Для такого сарая уже потребуется столбчатый фундамент.

Каркасный сарай

Каркасный сарай может стать оригинальной и привлекательной частью ландшафтного дизайна
Сарай из пеноблока
Вариант, сочетающий в себе высокую долговечность и разумную стоимость, при этом пенобетон имеет очень хорошие показатели в теплоизоляции, что поможет избежать работ по утеплению сарая. Использование сайдинга или декоративной штукатурки для отделки, избавив стены от мрачных серых оттенков, добавят сараю привлекательности и презентабельности.

Сарай из пеноблока — вариант, сочетающий в себе высокую долговечность и разумную стоимость
Сарай из кирпича
Долговечный и основательный вариант, который выбирают те, кому важно иметь надежное и пожаробезопасное здание, например, для выращивания мелкой живности или птицы. Чаще всего кирпичный сарай возводят после окончания строительства жилого дома, чтобы создать единый и гармоничный архитектурный ансамбль. Сарай из кирпича может сочетаться, например, с пристроенной беседкой или баней. К недостаткам можно отнести большой вес здания (потребуется закладка основательного фундамента), сложность в проведении работ и, как общее следствие, высокая окончательная стоимость.

Сарай из кирпича

Сарай из кирпича — долговечный и основательный вариант
Строим сарай для дачи своими руками: пошаговое описание
Оптимальным вариантом, сочетающим долговечность, привлекательность и возможность самостоятельного проведения работ, станет каркасный сарай. Рассмотрим пошаговую инструкцию, как самостоятельно построить деревянный хозблок на даче.

Дачный каркасный сарай

Привлекательный каркасный сарай с небольшой зоной отдыха
Закладка фундамента
На выбранном месте проводим разметку и очищаем место. Каркасный сарай можно установить на сплошной плитный или ленточный фундамент, но будет вполне достаточно столбчатого или свайно-винтового. Для этого углам участка, в местах пересечения внутренних стен (или через 1,5 м) устанавливают асбестовые трубы и заливают их щебеночно-бетонной смесью (вариант – выкладывают кирпичные столбики, углубленные в почву на 70 см). После этого надо дать фундаменту пару недель устояться.

Закладка фундамента
Совет! Чтобы фундамент прослужил долго столбики (асбестовые трубы) перед засыпкой необходимо обработать специальной мастикой, чтобы улучшить их гидроизоляцию.

Сарай в виде сказочной избы
Монтаж каркаса
Перед установкой каркаса деревянный брус необходимо обработать антисептиком и особой защитной пропиткой. Основание из бруса укладывают уже на устоявшийся фундамент, при этом между столбиками и брусом необходима прослойка из рубероида (толи). Пол можно постелить и сразу, и при проведении отделочных работ – такой вариант предпочтительнее, потому что проще будет устанавливать вертикальные стойки.

Сарай — крайне необходимый атрибут на садовом участке
К нижней обвязке закрепляем вертикальные стойки – их количество и расположение определяют исходя из количества углов и мест установки дверных и оконных проемов. Перед окончательным закреплением стоек необходимо проверить, чтобы они располагались строго вертикально.

Монтаж стоек
После фиксации вертикальных стоек на них крепят верхнюю обвязку (верхнюю часть каркаса), при этом на брусьях необходимо предварительно приготовить пропилы по бокам и посередине. Все соединения проводят при помощи стальных уголков и саморезов.
Обустройство крыши
Для обустройства односкатной крыши необходимо предусмотреть, чтобы вертикальные стойки с одной стороны были выше – это придаст крыше необходимый уклон, чтобы обеспечить хорошее водо- и снегоотведение. Для стропил используют доску толщиной 40мм, при том длина стропил должна быть на 50-60 см больше, чем ширина каркаса. Размещение стропил – приблизительно на расстоянии 0,5 м друг от друга.

Крыша сарая должна иметь хорошее водо- и снегоотведение
В точках, где стропила будут опираться на брус, для повышения прочности установки, делают вырубки. После укладки стропил на подстропильный каркас, их фиксируют саморезами.

Сборка крыши сарая

Сарай для дачи из камня — красивая и долговечная постройка
Для обшивки стен и крыши сарая можно использовать доску размером 25х150 мм. На досчатую крышу укладывают гидроизоляцию – толь (рубероид). Впрочем, чтобы придать сараю более презентабельный и привлекательный вид, как финишное кровельное покрытие можно использовать профнастил или битумную черепицу. Размещая доски впритык друг к другу, сначала обшивают фронтальную сторону сарая, а затем – боковые и заднюю части.

Сарай с очень привлекательным и интересным внешним видом
Совет! Обшив стены сарая досками, их наружную сторону необходимо дополнительно отшлифовать электрорубанком. Это не только добавит привлекательности конструкции, но и позволит дождевой воде, не задерживаясь на стенах, легко и быстро скатываться вниз по гладкой доске.

Обшив стены сарая досками, их наружную сторону необходимо дополнительно отшлифовать электрорубанком
Инструкция по построению деревянного сарая – последовательно и подробно смотрите на видео:
happymodern.ru
Сарай из шлакоблоков своими руками
Что мы подразумеваем под словом сарай? Чаще всего говоря о сарае мы имеем ввиду крытое нежилое строение, обычно без потолочных перекрытий, неуютной комнате и о месте, где мы постоянно что-то складируем нам ненужное! Так же это место, где может жить домашнее хозяйство! Только от нас с вами зависит, какой же этот сарай лучше строить?! Для чего будем его использовать, но для этого необходимо знать как построить сарай из шлакоблоков своими руками.
Начальные работы
Для начала, нам понадобится организовать всю работу, а прежде всего место для постройки и выкопки фундамента. Почему же выбираем именно шлакоблочный сарай? Давайте разберемся для начала с понятием шлакоблок?! Это строительный материал, получаемый в результате вибропрессования тяжелых и легких бетонов в формах. Такое название он получил вследствие использования домашнего шлака в качестве наполнителя.
Мнения многих специалистов сходятся, с тем, что с ним намного лучше работать и в разы быстрее. При этом он влагоустойчив и качествен в эксплуатации.
Заливка фундамента
Идеальный фундамент: смесь битого кирпича или камней с раствором цемента. Залейте ров на несколько месяцев, а лучше на пол года. Если вдруг раствор будет проседать, добавьте свежего и выровняйте его с уровнем земли.
Фото ленточного фундаментаОчень важно не забывать, что фундамент — это основа любых строительных работ! Именно от него зависит, как долго он вам послужит.
Кладка стен
Как говорится в любом строительстве или ремонте — главное начать, что мы уже и сделали. Следом на готовый фундамент начинаем кладку шлакоблока.

Простелите в нахлест рубероид, подложите уровень, и после определения максимально высокой точки начинайте делать углы. Между ними натяните нить, которая поможет не завалить стену. Помните, делать арматурную перевязку каждые 3 ряда при кладке. Оконные и дверные проемы перекройте деревянными перемычками, потом будет накладываться слои шлакоблока, следовательно они должны быть прочными.
Утепление
Если Вы решили строить сарай, для содержания там животных, его еще придется хорошо утеплить. Для этого выкладывайте двойным рядом стены, заполнив между ними утеплителем: стекловатой или паралоном. Самый простой вариант: шлакоблок — стекловата — кирпич, или кирпич — стекловата — кирпич. Окончив этот этап следуйте к накрытию крыши, а для этого, убедитесь, что все выставлено правильно.

В строительном деле очень важно не спешить, а делать акцент на качестве работы.
Покрытие кровли
Никаких новшеств здесь можете не внедрять, если хотите долго служащий сарай, тогда делайте крышу без нарушения технологии.
- Для установки крыши на верхушки стен вмонтируйте деревянные лаги;
- Изнутри к ним необходимо прикрутить доски;
- Вату или поролон уложите сверху лаг и накройте досками;
- Ровная шиферная крыша с наклоном — самый элементарный вариант для сарая;
- Для этого нужно, с противоположных сторон нашей постройки закрепить доски, с одной стороны более широкие в диаметре, в этом случае Вы получите желаемый наклон;
- Закрепите шифер.

Отделочные внутренние работы
Сарай из шлакоблока не требует штукатурки, но если все таки хочется, можете взять вместо нее обычную глину. Полы следует залить совместно с фундаментной основой. Самый экономный вариант — уложите полы поддонами и накройте их соломой или постелите линолеум.

Вывод
Построить сарай из шлакоблока не так и сложно, но возвести полноценный сарай равносильно тому, что построить дом, только меньшего размера. Необходимо лишь иметь необходимый материал, знания и конечно желание делать жизнь лучше!
Удачной стройки!
oblokax.ru
Как построить деревянный сарай для дачи своими руками: пошаговая инструкция построения хозблока.
Самой первой садовой постройкой, которая должна присутствовать на дачном участке, является сарай, или другими словами хозблок. Его польза заключается в том, что в то время, когда вы будете строить жилое помещение на даче, все необходимые приспособления можно хранить в сарае, а когда дом построится, сарай можно использовать как курятник, кладовую, место для хранения дров и т.д. Для того что бы построить сарай для дачи своими руками не потребуется много времени и денег, поэтому сейчас мы вам предоставим всю необходимую информацию для того, что бы вы самостоятельно сделали удобный хозблок.
Подходящее место для дачного сарая

Сарай для дачи своими руками
Так как сарай для дачи прослужит вам более одного десятка лет, его необходимо построить в удобном месте, что бы и вид приусадебной территории не портился, и удобно было эксплуатировать данную постройку. Для начала требуется составить полный проект всех элементов дачной территории, исходя из этого проекта, необходимо определится с месторасположением сарая. Некоторые дачники отдают предпочтение месту за жилым домом, что бы сарай не попадался на глаза гостям, остальные наоборот декоративно украшают хозблок и размещают его в центре двора для всеобщего обозрения. Поэтому местонахождение сарая, в первую очередь, будет зависеть от вашего предпочтения, которое основывается, опираясь на вид сарая, предназначение и т.д.
Виды сараев для дачи
На сегодняшний день целесообразнее сооружать следующие виды сараев:
- Сарай эконом класса из необрезной доски
- Сарай из кирпича
- Деревянный сарай
- Сарай из пеноблока
Кратко рассмотрим достоинства каждого вида.

Сарай эконом класса своими руками
Что касается сарая эконом-класса, его главным преимуществом является очень низкая стоимость и высокая скорость монтажа. Данный хозблок послужит исключительно временным сооружением на то время, пока основное жилье строится либо ремонтируется. Экономный сарай можно возводить даже без фундамента, просто установив его на широкие бруски либо поддоны, что бы дно не прогнило. Общее время возведения данной постройки составляет не более двух дней, а особенности построения следующие:
- Оптимальные размеры составляют: длина 2 м, ширина 3 м, высота 2,4 м.
- Вариант крыши – односкатная, покрытая рубероидом либо толем
- Материал изготовления – каркас из брусков, обшитый необрезной доской
- Украсить хозблок рекомендуется вьющимися растениями в кашло либо шпалере
Что касается сарая из кирпича, основное его достоинство это долговечность, прочность и сочетание с общим садовым декором. Построение сарая из кирпича требует возведение ленточного фундамента, правильный выбор месторасположения постройки, утепление стен, пола и крыши, а так же использование существенных материальных средств. Однако, если построить сарай для дачи своими руками при помощи кирпича, данная постройка послужит вам не один год и может применяться для самых разнообразных целей (как кладовка, мастерская, садовый домик).

Сарай из кирпича своими руками
Деревянный сарай из бруса является одним из наиболее популярных и экономически выгодных вариантов сарая, а сарай из пеноблока сможет дольше прослужить, поэтому остановимся на том, как построить сарай из пеноблока и древесины, т.к. в последнее время дачники выбирают между данными вариантами возведения.

Деревянный сарай для дачи
Построение сарая для дачи из пеноблока своими руками
На сегодняшний день такой строительный материал, как пеноблок является очень популярным и конкурентоспособным материалом. Его основное преимущество заключается в быстроте монтажа и высокой долговечности (как минимум 25 лет). Не достатком пеноблока является его высокая стоимость и требование помощи специалиста в возведении конструкции.
Рассмотрим инструкцию по построению сарая из пеноблока своими руками:
- Для начала подготавливаем местность для будущего фундамента: убираем мусор и снимаем слой почвы (не менее 50 см).
- После этого приступаем к заливке ленточного фундамента (готовому фундаменту необходимо полностью застыть на протяжении нескольких дней, если заливка осуществляется в жаркую погоду, тогда обязательно поливаем свежий фундамент водой, что бы не произошло рассыхание и растрескивание раствора).
- Когда фундамент высохнет необходимо выстелить на него гидроизоляционный материал. Лучше всего использовать рубероид.
- Готовим раствор для кладки пеноблоков. Нужно использовать цементно-песочный раствор с соотношением 1:4
Стены из пеноблока
- Приступаем к кладке пеноблоков, ее нужно осуществлять с углов, только после их возведения переходим к поднятию стен. При укладке пеноблока обязательно необходимо использовать отвес и строительный уровень, что бы конструкция была идеально ровной как в горизонтальной, так и в вертикальной плоскости. Не забываем так же оставлять место для дверей и окон.

Конструкция сарая и пеноблока
- Переходим к перекрытию крыши. Для этого используем любой из популярных кровельных материалов (шифер, профнастил, металлочерепицу). Конструкция крыши может быть как односкатная, так и двухскатная, но лучше использовать последний вариант, т.к. он более привлекателен.

Строительство крыши
- Приближаясь к финалу, вставляем двери и окна, стелим и утепляем пол.
- Ну и в завершении переходим отделочным работам: внешнюю и внутреннюю часть стен штукатурим (внутреннюю можно просто обшить гипсокартоном), обустраиваем местность возле хозблока садовыми фигурками и прочими архитектурными формами.

Использование сайдинга
Вот и все, сарай из пеноблока своими руками считается построенным. При необходимости проводим к нему электросеть и наслаждаемся собственноручной садовой постройкой!
Как построить деревянный сарай для дачи
Рассмотрим сначала более простую конструкцию дачного хозблока, а именно построение сарая эконом класса на дачном участке.
Инструкция по созданию простейшего деревянного сарая следующая:
- Подготавливаем место для будущего сарая (убираем мусор и отсыпаем местность гравием)

Фундамент для сарая
- По углам планируемой постройки вкапываем 4 трехметровых столба на 60 см в почву. Нижнюю часть будущих опор необходимо заизолировать от преждевременного гниения (в интернете масса вариантов изоляции, например, при помощи толя). Задние столбы обязательно делаем на 15-20 см ниже, что бы осуществить скат воды.
- Осуществляем нижнюю и верхнюю обвязку конструкции при помощи брусков 50*50 мм и строительного уровня. Обе обвязки должны проходить на 10 см ниже/выше от верхнего/нижнего края конструкции.

Создаем конструкцию
- Создаем еще одну обвязку, по центру, между предыдущими двумя
- Зашиваем конструкцию досками, которые необходимо прибивать вертикально. Обязательно создаем в досках отверстия под двери и окна.
Зашиваем сарай досками (вариант горизонтального расположения досок)
- Переходим к кровле крыши. Для этого крепим 3 бруска на верхнюю обвязку (они буду в качестве стропил). Расстояние между брусками должно быть одинаковое. Далее стропила зашиваем досками и стелим на них рубероид (напуская по 5 см между стыками). Листы рубероида обязательно закрепляем при помощи брусков, которые прибиваются вдоль крыши. Не забываем соорудить сток дождевой воды.
- Устанавливаем двери и окна, стелим пол, сооружаем сарай внутренними приспособлениями (полками, шкафчиками и т.д.)
- Обрабатываем всю конструкцию антисептическим средством, которое защити сарай от преждевременного гниения.
- Украшаем построенный своими руками сарай для дачи при помощи вазонов с цветами, подделок и т.д.

Готовый сарай эконом класса
Как вы видите, построение сарая эконом класса своими руками не представляет особой сложности, общее время работы может составить 4-5 часов, материальные затраты не превысят 1500 грн, а срок службы достигает 6 лет. Просто, дешево, удобно!
Ну и более долговечный деревянный сарай для дачи можно построить следующим образом:
- Так же как и в предыдущем варианте подготавливаем местность для будущей постройки

подготавливаем фундамент сарая
- Фундамент будет столбчатый, для этого вырываем ямы для опорных столбов (глубина около 1,5 м), устанавливаем в них асбестовые трубы и при помощи бетонного раствора (2 доли цемента, 4 доли щебня и 3 доли песка) заливаем фундамент. Для того что бы раствор застыл, потребуется как минимум 3-4 дня.
- Перед возведением деревянной конструкции сарая, все элементы конструкции обрабатываем антисептическим средством, которое защити сарай от гниения и вреда насекомых.
- Возводим каркас сарая из деревянных брусков. Сразу же рекомендуется сделать нижнюю обвязку и лаги для пола.
- К нижней обвязке прибиваем вертикальные стойки, к которым далее необходимо прибить верхнюю обвязку. Количество стоек рассчитывается следующим образом: по 2 на каждое окно и дверь и 4шт. на углы.
- Возводим крышу, используя руководство предыдущего варианта.
Возведение крыши из досок
- Обшиваем конструкцию при помощи обрезных досок, после чего вставляем двери и окна.

Обшиваем конструкцию деревянного сарая
- Обрезные доски зашиваем вагонкой либо используя сайдинг
- Как и в построении сарая эконом класса, в конце концов, создаем в постройке внутренние приспособления (полки, шкафчики и т.д.).

Финальные штрихи построения деревянного сарая
Построение более долговечного деревянного сарая для дачи своими руками считается завершенным. Данная постройка прослужит вам около 20 лет, при том что материальные затраты на построение не превысят и 4000 грн.
Предоставим вам видео о том, как сделать деревянный сарая своими руками:
Видео-урок построения деревянного сарая своими руками
Рекомендуем так же ознакомится с похожей статьей: как сделать летнюю кухню для дачи своими руками.
samdizajner.ru