Как построить гараж из шлакоблока своими руками
Шлакоблок – это стройматериал в виде блоков. Для его производства используются такие компоненты как цемент, шлак и вода.
Готовый раствор заливается в форму и уплотняется вибрацией, после чего оставляется застывать. Для улучшения характеристик могут быть добавлены и другие компоненты, например, керамзит.
Применяются блоки…
Как построить гараж из шлакоблоков своими руками
Шлакоблок – это стройматериал в виде блоков. Для его производства используются такие компоненты как цемент, шлак и вода. Готовый раствор заливается в форму и уплотняется вибрацией, после чего оставляется застывать. Для улучшения характеристик могут быть добавлены и другие компоненты, например, керамзит. Применяются блоки шлакобетона для возведения гаражей, малоэтажных домов и других хозяйственных построек.
- Строительство из шлакобетона
- Проектирование и расчет количества блоков
- Технология возведения гаража
- Расценки
Главные преимущества шлакоблоков – это небольшой вес и хорошие теплоизоляционные характеристики. Благодаря малому весу блоки не создают большой нагрузки на основание гаража. Можно намного быстрее построить своими руками здание за счет их крупных размеров. О том, как построить баню из шлакобетона, вы узнаете из этого руководства.
Особенности шлакобетона и нюансы работы с ним
Блоки из шлакобетона не обладают большой прочностью, именно поэтому их в основном применяют для строительства построек второстепенного значения. Для того чтобы построить самому гараж с нуля из шлакоблоков, можно использовать 2 вида этого блочного материала. Он бывает с пустотами и монолитным.
Монолитные шлакоблоки применяются при возведении несущих стен, так как они имеют большую прочность. Но из-за отсутствия пустот с воздухом у них хуже теплоизоляционные характеристики. Пустотелые шлакоблоки, наоборот, хорошо удерживают тепло, но имеют меньшую прочность. Они тоже отлично подходят для того, чтобы построить гараж.
Основной недостаток шла
derevyannie-doma.com
Как строить гараж из шлакоблоков своими руками
Гараж для личного автотранспорта не является местом постоянного пребывания для большинства людей, поэтому при возникновении необходимости его возведения, каждый рачительный хозяин ищет способ, как затратить минимум средств, достигнув при этом лучших результатов.
Оптимальным решением при подобной постановке запроса будет гараж из шлакоблоков своими руками, позволяющий совместить достоинство низкой стоимости конструктивных элементов, и максимально сократить стоимость постройки.
Подготовка и строительство фундамента

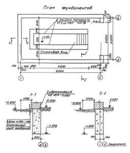
План фундамента
Любой дом из материалов на основе натурального или рукотворного камня опирается на основание, компенсирующее сезонные колебания высоты грунта и придающее конструкции устойчивость и стабильность положения в пространстве. Строительство классического кирпичного сооружения начинается с монолитной опорной железобетонной конструкции, из-за значительного веса конструктивных элементов.
Чтобы начать возводить фундамент, необходимо сделать разметку периметра гаражной постройки, которая может иметь размеры 3х6, 4х6, 6х6 или другие необходимые хозяину пропорции. По размеченному контуру будущей постройки роется траншея глубиной 1 метр и шириной 30–40 см, которая послойно засыпается песком и пескогравием (или смесью песка и битых кирпичей) с промежуточным уплотнением слоёв. Толщину каждого слоя, которых должно быть 6, после уплотнения следует сделать не менее 15 см, оставив 10 см до уровня грунта, чтобы заглубить фундамент под гараж из шлакоблока.
Далее по периметру необходимо построить съемную опалубку, заглубленную в траншею до уровня подсыпки, которая будет компенсировать пучение грунта в холодное время года. Сколько сантиметров в высоту будет ленточный фундамент зависит от планируемой высоты здания, чем большее количество этажей имеет дом или гараж, тем выше стоит поднять монолит из железобетона. Строительство гаража подразумевает наличие ворот, в предполагаемом створе которых опалубка должна возвышаться над уровнем земли не более, чем на 10 см.
Предварительный расчет шлакоблоков
Предварительно рассчитать сколько конструктивных элементов потребуется, чтобы построить гараж из шлакоблока, можно зная его размеры в горизонтальной и вертикальной плоскости. Имея периметр 4х6 и высоту в 2,5 м получим площадь стен около 45 м2, на возведение которых потребуется количество блоков из расчета 13 шт. на 1 м2. Таким образом кладка стен гаража с размерами 4х6 потребует 585 шлакоблоков стандартного размера 39х19х18,8 см.
Рассчитать капиталовложения в строительство гаража или дома можно умножив требуемое количество шлакоблоков на их стоимость, которая составляет от 25 до 45 р. за шт., позволяя предположить затраты на уровне 17–30 тыс. р. только на возведение стен с учетом цемента и песка.
Дополнительной статьей расходов является крыша, которую стоит сразу сделать с жесткой скатной кровлей с одной или двумя гранями, в зависимости от наличия соседних сооружений и предпочтительного направления стекания осадочной влаги. Сооружение деревянного каркаса и укладка металлочерепицы или профнастила потребует дополнительных затрат на уровне 5–15 тыс. р., в зависимости от площади крыши и выбранного материала.
Возведение стен
Кладочный план
Приведенный выше расчет шлакоблоков на 1 м2 кладки выполнен при условии, что строительство выполняется в полблока, так как стояночное место для автомобиля – это не дом и более толстые стены в гараже обоснованы только, если он используется зимой для ремонтных работ. При необходимости длительного пребывания в гараже зимой при температуре ниже -20оС, кладку следует сделать вдвое большей толщины, при этом количество конструктивных элементов и стоимость строительства вырастут пропорционально, достигнув 35–60 тыс. р.
Чтобы не расширять стены и фундамент вдвое, до 38 см, которые имеет не каждый жилой дом, гараж может быть облицован по технологии сухого фасада с применением утеплителя и облицовочных плит или кирпича. Эффект от подобной операции будет двояким:
- с одной стороны, перепады температуры внутри станут минимальными, особенно в холодное время года;
- с другой стороны, паропроницаемость стен ухудшиться и в помещении будет превышен показатель влажности.
Тратить дополнительные средства на сооружение гаража стоит только, если он используется круглый год, как ремонтная мастерская. Во всех остальных случаях толщины стен в 19 см (ширина 1 шлакоблока) будет вполне достаточно, чтобы соорудить комфортабельный гараж.

План фасада
Кладка стен из шлакоблоков представляется более простой, по сравнению с применением кирпича, процедурой, так как требуется меньшее число стыков и процесс происходит в три – пять раз быстрее (в зависимости от того, сколько человек задействовано в строительстве).
Прежде, чем приступать к возведению стен и перегородок, следует выставить коробку от ворот, если это гараж или дверные и оконные коробки, если строится дом. Подобный подход позволит придать конструкции большую жесткость и сразу заделать в кладку приваренные к воротам/дверям металлические штыри или пластины. Крепление ворот и других проемов осуществляется посредством распорок, а положение должно быть выставлено в обеих плоскостях – горизонтальной и вертикальной. Для дополнительного освещения не только дом, но и гараж может быть оснащен окнами, которые позволят сэкономить на искусственном освещении в дневное время суток.
Поверхность шлакоблока имеет хорошую адгезию к штукатурным смесям и сравнительно ровная, поэтому отделка помещения внутри и снаружи не представляет трудностей. В качестве отделочного покрытия может быть применена цементная штукатурка или штукатурка на гипсовой или цементной основе.
Кровля гаража

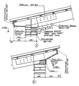
План расположения стропил
Классическое решение в виде плоской крыши и гидроизоляции при помощи рулонного кровельного материала, применяемое для гаражных построек уже давно изжило себя морально и слабо применимо при возведении стен из шлакоблоков. Любой легковесный материал, а особенно пустотелые блоки из смеси шлака и цемента, чувствителен к высоким нагрузкам, которые неизбежны при укладке плит перекрытия для сооружения плоской крыши.
Чтобы избежать нагрузок на стены, способных создать напряжение в конструкциях и вызвать растрескивание поверхности, рационально венчать гараж жесткой кровлей из металлочерепицы или профилированных листов, обладающих невысокой массой и долговечностью в разы превосходящей любое битумизированное покрытие.
В зависимости от размещения гаража, крыша может быть:
- двускатной, если здание отстоит от других построек;
- односкатной с наклоном на боковую сторону, когда гараж примыкает к дому или находится на границе земельного участка;
- имеющей наклон плоскости в сторону ворот, если постройка находится в составе бокса и окружена со всех сторон примыкающими сооружениями.

Узлы примыкания крыши к стенам
Каркас подобной крыши преимущественно сооружается из деревянных брусьев и досок из лиственных пород дерева, пропитанных водоотталкивающим составом, дабы предохранить от гниения и продлить срок службы до 40–50 лет.
В зависимости от возможных нагрузок на кровельное покрытие, зависящее от того будут ходить по крыше или нет, деревянная обрешетка может иметь следующую конструкцию:
- в виде решетки из брусков сечением не менее 40 мм, уложенных с шагом в 1 м – при допустимости хождения по крыше и повышенной снеговой нагрузке;
- в виде продольных ребер жёсткости, имеющих отступ в 1–1,5 м, с периодической укладкой поперечин с шагом в 2–2,5 м – при недопустимости перемещений по кровле и малоснежных зимах.
При необходимости сверхпрочной кровли, каркас может быть собран из металлических профилей или сварен из профилированной трубы, что несомненно увеличит нагрузку на стены, но гарантирует жесткость крыше.
https://www.youtube.com/watch?v=ftfVZO8N3FQ
Как построить гараж из шлакоблока своими руками: фото и видео
Современный выбор строительных материалов позволяет подобрать для каждого вида работ оптимальный вариант. Востребованным и популярным материалом является кирпич. Он позволяет строить качественные долговечные здания высокой степени надёжности и прочности. Но не все виды построек требуют капитального возведения. Например, для строительства практичного современного гаража есть более доступная по цене альтернатива – шлакоблоки.

В современном частном строительстве этот материал пользуется высоким спросом. Его активно применяют для возведения построек различного назначения, в том числе и для гаражей. Характеристики шлакоблоков вполне удовлетворяют всем требованиям, которые сегодня предъявляются к подобного рода постройкам. В этой статье мы расскажем об особенностях шлакоблоков, а также об их применении в качестве основного материала для возведения гаража.
Особенности шлакоблока

Шлакоблоком называется материал, основу которого составляет шлак. Есть много типов шлака, но качественный строительный материал получают только из доменного шлака с полезным выходом и высокими эксплуатационными характеристиками. А также в качестве наполнителей могут применяться кирпичный бой или ракушечник. Такие компоненты, как перлит, полистирол, керамзит добавляются для улучшения теплопроводных свойств материала.
Сфера применения шлакоблока довольно широка. Из него возводят ограждения и гаражи, пристрои, хозяйственные постройки и даже дома. Планируя построить гараж из шлакоблока своими руками, примите во внимание особые свойства этого материала:
- Грамотно подбирайте тип шлакоблоков. Они бывают пустотелые и полнотелые. Из блоков пустотелого типа возводят стены. А полнотелые шлакоблоки используют для возведения прочных и надёжных оснований. Несоответствующий выбор типа материала может привести к повышению затрат на строительство или к его некачественному исполнению;
- Шлакоблоки нельзя использовать в грунтах с подземными водами, этот материал не любит контактов с влагой, так как быстро её впитывает. Этот фактор необходимо учитывать, планируя устройство фундамента из шлакоблоков. Такое основание подойдёт только для небольших построек на сухом грунте;
- Строить гараж из шлакоблока своими руками – просто и легко. Для этого вам не потребуется серьёзный и дорогостоящий инструмент или помощь профессионалов. Все виды работ под силу выполнить человеку, который имеет хотя бы начальные знания в строительной сфере.
Есть мнение, что шлакоблочные конструкции не отличаются надёжностью и прочностью. Но при серьёзном и ответственном отношении к выполнению работ такая постройка прослужит вам более 50 лет. Так что вы можете смело выбирать шлакоблоки в качестве основного материала для строительства гаража.
С чего начинается строительство гаража из шлакоблока?

Как и любое другое строительство, возведение гаража из шлакоблоков начинается с тщательной подготовки. Это обязательный и необходимый этап, который обеспечивает быстрое и качественное возведение. Основные задачи, которые необходимо решить на данном этапе, заключаются в следующем:
- Геодезическая оценка территории для определения возможности строительства из шлакоблока и выбора оптимального типа основания;
- Оценка возможности проведения коммуникаций к будущей постройке;
- Разработка подробного проекта;
- Выбор оптимального типа кладки материала, расчёт необходимого количества шлакоблоков и его цены.
Разработка проекта гаража

Проект разрабатывается с учётом особенностей будущего строения. Для сложного объекта необходим подробный и детальный проект, содержащий как общие чертежи, так и детализацию отдельных узлов. Для такой работы требуется участие профессионалов, проекты разрабатываются командой специалистов в конструкторском бюро. Но если вы хотите построить практичный и качественный гараж, то за разработкой проекта вовсе не обязательно обращаться в специализированную компанию. Сделать чертёж можно самостоятельно. Представьте, каким должен быть ваш гараж, и перенесите основные элементы на лист бумаги. Такая схема или чертёж поможет вам сориентироваться в работах, порядке и сроке их выполнения. А также можно взять готовый проект на специализированном сайте. Имея чёткий план и чертёж, вы будете работать планомерно, эффективно и оперативно.
На данном этапе необходимо определиться с назначением гаража и его функциями. Он может быть предназначен исключительно для стоянки автомобиля или же также для проведения осмотров и ремонта. А также в гараже может быть предусмотрен погреб. Все эти детали необходимо предусмотреть перед началом строительства, чтобы своевременно выполнить необходимые для их реализации работы.
Строим гараж своими руками из шлакоблока

Возведение такого гаража состоит из нескольких основных стадий:
- Устройство основания. Шлакоблоки отличаются относительно небольшим весом, что позволяет сэкономить на устройстве фундамента. Основание высокой прочности в этом случае не требуется, достаточно будет ленточного фундамента;
- Устройство тепло- и пароизоляции цоколя;
- Возведение стен;
- Устройство пола;
- Возведение перекрытий;
- Устройство кровли;
- Установка ворот;
- Подключение коммуникаций;
- Финишная отделка внутри и снаружи.
Расчёт материала для гаража из шлакоблоков
Расчёт необходимого материала – важный этап работ. Грамотное выполнение этой задачи обеспечит бесперебойное и оперативное строительство, а также позволит сэкономить бюджет. Для того рассчитать требуемое количество шлакоблоков для гаража, нужно приготовить:
- Рулетку;
- Калькулятор;
- Бумагу и карандаш.
Первым делом нужно решить, какого размера материал вы будете использовать. Стандартный размер шлакоблока – 390х188х190 мм. Но сегодня можно приобрести и блоки, размером 390х188х120 мм. Рекомендуется самостоятельно убедиться в реальных размерах шлакоблоков. Особое внимание стоит уделить стороне, которая будет располагаться снаружи.
Предположим, вы планируете строить стену в полблока. Тогда требуется определить площадь грани.
На 1 м² кладки вам потребуется 1/0,074=13,51 штук блоков. Полученное значение округляется в большую сторону, то есть получается, что на 1 м² необходимо 14 блоков.
Рассмотрим примерный расчёт материала для стандартного гаража, размерами 7х5 м при высоте 2,5 м. На такую постройку нужно 717 блоков. Это значение получается следующим образом:
- Выясняем периметр гаража: (7+5)х2=24 м;
- Определяем площадь стен: 24х2,5=60 м²;
- Вычисляем площадь ворот, чтобы вычесть из общей площади стен. Для такого гаража ворота можно сделать размерами 2,5 и 3,2 м. Площадь таких ворот составит 2,5х3,2=8,75 м². Таким образом, блоками нужно выложить 60-8,75=51,25 м².
- Теперь можно рассчитать, сколько же блоков понадобится для гаража: 51,25х14=717 блоков.
Приобретать материал нужно с определённым запасом, так как в процессе транспортировки и выполнения работ некоторые блоки могут быть испорчены.
Устройство основания для гаража
Шлакоблочные конструкции имеют относительно небольшой вес, что позволяет обойтись более лёгким основанием. Необходимо грамотно подобрать глубину его залегания в соответствии с параметрами промерзания почвы и прочих факторов. Существует несколько основных способов создания основания под шлакоблочный гараж:
- Верхние слои почвы удаляются. На подготовленной площадке выкапывается траншея. На её дно укладывается песок, битый кирпич, булыжники. Все слои пропитываются цементом, чтобы они не разрушались под воздействием воды.
- На подготовленном участке формируется траншея, глубиной полметра и шириной 40 см. Дно выкладывается увлажнённым песком и утрамбовывается, чтобы основание получилось прочным и надёжным. После этого на дно выкладываются усиливающие элементы арматурные прутья, связанные проволокой. Затем траншея заполняется цементом. Прочность она набирает через месяц;
- Наиболее простой способ – выполнить бутобетонное основание. А также, как и в предыдущем методе, подготавливается траншея. В неё послойно выкладывается бутовый камень. Всё это заливается цементом, марки 150 и выше.
Устройство гидроизоляции основания
Для защиты фундамента от воды его покрывают гидроизоляционным материалом. Оптимальный вариант, многократно проверенный на практике, – это рубероид. Его необходимо настилать, немного перекрывая площадь строительства. Установка ворот осуществляется на распорку.
Строительство стен гаража из шлакоблоков

Класть стены из шлакоблоков достаточно просто. Особых правил и секретов у этого процесса нет. Работа осуществляется на принципах, схожих с кирпичной кладкой. Используют несколько основных способов кладки: в полкамня, или ложковый, в полтора камня, в два камня. Толщина кладки определяет характеристики будущей стены и её устойчивость к различным негативным воздействиям, таким как перепады температур, ветровая нагрузка и т. п.
Наиболее часто используют «кирпичный» метод строительства стен. Он заключается в том, что следующий ряд перекрывает швы предыдущего. Работа начинается с углов здания, а затем продолжается по шнурам, натянутым между углами.
Устройство пола
Устройство пола осуществляется на цокольном уровне. При этом важно, чтобы стяжка имела толщину не менее 10 см. Сначала с территории работ собирается весь мусор. Затем площадка выравнивается и высыпается песком или щебнем мелкой фракции.
Стяжку лучше всего выполнять бетоном марки М200. Он заливается послойно, непрерывно. Когда смесь застынет, можно начинать затирать поверхность.
Устройство кровли
В качестве материала для крыши используют двутавровые балки, которые по длине на 25 см превышают ширину гаража. Они выкладываются поперёк с шагом в 80 см. После этого выполняется обрешётка брусьями, толщиной 40 мм. Они выкладываются плотно. Сверху кладётся рубероид, создаётся керамзитовый слой, шлак и минеральные плиты. После этого создаётся стяжка в 20 мм толщиной. Сверху можно положить акваизолом или рубемаст.
Финишная отделка гаража из шлакоблока

Этот этап заключается во внешних и внутренних отделочных работах. Для гаража из шлакоблоков подходят практически все виды отделки. Вы можете выбрать штукатурку, вагонку, побелку. При необходимости можно выполнить дополнительную теплоизоляцию помещения с помощью пенопластовых плит, а также сделать дополнительную гидроизоляцию полиэтиленовой плёнкой. Шлакоблоки можно обшить гипсокартонными листами.
Качественная отделка придаёт шлакоблочному гаражу эстетичный внешний вид, сравнимый с видом кирпичной постройки. Строение получается долговечное, практичное, надёжное. С помощью отделки можно добиться комфорта и уюта внутри помещения.
Теперь вы знаете, как построить гараж из шлакоблоков своими руками, видео из нашей статьи поможет вам лучше понять все основные этапы работы.
Загрузка…pochtidoma.ru
Как построить гараж из шлакоблока своими руками
Гараж и мастерская
Гараж из шлакоблока своими руками – отличное решение для тех, кто не располагает большими средствами и вынужден экономить. Выгода не только в том, что не привлекаются наемные рабочие, но и в самом материале. Его стоимость меньше кирпича, а размеры в 6–8 раз больше. Сокращается количество необходимого раствора, работа идет намного быстрее. Сравнительно малый вес позволяет устроить облегченный фундамент.
Возведение даже такого несложного здания требует продуманного подхода. Учитываются многие факторы, от которых зависит количество и стоимость материалов. Одно дело – гараж только для хранения автомобиля, другое – также для ремонта. Необходим проект: можно использовать предложенный в статье, внести изменения или составить свой. Размеры шлакоблока позволяют даже неопытному строителю справиться с кладкой, особенно после просмотра видео. Но стенами дело не кончается: крыша, пол, утепление – это тоже важные части работы.
1
Шлакоблоки в строительстве гаража – преимущества и недостатки
Это материал искусственного происхождения, который производится путем прессования зольно-шлаковой смеси, скрепленной цементом. Длина стандартного изделия – 380 мм, по ширине и высоте они практически одинаковы – 190×188 мм. Большинство имеет пустоты, отличающиеся размерами у разных изготовителей. Их вес от 15 до 21 кг. Существуют также сплошные, которые называют полнотелыми – масса 27 кг.
Строительство благодаря большим габаритам происходит гораздо быстрее, чем при использовании кирпича. В зависимости от размера пустот масса одного кубического метра составляет от 0,5 до 2 тонн. При выборе легкого материала сооружение воздвигается на облегченном фундаменте, что упрощает и удешевляет работу. Шлакоблоки довольно прочные: грамотная кладка и надежная гидроизоляция позволяют простоять зданиям до полувека.

Основные характеристики зависят от величины фракций сырья, применяемого для изготовления. Их размер от 2 до 8 мм. Чем больше, тем прочнее, меньше вес и теплопроводность. Иногда вместо классических наполнителей применяют гравий, песок, ракушечник, кирпичный бой. Включение керамзита, полистирола, перлита повышает способность удерживать тепло. Для строительства гаража наиболее подходят пустотелые блоки.
Имеются и отдельные недостатки. Для изготовления применяется доменный шлак, который содержит вредные вещества. Если использовалось некачественное сырье, превышаются допустимые нормы токсичности. Покупая строительный материал, следует поинтересоваться наличием сертификата, удостовериться в качестве и безопасности изделий.

Структура этого камня такая, что он склонен поглощать влагу. Если хозяин строит шлакоблочный гараж своими силами с нуля, еще на стадии проекта следует предусмотреть гидроизоляцию и дренаж. Требуется позаботиться об отделке снаружи, чтобы защитить здание от дождя и снега. Изнутри это не имеет такого большого значения, но если стены покрыть даже штукатуркой, машина будет стоять в сухом помещении и прослужит дольше.
2
Проектирование постройки – выбор места, расчет материалов
Для самостоятельного строительства гаража из шлакоблока вначале определяются с размерами. Обычно сооружение рассчитывают на стоянку одной или двух машин. Их возведение ничем не отличается. В любом случае исходят из габаритов имеющихся автомобилей, вероятность покупки большего. Если планируется устроить стеллажи, требуется расширение пространства. Исходя из этих данных, выбирают проект.

Два внедорожника комфортно располагаются на пространстве 7×7 или 7×8 м. Для авто среднего класса достаточно 6×6 м. Стоимость такого гаража не намного выше, чем для машины, которая умещается на площади 6×4 м. Удобство обслуживания автомобилей обеспечивается при минимальной высоте потолка 2,2 м.

Следующий вопрос – выбор места. Существует два варианта: отдельный гараж или пристройка к другому зданию. Последний удобен для владельца повышенным комфортом: в любую погоду он выходит к автомобилю из своего дома. Легче подвести электричество, воду. Но семье могут причинять беспокойство запахи масла, топлива, шум двигателя. Отдельная постройка обычно располагается прямо у дороги, откуда удобен выезд.

Требуется иметь сведения о геодезических свойствах местности, на которой планируется возвести гараж. Имеет значение тип грунта и глубина подземных вод. Это важно для определения вида фундамента. Его стоимость составляет значительную часть от расходов на все строение. На ровном основании или когда не нужна смотровая яма, используют плиту.
В других случаях выбирают ленточный фундамент. Исходя из его геометрических параметров, узнают объем и делают расчет необходимого материала. Обычное соотношение цемента, песка и щебня 1:3:5. На один кубометр раствора уходит 200–400 кг цемента в зависимости от его марки и желаемой прочности бетона.
Рассчитать количество необходимых блоков на гараж просто. Стандартный размер – 390×190×188 мм. Сначала определяются со способом укладки, считают, сколько поместится блоков в одном ряду по всему периметру. Высоту гаража (в миллиметрах) делят на 188 (высота блока). Полученные результаты умножают – это и будет необходимое количество материала. Учитывают размер ворот, прибавляют на бой. Обычно требуется 450–800 штук. Много зависит от наличия окон, дверей, планируются ли фронтоны из шлакоблоков.
3
Создание фундамента – важно учитывать особенности шлакоблока
Начинается строительство с разбивки территории и земляных работ. Используя чертеж, размеры гаража переносят на местность. Понадобится капроновый шнур, колышки, рулетка и кувалда. Начинают с углов. Если это пристройка к дому, ориентируются по линии стен существующего здания. Когда площадку разметили, проверяют расстояние по диагонали, добиваются одинакового.

Роют траншею. Ее обычная ширина – 40 см, но если решено воздвигать стены в один блок или полтора, то основание делают на 10 см больше их толщины с каждой стороны. Глубина зависит от промерзания грунта – от 0,6 м до 1,2 м. Дно делают ровным, землю выбирают до тех пор, пока нижний слой не будет естественной плотности. Стены ровняют.
В шлакобетоне имеются большие пустоты, он обладает большой пористостью, отчего один кубометр кладки весит незначительно. Отсюда вытекают не очень строгие требования к основанию. Не понадобится забивать сваи, укладывать массивные блоки – устраивают ленточный фундамент. Как его сделать из бутового камня, показывает видео.

Комментарии к ролику и некоторые варианты исполнения:
- 1. В траншее сооружают опалубку, хотя при плотном грунте на стенках обходятся без нее. Толщиной в 10 см засыпают щебенку, перемешанную с песком, утрамбовывают.
- 2. Заливают жидким цементно-песчаным раствором (соотношение 1:2,5), где воды втрое больше его объема. Сразу укладывают камни.
- 3. Опять выливают бетон, затем вбрасывают бут. Так продолжают, чередуя слои, до тех пор, пока ров не заполнится доверху.
Важно соблюдать требования к марке цемента: 150 или 200. Его меньшее качество не позволяет соорудить прочный и надежный фундамент. Еще один момент: камень перед заливкой раствором увлажняют водой, пока он не станет мокрым. С количеством определяются на месте. Это необходимо для хорошего сцепления с раствором.

Конструкция бутобетонного фундамента
Над основанием сооружают цоколь. Рекомендуемая высота для гаража из шлакоблока – 70 см. По всему периметру устраивают опалубку из досок. Их оптимальная ширина составляет 10 см. Сразу проверяют уровнем горизонтальность. Заливают способом, подобным применяемому при постройке фундамента. Когда верхний слой застынет, по нему укладывают гидроизоляцию из рубероида.

Склонность шлакоблока хорошо впитывать воду требует принятия мер для снижения этого отрицательного качества. Кроме верхней гидроизоляции, используют обмазочную по внешней поверхности цоколя. Устраивают дренажные скважины для оттока грунтовых вод. Обязательно делают бетонную отмостку шириной 50 см с уклоном.
4
Сооружение стен – инструкция и видео
Кладка шлакоблоков ничем не отличается от кирпичной, только построить из них гараж своими руками можно гораздо быстрее. Также начинают с углов, натягивают шнур и продолжают работу. Каждый следующий ряд перекрывает шов предыдущего. Применяются технологии, от которых зависит толщина стен:
- в половину блока;
- целый камень;
- полтора или два.
Укладка проводится на растворе из цемента марки М500 или М400 и строительного песка: пропорция 1:3. Пластичность улучшают добавлением красной глины или любого моющего средства. Готовят немного, с таким расчетом, чтобы израсходовать за час-полтора.
Пошагово работа осуществляется следующим образом:
- на фундамент наносят раствор;
- по шнуру укладывают камень;
- выравнивают по горизонтали с помощью уровня, постукивая в необходимых местах;
- из щелей убирают лишний раствор;
- когда уложен первый ряд, проверяют его правильность уровнем и по шнуру;
- продолжают в том же порядке.
Для повышения прочности стен используют армирующую сетку. Ее укладывают на первом ряду, а также после каждого четвертого.

У профессионалов обычно весь инструмент – это кельма, шнур и уровень. Новичкам поможет шаблон, который делают из деревянных досок. Его длина и ширина равны соответствующим параметрам шлакоблока, а высота на 1,5 см больше. Это максимально допустимая толщина швов, иначе нарушается теплоизоляция стен.
Чтобы наглядно познакомиться, как пошагово осуществляется кладка шлакоблоков, рекомендуется посмотреть видеоматериал. Все нюансы наиболее заметны именно в нем.

5
Как устроить крышу – доступны различные варианты
Для кровли гаража из шлакоблоков используются преимущественно такие материалы:
- рубероид и шифер – теми, кто не заботится об эстетичности, кого привлекает низкая стоимость;
- профлист – характеризуется неплохим качеством, приемлемым внешним видом и доступной ценой;
- керамическая и металлочерепица – дорогая, но долговечная и красивая.

Обычная крыша из шифера по деревянной обрешетке дешевая и холодная. Если нужен теплый гараж, применяют сэндвич-панели на металлокаркасе. Такой кровле не требуется дополнительное утепление, обходится она дешевле, чем использование минваты и подобных материалов, из которых делают теплоизоляционный слой. Важно предусмотреть свесы не менее 20 см для защиты стен от дождя.

панель кровельная
Кроме односкатной и двускатной кровли, устраивают плоскую, которую легко утеплить. Для перекрытия используют деревянные балки 120×120 мм. Их укладывают с уклоном поперек гаража через 0,8 м, обеспечивая карнизы с обеих сторон не менее 20 см. Снизу подшивают досками толщиной 40 мм вплотную одна к другой. Сверху укладывают рубероид, на него – утеплитель. Используют минеральную вату или керамзит.
Дальше делается стяжка толщиной 20 мм. Ее обязательно покрывают грунтовкой, чтобы приклеился кровельный материал. Для защиты от влаги остается уложить акваизол или рубемаст.
6
Завершающий этап – предохранение от сырости и утепление
Когда гараж из шлакоблока остается без внешней и внутренней отделки, хозяин совершает большую ошибку. Стены будут настолько пропитываться влагой, что это приведет к их скорому разрушению. Чем покрыть поверхности – дело вкуса и возможностей. Это может быть обычная штукатурка с последующей побелкой, покраской или без нее.

Вариант внутренней отделки
Утеплять стены необязательно, но без этого влажность в гараже из шлакоблока всегда остается высокой, а при холоде будет присутствовать сырость. Чтобы сделать теплоизоляцию за небольшие деньги, используют пенополистирол или стекловолокно. Лучший вариант расположения – снаружи, после чего выполняется штукатурка. Избавиться от сырости в помещении также поможет приточная вентиляция.

Утепление стен
Для внутренней отделки применяется водостойкий гипсокартон, вагонка или пластиковые панели. Снаружи используют сайдинг, декоративную штукатурку – вариантов много. Если есть деньги – облицовывают декоративным камнем.
В любом случае следует помнить о том, что гараж должен гармонично вписываться в общий ансамбль строений, особенно если он выполнен в виде пристройки.
obustroen.ru
видео-инструкция по монтажу своими руками, фото
Понравилась статья? Следите за новыми идеями полезных авто советов в нашем канале. Подписывайтесь на нас в Яндекс.Дзене. Подписаться.
Обычно гараж это не только место стоянки вашего железного коня.
Поэтому правильное его строительство и обустройство может оградить вас от множества проблем в дальнейшем, а также доставить массу приятных ощущений от проделанной работы по окончанию строительства.

Один из вариантов гаража из обсуждаемого в статье материала
Подготовительные работы
Выбор места под строительство гаража и его разметка
Строим гараж
Перед тем как построить гараж из шлакоблока следует выполнить целый ряд подготовительных работ.
И первым в этом списке значится выбор места будущего строения.
- Это место должно находиться не далеко от дома, чтоб в ненастную погоду вам не пришлось долго мокнуть.
- Оно должно быть как можно ближе к выезду на дорогу и не содержать множества поворотов, так как это усложнит выезд.
- Оно не должно находиться в низине, чтоб избежать подтопления талыми или дождевыми водами.
- В месте предполагаемого строительства не должны проходить линии коммуникаций, таких как линии электропередач, трубопроводы подачи воды, отопления или канализации. Иначе в случае их поломки наличие строения может существенно усложнить их ремонт.
- Также следует предусмотреть место для открывания ворот гаража и возможность парковки автомобиля, например для его мойки.
Выбор размеров гаража
После выбора места под строительство гаража из шлакоблоков своими руками приступаем к разметке фундамента.
Для этого нам понадобится:
- колышки, которыми мы обозначим углы гаража;
- молоток для их забивки;
- капроновая веревка, которой мы обозначим стены нашего строения.
Ну и конечно рулетка для обмера.
Размеры выбираем в соответствии с нашими нуждами
Чтоб определиться с углами мы должны точно знать размеры нашего будущего гаража. И здесь выбор целиком и полностью зависит от ваших финансовых возможностей и требований к строению.
Если это будет только место для стоянки машины С-класса, то вам достаточно помещения 6×4×2,5 метра:
- длина 6 метров обусловлена размерами машины 4 – 5 метров плюс по полметра для свободного прохода;
- ширину принимаем в 4 метра исходя из ширины автомобиля 2 – 2,5 метра и по 70см для прохода и складирования подсобных материалов;
- ну и высоты в 2,5 метра вполне достаточно как для размещения легковой машины, так и для прохода.
Стоит отметить, что если какие то параметры вас не устраивают или вам требуется дополнительное пространство, то вы смело можете увеличить размеры до требуемых, так как нет стандартных размеров.
Расчет необходимых материалов
Определившись с размерами гаража можно производить расчет необходимых материалов. К этому вопросу следует подойти основательно, ведь от этого во многом зависит, сколько стоит построить гараж из шлакоблока.
Для расчета необходимого количества шлакоблока исходим из размеров 6×4×2,5 метра и принимаем наиболее распространенную кладку в пол шлакоблока.

Размеры шлакоблока
Учитывая размеры данного материала в 390×190×188 мм, получаем, что на 1м2 требуется 13,6 штук шлакоблока. Исходя из этого, на постройку всего нашего гаража из пеноблоков своими руками потребуется около 586 штук. Стоит отметить, что мы учли размер ворот в 3×2,3 метра. Если у вас предусмотрены окна или отдельные двери также учтите их при расчете.
Стоит учесть, что этот расчет достаточно условный, так как он не учитывает толщину швов, но с другой стороны следует учитывать бой при транспортировке и переноске и необходимость резки материала.
Также нам потребуется бутовый камень для фундамента. Еще 5 деревянных или железных балок по 4,3 метра для кровли, а также материал для ее обустройства. Ну и конечно необходим песок и цемент для приготовления раствора.
Строительство гаража
Обустройство фундамента
Чтоб построить гараж из шлакоблока своими руками, как и при любом строительстве, в первую очередь обустраиваем фундамент.
Для данного строения достаточно ленточного фундамента, что значительно облегчает его создание.

Фундамент обустраиваем, как изображено на фото
- Роем траншею под фундамент согласно нашей разметке. В идеале фундамент должен соответствовать глубине промерзания грунта, но для средней полосы России достаточно 60 см. Ширину фундамента инструкция предписывает выполнить не менее 300 мм.
- Выполняем гидроизоляцию стенок траншеи при помощи рубероида или полиэтиленовой пленки. Этот пункт необходим для исключения вытекания воды при заливке фундамента.
- Выполняем песочно-гравийную засыпку и трамбуем ее. Высота засыпки может быть до 300 мм.
- Выполняем непосредственно заливку фундамента раствором. Для экономии раствора можно использовать бутовый камень, куски шлакоблока и другие подобные материалы.
- Так как фундамент должен находиться на 100 мм выше уровня земли, создаем опалубку и производим заливку на данную высоту.
- Выполняем гидроизоляцию верхней части фундамента с помощью двух слоев рубероида.
Статьи по теме:
Кладка стен
Если мы строим гараж из шлакоблока без помощи профессиональных каменщиков, то обязательно просмотрите видео в конце статьи.
Остальные обязательные условия кладки следующие:
Вставьте раму ворот перед кладкой лицевой части
- Кладку выполняем с перевязкой швов.
- Начинать кладку следует с создания углов, от которых вы потом будете отталкиваться при кладке стены из пеноблоков своими руками.
- Если у нас не предусмотрено утепление или другая облицовка фасада проверяйте качество фасадных швов. Лучше всего кладку вести с расшивкой швов.
- Не поленитесь вымерять каждый шлакоблок уровнем, особенно первый ряд.
- Перед кладкой со стороны ворот, установите ворота или хотя бы их раму. Причем сделать это необходимо по уровню и надежно зафиксировать при помощи распорок.
- В верхней части необходимо выполнить уклон от задней к лицевой части. Он должен быть не менее 300 мм.
- Оставьте гнезда для закладки балок перекрытия крыши. Сделайте их 20×20×15 см, лишнее потом можно будет заложить. Гнезда необходимо выполнить через каждый метр.
Обустройство крыши и пола
Для обустройства кровли в обустроенные гнезда вставляем подготовленные балки. Для этого лучше применять железные балки, но их цена выше. Поэтому после специальной обработки можно применить деревянные балки. Дальнейшие действия зависят от типа кровли, которую вы хотите создать.

На фото — практичный вариант крыши
Обустройство пола лучше выполнить бетонной заливкой. При этом для надежности ее необходимо армировать. Также не лишним будет сделать небольшой уклон от задней стенки ко входу, для избежание скапливания воды.
Статьи по теме:
Для удобного заезда в гараж в передней части необходимо выполнить пандус. А для отведения воды от фундамента бетонную отмостку на 50 – 70 см по всему периметру гаража.
Вывод
Строительство гаража хоть и достаточно простая задача, но требует минимальных знаний о принципе строительства зданий и сооружений. Видео в этой статье поможет вам разобраться в элементарных вопросах.
openoblokah.ru
Гараж из шлакоблоков — по шагам с фото и видео

Блочное возведение по праву считается самым востребованным строительством сооружений различного назначения. Так, гараж из шлакоблоков является оптимальным решением для любого автолюбителя. Методика создания бетонного камня и мастерство применения на практике отработаны до автоматизма, поэтому блок также популярен, как и кирпич.
Классификация шлакоблоков
Особенности строительного материала:- если строить гараж из шлакоблока своими руками, следует знать, что пустотелые формы необходимы для создания стен, а полнотелый материал применяется для возведения фундамента;
- строитель должен учитывать, что шлакоблок не переносит влагу, что важно при сооружении основы здания. Строительный камень укладывается только на сухих грунтах для небольших построек;
- все работы можно осуществить самостоятельно без привлечения профессионалов.
Бетонный блок в производстве выпускается только доменный, так как отличается отменным качеством и полезным выходом. Среди недорогих наполнителей могут добавляться кирпичный бой, для повышения термозащитных свойств используется керамзит или полистирол. Материал имеет низкий звукоизолирующий потенциал.
Подготовительные работы
Схема гаража из шлакоблоков
Перед тем, как построить гараж из шлакоблока своими руками, следует учесть ряд важных моментов: помещение будет лишь для хранения транспортного средства или также для ремонта машины. Если строение небольшое, расчет осуществляется быстро.Важные моменты:
- геодезическая оценка местности;
- расчет расстояния до линий света и воды;
- схематично определяется проект будущего здания;
- следует определиться с видом фундамента, кладки и типом крыши;
- составить материальную базу.
Дополнительный расчет денежных затрат с небольшим запасом гарантирует успешную реализацию проекта.
Создание фундамента
Фундамент для гаража из шлакоблоков
Будущий гараж из шлакоблоков своими руками прослужит долго, если основа будет прочная. Глубина фундамента зависит от типа грунта, высоты прохождения грунтовой воды и степени промерзания почвы в зимний период.Способы создания оснований:
- По периметру выкапывается траншея, которая слоями заполняется утрамбованным песком, щебнем или битым красным кирпичом. Все составляющие пропитываются крепким цементным раствором. Такой прием характерен для твёрдых почв, где деформация минимальна.
- На глубину полуметра выкапывается траншея, которая равномерно заполняется очищенным песком. Полученный слой заливается водой и трамбуется. Затем в разном направлении выкладывается арматура. После манипуляций все полости заливаются крепким бетоном вперемешку со щебнем. Получившемуся фундаменту под гараж из шлакоблоков нужно выстоять около месяца, прежде чем построить стены.
- Самым простым способом возведения фундамента под гараж из шлакоблоков является бутобетонный. В вырытые по периметру полости выкладывается бутовый камень, который заливается цементом высокой марки. В скрепляющую смесь добавляется немного песка (1:2) и воды, пока не получится густая и подвижная масса.
Следует помнить о гидроизоляции фундамента. Чаще всего используется рубероид, который выстилается на несколько сантиметров больше строящегося строения. Отдельно прорабатывается цоколь пояса из кирпича. Он необходим для наилучшей теплоизоляции и дополнительной вентиляции помещения.
Стены гаража из шлакоблоков
Стены гаража из шлакоблоков
Чтобы гараж из шлакоблока своими руками отличался максимальной прочностью, особые усилия прилагаются для сооружения несущих стен будущей постройки. Принцип с бетонным камнем такой же, как и с кирпичом. Способ возведения кладки зависит (ее толщина) от функционального назначения гаража, температурных условий эксплуатации и порывов ветра.Самый ходовой метод создания стен – «кирпичный». Каждый последующий ряд перекрывает предыдущий с небольшим смещением. Сначала сооружаются углы, между которыми протягивается веревка (самый действенный прием для выравнивания плоскости), затем выводят стены согласно заданной траектории.
В качестве связующего материала используется клеящий состав. Смесь экономичная, поэтому так востребована в строительстве. Швы получаются тонкие, прилегание блоков максимально крепкое.
Любой гараж из шлакоблоков лучше сооружать в частном дворе или на территории закрытого типа: проникнуть во внутреннее пространство довольно легко из-за крупной структуры бетонных камней, которые легко вытащить из общей стеновой цепи.
Прочное кровельное покрытие
Кровельное покрытие
В основе крыши идут балки, которые фиксируются в проемах стен. Поверх выстилаются доски и накрываются водоизоляционными материалами. Для необходимости верхнее пространство дополнительно утепляется: между балками утеплители дополнительно обшиваются фанерой, МДФ и не только. Наверх изоляции укладывается кровельный материал (профнастил, шифер, ондулин).Заливка пола
Крепкое основание получит гараж из шлакоблока своими руками в том случае, когда все действия будут выверены и выполнятся в определенной последовательности:
- Верхний слой грунта убирается, и дно образовавшейся ямы аккуратно утрамбовывается.
- Засыпается просеянный песок, затем равномерно укладывается щебень. Получившаяся подушка дополнительно уплотняется.
- Наверх стелется скрепленный из арматурных прутьев каркас.
- Заливается бетонная масса и выравнивается по уровню цокольного периметра.
Для полного застывания пола необходимо определенное время. По завершению трудоемких работ обязательно устанавливается вентиляционный ход, проводится электропроводка и устанавливаются ворота.
Обязательно соорудите отмостку по всему периметру здания с небольшим уклоном, чтобы дождевые и талые воды не подрывали фундамент «автодома».
Отделочные работы

Отделка гаража
Если хотите, чтобы гараж из шлакоблоков имел завершенный вид, можно осуществить отделочные работы. При желании вертикальная поверхность оштукатуривается, обшивается вагонкой. Для повышения теплоизоляционных свойств помещение утепляется стекловолокном или пенопластом. Полиэтиленовая пленка помогает защитить от влаги.Готовая постройка ничем не отличается от здания, выполненного из кирпича. Конструкция теплая, эстетичная и с большим сроком службы.
Основные преимущества шлакоблока, как строительного материала:
- приемлемая цена;
- требуется немного цементного раствора для возведения кладки, ведь каждый блок имеет большой размер;
- стены сможет быстро и просто вывести даже дилетант;
- к прочности фундамента предъявляются заниженные требования при строительстве из-за легкой структуры материала;
- шлакоблок подойдет для создания постройки различного назначения;
- бетонные камни устойчивы к возгоранию и отличаются высокой механической прочностью.
Если строительный блок в своем составе содержит доменный шлак со слишком крупными частицами-гранулами, материал для возведения «автодома» не годится. Низкая теплопроводность пагубно скажется на деталях и обшивке транспортного средства.
Другим моментом является большой вес изделия около двадцати килограмм, поэтому нужно настраиваться, что строительные мероприятия окажутся трудоемкими.
stroybudni.ru
Как построить гараж из шлакоблока своими руками

Гараж из шлакоблоков для одной машины
Применение шлакоблоков в строительстве началось ещё в начале 80-х годов, однако, на тот момент этот материал ещё не обладал достаточными характеристиками прочности и применялся для возведения небольших и лёгких строений. Постепенно технология изготовления этого материала улучшала его технические качества и сегодня из шлакоблоков возводят полноценные жилые дома и заборы.
Что такое шлакоблок

Пустотелый шлакоблок
Перед тем как построить гараж из шлакоблока, необходимо изучить характеристики материала и его виды. Шлакоблок в основном состоит из доменного шлака с добавками золы, а в качестве связующего звена применяют цементный раствор.
В улучшенных модификациях в качестве наполнителя могут применять кварцевый песок или кирпичную крошку. Состав тщательно перемешивается и прессуется под большим давлением в заранее подготовленных формах.
Сегодня существует два вида шлакоблоков:
- Пустотелые имеют несколько конструктивных отверстий и в среднем весят от 15 до 21 килограмма. Применяются для возведения стен в одноэтажных строениях.
- Полнотелые блоки весят в среднем 25-27 килограмм и применяются для создания фундаментов, а так же стен в многоэтажных строениях, поскольку обладают более высокими показателями прочности.
К сведению. Модуль шлакоблока имеет пористую структуру изделия. Для повышения характеристик материала многие производители используют такие компоненты как перлит, керамзит или полистирол. Эти добавки повышают теплопроводность блоков.

Пример пористого шлакоблока пониженной прочность
Начиная строительство гаража из шлакоблока, обратите внимание на пористость материала. Блоки с мелкими порами имеют меньшую теплопроводность и высокую прочность, в то время как крупнопористые блоки имеют хорошую теплопроводность, но существенно уступают в прочности. Учитывайте эти характеристики при выборе типа блоков для каждого этапа строительства.
Преимущества и недостатки шлакоблоков
Как и любой другой строительный материал, шлакоблоки тоже имеют свои преимущества и недостатки.
К явным преимуществам можно отнести:
- Относительно низкую стоимость, что связано с простотой технологии производства и использованием дешевых компонентов;
- Простота монтажа и высокая скорость строительства, что обусловлено легкостью материала и его размерами;
- Маленький расход цемента при укладке благодаря пористости материала, которая обеспечивает высокую адгезию раствора с поверхностью блока;
- Широкая область использования благодаря пожарной безопасности шлакоблоков.
Из недостатков материала можно отметить такие как:
- Низкий уровень шумовой изоляции, что требует укладки дополнительного материала для подавления шумов;
- Низкая прочность блоков, что не даёт возможности возводить многоэтажные строения;
- Токсичность, которая проявляется при воздействии высоких температур.
К сведению. Если проводить строительство гаража своими руками из шлакоблоков, то стоимость постройки будет значительно меньше, чем при использовании стандартного кирпича или пиленого камня.
Начало процесса строительства

Составляем план гаража
Перед началом строительства рекомендуется просмотреть эскизы или фотографии уже готовых гаражей для того, чтоб выбрать свой вариант конструкции или почерпнуть несколько хороших идей для составления индивидуального проекта гаража. После наброски проекта составляется рабочая смета и закупается нужное количество материала.
Последовательность действий должна выглядеть следующим образом:
- Провести разведку места постройки и выявить уровень грунтовых вод, глубину промерзания почвы в зимнее время, а так же определить состав почвы. Эти знания необходимы для грамотной постройки фундамента.
- Далее нужно определить местоположение ближайших электросети и водопровода. Определить варианты их подвода к строению и согласовать ваши действия с соответствующими инстанциями.
- Создать схематический чертёж гаража из шлакоблока и на его основании составить смету.
- Закупить необходимое количество материала.
Важно. При составлении проекта заранее определитесь с предназначением гаража и его размерами. Если планируете не только хранить автомобиль в гараже, но и производить его регулярное обслуживание, то вам потребуется смотровая яма, наличие электричества и водопровода.
Важность детального составления проекта заключается в том, что он позволяет избежать серьёзных ошибок при строительстве и служит пошаговым руководством к действию.
Создание фундамента для гаража

Схема фундамента для гаража
Постройка гаража из шлакоблока начинается с создания фундаментной основы. Создание фундамента для гаража следует начинать только после того, как вы получили все необходимые разрешения на проведение строительства.
Перед началом работ все место будущей постройки необходимо очистить от растительности и мусора, затем спланировать поверхность по уровень.
Далее порядок работ будет выглядеть следующим образом:
- Для начала нужно создать на участке разметку будущего фундамента. Для этого можно использовать стальные прутья или деревянные колышки с натянутой между ними верёвкой, которая будет обозначать контуры будущего фундамента.
- Затем приступаем к рытью траншеи согласно разметке. Для одноэтажного строения с деревянными перекрытиями достаточно вырыть траншею с шириной в 40-50 см и глубиной в 80-100 см.
Совет. Старайтесь делать траншею с ровными краями, это существенно сократит расход цемента при заливке фундамента своими руками.
- После того, как траншея готова, необходимо утрамбовать грунт. Затем засыпать слой песка толщиной в 15 см и так же утрамбовать. После песка укладывается слой мелко битого кирпича, камня или щебня толщиной в 15-20 см. Таким образом, мы создаём подушку для будущего фундамента.
- Оставшееся пространство заливаем бетоном до уровня поверхности земли.На этом фундамент можно считать готовым.
Для того, чтобы дождевая или талая вода не подмывала фундамент, необходимо с наружной стороны стены сделать отмостку, которая отведёт воду дальше от фундамента. Для этого по периметру гаража снимите слой грунта толщиной в 20 см и шириной в 50 см от наружной части стены.
Засыпаем щебень до уровня земли и заливаем цементом. При выравнивании отмостки следите, чтобы она имела уклон от стены к поверхности земли для обеспечения стока воды.
Сооружение стен гаража

Схема укладки шлакоблока
При осуществлении строительства гаража из шлакоблоков принцип укладки блоков ничем не отличается от кирпичной.
В зависимости от нагрузки на стены постройки кладка может проводиться несколькими способами:
- Укладка в половину блока;
- Кладка тычковым способом в один блок;
- Кладка в полтора блока;
- Кладка в 2 блока.
Для строения с деревянным перекрытием вполне достаточно тычкового способа укладки, когда каждый верхний блок перекрывает швы между двумя нижними блоками. При укладке таким способом первым делом выкладывают углы строения, затем от них выкладывают стену. Желательно сделать одну стену на один кирпич выше другой, это даст необходимый уклон для стока воды.
Важно. Перед тем как построить гараж из шлакоблоков и начинать кладку, необходимо заранее подготовить ворота, покрасить их в несколько слоев и установить до начала укладки блоков.
Во время кладки рекомендуется заранее предусмотреть отверстия для вентиляции гаража. Это обязательное условие, поскольку в помещениях такого типа будут постоянно скапливаться пары горюче смазочных материалов.
Создание деревянного перекрытия для гаража

Схема установки балок для кровли
- Для создания крыши нужно применять деревянные балки, которые будут уложены поперёк строения и составят опорную основу крыши. Расстояние между балками можно выдерживать в пределах от одного до полутора метров. Эти балки должны выступать за пределы строения на 20-25 см, что создаст своеобразный козырёк и предотвратит сток воды по стенам. Балки крепят к кирпичам любым удобным способом.
- После укладки поперечных балок, на них монтируется обрешетка, которая состоит из продольных деревянных прутьев или досок. Доски можно укладывать вплотную друг к другу, а если применяются прутья, то расстояние между ними должно быть не более 30 см. Поверх обрешетки укладывают рулонный рубероид, затем крыша зашивается шифером.
К сведению. Если строим гараж из шлакоблока без системы отопления, то крайне желательно провести утепление перекрытия изнутри. Для этого используется минеральная вата или пенопласт, который монтируется между поперечными балками и зашивается пластиковой вагонкой.
На нашем ресурсе Вы можете подробней узнать о том, как сделать двухскатную крышу для гаража своими руками.
Укладка пола в гараже

Заливка армированной стяжки
Перед тем как строить гараж из шлакоблока, заранее определите, будет ли в нем смотровая яма для ремонта или обслуживания автомобиля. Если гараж предусмотрен только для временного хранения, то в качестве пола можно использовать обычную стяжку.
Весь процесс выглядит следующим образом:
- Необходимо снять верхний слой грунта на 30-40 см;
- Уложить слой песка толщиной в 5-6 см и утрамбовать его;
- Уложить слой щебня средней фракции с толщиной слоя 7-8 см;
- Установить маяки по уровню вдоль или поперёк помещения;
- Заливаем слой цемента марки М 200 с толщиной 10-15 см и выравниваем по маякам.
Важно. Если автомобиль имеет большой вес, то для прочности стяжки можно поверх щебня дополнительно уложить обрешетку из металлических прутьев. После того как бетон затвердеет, поверхность стяжки желательно обработать грунтовкой и покрыть тонким слоем наливного пола с высокими прочностными показателями. Конечно,цена такого покрытия возрастает, но это защитит стяжку от влагии других разрушающих факторов.
Внутренняя отделка
На завершающем этапе строительства начинается отделка и обустройство внутреннего пространства.
Обычно в это понятие входит:
Но все эти мероприятия проводятся уже по личному смотрению и не являются обязательными. Данный материал полностью описывает, как построить из шлакоблока гараж, а для закрепления предлагаем просмотреть видео- материал, описывающий процесс укладки шлакоблоков.
1pogarazham.ru