создание проекта. Возведение фундамента стен и кровли. Утепление
Дом из пеноблоков 6 на 9, проекты, ГОСТ 6133-99 на шлакоблок, кладка своими руками: инструкция, фото и видео-уроки
Пеноблок в последнее время стал одним из самых популярных материалов для частного строительства и возведения коттеджей. Это связанно с тем, что он обладает хорошей теплопроводимостью, небольшим весом и умеренной ценой при внушительных габаритах. Однако профессионалы считают, что именно дома из пеноблоков 6 на 9 идеально подходят для применения этого материала с учетом всех его особенностей и технических характеристик.

Графическое изображение типового двухэтажного здания рассчитанного на изготовление из пеноблока
Реклама
Создание проекта
Изготовления проекта можно считать самой основной работой при строительстве. Именно на его основании возводятся все конструкции, и от него зависит качество и срок эксплуатации будущего сооружения. При этом проекты домов из пеноблоков 6 на 9 требуют особого внимания, поскольку должны учитывать свойства данного материала, особенно его прочность и теплопроводимость.

Вариант проекта с указанием размеров здания и фото готовой конструкции
Статьи по теме:
Фундамент
Подбирая фундамент под дом из пеноблоков необходимо учитывать целый ряд технических характеристик:
- Прежде всего, необходимо отметить, что данный материал очень плохо переносит различные вибрации и движения земляных масс. В отличие от кирпича при повреждении фундамента на стене может возникнуть довольно большая трещина и даже существует вероятность разрушения. Именно поэтому проект дома из пеноблоков 6х9 с мансардой или тяжелой крышей требует прочного основания по всему периметру установки стен.

Сваи для данного типа зданий лучше всего использовать в качестве основания для мелкозаглубленного фундамента
- Также стоит отметить, что глубина фундамента для подобных строений должна быть больше уровня промерзания грунта. Особенно это относится к районам с нестабильной почвой и высоким содержанием глины.
- Отдельного внимания заслуживают сваи. В своем первоначальном виде их полностью исключают проекты домов 6х9 из пеноблоков. Однако в сочетании с мелкозаглубленным фундаментом из них может получиться довольно экономное и при этом надежное основание.
Совет! При выборе определенного проекта дома или коттеджа из пеноблока лучше сразу обратить внимание на расчет фундамента.

Ленточный фундамент идеально подходит для конструкций из пеноблоков
Кладка
Рассматривая проект дома 6 на 9 из пеноблока можно заметить, что процесс его кладки практически ни чем не отличается от работы с обыкновенным кирпичом. При этом также используется перевязка рядов, тот же цементный раствор и армирование при помощи стальной проволоки.
Однако стоит отметить, что при работе с таким материалом, как пеноблок, особое внимание стоит уделять замерам и контролем ровности поверхности. Это связанно с тем, что одна единица кладки имеет большие габариты и малейшее отклонение может привести к возникновению впадин или выпуклостей.
Также стоит помнить о том, что к данному материалу применяется ГОСТ 6133 99 на шлакоблок, который требует строго соблюдения всех норм указанных в нем не только при выборе, но и монтаже.
Если при произведении отделочных работ планируется оштукатурить поверхность, то швы в кладке необходимо выполнять внутренними. Это усилит адгезию материала и сделает поверхность прочной и долговечной.
Совет! При использовании данного материала очень трудно исправлять дефекты, возникшие в процессе кладки. Именно поэтому профессионалы настоятельно рекомендуют использовать водяной уровень при монтаже каждого отдельного блока.

Кладка пеноблоков с перевязкой рядов
Статьи по теме:
Утепление
Прежде всего, стоит отметить, что проект дома 6х9 из пеноблоков в качестве способа утепления предполагает наружное нанесение изолятора:
- Это связанно с тем, что данный материал сам по себе является неплохим утеплителем и поэтому лучше всего производить его защиту от холода со стороны улицы, чтобы избежать появления конденсата.

Неоднородная структура пеноблока с воздушными пузырьками разных размеров не могут обеспечить равномерного утепления
- В качестве изолятора для подобных конструкций можно использовать любой доступный изолятор. Однако специалисты рекомендуют применять пенополистирол или жидкий утеплитель. Также отлично подойдет монтажная пена, но ее нанесение и последующая отделка требует больших расходов.
- В теплых районах некоторые мастера оставляют дом 6х9 из пеноблоков без дополнительной защиты от холода. Такое решение ошибочно и необоснованно. Дело в том, данный материал имеет неоднородную структуру, а его внутренние пузырьки с воздухом имеют разный размер, что не может обеспечить равномерной теплопроводимости.
Совет! Выбирая утеплитель, способ его монтажа
skalice.ru
Проекты домов из пеноблоков: двухэтажные, бесплатные чертежи, сколько стоит построить фундамент для небольшой бани, как возвести здание 9х9 своими руками: инструкция, фото и видео-уроки
Понравилась статья? Следите за новыми идеями полезных авто советов в нашем канале. Подписывайтесь на нас в Яндекс.Дзене. Подписаться.
Двухэтажный дом из пеноблоков – из пеноблоков сейчас возводится достаточно много строений, особенно в загородном строительстве. Проект такого здания позволит возвести дом большой площади даже на небольшом участке и выгодно расположить комнаты.
Как правило, на первом этаже располагают комнаты общего пользования: кухню, гостиную, столовую, а на втором размещают спальни и детские комнаты. Небольшие двухэтажные дома из пеноблоков обходятся сравнительно недорого, а строятся значительно быстрее кирпичных.

Фото двухэтажного дома из пеноблоков облицованного кирпичом
Преимущества использования пенобетонных блоков для строительства
Благодаря своему уникальному составу пеноблок получает все большее распространение в строительстве:

Строительство из пеноблоков
- Пеноблоки изготавливаются из вспененного ячеистого бетона, который обладает достаточно большой прочностью и удобен в строительстве;
- Блоки имеют правильную форму, и их легко резать. По размеру они крупнее, чем кирпич, что позволяет ускорить возведение стен;
- Их можно без труда комбинировать, что позволяет возводить разнообразные здания по индивидуальным проектам. Найти такие проекты двухэтажных домов из пеноблоков бесплатно сейчас нетрудно, так как пенобетон становится все более популярным;
- Материал производится из натурального сырья, поэтому он является экологически безопасным;
- В доме будет приятная атмосфера, так как пенобетон обладает способностью «дышать». Теплопроводность пеноблока достаточно низкая.
- Фундамент для двухэтажного дома из пеноблоков может быть не особенно мощным, так как сами по себе они имеют небольшой вес.

Положительные качества пенобетона
Как разработать проект для постройки дома из пеноблоков?
Рассмотрим более детально, как построить двухэтажный дом из пеноблоков своими руками, чтобы обеспечить минимальные расходы, а в итоге получить просторный и теплый дом, соответствующий всем требованиям безопасности.
Работы начинаются с проектировки. Можно выбрать уже разработанный проект, которых достаточно много на просторах интернета, а можно составить свой собственный план, который позволит построить уникальный и неповторимый дом.
Проект двухэтажного дома из пеноблоков начинается с планирования его размещения на участке. Необходимо определить солнечную и теневую стороны, помня о том, что большие окна с солнечной стороны обеспечивают не только хорошую освещенность, но и уменьшают затраты на отопление.
Продумайте размеры будущего дома в соответствии с финансовыми возможностями. Проект дома 9х9 из пеноблоков двухэтажный является типичным удобным решением, так как такие габариты позволяют удобно распланировать комнаты на первом и втором этажах.

Проект дома 9х9
Индивидуальный проект позволяет включить в план дома мансарду, пристроенный гараж, используемое подвальное помещение, в котором можно разместить все, что угодно, от мастерской до личного спортзала.
Мансардное помещение позволит оборудовать те помещения, для которых в обычном доме нет места: бильярдную, библиотеку, студию для творчества. Установка в ней специальных окон обеспечит оптимальное естественное освещение.

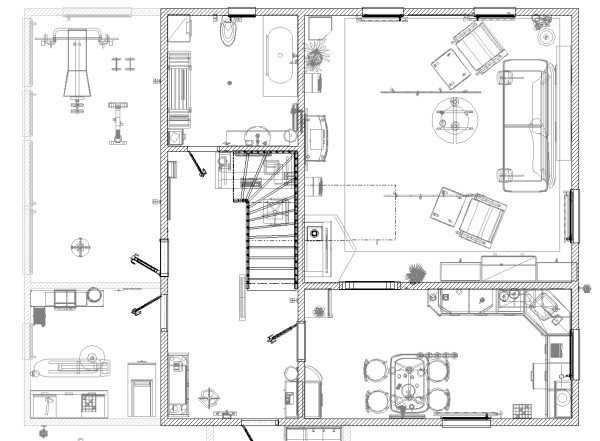
Вариант подробного плана первого этажа
Этапы работы над проектом
Составление проекта дома лучше проводить, консультируясь с профессиональным архитектором. Это достаточно сложная и ответственная работа, так как от нее и будет в итоге зависеть удобство, долговечность и практичность будущего дома. Составление проекта проходит в несколько этапов, при которых необходимо соблюдать главные правила и строительные нормы.
Статьи по теме:
Основная часть проектирования
При работе над проектом важно учитывать несколько закономерностей. Примерная инструкция по проектировке:
- При проектировке фундамента обязательно учитывается состав почвы и глубина залегания грунтовых вод. Будет не лишним посоветоваться со специалистами и заранее провести геологическую экспертизу;
Совет! Стоит подумать и об утеплении фундамента, особенно если дом планируется строить на пучинистых грунтах. При промерзании грунт расширяется, и будет оказывать давление на фундамент, что может в итоге стать причиной трещин.
- Важнейший этап – расчет толщины стен. Согласно строительным нормам, 10-миллиметровая кладка выдерживает вес около 10 тонн, и необходимо рассчитать вес перекрытий и кровельных материалов. Теплоизоляционные свойства пенобетона высоки, и при отсутствии дополнительного утепления для вполне комфортного дома будет достаточно стен толщиной 300 мм. По своим свойствам он не уступит кирпичному зданию, в нем даже будет теплее;
- Совместно со всеми членами семьи представьте, сколько комнат вы планируете видеть в своем доме, и как они должна располагаться. Стоит учитывать все потребности и пожелания, например, комнаты для пожилых членов семьи лучше располагать на первом этаже. Если вы владеете современными компьютерными программами моделирования, вы сможет устроить виртуальную «прогулку» по будущему дому, чтобы убедиться, что он действительно будет удобным.
- Продумайте расположение дверных и оконных проемов и отметьте их на плане. Представьте, насколько освещенными окажутся комнаты, будет ли удобно проходить из одной комнаты в другую. Еще один важный момент – расположение лестницы на второй этаж. Она может быть прямой или изогнутой, и важно, чтобы ступени не оказались слишком крутыми.

Виртуальный проект дома
Определившись с расположением комнат, выберите подходящий кровельный материал. Не забудьте о том, что большая часть тепла уходит именно через крышу здания, поэтому стоит позаботиться о многослойном утеплении.
Пол в здании также должен быть утепленным, для чего можно использовать либо традиционные материалы, либо запланировать создание «теплого пола» с помощью воды или электричества.
Планирование отделочных материалов
Можно приступать к планированию отделки. Вариантов здесь может быть множество, и конечный выбор будет зависеть исключительно от личных предпочтений и финансовых возможностей.
Узнать, сколько стоит построить двухэтажный дом из пеноблоков, можно, сложив стоимость строительных материалов, необходимых для возведения здания и затраты на оплату наемных рабочих и техники.
При составлении сметы стоит советоваться с профессиональными строителями и обязательно закладывать в расчеты хотя бы незначительный процент на перерасход материалов.

Проект дома с мансардой
Статьи по теме:
Двухэтажные дома из пеноблоков проекты которых можно найти на просторах интернета, предполагают использование для наружной отделки облицовочного кирпича, плитки, сайдинга или иных вариантов, обладающих очень разной стоимостью.
Один из популярных вариантов – фасадная штукатурка, которая дополнительно повышает звуко- и теплоизоляционные свойства дома. Во внутренней отделке разновидностей материалов еще больше, и здесь при выборе нужно одновременно ориентироваться на их эксплуатационные и дизайнерские свойства.
Планирование коммуникаций
Еще одна важная часть проектирования – расположение инженерных коммуникаций в доме и на участке. Современные дома снабжают водопроводом и системой водоотведения, и схема расположения труб должна быть учтена при будущих строительных работах.

Проект инженерных коммуникаций
Необходимо продумать, как выгоднее и экономнее проложить трубы на участке, с какой стороны удобнее подвести электрические провода, планируется ли газификация.
Важно! Обязательно проектирование вентиляционных ходов, так как от них будет зависеть атмосфера в помещении и его безопасность.
Когда работы по составлению плана будут закончены, стоит еще раз перепроверить все ключевые элементы и убедиться, что ни один из них не остался без внимания. После этого можно закупать материалы, размечать участок и начинать строительство.
Статьи по теме:
Видео в этой статье расскажет об особенностях проектировки дома из пенобетона:
Ландшафтная проектировка
Заключительный этап проектирования – продумывание будущего ландшафтного дизайна и размещения хозяйственных сооружений. Можно составить проект двухэтажной бани из пеноблоков, так как этот материал обеспечит хорошую теплоизоляцию, а цена его невелика.
Все сооружения на участке должны быть размещены с соблюдением санитарных и противопожарных норм. Продумайте расположение дорожек и возможное зонирование территории.

Пример ландшафтного проекта
Заключение
Самостоятельное составление проекта дома – очень сложная задача, но при некоторой подготовке она будет вполне по силам начинающему строителю. Продумайте все варианты и по возможности посоветуйтесь со специалистами на каждом этапе. Тогда дом действительно окажется и прочным, и уютным.
openoblokah.ru
Проект дома из пеноблоков 6х9
Проект дома из пеноблоков 6х9
Разработка каждого проекта дома из пеноблоков от компании ООО «ПРОЕКТСТРОЙ-П» осуществляется только опытными и высококвалифицированными специалистами. Таким образом, можно быть полностью уверенным в качестве предлагаемых вариантов. Следует отметить, что строительство домов из пеноблоков в настоящее время считается довольно востребованной услугой. Современные варианты планировки могут отличаться различной площадью.

Проектирование блочных домов 6х9
Проект дома из пеноблоков 6х9 может быть разработан в соответствии с пожеланиями клиента. На одной и той же площади под застройку, можно возвести, как и одноэтажный дом, так и дом с наличием цокольного этажа или мансарды. Одноэтажный дом, как правило, подходит для проживания небольшой семьи из двух-трех человек. В двухэтажном доме наблюдается существенное увеличение полезной площади, поэтому в нем может разместиться семья из пяти и больше человек.

В типовую планировку одноэтажного дома 6х9 обычно может входить небольшая прихожая, совместный санузел, кухня, спальня и гостиная. Иногда определенный проект может предусматривать строительство веранды или маленькой кладовой. При строительстве двухэтажного дома предоставляется гораздо больше возможностей для фантазии. На втором этаже такого дома согласно проекту может быть предусмотрено размещение трех спален, а также достаточно большого балкона. Первый этаж может предполагать размещение открытой террасы, веранды, просторной гостиной, холла, санузла и кухни.

Разработка типовых и не типовых проектов может быть предложена специалистами компании «ПРОЕКТСТРОЙ-П». В том случае, когда ни один из предложенных типовых вариантов не подходит заказчику, возможно предоставление разработки собственного проекта. В соответствии с таким проектом и будет осуществляться строительство дома из пеноблоков.

В некоторых случаях разработка проекта может происходить вместе с дизайнерами. Помимо этого, наши специалисты могут выполнить и разработку внутреннего убранства в соответствии с любым стилем и вашими пожеланиями. Следует отметить, что строительство дома 6х9 из блоков считается достаточно выгодным вариантом, который больше всего подходит для небольшого земельного участка и ограниченного бюджета. Подробности уточняйте по телефону или в нашем офисе, адрес которого указан на сайте!
Перейти к:
1. Этапы строительства дома из пеноблоков
2. Технология строительства дома из пеноблоков
3. Технические характеристики
4. Дом из пеноблоков: цена вопроса
5. Фундамент для дома из пеноблоков
6. Проектирование домов из пеноблоков
7. Калькулятор строительства дома и его расчет
8. Дома из пеноблоков в кредит
9. Проекты домов до 100м2
10. Проекты домов до 200м2
11. Проекты домов до 300м2
12. Проекты дачных домов
13. Портфолио
14. Наши клиенты
15. Контакты
Позвоните нам
+7(495)665-15-42
Мы приедем и построим Вам дом из пеноблоков
proectstroy-p.ru